查看完整案例

收藏

下载
新的海格特小学为学生提供了融入街区的创造性环境,不仅改变了人们看待环境的方式,也改善了人与环境的关系。从街道远景到亲密课堂,建筑提供了不同规模的校园体验。
The new Highgate Primary School Teaching Classrooms immerse the students in a creative environment that is anchored in to the surrounding context, creating new relationships and ways of seeing their environment. The building offers a variety of scales of experience from distant views to intimate classroom experiences.
▼项目概览,overview©Iredale Pedersen Hook
设计开发光、颜色和图案作为教育的工具,将课堂扩展至整个建筑环境。新校园作为城市响应多元文化、容纳多元人群的缩影,成为当地一处深受喜爱的空间。
Light, colour and pattern is developed as an educational tool extending the classroom curriculum in to the built environment. The building is a microcosm of the city responding to the diverse and multi-cultural students, allowing occupants to find a place and space of preference.
▼鸟瞰图,aerial view©Iredale Pedersen Hook
校园旧址已纳入国家遗产名录。基于以上背景,Iph 事务所对整个场地展开细致研究,以保证最大限度地避开关键位置,减少对建筑遗产、休闲区和景观的影响。设计创造出一种鲜明的城市姿态,位于街角的学校重新定义了人们进入校园的方式。
The school site is on the state heritage list. Iph initiated a whole of site school study to determine the location that would minimise impact to heritage buildings, recreation area and vistas. We created a strong urban gesture bringing the school to the street corner and redefining how one enters the school.
▼街道视角,view from the street©Iredale Pedersen Hook
这座“角塔”位于城市和宗教建筑、工业塔楼以及树木的交汇点,设计以塔楼和面向城市的大窗户回应了这一交汇的地理位置,使课堂活动成为街头体验的一部分,同时也将街道空间引入校园。
The corner tower is at the fulcrum of intersection of city, religious, industrial and tree towers and responds to this intersection with both tower and large urban window. The classroom activities now form part of the street experience and vice versa.
▼建筑北立面,the north facade©Iredale Pedersen Hook
▼建筑西立面,the west facade©Iredale Pedersen Hook
林肯街融入城市远景,为临近的建筑遗产提供了喘息空间。设计通过双通道楼梯激活建筑轮廓,在城市和遗产间构成了新的高架景观。
A vista to the city is maintained from Lincoln Street allowing breathing room to the adjacent heritage building. An activated edge via the double accessed stair forms a new elevated vista to the city and heritage building.
▼建筑回应街道空间,in respond to the street©Iredale Pedersen Hook
学校的材料和形式以遗产建筑为参考,却不局限于模仿。设计通过一个阶梯式的天然石灰石楼梯、四块红砖聚合体、一段白色墙体和一个镀锌钢屋顶,构成了折叠与倾斜体量的连续对话。背光聚碳酸酯的“古怪”介入与相邻小型住宅的背光彩色玻璃窗相呼应,在白天和黑夜间形成了一道流传的风景。
Materials and forms reference the heritage buildings without imitation and constraint. A podium of stepping natural limestone, a blend of four red bricks, a small band of white painted render and a roof of galvanised steel fold and pitch in continuous dialogue. A strange intervention of backlit polycarbonate responds to the backlit stained glass windows of adjacent small scale residences, a figure that changes between day and night.
▼开放的院落空间,open courtyard©Iredale Pedersen Hook
▼看向天然石灰石楼梯,apodium of stepping natural limestone ©Iredale Pedersen Hook
▼楼梯立面,facade of with the stairs©Iredale Pedersen Hook
▼楼梯顶端的视角,view on the stairs©Iredale Pedersen Hook
项目遵循当地规范,对教室进行标准化设计。空间通过精确地缩进响应了街道和场地环境,也提供了通往教室与更高层的入口塔。缩进和通高的部分在上下层间创造出多重对话,使低年级学生可以望见下一阶段的学习地点。
The design adheres to the Departments standard pattern classroom plans. The section is precisely extruded responding to the street and site context but also providing entry towers to classrooms and greater height in classroom. The extruded and perforated section creates multiple dialogues between the upper and lower levels allowing younger students to see their next place of progression through school years.
▼天窗与庭院,skylight and the atrium©Iredale Pedersen Hook
▼首层活动空间,public space on the ground floor©Iredale Pedersen Hook
▼上下层之间的多重对话,multiple dialogues between the upper and lower levels ©Iredale Pedersen Hook
教室内,面向城市的北侧角落体现着时间的流动,三个明亮的色块标记着早上、中午和下午的冬至投影。室外教学空间中的圆形天窗引入了朝北的日光,墙壁和地板上的圆形入口图案和紫色线标志着学期的开始和结束。
Time is mapped in the north facing urban corners, three bands of bright colour capture the winter solstice in the morning, midday and afternoon. A circular ceiling motif in the outdoor teaching space includes a north aligned light. A circular entry pattern and purple line on the wall and floor mark the beginning and end of the school year.
▼开放教室,open classroom©Iredale Pedersen Hook
▼色块标记冬至投影,three bands of bright colour capturing the winter solstice ©Iredale Pedersen Hook
颜色的设计还对应着六个 Whadjuk 季节,作为一种教学工具致敬了原住民的历史,六种 Whadjuk 季节能够对应解释全年的季节变化现象。
Colours were developed as an educational tool relating to the first occupants, the six Whadjuk seasons. Each of the six seasons represents and explains the seasonal changes we see annually.
▼颜色系统,colour system©Iredale Pedersen Hook
社区和学校对新校园的反响十分热烈,家长们热切地期待孩子使用这些空间,老师们也已找到了拥抱校园环境的不同方式。
The response from the community and school has been overwhelming with parents eagerly waiting and hoping their children will occupy these spaces. The teachers have embraced the spaces finding multiple ways of inhabiting them.
▼教室空间,the classroom©Iredale Pedersen Hook
设计为预算低于标准模式的小学项目找到了解决方案,在降低预算的条件下成功地实现了体验的多样性、个性化和复杂性。
It was built for less than the standard pattern primary school project, demonstrating that diversity, individuality and complexity of experience can be achieved within reduced budget parameters.
▼街角灯光,night view©Iredale Pedersen Hook
▼西立面灯光效果,lighting view of the facade©Iredale Pedersen Hook
▼街道夜景,view from the street©Iredale Pedersen Hook
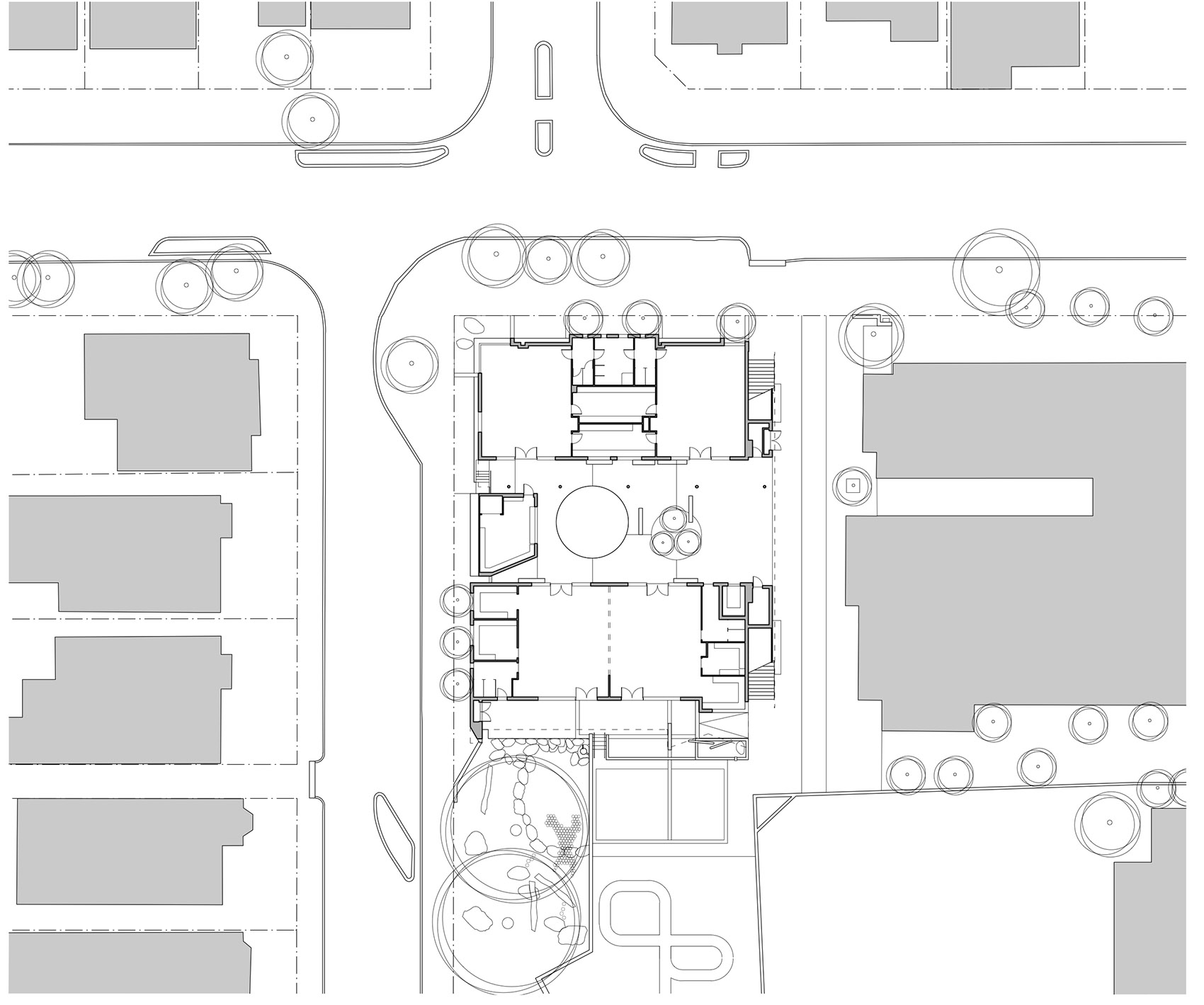
▼总平面图,site plan©Iredale Pedersen Hook
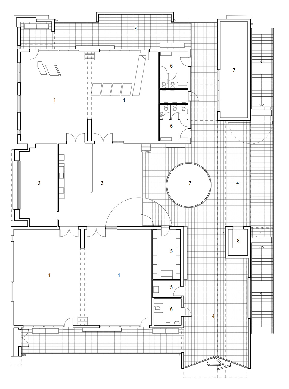
▼首层平面图,ground plan©Iredale Pedersen Hook
▼上层平面图,upper plan©Iredale Pedersen Hook
▼北立面,elevation north©Iredale Pedersen Hook
▼东立面,elevation east©Iredale Pedersen Hook
▼西立面,elevation west©Iredale Pedersen Hook
▼剖面,sections©Iredale Pedersen Hook
Project team: iredale pedersen hook architects: Adrian Iredale, Finn Pedersen, Martyn Hook, Mary McAree, Rebecca Angus, Tom See Hoo, Rebecca Hawkett, Fred Chan, Craig Nener, Thomas Forbes, Nikki Ross, Leo Showell.
客服
消息
收藏
下载
最近





















































