查看完整案例

收藏

下载
本项目公寓位于奥斯特拉瓦市中心附近一座古老的东欧风格混凝土公寓楼的八层,室内改造于2021年完工。项目的业主是一对年轻的夫妇,该公寓将作为他们今后生活与工作的地方。
The reconstruction of an apartment on the 8th floor of an old eastern-style concrete apartment block near the center of the city Ostrava was completed in 2021. The apartment is used by a young couple for living and working.
▼项目概览,overall of the project © Martin Jakubec
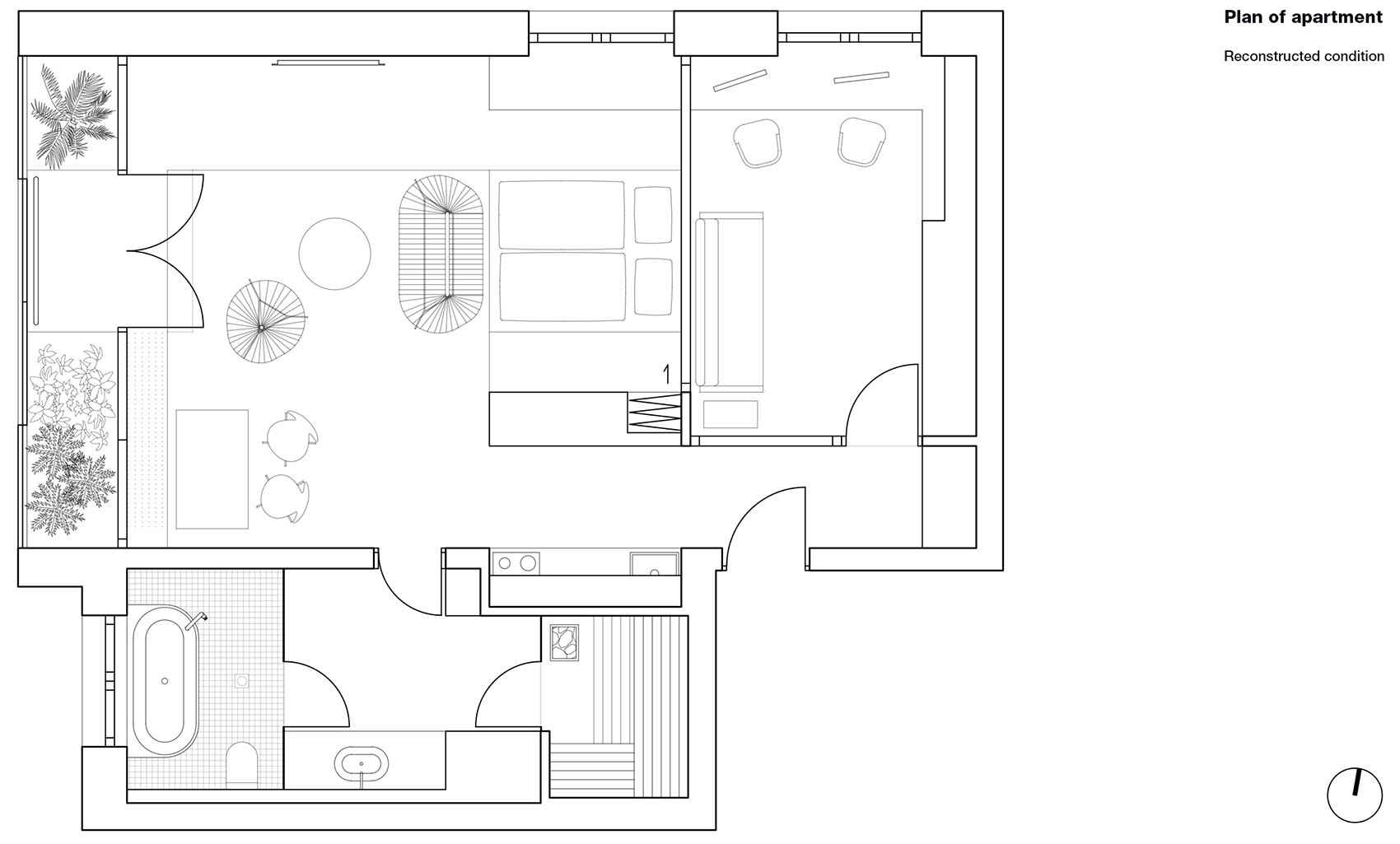
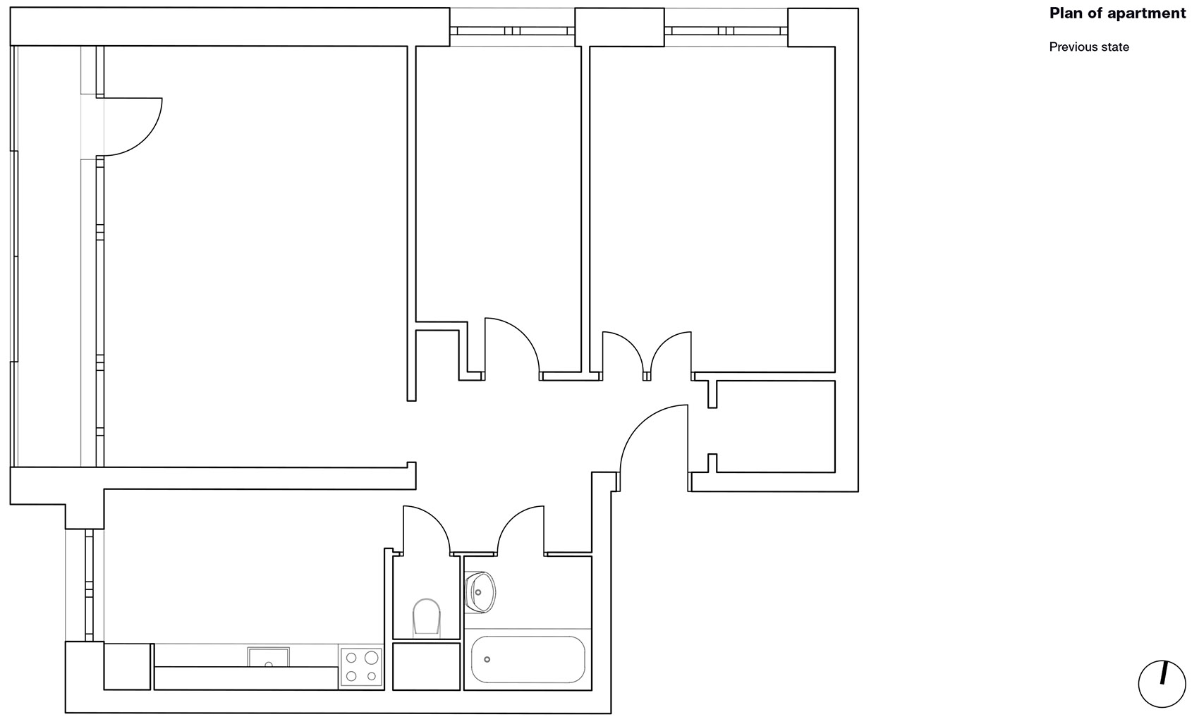
原先的二室一厅如今被改造为宽敞的开放式公寓。公寓的凉廊面向西侧,这处凉廊不仅为室内引入了城市的美景,同时为主要生活空间提供了充足的自然采光。预制公寓楼是捷克共和国境内,为数不多的在主要生活空间中设置全长阳台与开窗的居住建筑之一。阳台与主要生活区域之间的原始混凝土隔墙被一面通透的玻璃墙所取代,这种设置在阳台空间中创造出一个小型温室。
The two-bedroom flat has been converted into a generous open-space apartment. The loggia of the apartment with a beautiful view of the city is oriented to the west, providing a lot of sunshine in the main living space. The given type of prefabricated block of flats is one of the few in the Czech Republic which offers the possibility of a full-length balcony window in the main living space. The concrete panel forming the balcony windowsill was cut, and a glass wall was placed between the balcony and the main living space.
▼朝向西侧的阳台被改造为小型温室,The balcony facing the west was transformed into a small greenhouse © Martin Jakubec
公寓的东侧被规划为一间小书房,并采用聚碳酸酯墙将其与周围区域隔开。隔墙上部设有一排可以折叠收起的木制百叶,能够在需要时为使用者提供隐私。入口区域、书房和主客厅之间的连接空间容纳了厨房;主起居区则配备了轻便、便于移动的家具,这里将作为餐厅、健身房、工作室、vr游戏室,以及放松身心的休闲空间使用。
The eastern part of the layout is a small study separated from the surrounding areas by polycarbonate walls. If necessary, the study can be visually separated by folding shutters. The connecting space between the entrance area, the study, and the main living room is utilized as a kitchen. The main living area is equipped with lightweight, easily portable furniture and serves as a dining room, gym, studio, virtual reality game room, and relaxing space for wellness.
▼起居室,living room © Martin Jakubec
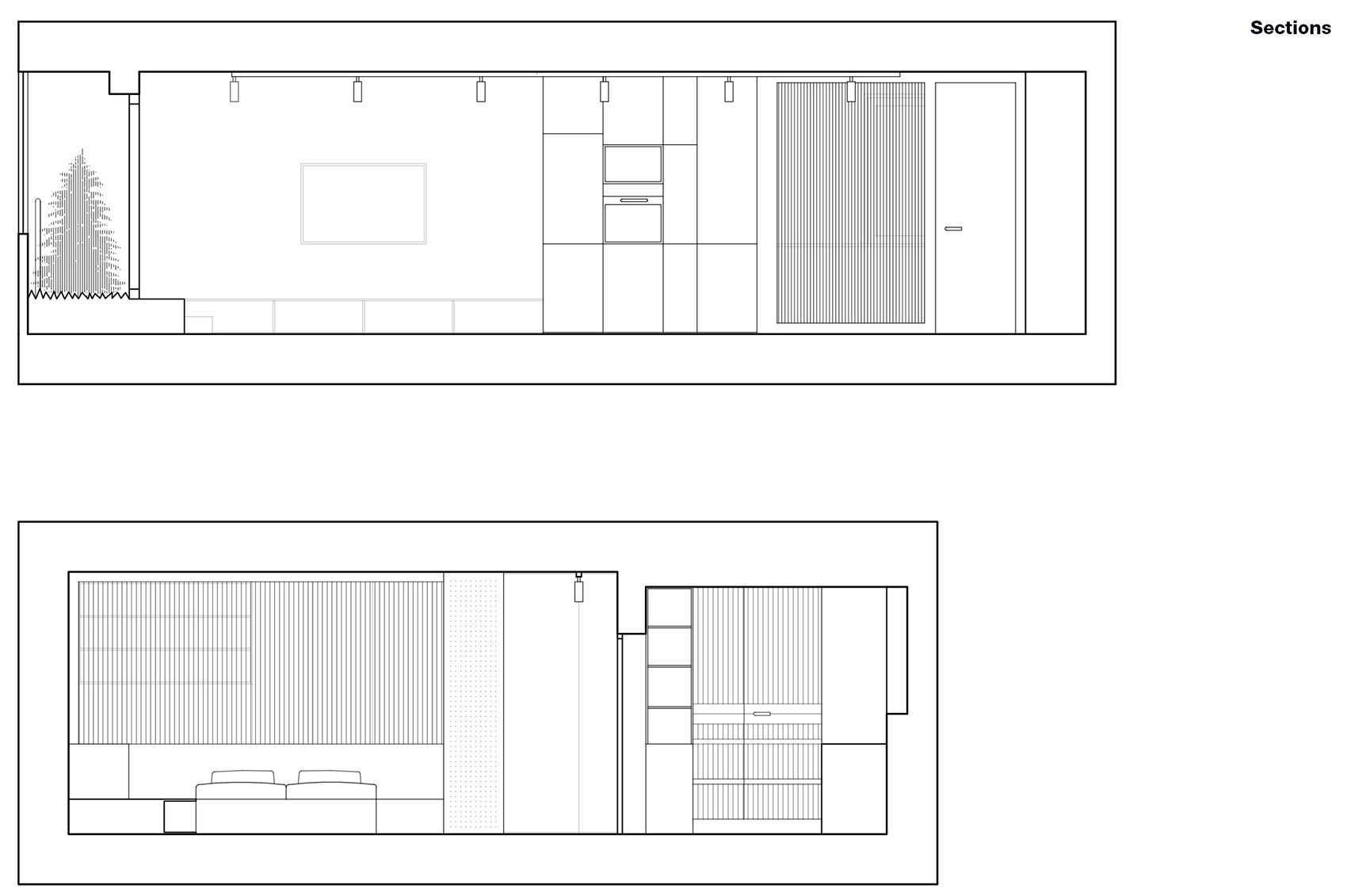
架高的平台则将室内空间与阳台空间无缝连接在一起,同时向室内延伸形成座位区,存储区,以及睡眠区域。面向阳台的玻璃门可以完全打开,进而将起居空间与小型温室完全连接在一起。
A small conservatory was created in the balcony space, accessible from a raised platform that flows seamlessly from the balcony into the interior of the apartment, creating seating, storage, and a raised bed area. The balcony door can be fully opened to connect the living space and the conservatory.
▼集成式家具提供了充足的储物空间,build-in furniture provides ample storage space © Martin Jakubec
▼可折叠打开的木制百叶为书房与主要生活空间之间提供了隐私,Folding open wooden louvers provide privacy between the study and the main living space © Martin Jakubec
曾经紧邻厨房的浴室,现在则成为了具有明显干湿分区,且带有芬兰桑拿、浴缸与淋浴的豪华spa区,西向的窗口则为浴室提供了良好的景观视野。
The original kitchen was connected to the bathroom and turned into a spa with a Finnish sauna, bath, and shower in a “wet“ area with a view from the west window.
▼浴室,bathroom © Martin Jakubec
▼芬兰桑拿,Finnish sauna © Martin Jakubec
混凝土墙面、地面以及天花板上原有的灰泥被全部清除,并采用整流砂浆与涂料进行修复与抹平,统一的色调营造出和谐的室内氛围。由拉丝云杉木板制成的内置家具则在质感与色调上对粗糙的混凝土进行了补充。所有材料的选择都要考虑其可能的润湿性。
The concrete panels were cleaned of the original plaster, repaired with rectifying mortar, and painted with a unifying coat. The coarse concrete is complemented by built-ins made of brushed spruce wooden panels. All materials are chosen with regard to their possible wetting.
▼位于过渡空间中的厨房,kitchen in the transition space © Martin Jakubec
▼温室阳台细部,details of the balcony greenhouse © Martin Jakubec
▼平面图,floor plan © TVARY
▼剖面图,section © TVARY
Architects: TVARY
Area : 68 m²
Year : 2021
Photographs : Martin Jakubec
Manufacturers : Gorenje, Knauf, VitrA, ALWIN START, Fermacell, Finská sauna, Huum, Jan Ševčík, Petroš interiér
Lead Architects : Lucie Šponarová, Ondřej Slowik
Carpentry : Jan Ševčík
City : Ostrava
Country : Czech Republic
客服
消息
收藏
下载
最近

































