查看完整案例

收藏

下载
住宅建在马德里一片安静的居民区中,项目基地由于形状狭长,已经被废置多年。设计需要在四米宽的空间内布置所有平面功能,最终得到了一座纤细而紧凑的棱柱型建筑。
The house is built in a long and narrow plot in a quiet residential area in Madrid, unused for years due to its unusual proportions. It accommodates the floor plan requirements inside a volume only 4 meters wide, resulting in a thin and compact prism.
▼建筑鸟瞰,aerial view of the building ©Imagen subliminal
每个楼层都植入了小面积的室外空间,在高密度住区内保证私密性的同时,创造出丰富的空间体验。这些空间包括地下一层的庭院,地面层带泳池的花园,以及二层通高的露台,补充并扩展住宅紧凑的室内空间。借此,设计挑战了重叠楼层的传统序列,将其变成了一道多变的垂直景观。
▼轴测图
axonometric ©Murado & Elvira Arquitectos
On each level small outdoor spaces are inserted, allowing for a rich spatial experience while keeping the necessary privacy in a dense residential neighborhood. This sequence encompasses a courtyard on the basement level, a garden with a swimming pool on the ground floor and a double-height terrace on the first floor expand and complement the tight interior of the house. Thus, the usual sequence of stacked levels is challenged and turned into a dynamic vertical landscape.
▼狭长体量中的垂直景观
vertical landscape in the long and narrow volume ©Imagen subliminal
▼局部鸟瞰,不同的室外空间
partial aerial view, various outdoor spaces ©Imagen subliminal
阳光通过基地前部的下挖露台照入地下室。空间上方横跨着一道桥梁,使得街道与花园以及住宅入口直接相连。
The basement is illuminated through a dug patio that occupies the entire front of the plot. Over this void, a bridge connects the street directly to the garden and the entrance of the house.
▼沿街外观,street view ©Imagen subliminal
▼下沉庭院和连桥
sunken courtyard and the bridge above ©Imagen subliminal
▼连桥直接通向花园和泳池
bridge connecting to the garden and the pool ©Imagen subliminal
▼连桥细部
details of the bridge ©Imagen subliminal
地面层朝向花园和泳池开放,二者沿基地的长边布置。起居室和厨房中设置巨大的开窗,保证了空间之间的连续性。大面积的穿孔金属滑动遮阳板让光照产生细微的差别。滑门上的圆形排气孔成为了住宅的标志。
The ground floor opens into the garden and the pool, which runs longitudinally along the edge. On this level, the living room and kitchen have large windows that allow the continuity of these spaces. Large perforated metal sliding shutters nuance the light. The circular cutouts of the sliding doors become the identity of the house.
▼地面层开向花园和泳池
ground floor opens to the garden and the pool ©Imagen subliminal
▼穿孔金属遮阳板
perforated metal panel shutters ©Imagen subliminal
▼起居空间与花园,living space and the garden ©Imagen subliminal
▼靠近庭院侧的楼梯,staircase along the garden ©Imagen subliminal
▼楼梯与穿孔金属遮阳板细部
details of the staircase and the perforated metal shutters ©Imagen subliminal
二层全部是主卧室区域,包括一间主卧,一个步入式衣橱和一间宽敞的浴室。浴室与建筑前部的主露台相连。该露台由两层高的围墙围合,墙面上设有一些开口,如同一个没有屋顶的房间,在保护住户隐私的同时提供良好的景观视野。空间中漂浮着一座旋转楼梯,连接三层和屋顶的日光浴房,住户可以在这里一览整个区域的美景。
On the first level, the main bedroom area occupies the whole floor, consisting of a bedroom, a walk-in closet and a large bathroom. The bathroom connects to the main terrace on the front of the volume. This terrace is enclosed by double-height walls with some openings to keep privacy and enjoy views, like a room without a roof. A spiral staircase floats over this space, connecting the second floor to the solarium on the roof, where you can enjoy the wide views of the entire area.
▼二层空间,space on the first floor ©Imagen subliminal
▼从卧室看向走廊,view to the corridor from the bedroom ©Imagen subliminal
▼与露台相连的浴室,bathroom connected to the terrace ©Imagen subliminal
▼露台仰望旋转楼梯
look up at the spiral staircase ©Imagen subliminal
▼夜景外观
external view of the building in the night ©Imagen subliminal
▼夜晚的下沉庭院
night view of the sunken courtyard ©Imagen subliminal
▼屋顶平面图,roof plan ©Murado & Elvira Arquitectos
▼地下一层平面图,basement plan ©Murado & Elvira Arquitectos
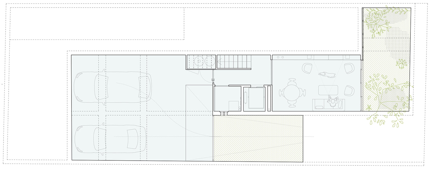
▼一层平面图,ground floor plan ©Murado & Elvira Arquitectos
▼二层平面图,first floor plan ©Murado & Elvira Arquitectos
▼三层平面图,second floor plan ©Murado & Elvira Arquitectos
▼立面图,elevations ©Murado & Elvira Arquitectos
▼剖面图,sections ©Murado & Elvira Arquitectos
客服
消息
收藏
下载
最近

























































