查看完整案例

收藏

下载
Hayy Jameel是一座位于沙特阿拉伯的艺术综合体,旨在促进艺术、音乐、电影和建筑等创造性学科之间的相互交流。在Hayy Residents的参与下,各领域的本土创意企业共同塑造了这一场景。Art Jameel是支持艺术家和创意社区的独立组织,它由贾米尔家族慈善机构建立和扶持,其总部位于沙特阿拉伯(Hayy Jameel,吉达)和阿联酋(贾米尔艺术中心,迪拜),并且立足于全球战略合作伙伴关系。Art Jameel的项目——包括展览、委托、研究、学习和社区建设——根植于对艺术的动态理解,即艺术对生活至关重要,并且是所有人都可以享受的。
Hayy Jameel is a mixed-use complex for the arts in Jeddah, Saudi Arabia that encourages cross-pollination among the broadest range of creative disciplines: art, music, film and architecture; joined by Hayy Residents, a roster of homegrown creative enterprises who have each shaped the scene in their respective fields. Art Jameel is an independent organisation that supports artists and creative communities. Founded and supported by the Jameel family philanthropies, Art Jameel is headquartered in Saudi Arabia (Hayy Jameel, Jeddah) and the UAE (Jameel Arts Centre, Dubai),with global strategic and programming partnerships. Art Jameel’s programmes – across exhibitions, commissions, research, learning and community-building – are grounded in a dynamic understanding of the arts as essential to life and accessible to all.
▼项目概览,general view ©Laurian Ghinitoiu
设计团队表示:对于该项目来说,中央庭院至关重要,它是建筑的驱动力,也是社区的核心。庭院上方环绕错落的阴凉露台,它们作为庭院的延伸,被视为连接各层的整体空间结构。在底层,庭院环境通过绿植座位得到提升。此外,庭院凭借其在布局中的战略性中心位置,提供了与建筑服务直接而持续的联系,其中包括艺术展览空间、媒体办公室、表演场地、电影院、图书馆、艺术家工作室、餐厅、商业艺术品售卖和以社区为中心的多用途空间。
waiwai the architects of the project explain that fundamental to the project is the main central courtyard, which acts as the driver of the architecture and the programmatic heart of the community. On the building’s upper levels, the courtyard is surrounded by shaded, staggered terraces that serve as extensions of the courtyard, and allow it to be conceived as a spatial whole that connects every level of the project. On the ground floor, the courtyard is enhanced by seating among natural greenery. With its strategic placement in the programmatic arrangement, the courtyard’s central position provides direct, continuous connections to the architecture’s services: art exhibition spaces, media offices, performance venues, cinema, library, artist studios, restaurant, commercial art vendors, and community-focused multi-purposes spaces.
▼中央庭院,central courtyard ©Laurian Ghinitoiu
▼错落的露台,staggered terraces ©Laurian Ghinitoiu
建筑体量错落有致,减少了对周围环境的视觉冲击力。外立面根据中东气候和文化专门设计,将自然光引入室内,并在保证私密性的同时尽可能地提高透明度。建筑被分为两个体量,这不仅消解了体量感,而且允许内外流通自由,进而使其成为邻里的延伸。
The staggering of the architecture’s volumes relates sensitively to its context, limiting its visual impact upon the surroundings. The exterior façade is specifically designed to the climate and culture of Middle Eastern cities, receiving natural light into the interior spaces, and maximizing transparencies where possible, while simultaneously maintaining the privacy of neighboring buildings. By breaking the architecture into two volumes, the massing reduces its monumentality and permits the free flow of outside traffic into its confines, positioning itself as an extension to the neighborhood.
▼体量关系,volume relationship ©Laurian Ghinitoiu
该项目的设计考虑了4个关键词:
The project is designed taking into consideration 4 key words:
广场 | Agora
Agora是古希腊城市的“集会场所”,它是开放的空间,用作市民活动的集会场地,通常由柱廊围合,并以树木、雕像、祭坛和喷泉装饰。在Agora概念的基础上,Hayy Jameel通过开放的中央庭院和面向内部的单元,鼓励社会互动,并创造出服务于各种活动的活跃共享空间。
A “gathering place” and “assembly” in ancient Greek cities, the Agora is an open space that serves as a meeting ground for various civic activities and is typically enclosed by colonnades and adorned with trees, statues, altars and fountains. Through its open central courtyard and inwardly facing units, Hayy Jameel builds on the concept of the Agora by encouraging social interaction and creating lively shared spaces serving a diverse array of activities.
▼广场-活跃的共享空间,agora- lively shared spaces ©Laurian Ghinitoiu
庭院 | Courtyards
庭院底层汇聚了大量地方及区域植物,综合体各层都可以看到这些植物,这使该区域成为视觉焦点,以及访客和居民的自然聚集场所。此外,屋顶花园为人们和其他生物创造了额外的社交空间。
Bringing together an array of local and regional plant life, the ground floor courtyards are viewable from all levels of the complex, making them a central visual component as well as a natural gathering place to visitors and residents. Rooftop [gardens] create additional social spaces for humans and non-humans alike.
▼庭院-汇聚大量地方及区域植物,courtyards- bringing together an array of local and regional plant life ©Laurian Ghinitoiu
光 | Light
光影是形成事务所众多理念的基本成分,在该项目中,它作为建筑的形式基础,突出了建筑体量的鲜明轮廓。同时,光线还作为一种材料,由天窗照进综合体内部。
A fundamental formal component within waiwai’s conceptual toolkit, at Hayy Jameel light and shadow compose the formal basis of the building, producing strong lines that emphasize built volumes. As a material, light is brought into Hayy Jameel through skylights.
▼光影突出了建筑体量的鲜明轮廓,the light emphasizes the strong lines of the volumes ©Laurian Ghinitoiu
▼光影细部,detail ©Laurian Ghinitoiu
空白画布 | Blank Canvas
Hayy Jameel综合体的主立面被设想成“空白画布”,与新兴及知名艺术家和设计师创作的公共艺术作品合作,并且将由一年一度的Facade Commission活动开启。
The main Facade of the Hayy Jameel complex is conceptualized as a ‘bank canvas’ on which to commission public artworks by emerging and established artists and designers. It will be activated through an annual juried Facade Commission.
▼综合体主立面,main facade ©Laurian Ghinitoiu
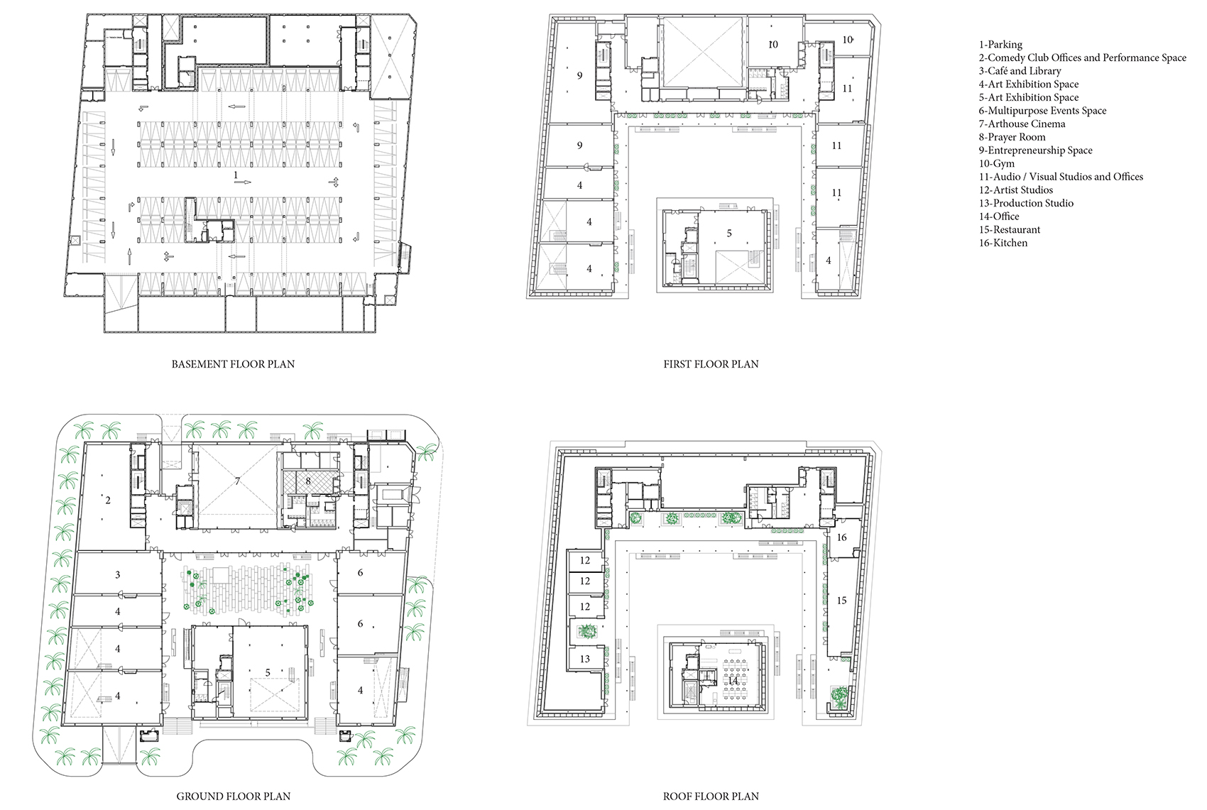
▼平面图,plans ©waiwai
▼透视图,perspective ©waiwai
▼剖透视图,sectional perspective ©waiwai
Project Name: Hayy Jameel
Location: Jeddah, Kingdom of Saudi Arabia
Site Area: 7,700 sqm
Built-Up Area: 6,000 sqm
Year: 2021 (Built)
Principal Architect in charge: Wael Al Awar
Team: Sho Ikeya, Takeshi Harikai, Ryuji Kamon, Yasushi Nimura
Former waiwai team: Kenichi Teramoto, Julian Barrera, Keisuke Kaneko
Photo Credits: Laurian Ghinitoiu
Landscape Design: waiwai
客服
消息
收藏
下载
最近















