查看完整案例

收藏

下载
在沙勒罗伊火车站附近的一座闲置工业建筑内,Traumnovelle事务所延续城市肌理,为高科技公司打造了一处新的办公空间。自发性的工作空间构成了中央公共区,为工业系统提供了公共活动的场地。在一个面临就业不足问题的后工业城市中,对黄金时代的建筑进行空间转换尚且没有足够的历史经验。因此,A6K高级工程中心也作为一个实验室,探索了21 世纪应对劳动力市场转变的新工作形式。
Inside an unoccupied industrial building close to Charleroi train station, new working spaces for high-tech companies and laid out according to a city grid. Autonomous workspaces frame a central public space dedicated to the communal activities of this industrial ecosystem. In the context of a post-industrial city faced with employment deficit, the conversion of the spaces of this golden age is as slow as that of historic know-hows. The Advanced Engineering Centre acts as a laboratory to experiment the new forms of work of the 21st century, faced with the transformation of the labour market.
▼项目概览,overview ©Philippe Braquenier
城市网格 | Urban Grid
城市网格可追溯至一种文化的起源。在后工业工作空间中的城市网格中,人们享有创新和创业的高度自由,这种形式演变自控制个体和优化生产率的强大监管框架,对传统发起了挑战。以罗马训练营为例,秩序和城市逻辑曾是规范人们工作行为的两条轴线,人们的集体活动位于两轴夹角的中央共享空间中,与罗马运动场有异曲同工之处。
City grids can be considered to testify to a culture’s cosmogonia. As such, the urban grid of the post-industrial workspace is that of high individual liberty—in the form of creativity, innovation and entrepreneurial freedom—confronted with a strong regulatory framework inherited from salaried employment, which implies the control of individuals and optimisation of productivity. Referencing the Roman training camp, organised according to two perpendicular axes symbolising order and the submission of the worker to the city’s logic. The central shared spaces bring the workers together through federative collective activities, similarly to the exercise ground.
▼中央空间,central space ©Philippe Braquenier
透明度范式 | Paradigm of Transparency
办公空间的玻璃走廊旨在应对员工自主权与可见度间的矛盾。根据相关理论,员工参与工作的意愿与可见度之间的关系由玻璃的透明度与反射度决定。本案中,玻璃的重叠模糊了观察的动作,为员工提供了喘息的机会。
The parallel strips of glazed office spaces highlight the contradiction between workers’ autonomy and their visibility. The expectation of visibility of the workers practicing their tasks, from a theoretical central viewpoint, is challenged by an overlay of transparencies and reflections. Their overlapping offers workers a respite from observation by blurring observation.
▼玻璃走廊,glazed office spaces ©Philippe Braquenier
▼透过玻璃看办公空间,view through the glass ©Philippe Braquenier
▼开放平台,open platform ©Philippe Braquenier
梳理现有空间结构 | Clarify existing spatial structures
项目对原建筑的复杂结构进行改造,梳理交通体系,旨在使现有空间的结构和用途更加清晰。可容纳8至12人的工作空间清晰地排列,标识出不同会议空间、位于中心楼层的社区和休闲区等公共区域。
The project takes place within the complex structure of an existing building. Grafted to its circulation system, it aims at making the existing spatial structures and uses more legible. Workspaces for 8 to 12 people outline communal amenities such as various meeting spaces, as well as community and leisure spaces in the centre of the industrial slab.
▼休闲区,leisure spaces ©Philippe Braquenier
▼会议空间,meeting spaces ©Philippe Braquenier
更灵活的工作空间 | More flexible workspaces
The Advanced Engineering Centre fosters a sense of the collective and collaboration between workers, as well as optimal work and research conditions. The central space, an indoor tropical garden, offers a different kind of community and leisure space, thus encouraging new forms of work and collaboration. It generates sub-spaces which can be appropriated by users for lunch, a meeting, a game or a phone call. Thus spaces for unproductive activities take up a central position in the overall layout of the workspace.
▼室内热带花园,indoor tropical garden ©Philippe Braquenier
低影响建筑更新 | Low-impact construction and renovation
项目的每个元素都从可回收与四个月内快速建造的方面进行了考虑,可完全移动以适应工业空间的改造或拆除。工作模块由工业存储平台构成,可自主安装后从屋顶进入。所有隔断与生物性软木地板及标准化玻璃等材料都可以拆卸并在其他地方再次使用。
The project is entirely removable in case the industrial space needs to be converted or demolished. Each element has been considered in terms of re-use and short construction phase (4 months). The work modules are composed of industrial storage platforms. The facilities are autonomous and can be accessed from the roofs of the workspaces. All partition materials can be detached and re-used elsewhere. The biosourced cork flooring system as well as the standardised glass panels can be disassembled and reaffected.
▼夜间办公区,night view ©Philippe Braquenier
▼场地平面,site plan ©Traumnovelle
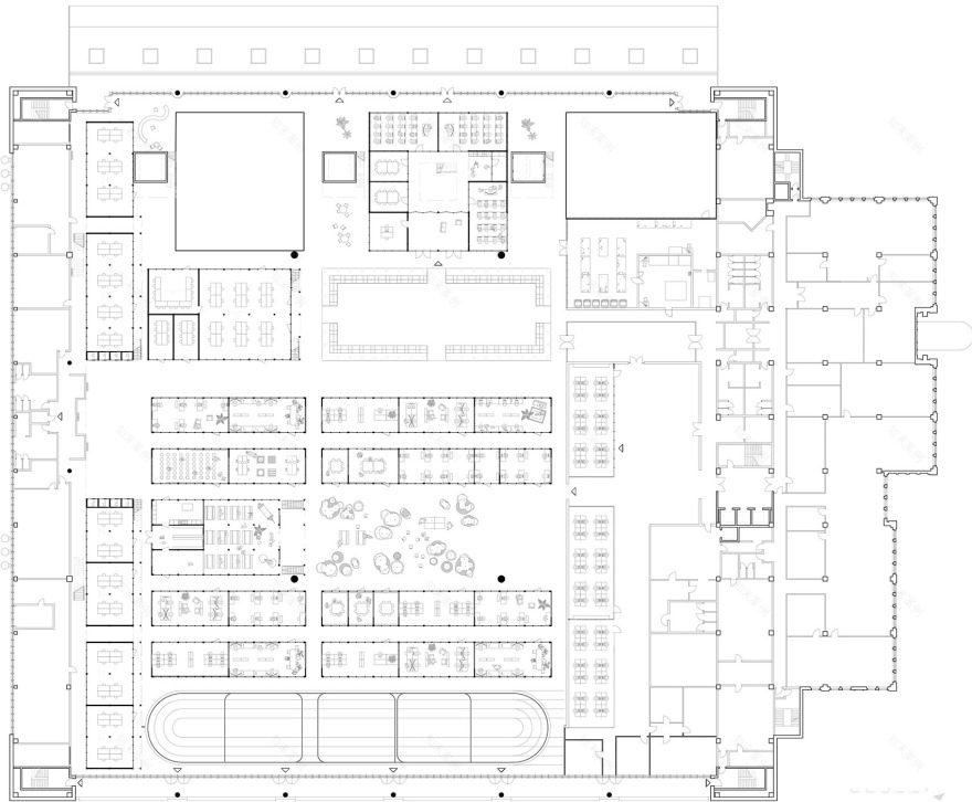
▼总平面,masterplan ©Traumnovelle
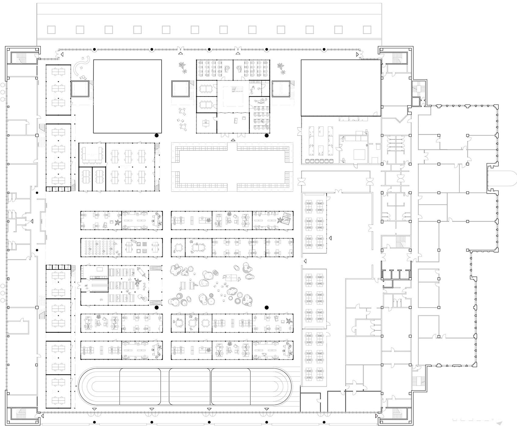
▼一期建筑平面,first phase plan ©Traumnovelle
▼立面图,elevation ©Traumnovelle
▼剖面图,section ©Traumnovelle
客服
消息
收藏
下载
最近
























