查看完整案例

收藏

下载
项目位于Benimaclet,一个在上世纪下半叶被瓦伦西亚市纳入辖区的果园小镇。当地坐落着很多小户型家庭住宅的集合住房,本案即是其中一例。CLAUDIA之家所在的公寓为一栋三层楼的建筑,由六套住宅共同组成,公寓底层的中央通道连接着每一个街区庭院,通向每套双层住宅的入口。
Benimaclet was an orchard town that was absorbed by the city of Valencia in the second half of the last century. In this town houses coexist with small-scale multi-family buildings, as is the case here: a three-storey building, made up of 6 dwellings, which, on the ground floor and through a central access, gives access in the block courtyard to two-storey constructions belonging to each of the dwellings in the building.
▼从庭院看建筑立面,view of the facade from the courtyard © María Mira
本案中,事务所对其中一套位于一层的住宅进行了改造,重整了生活空间与交通空间。由于现存建筑质量较低,建筑师建议对其进行大规模拆除并重建。
The intervention that we present consists of the reconstruction of one of these buildings, belonging to one of the dwellings on the ground floor, and its connection with it. The low construction quality and the habitability problems of this building advised its demolition and volumetric reconstruction.
▼庭院一角,view of the courtyard © María Mira
干预的目标
Objectives of the intervention
项目将住宅改造为带有天井的开放空间,使树、藤蔓和室内装潢相融合。厨房位于连接房屋和庭院的体量内,使天井从功能上和空间上都变成了房屋的中心。
Overturning the dwelling to the patio, landscaped patio with a tree, vines and upholstery. The kitchen is located in the room connecting the house to the pavilion, turning the patio into the central piece of the house, both functionally and spatially.
▼空间围绕庭院组织,living space around the patio © María Mira
▼起居空间,the living space © María Mira
设计还仔细推敲体量间的视线关系,既保证了上层住宅的私密性,也使房屋免受夏季热辐射的侵扰。设计没有在材料外添加涂层,充分发挥出烤粘土、白墙与木材三种天然材料的特性。
Control the views between the annexed pavilion and the dwellings on the upper floors and protect the pavilion from excessive sunshine in summer. Use only natural materials taking full advantage of their texture to leave them uncoated. The entire intervention gravitates over three elements: baked clay, white walls and wood.
▼厨房,the kitchen © María Mira
陶土的使用
Use of terracottas
铺地和墙面均由24x12x3 厘米和24×5.5×3厘米两种尺寸的标准化陶土砌块制成,与之对应,施工时也使用了两种尺寸的钻机。在房屋最潮湿最脆弱的区域,这些砌块还被身为艺术家的房主涂上了白色釉彩。空间上方,创新的Mallorcan式拱形屋顶内嵌金属梁作为支撑。
Pavements and wall cladding made with mechanised pieces of terracotta of two sizes: 24x12x3 cm. and 24×5,5×3 cm. with a rig that combines both sizes. In the most vulnerable areas of the humid premises these same pieces have been enamelled in white, prior to their placement, by the same owner of the dwelling who has a degree in Fine Arts. Revoltones of the slabs made with curved Mallorcan vault supported on metal beams.
▼洗手间,the bathroom © María Mira
▼陶土砌块细部,details of the terracotta © María Mira
方格的陶土遮阳板尺寸为20x20x8厘米,并为项目量身打造成以45°角切割的倾斜砌片,以获取更具方向性、面积更大的正向遮挡。二层体量朝向东北方向,以展示出面向庭院的最佳视野。
Ceramic sunbreaks made with the piece Square Latticework, measuring 20x20x8 cm, specially cut for this work at 45º, achieving a slanted piece that gives the latticework a greater frontal opacity and a directionality that allows the NE orientation to be chosen because it provides the best views from inside the pavilion.
▼陶土遮阳板细部,details of facade ©María Mira
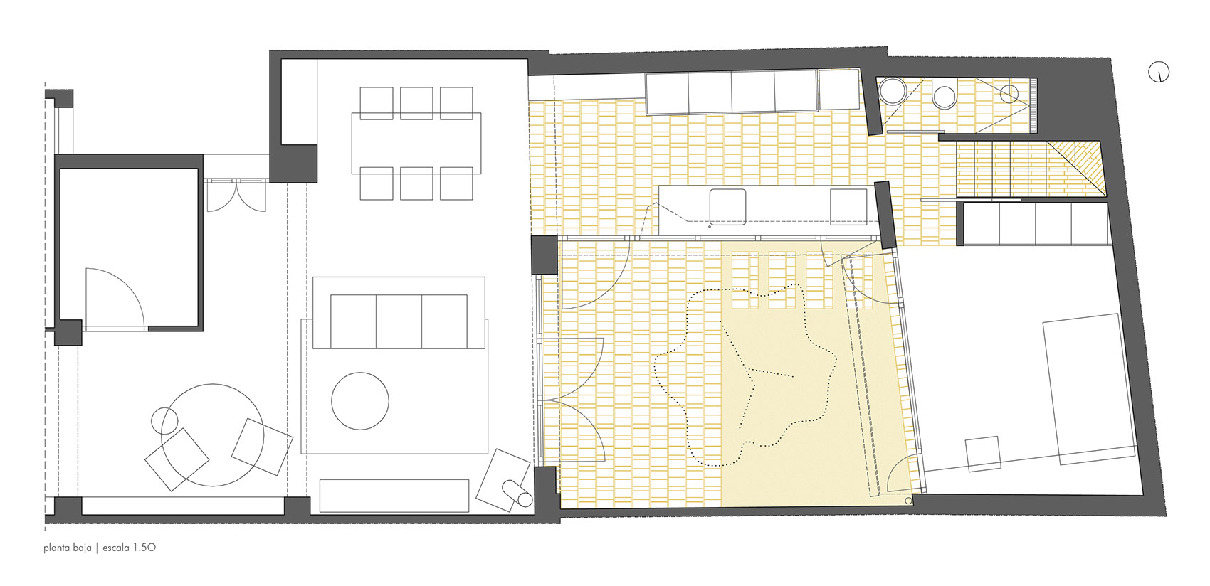
▼首层平面,the first floor plan © Gradoli & Sanz Arquitectes
▼二层平面,the second floor plan © Gradoli & Sanz Arquitectes
▼剖面图,sections © Gradoli & Sanz Arquitectes
Arquitectos: Arturo Sanz Martínez y Fran López López
Situación: calle Mistral. Barrio de Benimaclet (València)
Proyecto: 2018 / Obra: 2019
Constructor: Juan Casado
Paisajismo: Gustavo Marina
Carpintería exterior de madera: Fuster Alonso
Pavimentos de barro: Cooperativa Ladrillera
Celosías cerámicas: Cerámicas Ferrés
Fotografía: María Mira
客服
消息
收藏
下载
最近


















