查看完整案例

收藏

下载
该项目位于澳大利亚塔斯马尼亚岛的霍巴特市中心,旨在打造具有文化意义的表演及创意艺术地点,在全球化的现代背景下推动塔斯马尼亚的文化产品。2013年,LIMINAL事务所与WOHA事务所赢得这座具有重要文化意义的项目,并在塔斯马尼亚大学、皇家剧院以及澳大利亚和塔斯马尼亚政府的资助下,于2020年交付项目。该项目采用的设计策略是协调建筑的表演功能与周围环境之间的关系。
Located in the heart of Hobart, Tasmania, Australia, The Hedberg vision is to present a culturally significant performing and creative arts destination that fuels Tasmania’s cultural offering in a global and contemporary context. In 2013 LIMINAL Architecture with WOHA was awarded the project to deliver this culturally significant building. The Hedberg was delivered in 2020 through a unique funding partnership between the University of Tasmania, the Theatre Royal and Australian and Tasmanian Governments. The design strategy is to balance the theatrics of the building’s purpose and sensitivity to its context.
▼Hedberg文化创意产业园区,The Hedberg cultural and creative industries precinct ©Natasha Mulhall
该项目与澳大利亚最古老的皇家剧院(Theatre Royal)相接,这里设有繁荣的音乐和表演中心、世界一流的表演场地、音乐学院新家、创意实验工作室、服务空间、整合两层楼的Hedberg Garage和进入皇家剧院各层的通道,并纳入了促进本地和全球交流的尖端技术。随着场地逐渐演变,建筑内增设了现代化的楼层,不仅重新诠释了过去的空间,而且确保了旁边历史建筑可以通过适应性改造延长使用年限。在历史保护方面,设计将新的楼层交织在既有结构中,使建筑根植于场所并可以通过保护、再利用、解释和揭示持续促进场地的演变。
Co-located with the oldest operating theatre in Australia, the Theatre Royal, this development includes thriving music and performance hubs, world-class performance venues, a new home for the Conservatorium of Music, creative workshop laboratories, front and back of house support spaces, integration of the two-storey Hedberg Garage and accessibility to all levels of the Theatre Royal for the first time and incorporates cutting edge technologies facilitating local and global exchange. In the site’s evolution, the Hedberg development adds a contemporary layer that reinterprets the past and ensures the heritage buildings that abut and exist on the site, experience longevity through adaptive reuse. The heritage strategy interweaves interpretive layers into the built fabric, creates a deepened understanding of place and enables a response that continues to contribute to the evolution of the site through conservation, reuse, interpretation and revelation.
▼设计平衡了建筑功能与环境和历史建筑之间的关系,The design balances the building’s purpose with its context and heritage ©Natasha Mulhall
▼被列为历史遗产的Hedberg Garage,The heritage-listed Hedberg Garage ©Natasha Mulhall
材料选择和建筑形式适应场地环境,并唤起人们对其内部活动的意识。首先,该项目通过使用玻璃材质,使新与旧既联系又分隔,并整合了历史建筑Hedberg Garage的前部。其次,建筑外表皮让人联想到华丽的剧院幕布被拉开、展露出内部活动的温馨场景。
Material selection and building form address the context of the site as well as evoking a sense of the activities that take place within. One such example is the use of glass to both connect and separate the new with the old and integrating the front section of the heritage Hedberg Garage. Another example is the external skin of the building, which evokes a shimmering and sparkling theatrical curtain being pulled open to reveal the warmth of activities within.
▼乳白色立面,Opalescent cladding ©Natasha Mulhall
▼立面让人想起剧院幕布 ©Natasha Mulhall
The facade is reminiscent of a theatrical curtain
场所叙事和互联性在小尺度空间中延续,设计元素的灵感来自于爱德华多·奇利达(Eduardo Chillida)的连环雕塑、塔斯马尼亚鲍鱼壳的乳白色以及五线谱极简而灵动的形式。
The story of place and interconnectivity is continued at the smaller scale with design elements inspired by Eduardo Chillida’s interlocking sculptures, the opalescence of the Tasmanian abalone shell and the minimalist and dancing forms found in musical notation.
▼入口大厅,Entry Foyer ©Natasha Mulhall
▼通往演奏厅和沙龙的门厅 ©Natasha Mulhall
Entrance foyer leading to the Recital Hall and Salon
▼通往历史建筑Hedberg Garage的门厅 ©Natasha Mulhall
Entrance foyer incorporating the heritage-listed Hedberg Garage
▼楼梯厅,Cascading foyers ©Natasha Mulhall
▼大厅提供座位、非正式表演场地和聚集空间 ©Natasha Mulhall
Foyers provide seating, informal performance opportunities and gathering spaces
▼创意实验空间,Creative laboratory spaces ©Natasha Mulhall
▼控制室,Control Room ©Natasha Mulhall
▼沙龙,The Salon ©Natasha Mulhall
▼剧院,The Studio theatre ©Natasha Mulhall
▼黄昏下的屋顶露台,Rooftop terrace at dusk ©Natasha Mulhall
▼外观夜景,The Hedberg at dusk ©Natasha Mulhall
▼二层平面图,Level 2 Floor Plan ©LIMINAL Architecture, WOHA
▼四层平面图,Level 4 Floor Plan ©LIMINAL Architecture, WOHA
▼六层平面图,Level 6 Floor Plan ©LIMINAL Architecture, WOHA
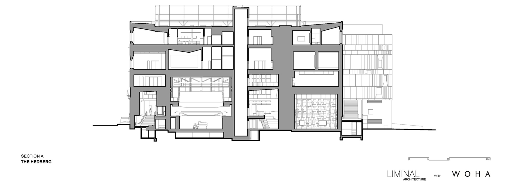
▼剖面图A,Section A ©LIMINAL Architecture, WOHA
▼剖面图B,Section B ©LIMINAL Architecture, WOHA
Project Title: The Hedberg
Project Type: Cultural and Creative Precinct
Project Location: Corner of Campbell and Collins St, Hobart, Tasmania
Architects: LIMINAL Architecture, WOHA
Client: University of Tasmania in partnership with the Theatre Royal
and the Australian and Tasmanian Governments
Mechanical, Hydraulic and Electrical Engineers: Arup with JMG
Civil & Structural Engineers: Arup with Gandy & Roberts
Quantity Surveyors: DCWC/Matrix Management Group
Landscape Architect: Inspiring Place
Theatre Planning, Acoustics and
Audio Visual: Arup
Architectural Lighting Arup/Southern Lighting: Traffic Engineering Howarth Fisher
Fire Safety: Arup + JMG
Land Surveyor: Peacock Darcy Anderson
Heritage Architect: Forward Consultancy
Urban Design: Leigh Woolley
Planning: IreneInc
Building Contractor: Hansen Yuncken
Environmental Sustainability Consultant: Arup
Graphics and Signage: LIMINAL Graphics with Holly Webber and Red Arrow
客服
消息
收藏
下载
最近
























