查看完整案例

收藏

下载
设计旨在创造能增加幸福感的建筑与环境。Parviainen Architects认为,学校设计的重点不仅在于创造建筑,还要为活动、体验和相遇提供条件。Hankasalmi学校中心旨在为当地所有居民提供服务。这座富有雕塑感的令人印象深刻的建筑将作为一座开放共享的公共建筑与一个极具吸引力的地标,成为整座城市的骄傲。
We design buildings and environments that increase wellbeing. When designing schools, it becomes exceptionally clear that we do not just create buildings but also the preconditions for activities, experiences, and encounters. Hankasalmi School Centre was designed to serve all inhabitants of Hankasalmi. The impressively sculptural building functions as an attractive landmark: the school is an inviting public building, a source of pride for the whole municipality.
▼雪景鸟瞰,aerial view © Martin Sommerschield / Kuvio Photo
▼建筑外观,exterior view © Martin Sommerschield / Kuvio Photo
平整的外墙和木质入口以一种宁静而清新的方式将建筑与周围环境联系在一起。这座新学校中心灵活开放的布局可以满足在不同区域同时进行学习活动的需求。
The calm facades and the wooden entrance tie the building to its surroundings in a peaceful, yet fresh way. Thanks to the vibrant and adaptable layout of the new school center, learning and studying can take place in all parts of its facilities.
▼前广场方向鸟瞰,aerial view of the surrounding plaza © Martin Sommerschield / Kuvio Photo
▼看向木质入口,view of the wooden entrance © Martin Sommerschield / Kuvio Photo
▼内院视角,view from the courtyard © Martin Sommerschield / Kuvio Photo
大厅中配备了艺术、文化和体育设施,楼梯可以作为社交、学习和表演的场所。整个空间以家具或其他分隔元素轻松划分,创造出一系列“快闪式”教室和临时学习区。
The lobbies have been equipped to function as facilities for art, culture, and sports; the stairs serve as a place for socializing, learning, and performing. Spaces can easily be divided with furniture and other dividing elements to create “pop up” classrooms or temporary learning environments.
▼通高学习空间,study space of double height © Martin Sommerschield / Kuvio Photo
▼二层视角,view from the second floor © Martin Sommerschield / Kuvio Photo
▼楼梯作为社交、学习和表演的场所
the stairs as a place for socializing, learning, and performing © Martin Sommerschield / Kuvio Photo
以自然为主题而串联起来的空间具有清晰的方向性。Hankasalmi以木材工业闻名,因此学校中心的每个区域都布置了一颗不同颜色和材料的“标志树”。室外的树木也呼应着室内主题,标识出每个入口。除树木外,体现校园特色的图案设计也令人瞩目,Hankasalmi学校中心是芬兰唯一一所以视觉导向为重点而设计的学校。
Navigating from one space to another is made easier by various nature themes. Hankasalmi is known for its wood industry, and every part of the school centre has an emblem tree that is reflected in materials and colours. The trees outside follow the indoor themes, identifying each entrance. In addition to the trees, the spaces have graphic references to the school’s special feature: Hankasalmi School Centre has the only high school in Finland with emphasis in orienteering.
▼不同主题的空间,rooms of different themes © Martin Sommerschield / Kuvio Photo
▼树木主题突出当地特色,themes of trees nodding to the wood industry © Martin Sommerschield / Kuvio Photo
▼视觉标识设计,VI design © Martin Sommerschield / Kuvio Photo
▼夜景,night view © Martin Sommerschield / Kuvio Photo
▼入口灯光,lighting at the entrance © Martin Sommerschield / Kuvio Photo
▼场地平面,Site plan © Parviainen Architects
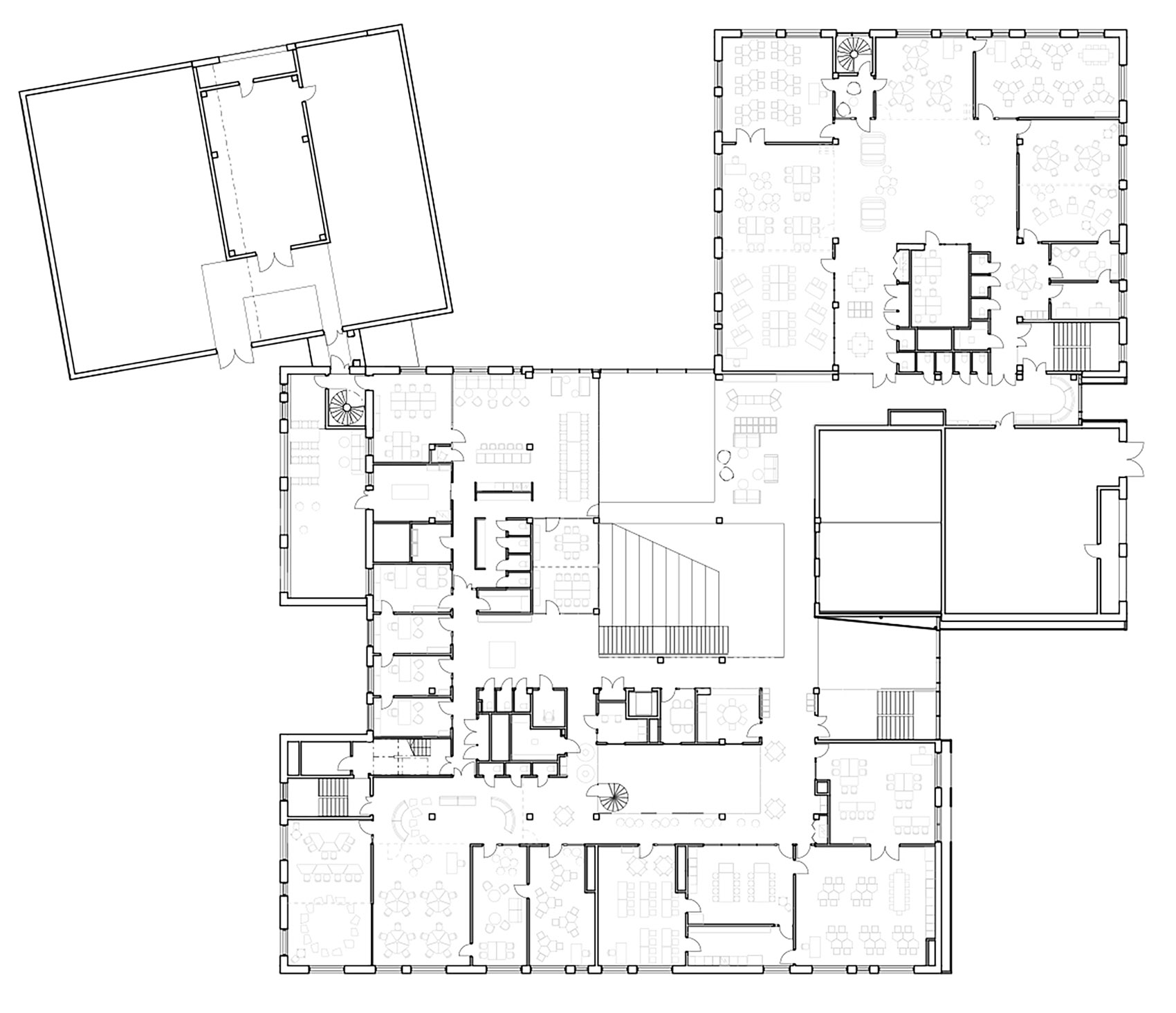
▼首层平面,1st floor © Parviainen Architects
▼二层平面,2nd floor © Parviainen Architects
▼北立面图,north elevation © Parviainen Architects
▼西立面图,west elevation © Parviainen Architects
▼剖面图,sections © Parviainen Architects
Facade cladding: Brick in two colours Tiileri.
Flooring: Polyuretane, Vinyl Flooring Upofloor.
Doors: Real wood veneer doors, painted metal doors.
Windows: Wood-aluminium windows, metal glass walls.
Roofing: Bitumen roofing Icopal
Furniture: Isku, Woodi, Tevella
Fixed furniture: Erical Oy
客服
消息
收藏
下载
最近



























