查看完整案例

收藏

下载
Octo tower 位于乌克兰基辅,是一座咖啡中心。这栋苏维埃式现代建筑是 Alexandrivska 医院综合体的一部分。Octo tower 所在建筑原是医院的联络楼,但是从来没有发挥过其本来的作用,即保证患者从城镇层的主要医疗活动空间到上层景观空间的移动。建筑还要引导患者和医院员工下到设有 Klovskaya 地铁站入口的低层景观空间,这里在苏维埃时期曾被设计为一处潜在的防空洞,可以抵御来自北约的核打击。
Octo tower is a coffee center in the downtown of Kyiv, Ukraine. The soviet modernist building is part of the Alexandrivska Hospital complex. The Octo Tower occupies the communication building which was built but never used by its original function, which was to ensure the movement of patients to the upper levels of the landscape where the main hospital activities are situated from the city downtown level. Also to ensure the descent of patients and hospital staff to the lower level of the landscape, where the entrance to the Klovskaya metro station is located, which was planned to be used as a potential bomb shelter in the event of a nuclear strike from NATO countries during the Soviet era.
▼项目外观,external view of the project ©Andrey Mikhailov
▼沿街立面与景观空间,street facade and landscape©Andrey Mikhailov
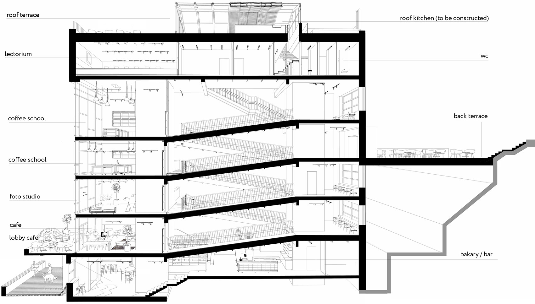
建筑的结构由两个带有电梯垂直核心筒组成,两侧楼层相错半层,通过人行坡道连接。三十米高的中庭空间三侧被砖墙围合,主入口方向采用玻璃立面,可以俯瞰广场景观。
▼剖面图,section©Goldakovskiy Group Architects
The structure of the building consists of two vertical cores of elevators with pedestrian ramps between the floor levels shifted by half a floor height vertically. The interior space of the 30-meter atrium is closed by brick walls from the sides and back of the building and a glass facade from the main entrance overlooking the square.
▼核心筒与坡道,structural core and ramps©Andrey Mikhailov
改造旨在向未开发的空间引入新的功能,包括不同类型的咖啡厅、一座烘焙坊、一间咖啡店、一个共享办公空间、一个摄影工作室、两所咖啡学校、办公室、一座报告厅、夏季露台和屋顶空间。所有必要的工程系统都被重新安装,如通风、采暖、给排水、视频监控和报警系统等。结构被部分加强,并重新设置保温层。立面得到了升级,玻璃立面被彻底替换,但是完全保留了建筑原本的风格。
The reconstruction process aimed to introduce new features into the unexplored space. The new features are: several types of cafes, a bakery, a coffee shop, a coworking space, a photo studio, two coffee schools, offices, a lecture hall, summer terraces and a roof area. All the necessary engineering systems were re-installed: ventilation, heating, water supply and sewerage, video surveillance and alarm systems. Partially reinforced and re-insulated structures. Roofs and terraces have been constructed. The facades were updated, the glass facade was completely replaced, with full preservation of the original style of the building.
▼入口,entrance©Andrey Mikhailov
▼入口咖啡厅,entrance cafe©Andrey Mikhailov
▼室内保留原本的墙面和材料,walls and textures are restored in the interior©Andrey Mikhailov
▼二层咖啡厅,cafe on the second floor©Andrey Mikhailov
▼通透的玻璃立面和露台,glass facade and outdoor terrace©Andrey Mikhailov
▼烘焙坊和酒吧,bar bakery©Andrey Mikhailov
▼咖啡学校,coffee school©Andrey Mikhailov
▼白色置物架,white shelves©Andrey Mikhailov
▼墙面细部,wall details©Andrey Mikhailov
▼摄影工作室,photo studio©Andrey Mikhailov
▼空间中布满绿植,space filled by plants©Andrey Mikhailov
▼六层空间,sixth floor©Andrey Mikhailov
▼蓝色的墙面和砖墙,brick wall and the blue wall©Andrey Mikhailov
▼报告厅,lecture hall©Andrey Mikhailov
▼灵活的空间,flexible space©Andrey Mikhailov
建筑室内的设计保留了场所的精神,墙面、各种完成面和材料肌理也维持原样。设计的重点在保留和修复,而不是带来新的元素。设有工程系统的电梯井和卫生间采用透明天花,打开了一道富有未来感的视野。楼层间增设了金属连桥,保证了每个区域的功能自治。一个出口通往屋顶空间,可以举办各种活动。
The interiors of the building were designed to preserve the spirit of the place and the original state of the walls, surfaces, and textures. The emphasis was on restoration and preservation, not on bringing something new. In the elevator shafts, engineering systems were placed, as well as bathrooms with a transparent ceiling, opening a futuristic view into the elevator shaft. Metal bridges were added between the floors to ensure the autonomous functioning of individual zones. An exit was made to the roof, which is used for events.
▼设有透明天花的卫生间 bathroom with transparent ceiling©Andrey Mikhailov
▼从卫生间的天花看向电梯井,view to the elevator shaft through the transparent ceiling©Andrey Mikhailov
▼楼层之间的连接空间,connecting areas between different levels©Andrey Mikhailov
▼保留场所精神,restore and space spirit©Andrey Mikhailov
▼坡道与核心筒,ramps and the structural core©Andrey Mikhailov
▼视线通透的坡道空间 ramp area with view to different levels©Andrey Mikhailov
▼玻璃立面,从坡道可以看向不同功能空间 glass facade providing view to the various functional spaces from the ramps©Andrey Mikhailov
▼标识和扶手细部,sign and details of the ramp©Andrey Mikhailov
▼入口上方露台,terrace above the entrance©Andrey Mikhailov
▼后院,rear terrace©Andrey Mikhailov
▼屋顶空间,roof space©Andrey Mikhailov
同时,年轻的现代艺术家们参与绘制了电梯井和建筑立面,将景观、城市广场和建筑室内空间连结成了一个完整的艺术表达。
At the same time, young artists working in the modernist tradition were involved to paint the elevator shafts and facades of the building, linking the landscape, city square, building interiors into one whole artistic statement.
▼中庭的艺术壁画,painting in the atrium©Andrey Mikhailov
▼烘焙坊中的艺术作品,art work in the bakery©Andrey Mikhailov
▼统一的艺术作品延伸到立面和广场,united art works extend to the facade and the square©Andrey Mikhailov
▼室外休息区和艺术绘画,outdoor resting area and the artistic painting©Andrey Mikhailov
室内家具由乌克兰生产商专门为 OCTO TOWER 项目设计制造,另有部分家具为苏维埃时期保留下来的古董。
The interiors used furniture of Ukrainian manufacturers, created specifically for OCTO TOWER, as well as original Soviet pieces of furniture.
▼家具,furniture©Andrey Mikhailov
▼剖透视图
sectional perspective©Goldakovskiy Group Architects
▼一层平面图,first floor plan©Goldakovskiy Group Architects
▼二层平面图,second floor plan©Goldakovskiy Group Architects
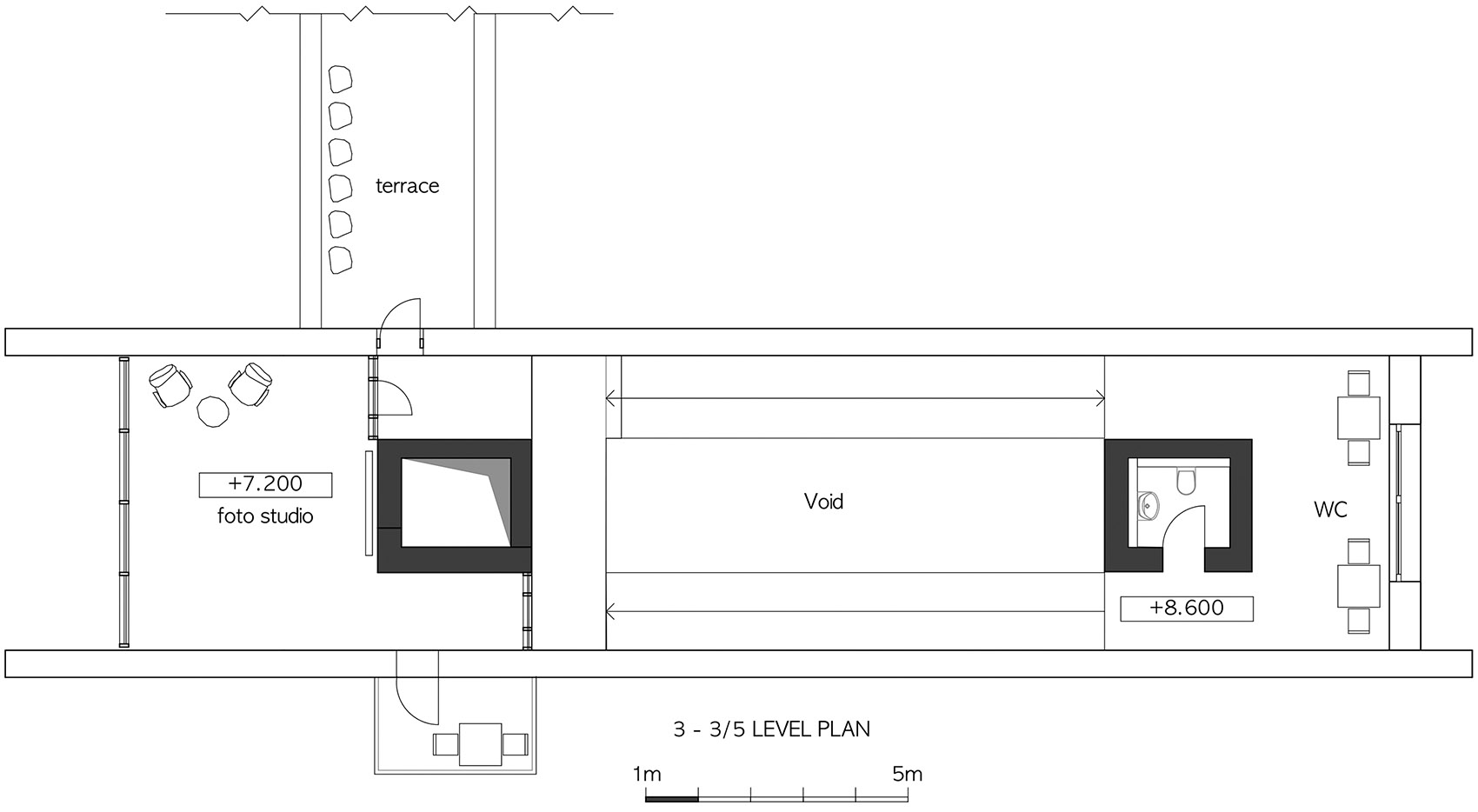
▼三层平面图,third floor plan©Goldakovskiy Group Architects
▼四层平面图,fourth floor plan©Goldakovskiy Group Architects
▼五层平面图,fifth floor plan©Goldakovskiy Group Architects
▼六层平面图,sixth floor plan©Goldakovskiy Group Architects
▼屋顶平面图,roof plan©Goldakovskiy Group Architects
客服
消息
收藏
下载
最近




























































































































