查看完整案例

收藏

下载
THELí本次室内设计项目「居于从容」是为酿影像工作室主理人夫妇设计了融合居住与办公功能的综合住宅空间。业主夫妇都是纪录片导演,对自然、记录与真实都有着深刻的理解。设计秉承自然理念,是对人、事物、空间与自然之间的关系进行探索的实践。
“At Ease” is an interior design project designed by THELí for the founders of “Niang” film studio, this project aims to create a space which integrated residential and working needs. The owner of the house is a couple who are both documentary directors and few years ago they founded “Niang” film studio, from their daily works, a deep understanding of the nature, documenting and truth are built. At the same time, the theme of this project is to express the owners’ understanding of natural philosophy and to explore the relationship between humans, objects, space and nature.
▼设计概览,Preview © THELí
设计的出发点源于我们对生活中所观所感的思考过程中的发问。经历了近几年一系列的消费升级之后,一个什么样的空间载体,让我们可以相对从容地面对现代生活。我们是否可以借一个空间氛围,让忙碌的城市生活回归到平静、简单而松弛的状态。思考的同时,我们想要表达纯粹、真实、坦率和本质,这与身为纪录片导演的业主夫妇对生活的理解不谋而合。当代北欧和新粗野主义为我们寻找答案提供了灵感和线索。
The design concept is obtained from self-reflections in our daily life. After a series of consumption upgrades, what kind of space will allow us to live at ease in modern life and if there is a place that can make people approach a calm and simple lifestyle easily? These are the questions raised by the owners of the house at the consulting stage, from there, THELí provides a solution which root in their understanding of pureness, truth, frankness and candidness which was also agreed by the owners, in the end, the contemporary Nordic design and Brutalism inspires the whole project.
▼一层空间细节,1F interior view © THELí
▼一层起居室,Living room on 1F © THELí
▼厨房,Kitchen © THELí
▼餐厅,Dining area © THELí
▼工作室休息区,Studio lounge © THELí
▼露台,Terrace © THELí
▼走廊,Corridor © THELí
超常规的大尺度在空间和家具选择上的运用,赋予空间开阔和包容;无框的玻璃弱化了室内与户外自然的边界与距离,漫步其间,与自然的亲密联结被释放,使人本能地慢下来,呼吸轻而缓,精神回归平静。时间与光影的变换流转被静静地捕捉、记录,对谈耳语间是时间和情感的流动交融。
“Larger Scale” compared to general Chinese residence can be seen as a key idea in this project, from the interior design to the furniture selection, to pair the room with a “plus-sized” sofa or table and leave the rest empty makes the room appears spacious. For windows, with a series of a large pieces of frameless glass, the boundary between indoor and outdoor space is blurred, more natural scenes can be seen from within. When we walk in the house, we can feel the connection with nature seamlessly, this connection makes us slow down, breathe freely. Our minds tend to calm down. Light moves, times change but the memory remains in the intrinsic characteristics of nature.
▼二层大窗台,Bay window on 2F © THELí
▼室内细节,Interior view © THELí
不断做减法以回归本质是设计的初衷。从最初拆除内部装修还原结构的本质状态到对空间结构的解读和划分,再到半饱和与去繁化的细部,克制使纯粹得以凸显。
Subtraction yet in a refined way is the means to draw attention to nature, as result, pureness is embodied and details of the design are enlarged. From dismantlement to reconstruction, the new configuration responds to the needs of its users, in this case, each space match with user’s needs accurately which reflects the minimal lifestyle approach of the house owners.
▼电梯间和中庭,Elevator and atrium © THELí
▼楼梯材质细节,Staircase detailed view © THELí
空间中的体被直线条清晰地雕刻出来,而这些体模糊了空间的界线。我们对空间划分选择性地做减法,不被定义的多元空间被体块构建连结,弱化了具有明确功能的空间单元划分,流动,通透,坦然。不定义使空间自然而然地衍生出超出自身限制的可能性,简明却更丰富。它来源于居者的感知和度量,以及空间与思想达成和谐一致而引发的情感共鸣。
Mass in the space is formed by lines, which blurs the boundary of each unit. “Subtraction” is the idea we keep in mind when making the floor plans, making each room multi-functional and reflecting the owner’s needs leads to the elimination of unnecessary divisions. The space is intended to be considered as a whole, each room is developed to serve more than one purpose, this design idea makes each room sophisticated.
▼中庭空间,Atrium © THELí
▼室内光影,Natural light © THELí
自然光于我们,绝不止视觉上的明与暗,体感上的冷与暖,它崇高而神圣,却又亲密无间。一天之中的不同时刻,我们似乎都在等待与光接触的瞬间,这种难以琢磨却又有迹可循的变化令我们着迷。情感被光包裹的片刻,是我们与外界纷扰的抽离,精神归于平静。这是简单普遍的形式,却是不可替代的特殊存在。
For THELí, natural light is not just the lightness and darkness people can see by eyes nor the cold and warmth people can feel, natural light is unique and divine, yet intimate. At different time of the day, we all seem to be waiting for the moment when the daylight shine on us, this elusive but true moment fascinates us. When we enjoy the daylight, we escape from the busy outside world and find our spiritual peace. This is a common feeling that is shared by humans, but somehow it is irreplaceable.
▼光照随时间变化,Light changes with time © THELí
我们在原始建筑上尝试间接形式的自然采光,引光而不见窗外,保留纯粹原始的自然接触。光影随着自然的韵律与天然石灰涂料包裹的墙面肌理交织,散射到空间中变得立体,氛围愈发柔和,像一位老友,彼此熟悉,随性真诚。
Natural light is the main light source of the house, for us as humans, daylighting is essential to our wellness thus we allowed the indirect sunlight that penetrates the space to provide interior lighting. At the moment when the space capture the most lighting, the sunlight not only light up the space but also brings warmth to the space, at this moment, the details and texture of the wall, coated with limewash paint, can be seen easily, a soft atmosphere is created.
▼间接形式的自然采光,Indirect natural light © THELí
我们在意空间的真实感,因为这于我们是有共鸣的,是熟悉的,安心的;它不是单一的,是立体的,丰富的,是视觉、触觉、精神、情感和记忆的共鸣,这种共鸣使我们觉得置身其中,一切都是这么自然而然的存在和发生。
We care about the sensory feelings staying in a space, the sense of reality evoked memories of ourselves, this familiar feeling is reassuring. The emotional resonance acts on multiple levels, visual, tactual, emotional and memory. When stay in the space surrounded by natural objects, we feel calm and relaxed, that all come naturally.
▼二层卧室,Bedroom on 2F © THELí
▼室内细节,Interior detailed view © THELí
我们选取真实的天然材料给予空间适当的包裹,THELí石灰涂料、整块大板面石灰石、珍贵木材与浇筑混凝土的使用与结合,给予这个大尺度空间不易察觉却富于质感的精致细节,每一种材料都历久弥新,记录着时间的流动,联结居者与空间的情感共鸣。
The rawness and tactility are two characteristics of natural materials, they inspire the whole design, the use of THELí self-designed limewash paint, a large piece of slate, timber and concrete leave the space with rich and refined details. We expect all materials used to be long-lasting and timeless, with daily use, the relationship between space and residents can be built.
▼三层卧室,Bedroom on 3F © THELí
▼材料细节,Material details © THELí
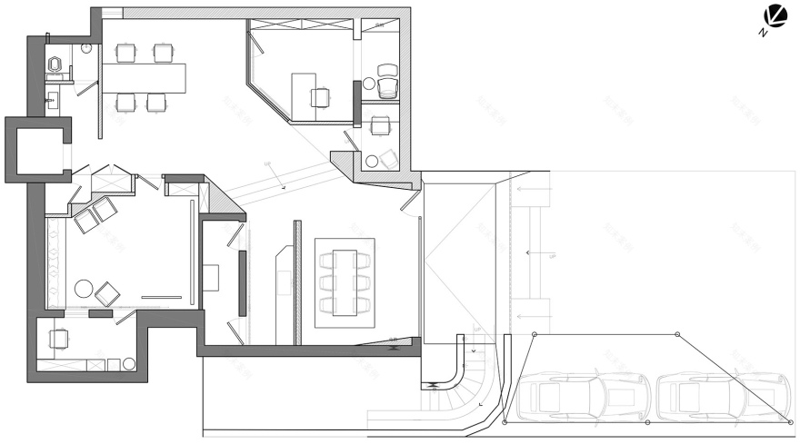
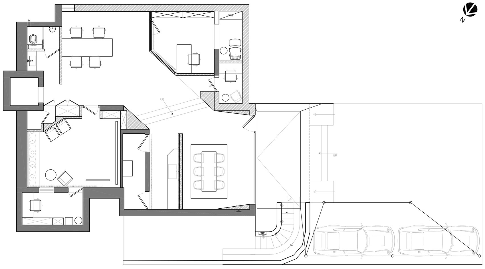
▼一层平面图,Plan 1F © THELí
▼二层平面图,Plan 2F © THELí
▼三层平面图,Plan 3F © THELí
▼地下层平面图,Plan GF © THELí
客服
消息
收藏
下载
最近






























































