查看完整案例

收藏

下载
贝利住宅项目位于俄勒冈州中部的牧场,是一次对1970年代原始乡村别墅进行改造的绝佳契机。几十年以来,这座备受喜爱的家庭住宅第一次得到了翻新。
The Bailey Residence offered a rare opportunity to renovate the interiors for one of the original 1970s Country House Condos at Central Oregon’s Black Butte Ranch – a beloved family home that had not been updated in many decades.
▼外观,exterior view © Jeremy Bittermann
翻新方案延续了充满活力的怀旧色彩与丰富纹理,展现出对原设计理念的热爱与致敬。从浴室瓷砖到皂石壁炉,每一个细节都力求将原始内饰的复古精神与从牧场自然环境中汲取灵感的现代色彩相融合。设计将老化的内饰层剥除,使贝利住宅美丽的木结构得以显现。
The renovation’s design is a loving tribute to the original design concept, with a vibrant, nostalgic mix of colors and textures. From the bathroom tiling to the soapstone fireplace, each detail seeks to blend the retro spirit of the original interiors with a modern color palette that draws inspiration from the Ranch’s beautiful natural setting. Much of the design focuses on peeling back the aging interior layers to uncover the beautiful wood structural elements of the Bailey Residence that have been there all along.
▼起居室,the living room © Jeremy Bittermann
▼从餐厨空间看起居空间,view of the living space from the dining space © Jeremy Bittermann
地毯和石膏板也被剥离,露出了蓝松木的原始结构,设计团队精心推敲新的木质细节,使其与原有蓝松木家具的复古质感相匹配。裸露的木材创造出丰富的自然图案,使人想起舒适的牧场小屋,为家庭生活奠定了优雅质朴的基调。
Carpet and drywall are stripped away to reveal the blue and buggy pine of the original structure, and great care was taken by the design team to match any new wood detailing with the particular vintage of Bailey’s existing buggy blue pine. The exposed wood creates a rich natural pattern that is reminiscent of a cozy ranch cabin, and provides an elegant, understated backdrop throughout the entire home.
▼通高的餐厅空间,the double-height dining space© Jeremy Bittermann
▼开放餐厨空间,open kitchen and dining space © Jeremy Bittermann
▼餐厅中的木质细节,wooden details in kitchen © Jeremy Bittermann
▼厨房区的视野,view from the kitchen © Jeremy Bittermann
▼蓝松木壁橱,the cupboard © Jeremy Bittermann
委托人格外注重房屋的灵活性与简单性。改造简化了原有布局,创造出开放且易于辨析的平面。设计团队拆除了多栋墙壁,旨在打通空间,让自然光和景观进入每个房间。
Flexibility and simplicity were a top priority for the homeowners. The renovation simplifies the layout, creating spaces that are open and easy to navigate. Multiple walls have been removed to create more voluminous spaces that let natural light and views into every room.
▼卧室,bedroom © Jeremy Bittermann
▼卧室飘窗,bay window © Jeremy Bittermann
在设计初期,团队发现原起居室内的一扇大窗户没有得到有效利用,于是决定在新方案中将这一元素进行整合。内置书架与橱柜成为每个房间中最大的特色,尽可能减少了对家具的需求,节约占地面积,提高空间利用率。
Early in the design, the team discovered in the original drawings that a large window in the main living room space had been left out in the original construction, and they were able to incorporate this element back in through the renovation. New built-in shelving and cabinetry is a prominent feature in nearly every room, minimizing the need for furniture and making efficient use of every space in the home with a relatively small footprint.
▼走廊一角,the corridor © Jeremy Bittermann
▼卧室细部,details in bedroom © Jeremy Bittermann
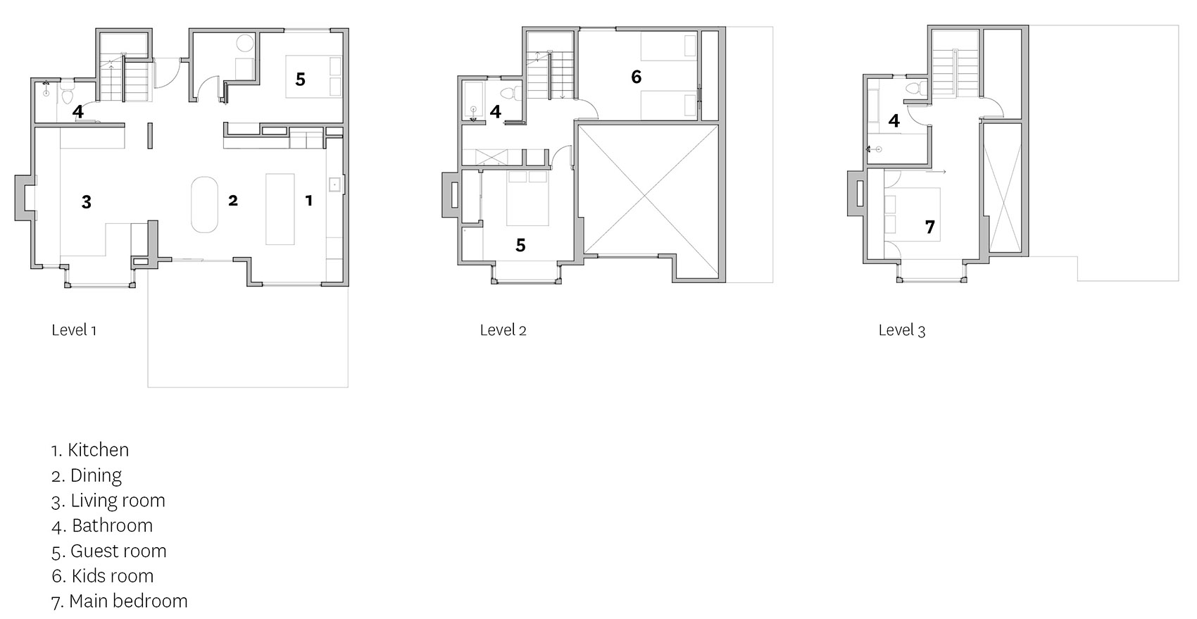
▼平面图,plans © Hacker
Hacker Design Team:
Jennie Fowler – Design Principal
Sarah Post-Holmberg – Project Architect
Janell Widmer – Interior Designer
Tom Schmidt – Architect (CA)
Amelie Reynaud – Architect (CD)
Pat Thorne – Furniture Procurement
Architecture and Interiors: Hacker
Contractor: Construction Management Services
Structural Engineer: Madden & Baughman Engineering
Photography: Jeremy Bittermann
客服
消息
收藏
下载
最近
























