查看完整案例

收藏

下载
Baraka海边住宅从谷仓改造而来,对初始结构进行了保留与加强。建筑师将体量从场地中抬高,对混凝土围栏进行整合,使住宅隐没在非建筑结构构成的景观环境中。深窄的场地是本项目需要应对的最大挑战。委托人希望建筑师能够以原有谷仓为原型,将其改造为一栋共享家庭住宅,为自己和丈夫提供招待朋友以及家人团聚的空间。
Approached by the Client with an archetype (a barn), we celebrated it rather than suppress it, by elevating it from its site, while treating all other structures as non-architectural; submerging one within the landscape, to be one with it, and merging the other with the perimeter concrete fence. The key challenges were the deep narrow site. The Owner had an archetype in mind to start with; a barn. Additionally, the Owner wanted one place for herself to entertain her friends, another for the husband for his friends and a family house where all get together.
▼项目概览,overview ©João Morgado
抬高的谷仓体量使住宅的视野最大化,且不会遮挡场地后方的结构。架起的谷仓将一侧的服务核心和另一侧起伏的屋顶绿地相连,为下方的花园和泳池预留了视觉和空间上的通廊。
▼体量生成,generation of volumes ©João Morgado
Elevating the barn (family house) maximizes its views without blocking the same to rear structures on the relatively deep site. The elevated barn, spanning in between the service core on one side and the elevated landscape on the other, provides a see-through and an underpass connecting two landscapes; the central garden and the sand beach/poolside.
▼屋顶花园,the roof garden ©João Morgado
▼视觉通廊,providing a see-through connecting ©João Morgado
底层的滑动谷仓门能够在起居室和出入口间实现快速切换,保证空间的私密性。厨房、客用浴室和地窖构成了后勤区,其中厨房位于海景餐厅和中央花园的户外烧烤平台之间。后勤区上方的夹层中布置了员工区和洗衣房,再上方则是包含客厅、游戏室、主人套房和儿童套房在内的家庭区。
A barn door slides along the ground floor to reclaim privacy from the opposite diwaniya, by zapping in between the living and in/out rooms. The kitchen is centered in between the dining room, that opens to seaviews, and the BBQ outdoor deck in the central garden. The support areas (kitchen, guest bathroom, and cellar) are topped by service quarters (maids quarters, laundry room) on the mezzanine floor, tucked below the first floor’s family areas (sitting rooms, playrooms, master suite, and kids’ ensuite bedrooms).
▼朝向泳池的谷仓立面,the barn facade facing the swimming pool ©João Morgado
▼越过泳池看海面,seaside view from the swimming pool ©João Morgado
▼看向首层公共空间,view of the public space on the first floor ©João Morgado
侧边的服务楼梯和图书室内的中央楼梯将人们引向上层,同时划分出客厅与电视间。
Access to upstairs is through a side service stair and a central one that is concealed within a central library, separating living from In/out TV room.
▼室内楼梯,the stairs ©João Morgado
夹在景观间的客房在不同层高上与住宅主体保持相连。在首层,起居室、餐厅、开放式厨房和图书馆共同构成了立面。二层空间中布置着主人套房、三间客房、休息区和储藏室,客房外侧连接着开放庭院。顶层则布置了工作室与屋顶花园。
The ‘guesthouse’, wedges between two landscapes, is connected to it at multiple levels: The living quarters (living, dining, open kitchen, and library have their façade) on the ground floor, the sleeping quarters (master suite, three ensuite guest bedrooms, a sitting area, and pantry) – via a courtyard alongside the guest bedrooms façade – on the first floor, and the clay studio via a roof garden.
▼覆土功能区, functional area covered in earth ©João Morgado
宴会厅与谷仓体量间形成了“几何重叠”,以满足功能的需求,将谷仓中的儿童活动空间与客房中的家长接待区联系起来。这种“几何重叠”形成了木材包裹的图书馆空间,以蜿蜒曲折的 “秘密走廊”提供了穿越的捷径。
The geometric overlap between the 2 structures (guesthouse and barn) is a direct interpretation of a frequently required programmatic one; connecting the mum’s hosting area in the guest house to the kids’ playroom in the barn. This is achieved via a shortcut ‘secret corridor’ embedded within the wood cladded library snaking both structures.
▼蛇形图书馆空间,library in snake structures ©João Morgado
项目的另一个体量是称作“diwaniya”的聚会场所,作为招待朋友的娱乐空间。宴会厅中,一层的大空间设有单独的入口,向三面景观开放。夫妻生活区、厨房、客用浴室和健身房与服务区相接,上层则是主卧和四间客房组成的睡眠区。
The ‘diwaniya’ is a gathering area, usually for the father, to host and entertain his friends. The ground floor has a main hall, open on 3 sides of the landscape and served with separate entrance. The side along the service alleyway has the live-in couple living quarters, the kitchen, the guest bathroom, and the gym. The first floor has the sleeping quarters; a master suite and 4 guest ensuite bedrooms.
▼宴会厅,the diwaniya building ©João Morgado
▼从庭院看宴会厅,view of the diwaniya building from the courtyard ©João Morgado
▼宴会厅内部视角,interior view of the diwaniya building ©João Morgado
▼宴会厅结构,structures in the diwaniya building ©João Morgado
地下停车场净跨度20m、高4m,允许汽车和船只通过坡道或滑道进入,并与客房、宴会厅和中央花园直接相连。除停车场外,技术区、员工生活区和家庭影院也位于地下室。
The parking basement, a 20m clear span and 4m high, is fit for cars and boats. Accessed by a ramp, that also leads to a slipway, the basement is also directly accessed from inside by the guesthouse, diwaniya, and central garden. Additional to the parking, the basement has technical areas, staff living quarters, and home theater.
▼地下空间,underground space ©João Morgado
▼夜景,滑动谷仓门,night view, sliding barn door ©João Morgado
▼夜景,night view ©João Morgado
▼总平面,master plan ©João Morgado
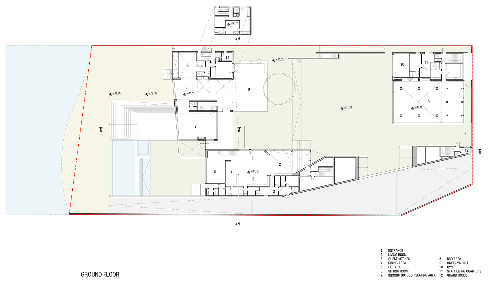
▼首层平面,the ground floor plan ©João Morgado
▼立面图,elevations ©João Morgado
▼剖面图,sections ©João Morgado
Project size: 41700 ft2
Site size: 51390 ft2
Completion date: 2019
Building levels: 3
客服
消息
收藏
下载
最近



































