查看完整案例

收藏

下载
▼建筑外观,exterior appearance of the building ©Salva López
位于巴塞罗那市中心22@的 Platinum@BCN 办公综合体被认为是世界上最具可持续性的建筑之一,以 101 分的破纪录评分获得了LEED白金认证。在设计这座建筑时,GCA Architects 将可持续性放在首位,并回应了项目基址的能源需求、阳光照射、城市环境和建筑功能。
The Platinum@BCN office complex, located in 22@, has been considered one of the most sustainable buildings in the world, obtaining LEED Platinum certification with a record rating of 101 points. When designing the building, GCA Architects prioritised its sustainability and responded to the energy requirements of the location, the incidence of sunlight, the urban environment and the building’s use.
▼建筑外立面,building facade ©Salva López
▼建筑仰视视角,an upward view of the building ©Salva López
根据亲生物性设计原则,该综合体拥有三个绿色区域,有助于减少其生态足迹并提升舒适度。建筑师还设计了两个露台作为聚会场所和户外休闲区域,而中心街区则充当这个典型工业区的绿肺,并为员工提供社交空间。其独特的设计让综合体内的所有工作空间都能享受户外景观和自然光,不但改善了人们的生活质量,还提升了员工的幸福感和生产力。
Conceived according to the principles of biophilic design, the complex has three green areas, which help to reduce its ecological footprint and to improve well-being. Two terraces act as a meeting place and outdoor area for workers, while the centre block acts as a green lung for this typically industrial neighbourhood and provides it with a space for socialising. The unique design allows all workspaces in the complex to enjoy outdoor views and natural lighting, which improves people’s quality of life and enhances levels of well-being and productivity.
▼为员工提供室外休闲空间的露台,terraces that act as outdoor space ©Salva López
▼位于架空层之上的露台,terrace on the overhead floor ©Salva López
▼露台下的公共空间,public space under the terrace ©Salva López
▼中心街区,the centre block ©Salva López
▼中心街区兼具“绿肺”和休憩功能,
the centre block serves as the “green lung” and recreational space ©Salva López
建筑外覆盖了一层铝板,作为双层表皮起到隔热作用,显著降低了项目的能源需求(Platinum@BCN比其他建筑物节省近45%的能源)。这座建筑还带有能够满足其全部电力消耗的光伏板,以及一个创新的热活性基础系统,将地热能整合到建筑结构中。
A layer of aluminium covers the building and acts as a double skin of thermal insulation, helping to significantly reduce energy requirements (Platinum@BCN saves almost 45% more energy than other buildings). The building has photovoltaic panels, capable of covering its entire electricity consumption, and an innovative thermoactive foundation system that integrates geothermal energy into the building’s construction.
▼建筑外立面近景,close shot of the building facade ©Salva López
▼建筑玻璃幕墙,glass curtain wall ©Salva López
▼玻璃幕墙近景,close shot of the glass curtain wall ©Salva López
在用水方面,日常工作中产生的中水被循环利用。建筑屋顶上有一个用于植被灌溉的雨水收集系统,在灌溉时不再需要饮用水,节省了 60% 的总用水量。此外,滴灌可提高灌溉效率,而雨水和湿度传感器则可以防止水资源浪费。
In terms of water consumption, grey water from domestic use is reused and there is a rainwater-retention system on the roof for use in vegetation. This saves 60% of total water and eliminates the use of potable water for irrigation. In addition, drip irrigation increases efficiency while rain and humidity sensors prevent water waste.
▼灌溉系统近景,close shot of the irritation system ©Salva López
建筑在材料选择上回应了全球变暖、臭氧层恶化和水酸化等问题,建筑材料中包括了当地的回收材料。施工时产生的几乎所有建筑废料都被回收利用。
For its construction, materials that take into consideration global warming, the deterioration of the ozone layer and water acidification were used, including locally sourced recycled materials, while almost all of the waste from the construction site was recycled.
▼室外铺装材料,outdoor pavement ©Salva López
▼一层平面图,ground floor plan ©GCA Architects
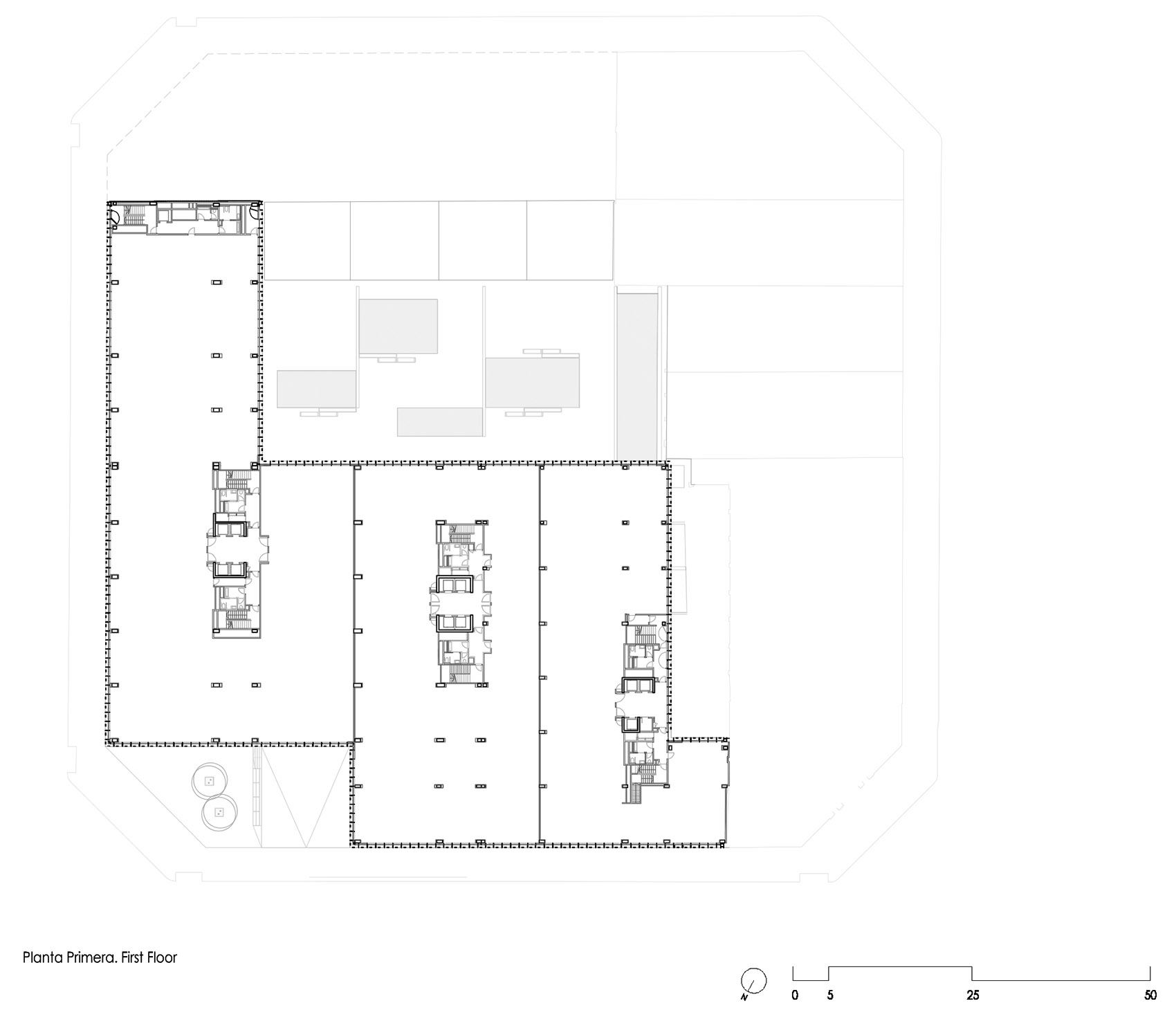
▼二层平面图,first floor plan ©GCA Architects
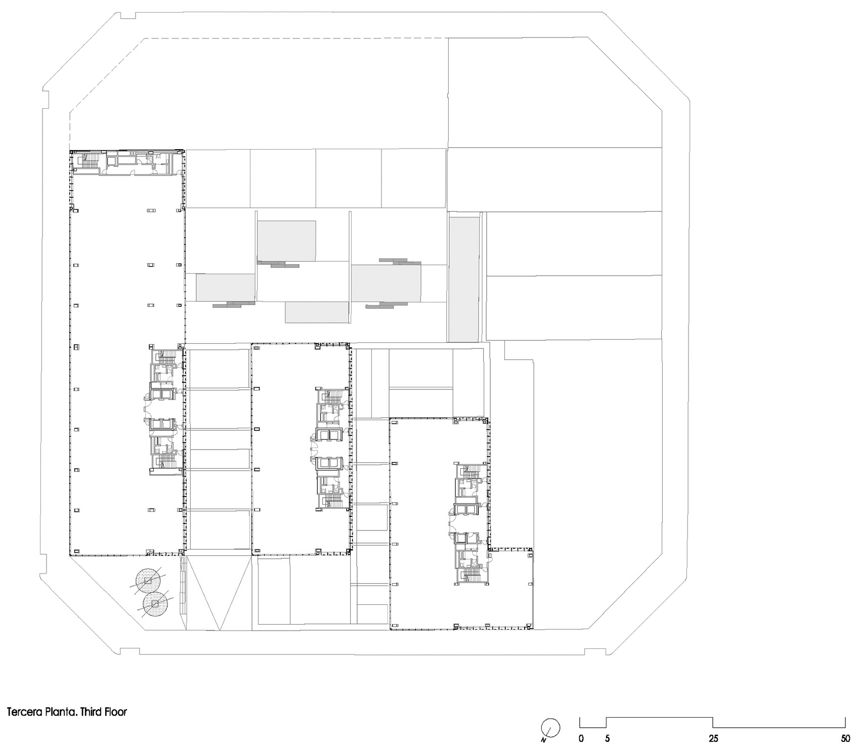
▼四层平面图,third floor plan ©GCA Architects
▼立面图,elevations ©GCA Architects
▼剖面图,sections ©GCA Architects
▼外立面细部,facade details ©GCA Architects
客服
消息
收藏
下载
最近





























