查看完整案例

收藏

下载
山中公寓坐落在风景秀美的低地,紧邻高尔夫球场,建筑群由东北侧山坡上的九栋建筑构成,将球场与自然风光尽收眼底。项目以低层共享别墅为概念,在10栋建筑中集合了35间客房,并按照上行和下行车道对平面进行了划分。这种按照不同车道进行的划分有利于让车辆便捷地入库,并能够直接停泊在公寓中,构成垂直方向的交通。
▼场地概览,overview of the site ©Yongkwan Kim
Mountain Stay was built on a low terrain next to the beautiful golf course. Mountain Stay refers to nine buildings built in a location where you can view the course and surrounding scenery using the slope on the northeast side of the golf course. A total of 10 buildings were built with 35 rooms under the concept of a low-rise shared villa collective house. It is divided into UPHILL type that goes up from the road along the driveway and DOWNHILL type that goes down from the road. This difference has the advantage of allowing vehicles to enter directly, park directly in the condo, and naturally link up and down heels with vertical movement.
▼山坡上的建筑组团,volumes on the slope ©Yongkwan Kim
公寓的内部装饰由有限的元素构成,保留了简洁奢华的氛围。室内使用桧木材料,最大限度地发挥出良好的隔热性能和香薰功效,为顾客营造出舒适宜人的居住空间。两间客房、宽阔的客厅窗户和口袋露台使人能够以放松的心情融入自然。
The internal finish basically maintains a concise yet luxurious internal atmosphere with 2-3 compositions. Hinoki wood, which was also used inside, maximizes the advantages of good insulation and aroma, creating an environment where visitors can relax in a comfortable atmosphere while staying at the Mountain Stay. Two rooms, a spacious living room window, and a pocket terrace help visitor to get relaxation and enjoy nature outside the stay.
▼街道视角,view from the street ©Yongkwan Kim
▼建筑立面,the facade ©Yongkwan Kim
▼看向车库,view of the garage ©Yongkwan Kim
▼立面细部,details of the facade ©Yongkwan Kim
室内装饰中所用的特制“韩纸”蕴含着韩国传统的东方之美,与日本进口的木材相匹配,共同营造出环保并奢华的内部氛围。局部暴露在外的丝柏木梁散发着香气,在室内空间与自然环境间建立起对话。这些厚重的木结构首先在日本设计成型,再作为预制构件在现场进行了组装,可承受6级抗震强度。墙体胶合板的饰面采用了含火山灰的材质,可为预防火灾提前做出反应。
The specially made Hanji used for the interior finish metaphorically expresses the tradition and oriental beauty of Korea, and the wood imported from Japan creates an eco-friendly function and a calm and luxurious atmosphere inside. The partially exposed hinoki beams guide the indoor atmosphere into nature with the scent. These heavy wood structures are wood which were imported as pre-cut manufacturing after completion of a basic structural design in Japan and are designed to withstand earthquake-resistant strength of 6. Plywood with a wall finish is a material containing volcanic ash and may initially respond to fires.
▼公共区域,living space ©Yongkwan Kim
▼睡眠区,bedroom ©Yongkwan Kim
外部木材的黑色漆面融入了平静的度假村风景,不会对周围景观造成视觉刺激。深色的木材与风景保持协调,散发着悠远的奢华气息。下层石材饰面高度光滑,即使转角的细节也没有采用切角或编织线。宽敞的停车场专为便捷停车而打造,上方天花铺设金属网格图案,为空间增添了一丝奢华。
The black painting finish of exterior wood captures the scenery of the calm resort without visual stimulation to the surrounding landscape. The dark color of the exterior wood blends with the scenery and exudes a profound luxury. The stone on the lower floor has a high-end finish without cutting corners or knitting lines even with corner details. The parking lot is spacious enough to make it easier to park, and the ceiling design is finished with grid-patterned metal sealing, adding luxury.
▼露台,the terrace ©Yongkwan Kim
▼浴室引入自然环境,bathroom with the view of landscape ©Yongkwan Kim
入口的楼梯以铰接形式与二层相连,构成了进入公寓前的仪式空间,楼梯的宽度顺应自然地形,形成了独特构图。
The staircases at the entrance to each condo on the second floor are hinged, designed to change the width appropriately to the natural terrain along the contour line, and arranged picturesquely in the natural terrain.
▼楼梯通向二层,stairs leading to the second floor ©Yongkwan Kim
▼细部,details ©Yongkwan Kim
为携带行李的游客与老年人安装的电梯以日本进口的丝柏制成,丝柏的香气使顾客在到达房间前就能体验到山间住宿的氛围。此外,独立设置的景观和以保宁石为底料的石雕经过精心设计,完美地装点了建筑空间。
The stairs leading up to the second floor are made like a kind of ritual space entering a condo. Elevators are installed in consideration of visitors with luggage or the elderly, and the interior of the elevators is finished with hinoki imported directly from Japan. Before entering the room, it is intended to convey the atmosphere of the mountain stay with the scent of the hinoki tree. The landscape which are not disturbed by the surrounding scenery and the stonework of Boryeong stone, are also carefully designed to match the building.
▼雪景,view in the snow ©Yongkwan Kim
▼屋顶细部,details of the roof ©Yongkwan Kim
▼设计草图,sketch ©Y GROUP
▼总平面,site plan ©Y GROUP
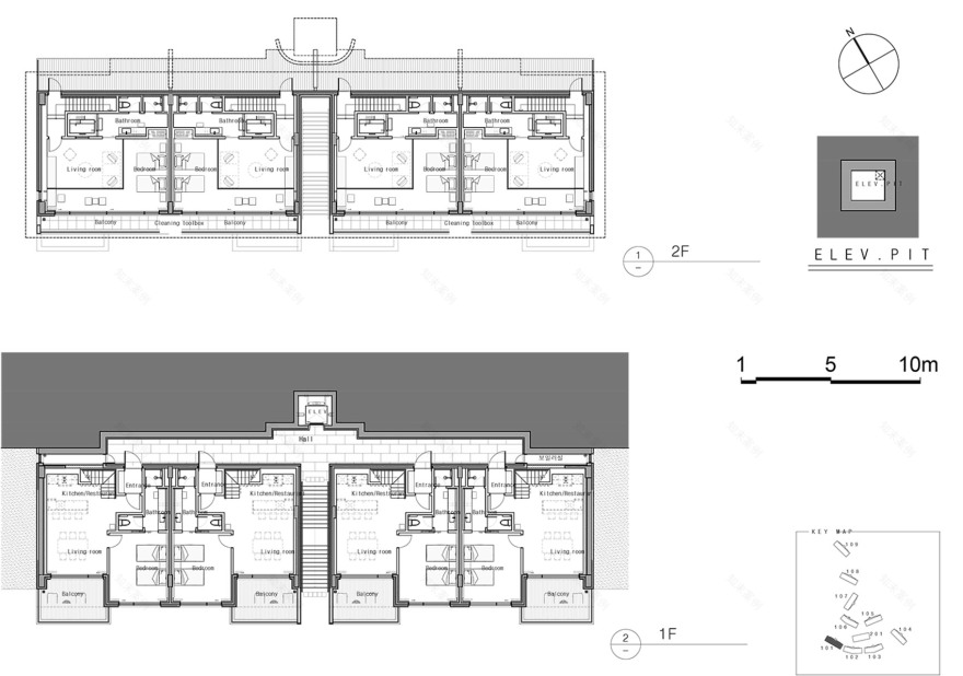
▼101号公寓平面,plans of 101 apartment ©Y GROUP
▼102 & 103号公寓平面,plans of 102 & 103 apartments ©Y GROUP
▼立面图,elevation ©Y GROUP
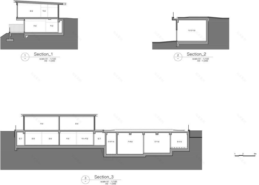
▼剖面图,section ©Y GROUP
Location : 510-104 Dongho-ri, Sonyang-myeon, Yangyang-gun, Gangwon-do
Program : Accommodations
Site area : 19,700㎡
Building area : 4,285.23㎡
Gross floor area : 10,164.64㎡
Building scope : B1, 2F
Building to land ratio : 21.75%
Floor area ratio : 35.64%
Principal architect : Jin Seok Yang
Photographer : Yongkwan Kim
客服
消息
收藏
下载
最近












































