查看完整案例

收藏

下载
严迅奇建筑师事务所为宝安文化综合体操刀设计的旗舰建筑表演艺术中心,已于9月17日于中国深圳隆重开幕。表演艺术中心位于文化综合体的南侧边界,紧邻滨海区,俯瞰前海湾和南海,面积达28,000平方米,除了拥有深圳首个配置达到国际级的歌剧表演厅,还设有一个600座场馆和排练设施,可举办歌剧、舞蹈、交响乐和戏剧等多种表演。
Rocco Design Architects Associates’s (RDA) Performing Arts Centre, flagship of the Bao’an Cultural Complex, opened on 17 September 2021 in Shenzhen, China. Overlooking Qianhai Bay and the South China Sea, the building anchors the southern end of the cultural complex. It houses Shenzhen’s first performance hall to be scaled and equipped for international operas, as well as a 600-seat venue and rehearsal facilities. The 28,000-square-metre building will host opera, dance, symphonies, and dramatic performances.
▼表演艺术中心位于文化综合体的南侧边界,The building anchors the southern end of the cultural complex © 张超建筑摄影工作室
表演艺术中心的设计灵感源自紧邻海湾的狭长基地。中心的底部是一个低层建筑,其波浪形态沿园区主轴打造出节奏感和动感,外立面的细腻穿孔设计则让人联想到中国传统工艺木雕和牙雕。立面设计为中心带来闪烁的视觉效果,就像是阳光照耀下闪闪发光的大海一样。
The design takes inspiration from the long and narrow waterfront site. The base of the building is a low-slung, wave-like volume that carries a sense of rhythm and movement along the campus’s axis. A delicately perforated facade hearkens back to ancient Chinese craft like wood and ivory carving and produces dramatic visual effects recalling light shimmering on the bay.
▼建筑外观,Exterior view © 张超建筑摄影工作室
▼立面细节,Facade detailed view © 张超建筑摄影工作室
功能上,立面设计能适度调节中心不同内部空间的通透度,比如包裹大堂等公共空间的立面通透开扬,而剧场和排练空间等密闭空间则善用立面较为不透明的部分。立面设计在外观和技术上都显得创新前卫,同时也紧扣中国传统建筑概念,如屏风和影壁等元素。
The scrim-like envelope modulates transparency according to the spaces it encloses, creating openings at the public lobbies and gathering areas and becoming more opaque at the theatres and rehearsal spaces. While formally and technically innovative, the facade concept is rooted in traditional Chinese building screens and shadow walls.
▼从文化园区望向建筑,View from the culture campus © 张超建筑摄影工作室
一个垂直倾斜15度的塔楼结构是整座建筑的焦点设计,令中心顿时成为园区的瞩目地标。塔楼与主建筑之间以天桥连接,桥上是俯瞰海湾美景的绝佳地点。中心底部设有高架柱廊式公共空间和聚集空间,而斜坡结构连接广场一端则设有一家餐厅,使中心向外伸延,与园区空间融为一体。
A fly tower tilted 15-degrees off the vertical creates a point-of-orientation that announces the centre as the focal point on campus. Sky-bridges connect the tower to the main volume, offering commanding views over the bay. Gathering areas and elevated porticos line the base of the building, and a restaurant sits at the end of a sloping volume that extends into the plaza, weaving the building into the larger campus.
▼倾斜15度的塔楼与主建筑之间以天桥连接,Sky-bridges connect the tilted tower to the main volume © 张超建筑摄影工作室
▼入口视角,View to the entrance © 张超建筑摄影工作室
中心入口是一个楼高三层的高耸大堂,外立面的波浪形设计进一步延伸到大堂空间,除了设有巨大的弧形楼梯和木条饰面的弧形墙壁,日光也从穿孔立面照进室内,形成光影交错的动感空间。
Visitors enter through a soaring triple-height lobby. A grand curving staircase and billowing walls finished with wooden slats continue the undulating character of the exteriors. Natural light from above filters in through the perforated facade, creating a lively play of shadow across the space.
▼大堂,Lobby © 张超建筑摄影工作室
▼外立面的波浪形设计进一步延伸到大堂空间 © 张超建筑摄影工作室 © 张超建筑摄影工作室
The interior design continues the undulating character of the exteriors
▼室内细节,Interior view © 张超建筑摄影工作室
主表演厅适合各种大型制作,包括歌剧、古典音乐和芭蕾舞表演等。具有雕塑感的墙壁不单突出表演厅的几何形状,也能通过背景降噪和强化音质为表演提供最佳的音响效果。舞台上设有六个双层升降机,能在十米范围内任意升降,为舞台制作开创了崭新的可能性。伴奏乐团的区域可以提升至主舞台的高度,方便扩充舞台。
The main performance hall will host high-profile productions of opera, classical music, and ballet. Its delicately sculpted walls accentuate the organic geometries of the space and optimize acoustic conditions by muffling background noise and enhancing sonic clarity. The stage comprises six double-layered lifts that can be raised and lowered within a range of ten meters, opening new production possibilities. The orchestra pool can be raised to the height of the main stage to extend the performance area into the house.
▼主表演厅,Main performance hall © 张超建筑摄影工作室
▼观众席局部,Spectator seats © 张超建筑摄影工作室
中心还设有一个600座的剧院,与主表演厅不同,剧院空间设计灵活,适合各种实验性制作。舞台和座位可以因应需要轻松改动,如时装秀、四面舞台、深浸式和互动式戏剧体验。
A 600-seat theatre complements the main performance hall. This space is designed for flexibility to accommodate experimental productions. The stage and seating can be easily rearranged, enabling catwalk, four-sided stage, immersive, and interactive theatre experiences.
▼剧院,Theatre © 张超建筑摄影工作室
▼排练厅,Rehearsal room © 张超建筑摄影工作室
▼表演艺术中心剖面图,Section – Performance Centre © Rocco Design Architects
▼主表演厅剖面图,Section – Performance Hall © Rocco Design Architects
▼声学设计示意,Concert Hall Auditorium © Rocco Design Architects
关于宝安文化区 | About the Bao’an Cultural District
宝安文化区落户深圳的新沿海开发区,为一个11万平方米的艺术表演综合体,其中包括刚落成的表演艺术中心。文化区由严迅奇建筑师事务所负责总体规划和建筑设计,包括表演艺术中心、图书馆和青少年宫三大建筑。图书馆和青少年宫分别于2013年和2018年竣工。
The Performing Arts Centre is part of the Bao’an Cultural District, a 110,000-square-meter arts and performance complex in Bao’An, a newly developed coastal area of Shenzhen. The project was masterplanned and designed by Rocco Design Architects and includes three major new destinations: the Performing Arts Centre, a Library, and a Youth Palace. The Library was completed in 2013 and the Youth Palace in 2018.
▼宝安文化区整体鸟瞰,Bao’an Cultural District – aerial view © 张超建筑摄影工作室
▼宝安文化区总平面图,An Cultural District – Masterplan © Rocco Design Architects
▼表演艺术中心总平面图,Bao’An Performing Arts Centre – Site Plan © Rocco Design Architects
▼功能区分布示意,Diagram – Functions zoning © Rocco Design Architects
▼功能体块分布示意,Diagram – Functions © Rocco Design Architects
▼交通流线示意1,Diagram – Traffic 1 © Rocco Design Architects
▼交通流线示意2,Diagram – Traffic 2 © Rocco Design Architects
▼表演艺术中心一层平面图 © Rocco Design Architects
Bao’An Performing Arts Centre – Plan – Level 1 Ground
▼表演艺术中心二层平面图 © Rocco Design Architects
Bao’An Performing Arts Centre – Plan – Level 2
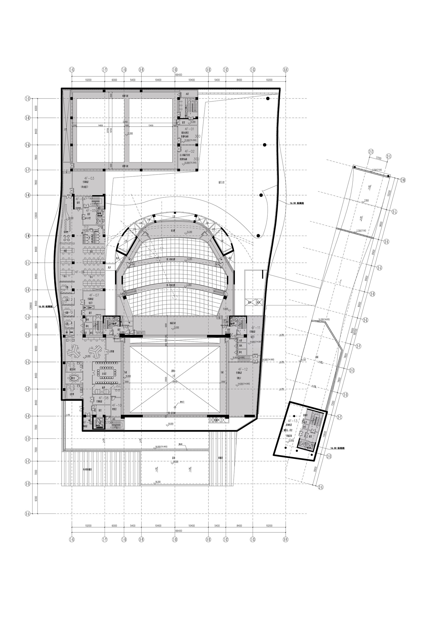
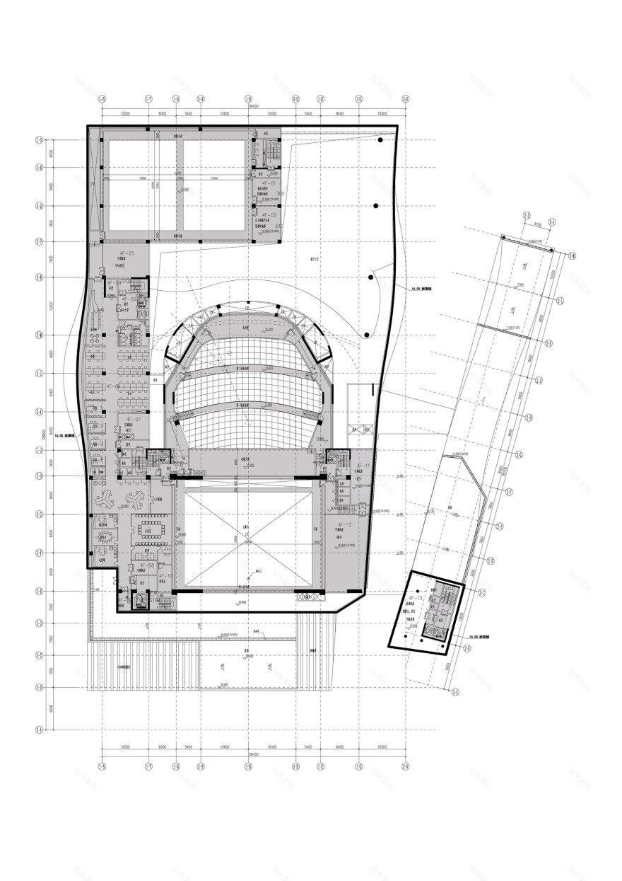
▼表演艺术中心三层平面图 © Rocco Design Architects
Bao’An Performing Arts Centre – Plan – Level 3
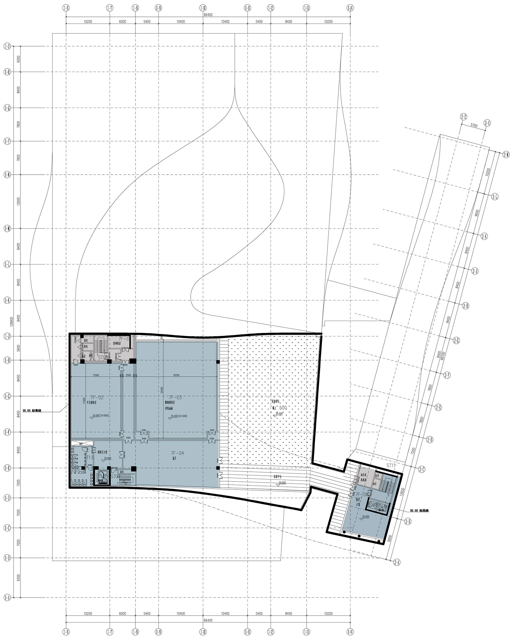
▼表演艺术中心七层平面图 © Rocco Design Architects
Bao’An Performing Arts Centre – Plan – Level 7
表演艺术中心设计团队
Performing Art Centre Design Team
Rocco Yim , Derrick Tsang, William Tam, Herbert Hung ,Martin Fung, Lucia Cheung, Stephen Chan, Simon Ho, Calvin Chung, Ivy Yung, Zachary Wong , Zhu Yi, Seah lee, Jans Liang, Leo Zhou, Chen Lan, Amber Wang, Yang Shi Pei
表演艺术中心合作单位
当地设计院:北京市建筑设计研究院
机电﹕北京市建筑设计研究院
立面顾问:BuroHappold
景观:SWA
业主:OCT
Performing Art Centre Project Credits
Local Architect: BIAD
E/M: BIAD
Façade Consultant: BuroHappold
Landscape: SWA
Client: OCT
媒体联络: jfg@jfg.global
客服
消息
收藏
下载
最近















































