查看完整案例

收藏

下载
在首尔最繁华的江南区三成洞中心区域,GL associates公司总部“竹塔”以结合“空间、设计师、期望”的理念屹立在密集的建筑群中。江南区目前已有数不胜数的大大小小的办公室和联合办公空间,而我们的目标是创造出对使用者产生良好影响并且区别于这些建筑的大楼。我们关注不同人群在这里聚集的场所特性,深入思考通过挖掘“偏好”这一关键词来打造空间。“竹塔”正是这些想法的成果,它是一个涵盖工作空间、租户办公室、竹林、各种便利及文化设施的共享办公楼。
The Bamboo Tower, which is the headquarters of GL associates begins with a concept that combines ‘Space, Designer, Desired’, a space desired by designers’, within the small site between the other buildings that are compactly arranged in the middle of Samseong-dong, Gangnam-gu, the most urban place in Seoul. At present, there are countless large and small offices and co-working spaces in Gangnam-gu. We aimed to create a building that can exert a good influence on users by differentiating it from these buildings. Focusing on the placeness of various people gathering here, we thought deeply about forming a space by deriving the keyword ‘preference’. Bamboo Tower is a result of these thoughts, and is a shared office where the Work Space, the occupant’s office, and Bamboo Collection, various convenience and cultural facilities, coexist.
▼区位鸟瞰,aerial view of the site ©Sergio Pirrone
▼“竹塔”屹立在城市楼群之中,“Bamboo Tower” stands among the urban buildings ©Sergio Pirrone
每层楼提供的空间都是可以灵活使用的,它们考虑了不同使用者的工作方式和使用方式。其中,协作空间是向个人和企业开放的办公空间、汇聚各种生活方式的文化艺术空间,也是人们边联合办公边共享信息、技术和想法的合作交流空间,除此之外,这里还设有竖向研讨空间、可以根据需求进行改变的多功能空间、有助于通风和自然采光的休息空间,该休息空间同时也是餐厅和联合办公空间之间的过渡空间。
▼剖面图,sections ©UNSANGDONG Architects Cooperation
The spaces provided on each floor are flexible spaces that have considered the various work styles and lifestyles of the users. The collaborative space, which is an open-type office for individuals and companies as well as a space for culture and art where various lifestyles gather, is a space of collaboration and exchange where people share the office and work together while freely sharing information, technology, ideas, etc. A vertically extended seminar space, a multipurpose space that can change according to the needs, and a resting space that helps ventilation and natural light and is a transfer space between the restaurant and collaborative space are included.
▼塔楼一瞥-内部包含多样办公空间 ©Sergio Pirrone
a glimpse of the tower- the interior contains diverse office spaces
“竹塔”的每层楼都包含多种功能,并且通过多个特定楼层分配不同的办公及使用方式来供给差异化空间,展示出这里特有的共享办公空间。这也体现在建筑设计中,每个空间的特点均能从外部看到,立面表皮像包块一样,有层次地环绕在建筑外部,随着室内光线而熠熠生辉,它使塔楼如同梯子一样接入云端,而在塔楼中央,则有一片小小的竹林。
▼立面图,elevations ©UNSANGDONG Architects Cooperation
Each floor contains various programs, and by providing a differentiated space where the various work styles and lifestyles can be shared on a number of specific floors, Bamboo Tower’s unique special shared office is presented. This was also expressed in the building’s design to allow the characteristics of each space to be seen on the exterior. The elevation, which is surrounded in a way that resembles a lump within the city center being rhythmically banded, shines as the light of the interior space is emitted to the outside. It projects the space like a staircase that ascends above the clouds. In the middle, a small bamboo forest can be found.
▼层次划分明显的立面结构,facade with distinct levels ©Sergio Pirrone
▼塔楼中央设置小片竹林,the small bamboo forest in the middle of the tower ©Sergio Pirrone
▼仰视竹林,looking up at the bamboo forest ©Sergio Pirrone
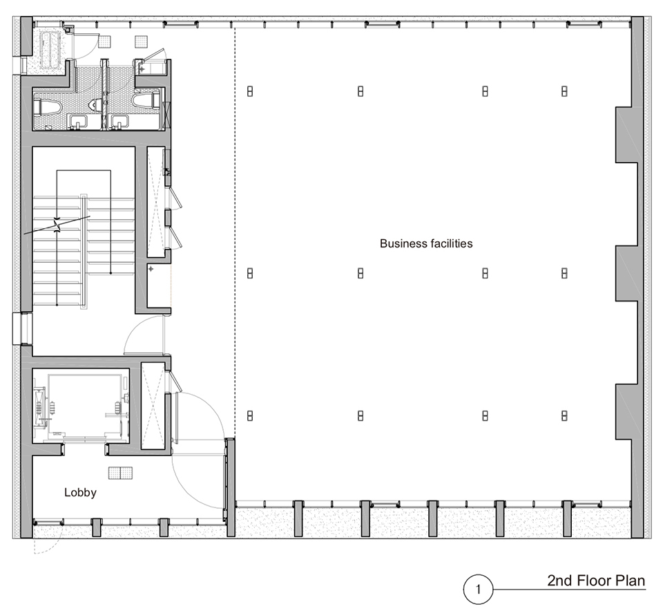
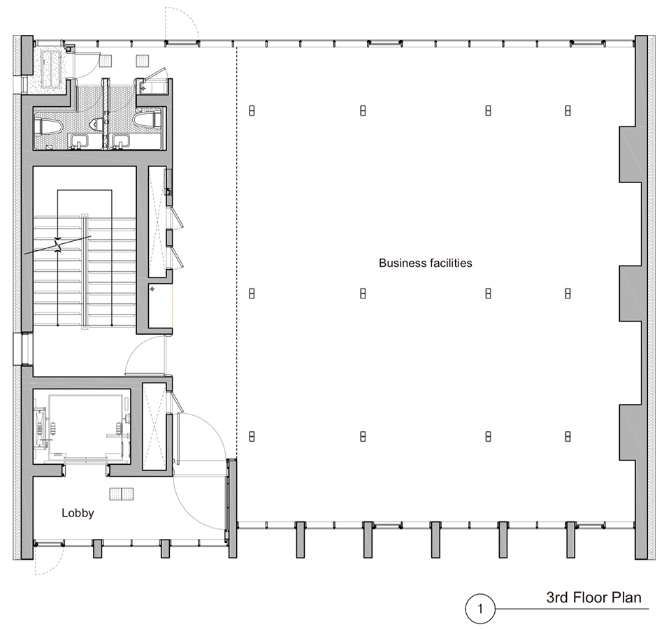
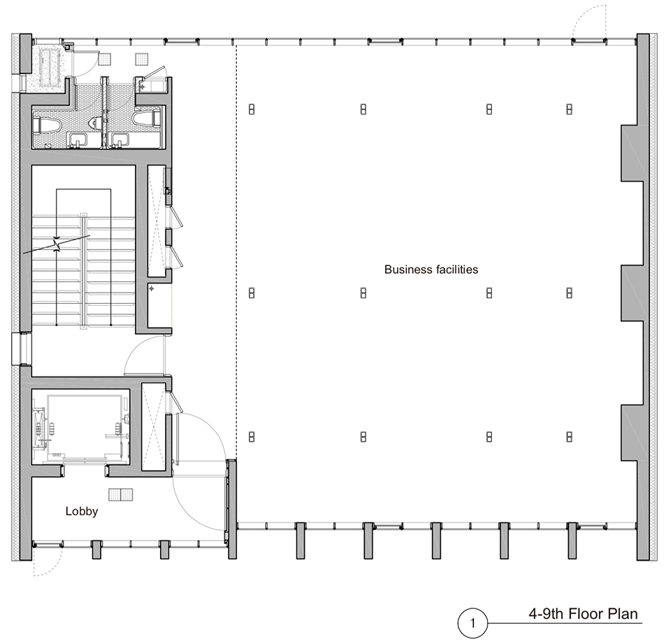
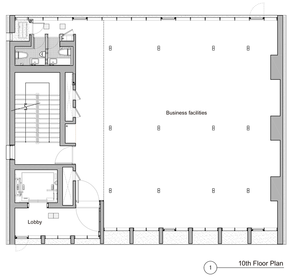
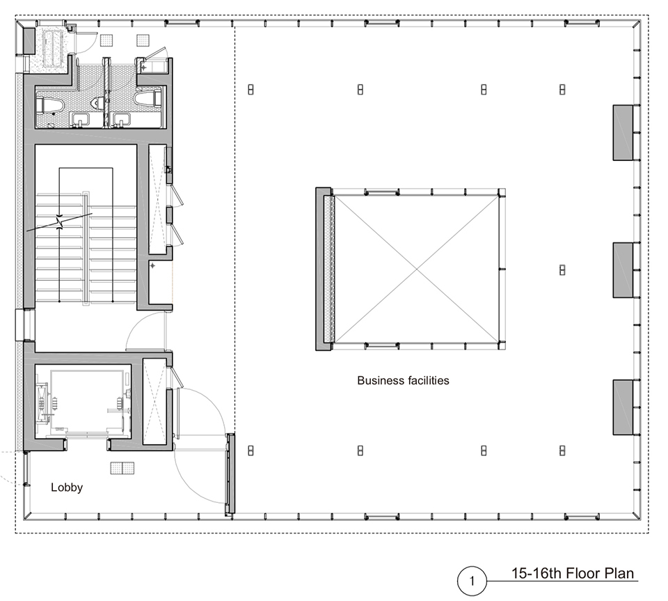
至于各楼层的功能,地下二层的竹子工作室是一个创意空间,每个使用者都可以在这里创作自己的内容,也可以举办工作坊或研讨会等创意活动。地下一层的“竹剧场和画廊”是为各种文化活动和社区活动而优化的空间,可以用于观看各种外国艺术家和新兴艺术家的作品、放映视频和举办讲座等。地上一层的咖啡厅具有竹塔带来的独特氛围,不仅区别于其他咖啡厅,而且提供了便利和休闲放松的空间。二至十二层是普通办公空间,为各种企业及个人提供办公场所。十三层的“竹空间”由会议室和开放办公桌组成,其中开放办公桌为需要办公地点的个人及商户提供了实体办公地点。最后,十四层至十六层被规划为GL公司自己的办公楼层。
▼开放的办公空间,open office space ©Sergio Pirrone
▼良好的采光与视野,excellent daylighting and view ©Sergio Pirrone
▼低层办公空间,lower office space ©Sergio Pirrone
▼由屋顶花园望向城市,the city from the roof garden ©Sergio Pirrone
As for the programs on each floor, the Bamboo Studio on the second basement floor is a creative space where each user can create their own contents or creative activies such as workshops or seminars can be held. The Bamboo Theater and Gallery on the first basement floor are spaces optimized for various cultural activities and community activities such as viewing the works of various outside artists and rising artists using Bamboo Space, screening videos, and holding lectures. The cafe on the first floor is a space with the unique atmosphere created by Bamboo Tower that can differentiate itself from other cafes, and it is a space of relaxation that provides users with convenience and a place to rest. The second to twelfth floors are general office spaces that provide office spaces for various businesses and individuals. The Bamboo Space on the 13th floor consists of meeting rooms and open desks, and the open desks provide a virtual office in the business-centered Samseong-dong for individuals and businesses that need business addresses. Lastly, the 14th to 16th floors were planned as the office building of GL.
▼夜景,night view ©Sergio Pirrone
▼一层平面图,1st floor plan ©UNSANGDONG Architects Cooperation
▼二层平面图,2nd floor plan ©UNSANGDONG Architects Cooperation
▼三层平面图,3rd floor plan ©UNSANGDONG Architects Cooperation
▼四至九层平面图,4-9th floor plan ©UNSANGDONG Architects Cooperation
▼十层平面图,10th floor plan ©UNSANGDONG Architects Cooperation
▼十五至十六层平面图,15-16th floor plan ©UNSANGDONG Architects Cooperation
▼屋顶层平面图,roof floor plan ©UNSANGDONG Architects Cooperation
Location: 449, Bongeunsa-ro, Gangnam-gu, Seoul, Republic of Korea
Program: Office, Shop
Site area: 348.50㎡
Building area: 196.56㎡
Gross floor area: 2,787.11㎡
Building to land ratio: 56.40%
Gross floor ratio: 799.74%
Completion Year: 2018
Photographer: Sergio Pirrone
客服
消息
收藏
下载
最近































