查看完整案例

收藏

下载
项目位于马德里郊区一个800平方米的地块上,以单户住宅为其特色。根据当地城市法规,该地块可以建造三栋半独立式别墅。但设计师则提出建造一栋三层的建筑,每一层为一户住宅。当地独特的半独立式别墅通常面积较小,高度为三层甚至四层。这座建筑提出了空间富余的单层住宅,伴有宽敞露台,大型窗户以及一个共享花园。借此,设计师消除了不必要的交通流动空间(楼梯、走廊、配电器和门厅),并获得了整个平面以作为生活空间。
Located in a suburban area of Madrid characterized by single-family houses, the 800 sq. m. plotand urban regulations allowed the construction of three semi-detached houses. Instead of this, a three-story building with one house per floor is proposed. Compared to the characteristic semi-detached houses of the neighborhood, with small floor areas and organized in three and even four floors, this building alternatively proposes spacious houses organized on a single floor with large terraces, XL windows and a shared garden. Therefore circulation and server spaces are eliminated (stairs, corridors, distributors and foyers) and the entire surface is gained for living areas.
▼建筑外观,exterior appearance ©Montse Zamorano
▼宽敞的露台和花园,spacious terrace and garden ©Montse Zamorano
项目为平层住宅堆叠而成的建筑开发了一个通用模型。每个住宅户型都以下一层的户型为基础旋转和移动,形成了一系列螺旋上升的平台,避免了每层户型与下层户型直接对视。交通核心被分割为一个穿过房屋的电梯和一个围绕建筑盘旋上升的外部楼梯。由于每层户型的位移和旋转,这两种垂直交通方式在不同楼层上的位置有所区别。因此,每个户型都是独特的。尽管都采用相同原型,但它们都适应了各自在整座建筑中的特定位置。
The project develops a generic model for house stacking in which each house occupies the entire floor of the building. Each house displaces and rotates from the position of the one below, generating a series of terraces that spiral up, avoiding from looking down the one immediately below. The communication core is fragmented into an elevator that passes through the houses and an exterior stair that surrounds them as it ascends. These two elements vary their position on the different floors due to displacements and rotations. Each house is therefore different. Although they all share the same typological scheme, they are adapted to their specific position within the complex.
▼建筑形体生成,generation process of typology ©Montse Zamorano
▼交错的楼层户型,staggered plans ©Montse Zamorano
▼外部楼梯近景,close shot of exterior stairs ©Montse Zamorano
建筑没有使用柱子或其他支撑构件,而是采用裸露混凝土板墙作为支撑,整个建筑的外壳就是它的承重结构。借此,设计师获得了13.5 x 13.5平方米的宽敞平面。其墙壁不单是建筑外表皮,更是如同超大号的横梁一般支撑每层空间的跨度。上下层墙壁方向相反,相互平衡,像是一座纸牌屋,楼板的四边中两边由下方墙壁支撑,两边悬挂在上方墙壁下,保证整体建筑的稳定。两根横梁作为结构的收尾,将平面划分为 3 个部分。除了确定露台和整个体量的空间形状,支撑结构还决定了住宅的功能组织。中部横梁形成的带状空间内容纳了所有服务设施,机械设备则隐藏在上方的木制天花内。两面外墙分别划分卧室和起居区,将混凝土楼板从吊顶和设备中解放出来,恢复完整的3米层高。
The structure made of exposed concrete slabs and walls is solved without pillars or supports apart from the outer envelope. The outer case is therefore the whole structure, obtaining free plans of 13.5 x 13.5m. The walls, which constitute the facades, cover the span functioning as XL beams. These walls, that counterbalanced their direction on each floor like a house of cards, ensure the stability of the whole building. The slabs thus rest on their four sides (two supported and two hung from the walls of the upper floor). Two beams divide the plan into 3 bands and complete the structure. It is in fact the structure which, in addition to determining the spatial configuration of the terraces and the whole volume, determines the functional organization of the dwellings. The central strip delimited by the beams includes all the services, hiding mechanical facilities above a wooden technical ceiling. The two outer bands arrange bedrooms and living areas respectively, allowing concrete slabs to be released from ceilings and facilities, and recovering the whole 3m height.
▼沟通室内外空间的窗户,windows that connect interior and exterior spaces ©Montse Zamorano
▼支撑楼板的混凝土墙壁,concrete wall that supports the upper floor ©Montse Zamorano
▼伴有宽敞露台的住宅,interior with spacious terrace ©Montse Zamorano
▼以横梁分隔的室内空间,interior spaces divided by the beams ©Montse Zamorano
▼被释放出完整层高的室内空间,recovered interior space with whole height ©Montse Zamorano
▼隐藏机械设备的木质天花板,wooden technical ceiling that covers mechanical facilities ©Montse Zamorano
▼夜间远景,night view ©Montse Zamorano
▼轴测图,axonometric drawing ©Bojaus
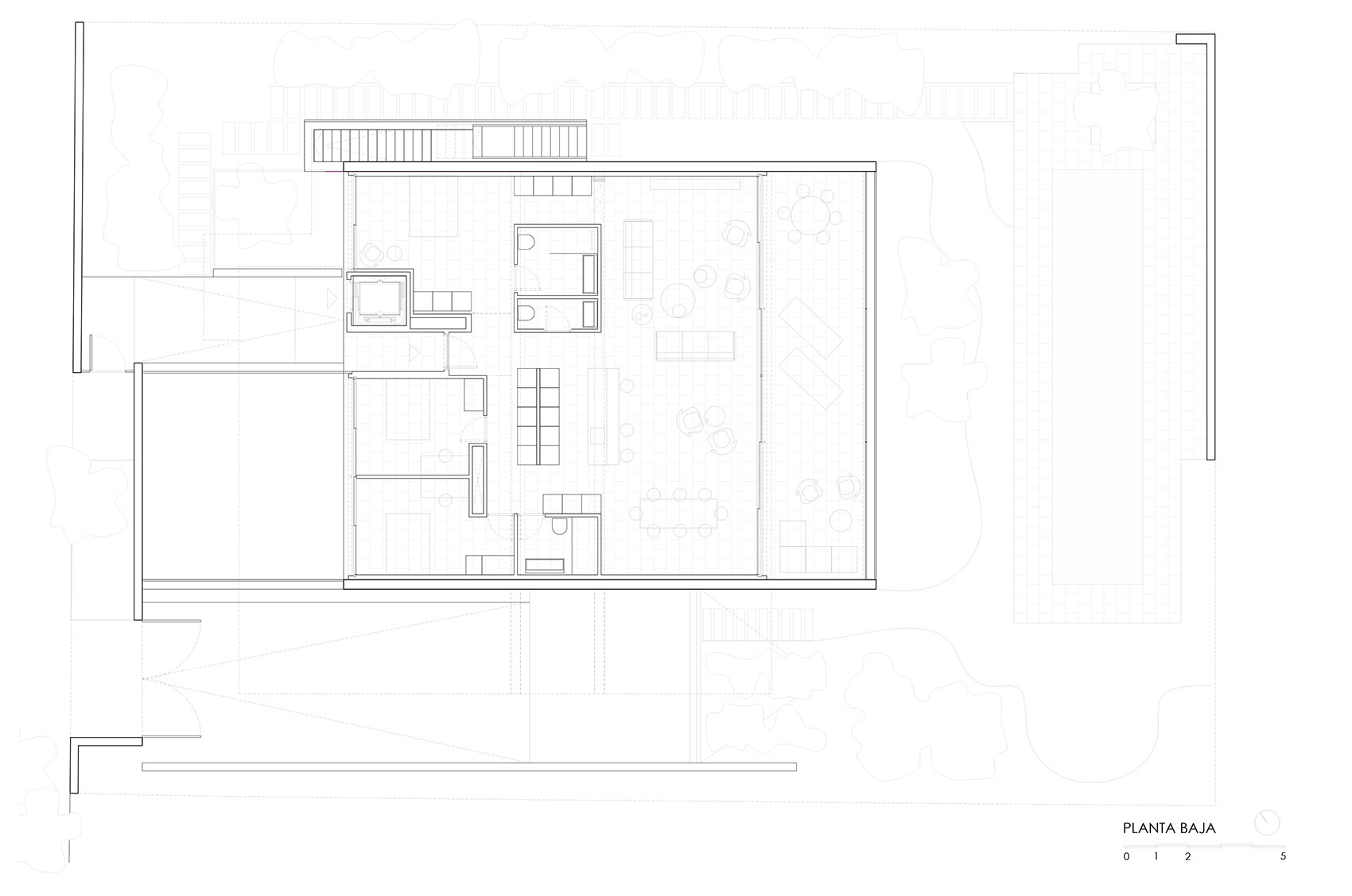
▼一层平面图,first floor plan ©Bojaus
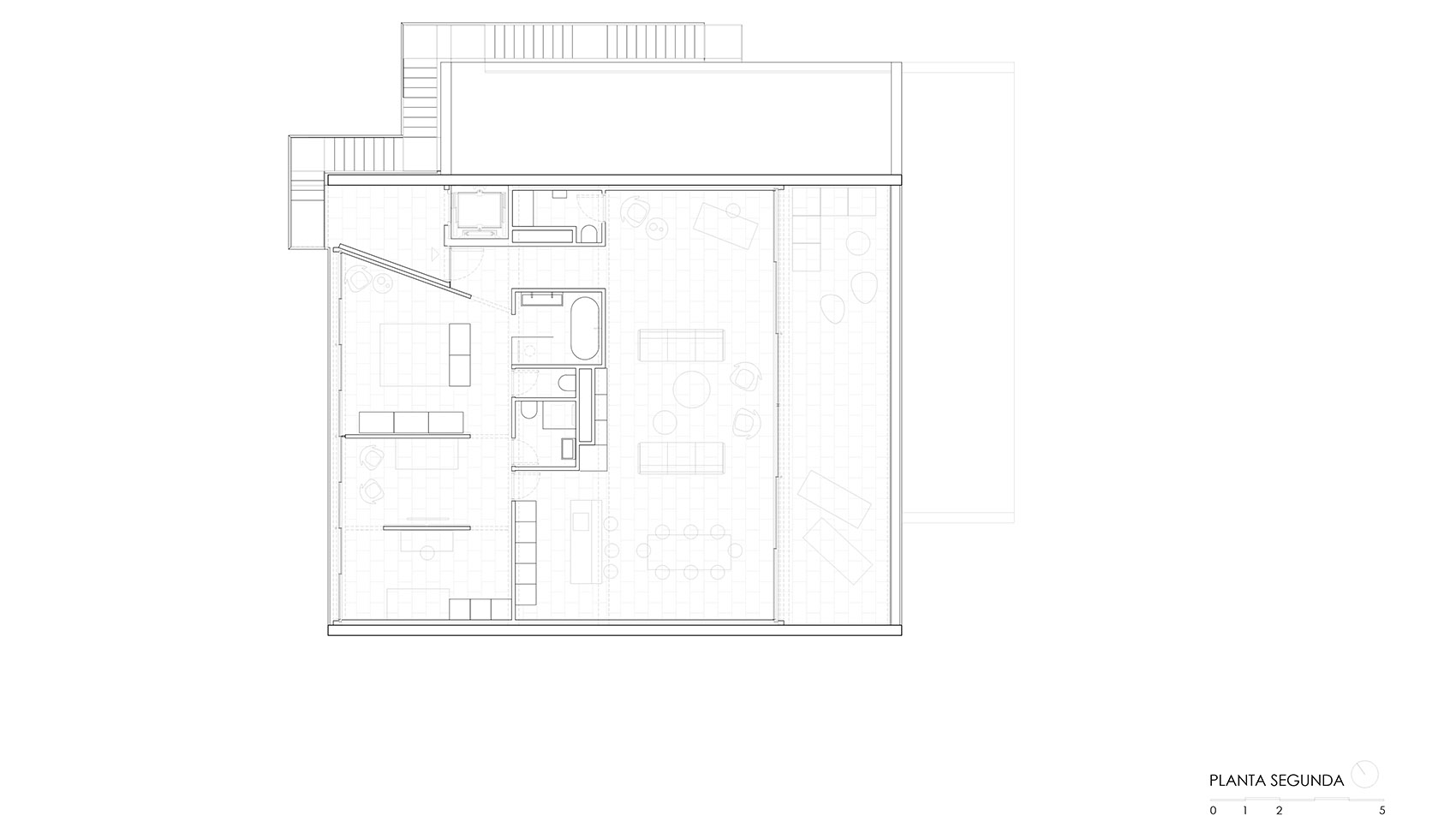
▼二层平面图,second floor plan ©Bojaus
▼三层平面图,third floor plan ©Bojaus
▼立面图,elevation ©Bojaus
▼剖面图,section ©Bojaus
Architects: Ignacio Senra, Elisa Sequeros
Collaborators: Jorge Gabaldón (architect), Ignacio Buzzanca (building engineer), Bernabéu Ingenieros (structure), Valladares (mechanicals)
Photography:Montse Zamorano
客服
消息
收藏
下载
最近

























