查看完整案例

收藏

下载
项目坐落于町田药师池公园“四季彩之森”园林内,该公园拥有物种丰富的植被、花卉以及小型野生动物,每年能吸引高达70万名市内外人士前来观赏季节风光。该游客中心则是由町田市发起并由指定管理者运营的园内公共设施。
The operator of this case study is Machida City, and it is a public facility operated by a designated manager. In the Shikisai-no-Mori area of Yakushi-ike Park, where this facility is located, many parks with specialized contents such as flowers, plants, and small animals, and as many as 700,000 people from inside and outside the city visit the area every year to enjoy the seasonal scenery.
▼“四季彩之森”鸟瞰,bird’s eye view of the Shikisai-no-Mori area © Makoto Yoshida / Yoshida photo studio
▼项目鸟瞰,aerial view of the project © Makoto Yoshida / Yoshida photo studio
园区景观规划的核心旨在恢复当地的森林系统,除了使场地上的灌木丛再生外,还种植了约1万棵树苗与其他植被。建设过程中砍伐的木材与场地上的落叶将被临近的农场回收再利用。从灌木丛的种植到管理,通过逐持续的人为干预,当地的景观条件将不断慢慢改变。通往园区的小径坐落在缓坡之上,游客们可以在高出游客中心大约20米的山丘上,欣赏山坡和周围地区的景色,感受灌木丛的生长。
▼游客中心西北侧的景观设计,Landscape design for the northwest side of the project © Makoto Yoshida / Yoshida photo studio
The landscape plan calls for the regeneration of the wooded areas that once covered the area, and about 10,000 saplings and plants have been planted. The thinned wood and fallen leaves will be used in a farm on the adjacent land. From the cultivation to the management of the thickets, human hands will continue to add to the landscape, which will continue to change slowly. The path is a gently sloping path with no handrail, allowing visitors to come and go at a height difference of about 20 m to enjoy the view of the hillside and the surrounding area and feel the growth of the thicket.
▼由山丘看建筑,viewing the project from the hill © Tomooki Kengaku
项目的核心旨在为公园打造一个功能全面的旅游设施,作为町田药师池公园“四季彩之森”园区的核心,将公园内其他不同的园区联系在一起,进而提高公园知名度、吸引更多客流量。通过将“四季彩之森”园区打造成整个公园的品牌IP,开启当地公共设施总体规划战略的新篇章。
This project aimed to develop a complex facility that would serve as the core of the Shikisai-no-Mori area of Yakushi-ike Park, which consists of several parks, and to improve the recognition and circulation of the area. The branding of the area as a single park was used to plan the role of the facilities.
▼分散式的独立建筑与道路以及场地环境融为一体,The decentralized individual buildings are integrated into the road and site environment © Tomooki Kengaku
▼流畅的游览路线营造出步移景异的效果,Pleasant tour routes provide an experience suited to each location © Tomooki Kengaku
▼园区中心的台阶式室外休闲空间,Dandan terrace © Tomooki Kengaku
设计旨在避免大规模的建设与开发,通过将场地划分为不同区域,并采用分散式的独立建筑形式,使建筑与道路以及场地环境融为一体,营造出流畅的游览路线,使场地内的每个角落都拥有自己独特的性格,进而为游客们提供丰富且适宜的体验。在总体规划中,建筑师将各种功能分散到不同的独立建筑体量中,创造出如村落一般的协调感。丰富的绿植与鳞次栉比的建筑彰显出鲜明的日式空间特征,为游人们提供了愉悦的步行体验。
By dividing the site into separate buildings, I aimed to avoid large-scale development, blend the buildings and the street into the site, create a sense of circulation, and provide an experience suited to each location. In the architectural planning, we thought that by dividing the building into separate buildings, we could create a sense of unity like a village. The greenery and overlapping buildings over the buildings would understand the depth of Japanese spatial characteristics and pleasure walking.
▼日式传统村落般的整体氛围,Japanese traditional village-like overall atmosphere © Tomooki Kengaku
▼街巷式的空间为游人们提供了愉悦的步行体验,The alley-like space provides a pleasant walking experience for visitors © Tomooki Kengaku
▼统一协调的单体建筑风格,Unified and coordinated single building style © Tomooki Kengaku
▼建筑与景观融为一体,The building is integrated with the landscape © Tomooki Kengaku
▼黑色松木外墙与山墙,outer wall of a black cedar board with a gable © Tomooki Kengaku
尽管场地中的建筑群是分散的,但是统一的黑色雪松板外墙以及重复且具有极强识别性的山墙形式,却为建筑群赋予了统一和谐的整体氛围。此外,考虑到建筑之间的位置关系,以及建设过程所需的时间,分散的形式与统一的外观为同时建造这些建筑提供了条件,大大提升了建造的效率。
The building itself was not completed in a single building. Still, it was designed as an outer wall of a black cedar board with a gable that was easy to reproduce (brand expression) so that it could be developed in the same park when considering the time base, as well as considering the relative building relationship of several buildings.
▼廊下空间模糊了建筑与景观的界限,The corridor space blurs the boundary between architecture and landscape © Tomooki Kengaku
▼由外走廊看庭院,viewing the courtyards from the corridor © Tomooki Kengaku
▼室外走廊,outdoor corridor © Tomooki Kengaku
设计师认为通过将尺度亲人的建筑体量与稍大尺度的建筑相结合,能够更好的为游客们提供符合空间功能的服务体验。通过将建筑分散在整个场地上,以一种亲切的尺度规模将建筑与景观融为一体,创造出平视、仰视、俯视等不同观赏视角,丰富了人们在场地中漫步时的空间体验,放松了人们的心情。
I thought that by combining human-scale architecture with slightly larger-scale architecture, it would be possible to provide different experiences that match the functions of the brand. By scattering the buildings throughout the site on a non-intimidating scale, various places can be created. From these places, looking up and down, various visual experiences can be had, and together with the overall landscape, the plan becomes a pleasure to walk through.
▼餐厅,restaurant © Tomooki Kengaku
▼大面积的开窗为餐厅引入了良好的光线与景观视野,Large Windows bring light and views to the restaurant © Tomooki Kengaku
▼休息室,lounge © Tomooki Kengaku
▼农产品商店,Produce store © Tomooki Kengaku
▼入口门厅,entrance hall © Tomooki Kengaku
▼走廊与天窗,hallway and skylight © Tomooki Kengaku
▼夜景,night view © Tomooki Kengaku
▼总平面图,master plan © N.YAMADA ARCHITECT & associates + Studio terra
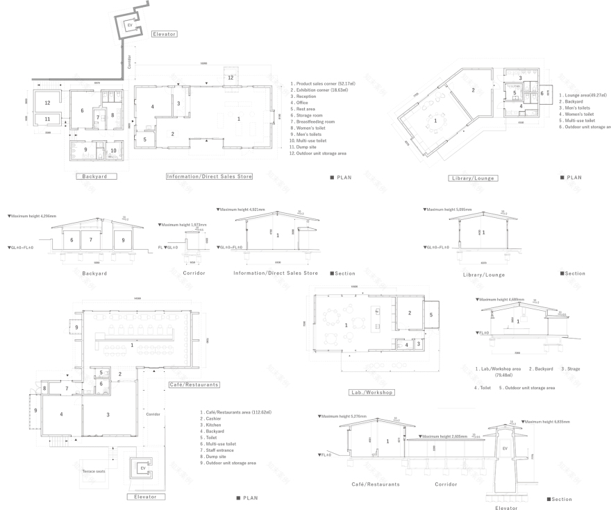
▼平面图,plan © N.YAMADA ARCHITECT & associates + Studio terra
▼细部详图,detail drawings © N.YAMADA ARCHITECT & associates + Studio terra
客服
消息
收藏
下载
最近









































