查看完整案例

收藏

下载
项目背景
Project Context
古劳水乡位于江门市美丽的西江边,水网密布,以围墩的自然肌理而闻名。宾客中心项目作为整个水乡生态区的起点,旨于传承地域水乡生态自然的特色,活化演绎水乡形象。
Gulao Water town is located beside the beautiful Xijiang River in Jiangmen city. It is famous for its natural texture surrounding the piers. As the starting point of the whole water town ecological area, the guest Center project aims at inheriting the ecological and natural characteristics of the regional water town and activating and deducing the image of the water town.
▼围墩水乡自然肌理,The natural texture of the water town around the block ©古劳水乡
▼匍匐于西江边,Prostrate by the West River © 胡康榆
▼项目鸟瞰,Aerial view of the project © 胡康榆
设计策略
Design Strategy
基于江门古劳当地特色原生态元素,我们提取了诸多在地基因植入我们的设计中,旨于寻求水乡予人的本源认知和初始印象——纯真自然,生态原始。
Based on the original ecological elements with local characteristics in Jiangmen Gulao, we extracted many local genes and inserted them into our design, aiming to seek the original cognition and initial impression of the water town — pure nature and ecological primitive.
▼项目航拍顶视图,Aerial top view of the project © 胡康榆
设计正向思考——代表本土人文艺术的表现形式,应扎根于创作的土地本身
设计逆向思考——从水里生长出的某种物质,是否可以象征着本土文化从历史积淀中走近现代
Positive thinking in design — representing the expression form of local humanities and art, should be rooted in the land of creation itself.
Reverse thinking in design — whether a certain substance grown from the water can symbolize the local culture from the historical accumulation to the modern.
▼建筑与景观相融,Architecture integrates landscape © 胡康榆
设计概念:风吹荷动
Design Concept: Lotus Shake Under Light Breeze
本案设计灵感源自于古劳水乡荷塘水道的行船体验。炎炎夏日,在荷叶丛中看着风吹荷动,感受着微风拂面,轻松惬意。古劳水乡宾客中心,立体化抽象了荷叶褶皱的肌理,为四方宾客营造了驻足停留、远眺西江,以及放松冥想的公共休憩空间。
The design inspiration of this case is derived from the sailing experience of lotus pond waterway in Gulao Water town. In hot weather, watching the wind blowing in the lotus, feeling the breeze on your face, it is relaxed and comfortable. Gulao Water Town Guest Center abstracts the folds of lotus leaf in three dimensions, creating a public rest space for guests to stay, overlook the West River, and relax to meditate.
▼穿行古劳荷花世界,Walk through the Gulao Lotus World ©古劳水乡
▼设计草图,Design sketch © 深圳华汇设计
▼生态中庭,Ecological atrium © 胡康榆
打破荷叶原有的均质感,根据场地景观价值需求以及视觉焦点,进行“有机修剪”,缔造出一个规整且灵动的趣味空间。
Break the original uniform texture of lotus leaves, according to the site landscape value needs and visual focus, “organic pruning”, to create a neat and flexible interesting space.
▼麻绳材料形成光影交织的灰空间,Hemp rope shading materials form gray space © 胡康榆
▼北侧景观视角,The north landscape © 胡康榆
宾客中心整体由“上观景区,中休憩区,下展览区”三个截然不同的尺度空间组合而成,外观简洁清晰,内行步移景异。
The guest center is composed of three distinct scales: “viewing area on the top, rest area in the middle and exhibition area on the bottom”. The appearance is simple and clear, and the scenery is different for professionals to walk.
▼三层观览区,The third floor © 胡康榆
▼展览层远眺古劳围墩,Exhibition floor overlooking Gulao encircling piers © 胡康榆
▼展览层远眺西江
The exhibition floor overlooking the Xijiang River © 胡康榆
屋顶采用当地天然材料麻绳遮阳,在保证了整体建筑完整性的同时,将地域生态的材料用现代悬挂的形式呈现,提升了屋顶观览区的观赏性,使整个建筑也成为了一道靓丽的风景线。
The roof uses local natural material hemp rope to shade the sun. While ensuring the integrity of the whole building, the regional ecological material is presented in the form of modern suspension, which enhances the appreciation of the viewing layer and makes the whole building a beautiful scenery.
▼生态中庭灰空间,Ecological atrium grey space © 胡康榆
▼冥想空间,Meditation space © 胡康榆
营造冥想与静心思考的核心空间,自下而上、内重外轻的视线向上牵引,是本设计场所精神性营造的核心用意。置身其间,看着浮云流动,让人忘却外部世界的喧嚣,聚焦于眼前纯净的视界。
The core intention of this design is to create a core space for meditation and quiet think, and to draw upward from the bottom up and the heavy outside light. Standing there and watching the floating clouds, one can forget the noise of the outside world and focus on the pure horizon.
▼建筑环抱在草丛中,The building was enveloped in grass © 胡康榆
▼曲径步道视角,View of winding trail © 胡康榆
愿景
Vision
项目选用就地传统材料,演绎全新的建筑形式,打造新一代水乡客厅,旨于传承地域文化,尊重自然,展望未来。
The project selects the local traditional materials, deduces the new architectural form, creates the guest reception place with the characteristics of the water town, aims to inherit the regional culture, respect the nature, and look forward to the future.
▼项目夜景图,Night view of the project © 胡康榆
▼总平面图,Master plan © 深圳华汇设计
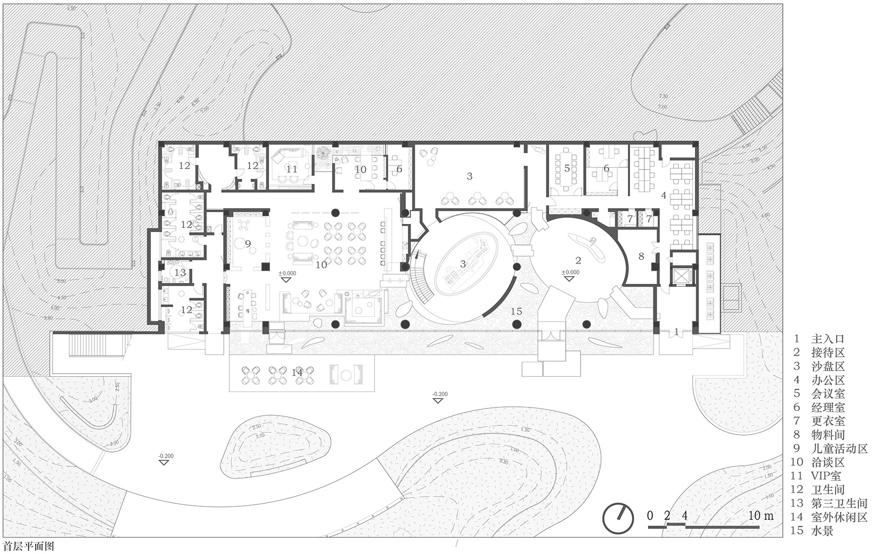
▼一层平面图,Ground floor plan © 深圳华汇设计
▼二层平面图,Second floor plan © 深圳华汇设计
▼三层平面图,Third floor plan © 深圳华汇设计
▼屋顶平面图,Roof plan © 深圳华汇设计
▼立面图、剖面图,Elevation and section © 深圳华汇设计
▼构造细部,Structural features © 深圳华汇设计
客服
消息
收藏
下载
最近





































