查看完整案例

收藏

下载
“空间是历史的产物,是社会存在的媒介和结果。”
—— 亨瑞·列弗斐尔
《史记·平准书》:“众庶街巷有马,阡陌之闲成羣,而乘字牝者傧而不得聚会。” 晋 陆机 《君子有所思行》:“廛里一何盛,街巷纷漠漠。”街巷作为城镇道路的名称被沿用至今。在近代以“人”为核心的街巷生活已经逐渐成了特有的居住文化。街巷院落包裹下的生活,充满了丰富且生动的活动场景和城市日常。此项目位于山西太原,设计以“街巷生活”为切入点,设计围绕街巷的线性空间展开,将丰富的建筑手法延伸到“街巷”之中,进而为空间带来活力。
“Shi Ji Ping Zhun Shu”: “the common people have horses in the streets and alleys, and when they are free in the paddocks, they become the best men, but they can’t get together.” Jin Luji’s “gentleman has thoughts and deeds”: “where there is prosperity in the chanli, the streets and alleys are numerous and indifferent.” the name of streets and alleys as urban roads has been used to this day. In modern times, the street life with “people” as the core has gradually become a unique residential culture. The life wrapped in streets and courtyards is full of rich and vivid activity scenes and urban daily life. This project is located in Taiyuan, Shanxi Province. The design takes “street life” as the starting point. The design focuses on the linear space of streets and lanes, extends rich architectural techniques to “streets and lanes”, and then brings vitality to the space.
▼空间概览,preview © 刘育麟
人造场所,场所也造人。街巷是过往市民进行日常交流的场所,随着城市的不断发展与扩张,其街巷系统也随之演变。此项目位于山西,过往的山西多是以街巷,院落、窑洞结合的居住形态为主,会拥有许多共享的院子生活设施以及景观,在这个过程中会出现很多有温度的生活场景,以及邻里之间的情感交集。
▼思路演变与轴测图,train of thought evolution and axonometric drawing © HOOOLDESIGN
Man made places, places also make people. Streets and alleys are places where citizens used to communicate daily. With the continuous development and expansion of the city, its street and lane system has also evolved. This project is located in Shanxi. In the past, Shanxi was mainly a combination of streets, courtyards and caves. It will have many shared yard living facilities and landscapes. In this process, there will be many warm life scenes and emotional intersection between neighbors.
▼入口空间,entrance space © 刘育麟
▼仿佛无限延伸的空间,space seems infinite © 刘育麟
以空间为媒介,将人与街巷相连,营造动态生活场景。设计以街巷指向生活又以生活为源表达产品。勒·柯布西耶曾说过,轴线作为一种指向仪器,对于建筑设计来说至关重要:“布局是对轴线进行分级,也是对目的进行分级,对目的进行分类。”而在此设计中,路径的概念替代了轴线。
Take space as the medium to connect people with streets and lanes to create a dynamic life scene. The design points to life in the streets and lanes, and expresses products with life as the source. Le Corbusier once said that the axis, as a pointing instrument, is very important for architectural design: “layout is to classify the axis, the purpose and the purpose.” in this design, the concept of path replaces the axis.
▼座位区,seating area © 刘育麟
▼各功能分区合理有序的以递进式铺展开来,each functional area can be spread out in a reasonable and orderly manner © 刘育麟
▼由内而外,inside to outside © 刘育麟
▼缝隙,gaps © 刘育麟
轴线用线来确定立体和平面,在垂直结构中定义运动,而轴线将建筑看作统一体,允许非方向性结构的存在。用矢量代替了轴线,使用者的轨迹决定了空间的结构,成为了建筑的“调整线”。轴线的重点才是其核心,而轴线则表现了一种连续性的体验,让整段路程和目的地一样都丰富起来。
The axis uses lines to determine the three-dimensional and plane, and defines the movement in the vertical structure, while the axis regards the building as a whole, allowing the existence of non directional structures. The axis is replaced by the vector, and the user’s trajectory determines the spatial structure and becomes the “adjustment line” of the building. The focus of the axis is its core, and the axis shows a continuous experience, enriching the whole journey as well as the destination.
▼更加公共的展示空间,more public display space © 刘育麟
▼空间分为上下两层,the space is divided into upper and lower floors © 刘育麟
▼木框架玻璃盒子,the glass box with wood © 刘育麟
▼细部,details © 刘育麟
设计为了将街巷变得更加立体与丰富,在室内制造了多个建筑盒子,通过附加属性有了更多使用与交互的可能性。此外,还让多个盒子进行扭转变化,达到了视觉和动线的可变性。有曲径通幽的部分也有豁然开朗的部分。空间可上可下可坐可卧,不限于同纬度的体验方式。
In order to make the streets more three-dimensional and rich, multiple building boxes are manufactured indoors, which has more possibilities of use and interaction through additional attributes. In addition, it also allows multiple boxes to twist and change, so as to achieve the variability of vision and moving line. There are winding paths and quiet parts, and there are suddenly bright parts. The space can be up and down, sit and lie, not limited to the experience of the same latitude.
▼通高区域,the double-height area © 刘育麟
▼底层展厅,the lower showroom © 刘育麟
▼“街巷”空间,“Street” space © 刘育麟
▼楼梯,the staircase © 刘育麟
▼盒子内部细节,Top box interior details © 刘育麟
空间表皮也同样运用了很多原始状态的材质表达空间情绪,希望这个空间随着使用者和体验者一同变化一同成长。不同盒子的自由散落,自然构成了街道、景观和院落,形成了街巷生活,回归社交。
The space epidermis also uses many materials in the original state to express the space emotion. It is hoped that this space will change and grow with the users and experimenters. The free scattering of different boxes naturally constitutes streets, landscapes and courtyards, forming street life and returning to society.
▼设施细节,Details © 刘育麟
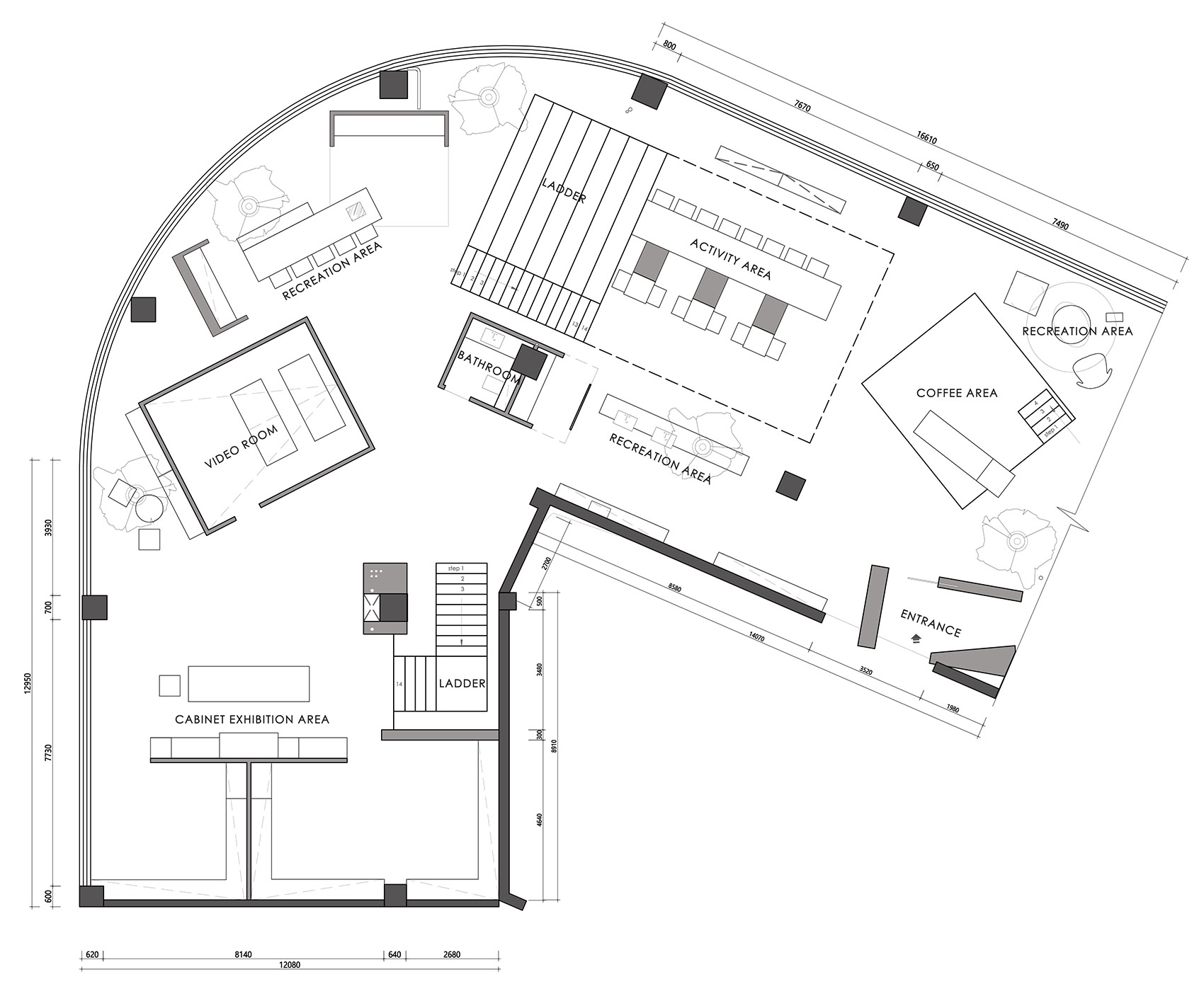
▼一层平面图,first floor plan© HOOOLDESIGN
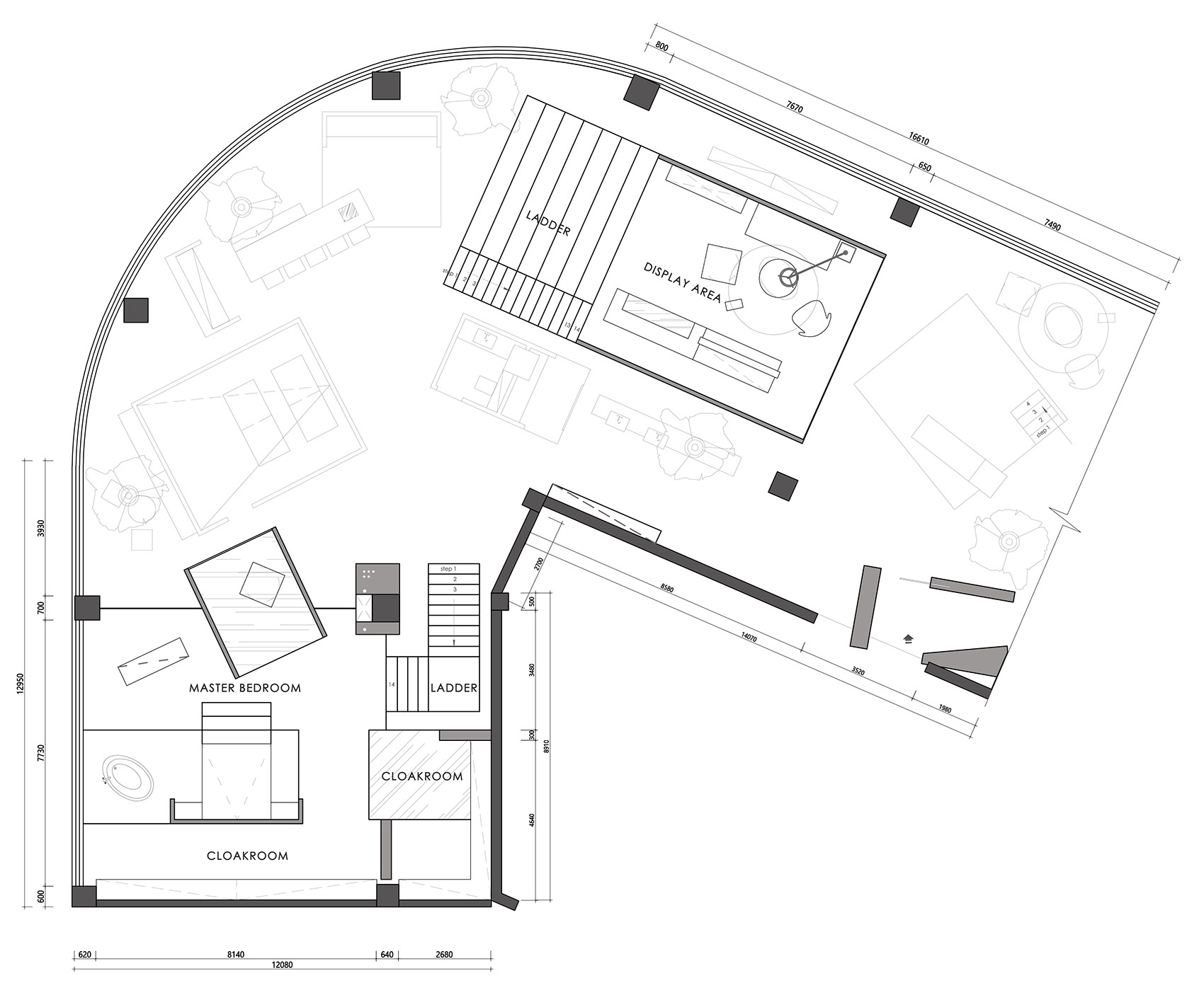
▼二层平面图,second floor plan© HOOOLDESIGN
项目名称:营造街巷
项目地址:山西太原
设计公司:HOOOLDESIGN事务所
主案设计师:韩磊
辅助设计师:黄德斌、李静怡
项目面积: 460平米
设计起止日期:2020.8
完工时间:2021.7
主要材料:水磨石、水泥、木地板、石头
业主名称:王耀文、王艳
灯光:三宜想天
材料品牌:Hanrow 汉诺
项目摄影:刘育麟
Project Name: Building Streets and Alleys
Project address: Taiyuan, Shanxi
Design company: HOOOLDESIGN STUDIO
Main designer: Han Lei
Assistant designers: Huang Debin, Li Jingyi
Project area: 460m2
Design start and end date: August 2020
Completion time: 2021.7
Main materials: terrazzo, cement, wood floor, stone
Name of owner: Wang Yaowen, Wang Yan
Lighting: THREE DAY LIGHT
Material brand: Hanrow
Project photographer: Liu Yulin
客服
消息
收藏
下载
最近



































