查看完整案例

收藏

下载
苏格兰挂毯展廊位于苏格兰边区中心的加拉希尔斯。这座建筑用于收藏苏格兰挂毯,展示了一部由千名缝纫者精心制作的、独特的民族视觉历史。苏格兰挂毯由亚历山大·麦考·史密斯提出宏伟愿景,由安德鲁·克鲁米设计,由阿利斯泰尔·莫法特撰写讲解。这块挂毯长约143米,描绘了苏格兰1.2万年前至今的关键事件,线性地展示了苏格兰的历史。在刺绣大师多丽·威尔基的领导下,苏格兰各社区精细地完成了挂毯制作。
▼视频,video
The Great Tapestry of Scotland Gallery is in Galashiels at the heart of the Scottish Borders. The building was designed to house the Great Tapestry of Scotland; a unique visual history of the nation crafted by the hands of a thousand stitchers. The Great Tapestry of Scotland was designed by Andrew Crummy to a narration written by Alistair Moffat, with the grand vision imagined by Alexander McCall Smith. The tapestry, at almost 143 metres (469 ft) in length, is a linear pictorial history of Scotland depicting key events going back 12,000 years. It was meticulously embroidered in communities across Scotland led by master stitcher Dorie Wilkie.
▼建筑外观,exterior view ©Keith Hunter
设计团队希望创建一座根植于其物理和历史背景的独特建筑,其核心处具有独特的挂毯空间。醒目的几何屋顶借鉴了加拉希尔斯地区的建筑特征:由塔楼、天窗、山墙和坡屋顶构成的独特屋顶景观。当你接近加拉希尔斯时,城镇的屋顶在眼前展现开来。新展廊插入这片屋顶景观之中,以现代而有趣的方式重新构想了传统的维多利亚屋顶。
Our architectural vision was to create a distinctive building rooted in its physical and historical context, with a special room for the tapestry at its heart. The dramatic geometric roof design is inspired by the unique roofscape of towers, dormers, gables and pitched roofs that defines the architectural character of Galashiels. As you approach Galashiels the roofs of the town unfold before you. The new gallery inserts into this roofscape as a contemporary and playful re-imagining of the traditional Victorian pitched roof.
▼由街道望向展廊,street view ©Keith Hunter
▼屋顶轮廓,roof profile ©Keith Hunter
该项目的规模和体量呼应了周围维多利亚城市景观。出于对紫外线防护和挂毯保护的考虑,展廊不能设置很多窗户。因此设计团队将外墙折叠,创造出微微起伏的结构,使庞大的体量变成更加适合周围环境的尺度。这些结构呼应了海峡街窗户、门廊和角楼的节奏。展廊通过玻璃连接到旧邮局大楼,邮局曾于1896年盛大开业,是加拉希尔斯作为19世纪繁荣纺织小镇的象征。邮局石砌立面巧妙的衔接与细节启发了展廊的立面设计。垂直和水平的石板环绕建筑,如同纺织品的经纬结构。
▼结构轴测,structural axo ©Page Park Architects
The scale and massing of the visitor centre was designed in response to the surrounding Victorian townscape. Due to concerns regarding UV light and conservation of the tapestry, it was not possible to have a lot of windows into the gallery. To break down the mass of the building to a scale more appropriate to its neighbours we folded the external walls creating subtle undulating bays. These bays relate to the rhythm of the windows, doorways, and corner turrets of Channel St. The gallery is connected by a glazed link to the old Post Office building. The Post Office opened to great fanfare in 1896 and was a symbol of Galashiels’ prosperity as a booming textile town of the nineteenth century. The subtle articulation and detailing of the stonework elevations to the Post Office inspired the stepping stone façade of the visitor centre. Vertical and horizontal bands of stonework envelope the building, like the warp and weft of a textile.
▼折叠的外墙,folded exterior walls ©Keith Hunter
▼外墙呼应周围环境 ©Keith Hunter
the exterior walls respond to the surroundings
▼石砌立面,stonework facade ©Keith Hunter
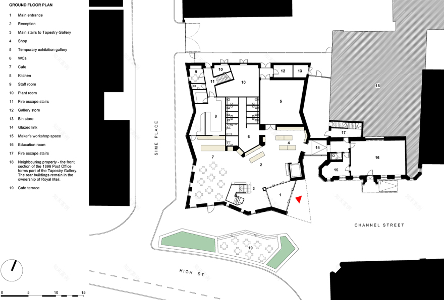
一层设有临时展廊、接待处、商店、咖啡厅和教育空间。挂毯展廊位于二层:一个由折叠墙和天花组成的戏剧性空间。展廊的形状与挂毯相契合,艺术品围绕一系列呈放射状布局的展墙,形成连续的线性展览。展廊的四个角落设有高窗,每扇均面向环绕加拉希尔斯的四座山丘的其中一座。
▼楼层轴测,floor axo ©Page Park Architects
The ground floor houses a temporary gallery space, reception, shop, café, and education space. The tapestry gallery is on the first floor; a dramatic room formed from folding walls and ceiling. The gallery is precisely shaped to house the tapestry. The artwork wraps around a series of radial display walls to form a continuous linear display. At the four corners of the gallery are tall windows, each looking to one of the four hills that surround Galashiels.
▼一层概览,ground floor space ©Keith Hunter
▼由楼梯望向咖啡厅,café from stairs ©Keith Hunter
▼教育空间,education space ©Keith Hunter
室内设计的色调和纹理衬托了挂毯的细节与差别,以及丰富的苏格兰边区景观。展墙上覆盖的织物来自巴特岛并在加拉希尔斯当地完成制作。该项目还专门进行了色彩设计,其灵感来自加拉希尔斯周围山丘千变万化的颜色。
▼剖轴测,cutaway axo ©Page Park Architects
The palette of colour and texture in the interior design reflects the nuance and detail of the tapestry, as well as the rich landscape of the Borders. The walls of the gallery are clad with fabric woven on the Isle of Bute and finished locally in Galashiels. The bespoke colour was designed for this project, inspired by the ever-changing colours of the hills surrounding Galashiels.
▼二层一瞥,a glance at the first floor ©Keith Hunter
▼挂毯展廊,tapestry gallery ©Keith Hunter
▼呈放射状布局的展墙,radial display walls ©Keith Hunter
▼讲述苏格兰历史的挂毯 ©Keith Hunter
the tapestry depicting the history of Scotland
▼狭长的角窗,narrow corner window ©Keith Hunter
展廊是市中心改造的核心。在连接加拉希尔斯和爱丁堡的边区铁路的支持下,展廊将为商业街注入活力,帮助当地的零售业并激发纺织小镇的21世纪形象。
The gallery acts as an anchor for town centre regeneration. Supported by the new Borders Railway line linking Galashiels to Edinburgh, the gallery will bring new activity to the high street supporting the existing retail offer and inspiring a 21st century version of this textile town.
▼项目鸟瞰,aerial view ©Keith Hunter
▼一层平面图,ground floor plan ©Page Park Architects
▼二层平面图,first floor plan ©Page Park Architects
▼屋顶平面图,roof plan ©Page Park Architects
▼立面图,elevations ©Page Park Architects
OTHER TECHNICAL INFORMATION
Lead Architects: Suzy O’ Leary, David Wyllie
Page \Park team: Suzy O’ Leary, David Wyllie, David Paton
Client: Scottish Borders Council
Structural Engineers: Goodsons Associates
Services Engineers: Atelier 10
Fire Engineers: Atelier 10
Project Management: Turner and Townsend
Cost Consultant: Turner and Townsend
Main Contractor: Ogilvie Construction Ltd.
客服
消息
收藏
下载
最近


































