查看完整案例

收藏

下载
日本建筑事务所UtA/Unemori teco Associates是UNEMORI ARCHITECTS和teco的合营企业,它将日本岩手县北上市中心八层商业大厦的底部两层改造成创意儿童健康保障综合设施,总建筑面积为4000平方米。UtA/Unemori teco Associates对既有建筑的前两层和立面进行了彻底拆除和改造,并将儿童健康保障设施和公共聚会空间整合到一起,打造出富有创意并且具有吸引力的空间,作为城市居民聚会的新地点。新综合设施围绕中心开放空间建造,具有轻微起伏的地面和天花,以及设有大片窗户和入口区域的立面。通过改造,UtA/Unemori teco Associates展示了他们在旧楼改造以及城市稀有空间再利用方面的建造能力。
The Japanese architectural office UtA/Unemori teco Associates, a joint venture between UNEMORI ARCHITECTS and teco, has converted the first two floors of an eight-story commercial building in the city center of Kitakami in the prefecture of Iwate in Japan into an inventive health and childcare support complex with a total floor area of 4,000 sqm. By entirely gutting and converting the first two floors and facade of the existing building and integrating the health and childcare support facilities as well as a public meeting space, UtA/Unemori teco Associates realized a creative and inviting space that acts as a new meeting point for the city’s residents. The new complex is structured around a central, open space, featuring gently undulating floors and ceiling, as well as a facade with large windows and entrance area. With the conversion, UtA/Unemori teco Associates showcases their architectural competence for sensitive redevelopments of existing buildings and the re-use of rare space in the city.
▼临街外观,street view ©Kai Nakamura
超越建筑类型
TRANSCENDING BUILDING TYPOLOGIES
UtA/Unemori teco Associates没有新建综合设施,而是将一栋1999年的中央商业大厦改造成北上儿童健康保障中心,从而重新利用了城市的既有空间。既有建筑较低两层提供了一个矩形空间,它被完全拆除进行改造。建筑师还彻底更新了立面,正立面采用玻璃,并配备宽敞的滑动门入口区域。
Instead of building a new complex, UtA/Unemori teco Associates converted a central commercial building from 1999 to accommodate the Kitakami health and childcare support center, thus re-using existing space in the city. The two lower floors of the existing building provide a rectangular space and were gutted entirely for the conversion. The architects also completely renewed the facade, featuring a glass front and equipping it with a spacious entrance area with sliding doors.
▼左:轴测分解,右:改造前后,left: exploded axon, right: before & after renovation ©UtA/Unemori teco Associates
UtA/Unemori teco Associates围绕中央多功能室内广场构建了空间,该空间位于一层中央并且向公众开放,将外界与该设施联系起来。高天花广场由中庭、咖啡厅和接待台组成,用作体检室、室内游乐场、展室、诊疗室和办公室等周边房间的入口和等候区。它超越了儿童中心的功能类型,门厅内还设有许多不同材质和高度的座位区,用作公共集合点。
UtA/Unemori teco Associates structured the space around a central multi-purpose indoor plaza – an open space in the center of the first floor that is accessible to the public thus connecting the city outside with the facility. The high-ceiling plaza consists of an atrium, a café and a reception desk and serves as an entrance and waiting area to the surrounding rooms with various functions such as a facility for medical checkups, an indoor playground, an exhibition room, a consulting room as well as an office area. Transcending the building typology of a childcare center, a number of seating areas with varying textures and sitting heights were installed as a public meeting point in the foyer.
▼入口区域,entrance area ©Kai Nakamura
▼中央等候区,central waiting area ©Kai Nakamura
▼多功能楼梯 – 兼顾楼梯和座位功能,multi-purpose stair – part stair and part seating ©Kai Nakamura
有趣的起伏地面和天花
PLAYFULLY UNDULATING FLOORS AND CEILINGS
这座商业建筑由简单的矩形框架组成,UtA/Unemori teco Associates以有趣的起伏天花和地面应对。起伏的形状为游乐场提供了有趣而特别的地面,同时作为天花,确保医疗车辆的安全净高,并在上方留出足够的管道空间。天花的整个表面都被照亮,形成光影游戏,为综合设施带来纵深感。建筑师还将天花和地面的起伏应用在建筑外部,在立面上形成引人注目的屋檐。由于建筑外墙以前几乎不设窗口,UtA/Unemori teco Associates用大窗户和玻璃推拉门将设施框起来,以便从外面可以看到内部,加强建筑的开放性以及与城市的联系。
▼游乐场下方空间,space under the playground ©Kai Nakamura
▼起伏天花与地面,undulating ceilings and floors ©Kai Nakamura
▼室内游乐场,indoor playground ©Kai Nakamura
▼社区空间,community space ©Kai Nakamura
The commercial building consisted of simple rectangular grids that UtA/Unemori teco Associates deconstructed by creating playfully undulating ceilings and floors. The wavy shape provides a fun and unusual floor for the playground, while, as a ceiling, ensuring the safety clearance for medical vehicles, leaving adequate duct space above. The ceiling is illuminated across the entire surface, creating a play with shadow and light that lends a sense of depth to the complex. The architects mirrored the wave of the ceilings and floors on the outside of the complex as a striking eave on the facade. As there were hardly any openings in the exterior walls before, UtA/Unemori teco Associates framed the facility with large windows and glass sliding doors so the interior can be seen from outside, thus reinforcing the open character of the building and its connection to the city.
▼立面日景,facade of the building in the day ©Kai Nakamura
▼立面夜景,facade of the building in the night ©Kai Nakamura
▼区位图,location ©UtA/Unemori teco Associates
▼一层平面图,1st floor plan ©UtA/Unemori teco Associates
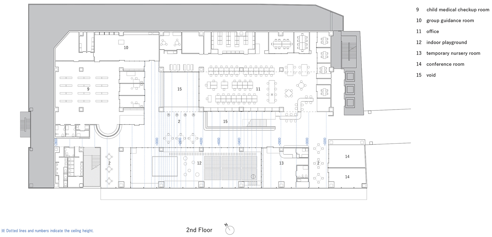
▼二层平面图,2nd floor plan ©UtA/Unemori teco Associates
▼剖面图,section ©UtA/Unemori teco Associates
▼剖透视图,sectional perspective ©UtA/Unemori teco Associates
Location: Kitakami city, Iwate prefecture, Japan
Principal use: health center, childcare support, office, etc.
Site area: 3,884 sqm
Building area: 3,097 sqm
Total floor area: 14,216 sqm
Renovation area: 3,947 sqm
Structural systems: Steel frame
Scale: 1st and 2nd floor of 8 stories
Completion: March 2021
Architecture & furniture: UtA/Unemori teco Associates
Structural Engineers: Design Office MOMI
Mechanical Engineers: ZO consulting engineers
Sign design: NIPPON DESIGN CENTER INC. IROBE DESIGN INSTITUTE
Textile Design: Talking about Curtains
General contractors: HAZAMA ANDO CORPORATION
OBARA CONSTRUCTION Joint venture group
Photo: Kai Nakamura
客服
消息
收藏
下载
最近

























