查看完整案例

收藏

下载
该项目位于汉诺威的海因霍尔茨地区,由Max Dudler设计并且受ARAGON ImmoProject GmbH委托,现已竣工。这座建筑被称为“HAINBASE”,它位于Schulenburger Landstraße大街114号,包含241套公寓,打造了适合所有年龄段和居住环境的新兴混合用途住宅区。建筑错落有致,高达13层,将成为新区的西北部开端以及城市入口的建筑地标。
The new student residence in the Hannover district of Hainholz, designed by Max Dudler and commissioned by ARAGON ImmoProject GmbH, has reached completion. The building, known as “HAINBASE”, located at Schulenburger Landstraße 114, and containing 241 apartments, augments a currently emerging mixed-use residential district for all age groups and living situations. A staggered urban figure whose tallest point rises to a height of 13 stories, the structure will serve as the north-western prelude to the new district and an architectural trademark at an entry point to the city.
▼临街立面,street view ©Stefan Müller
该建筑定义了介于城市和城市边缘之间的过渡地带。通过该项目,Max Dudler以有效的方式拓展了汉诺威市,结合当地历史打造出面向未来的永恒建筑。建筑体结合高低层特点,呈现出雕塑般的衔接和独特的外观,它的十三层塔楼有效地界定了城市入口。在南侧,建筑的至高点分成两个层次,逐渐下降至相邻建筑的高度。在东侧,也就是较低一侧,七层楼部分通过下凹处理与塔楼相连,并且形成两侧建筑均可进入的屋顶平台。
Architecturally, the building defines an urbanistic edge that lies along the transition between city and periphery. With this project, Max Dudler extends the city of Hannover in a productive way, incorporating the history of the locale to create a timeless piece of architecture that looks toward the future. With its sculptural articulation and distinctive appearance, the ensemble combines high-rise and low-rise features, its thirteen-story tower effectively demarcating the entrance to the city. Toward the south, the building’s highpoint drops down in two stages, descending to the height of the neighbouring building. Toward the east, the low-rise, seven-story section is joined to the tower via a subjacent incision, opening at this point onto roof terraces that are accessible from both sides of the building.
▼雕塑般的外观,sculptural appearance ©Stefan Müller
▼较高的塔楼部分,higher tower section ©Stefan Müller
▼较低的七层楼部分,lower seven-story section ©Stefan Müller
▼两部分由屋顶平台相连,two sections are connected by a roof terrace ©Stefan Müller
▼由平台望向较高侧,higher section from terrace ©Stefan Müller
建筑采用深红色砖材,暗指建于1927年的Marinebau,这一工业建筑是前Sorst工厂的唯一存留部分,同时,该项目还借鉴了汉诺威典型的北德建筑。深而宽的斜窗在不同楼层左右交替,在雕塑般的立面上形成统一而活泼的节奏。
With its dark-red brick, the new building alludes to the so-called Marinebau, dating from 1927, with its classical industrial architecture, the sole surviving component of the former Sorst Plant, at the same time invoking Hannover’s typical north-German clinker architecture. Deeply and broadly bevelled window reveals, which alternate left to right between stories, generate a uniform, lively rhythm on the sculptural façade.
▼左右交替的斜窗,bevelled windows alternating left to right ©Stefan Müller
▼由庭院望向斜窗,bevelled windows from courtyard ©Stefan Müller
▼斜窗细部,details of bevelled window ©Stefan Müller
▼由平台望向较低侧,lower section from terrace ©Stefan Müller
▼砖材细部,details of brick ©Stefan Müller
从2001年开始,汉诺威北部具有工业历史的海因霍尔茨地区在联邦-州计划的构架内进行了重新调整。Max Dudler设计的新学生公寓是政府本着“社会城市”精神提高社区对居民吸引力的系列措施之一,其目的是重建公共场所网络,并且通过高品质现代建筑提升该区域。学生公寓进一步振兴了位于Schulenburger Landstraße和Voltmerstraße大街之间的金属工厂旧址,并界定了混合住宅区在西北方向的终点。该项目共有241套单人和双人公寓,呼应南侧的养老院和普通住宅,激活了汉诺威北部的社区。在公寓内,可用空间设施由活动空间和屋顶平台等公共区域构成。
Beginning in 2001, the Hainholz district in the north of Hannover, with its industrial history, has been realigned within the framework of a federal-state program for urban districts with special developmental requirements. Max Dudler’s new student residence is integral to a group of diverse measures designed to enhance the attractiveness of the neighbourhood for residents in the spirit of a “social city”. The aim is to restructure the network of public places while upgrading the district through high-quality contemporary architecture. The student residence furthers the revitalization of the former premises of the metalworking firm, situated between Schulenburger Landstraße and Voltmerstraße, and delimits the northwest terminus of this mixed residential district. With 241 single and double apartments, it complements adjacent retirement homes to the south, as well as general residential buildings, enlivening this neighbourhood, situated in the north part of Hannover. Within, the available spatial amenities are rounded out by common-use areas such as event spaces and a roof terrace.
▼室内空间,interior of the building ©Stefan Müller
▼位于房屋边缘的交通空间,circulation space around the house ©Stefan Müller
▼楼梯,staircase ©Stefan Müller
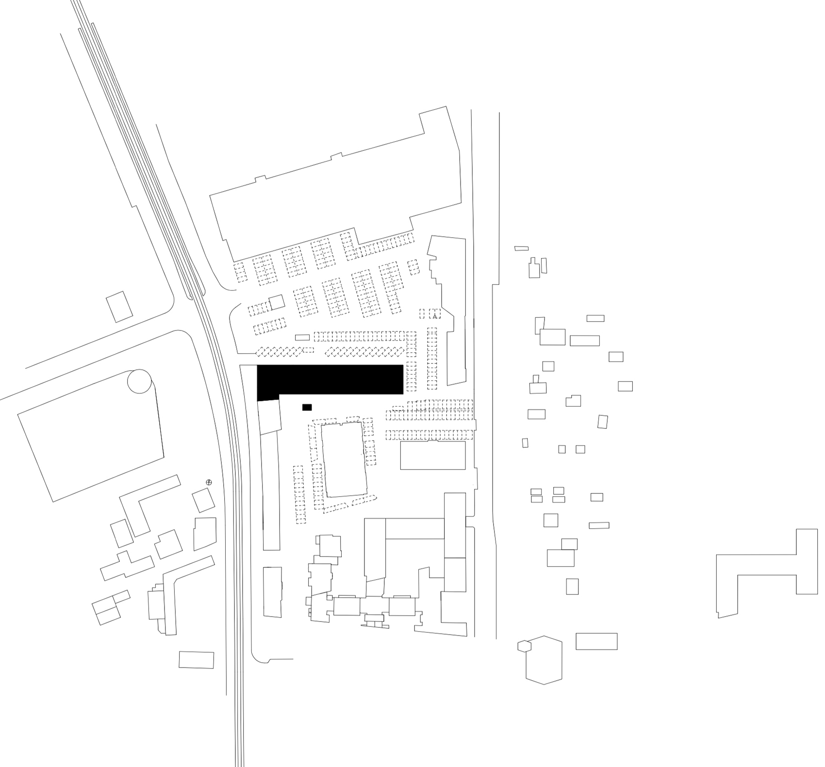
▼区位图,location ©Max Dudler
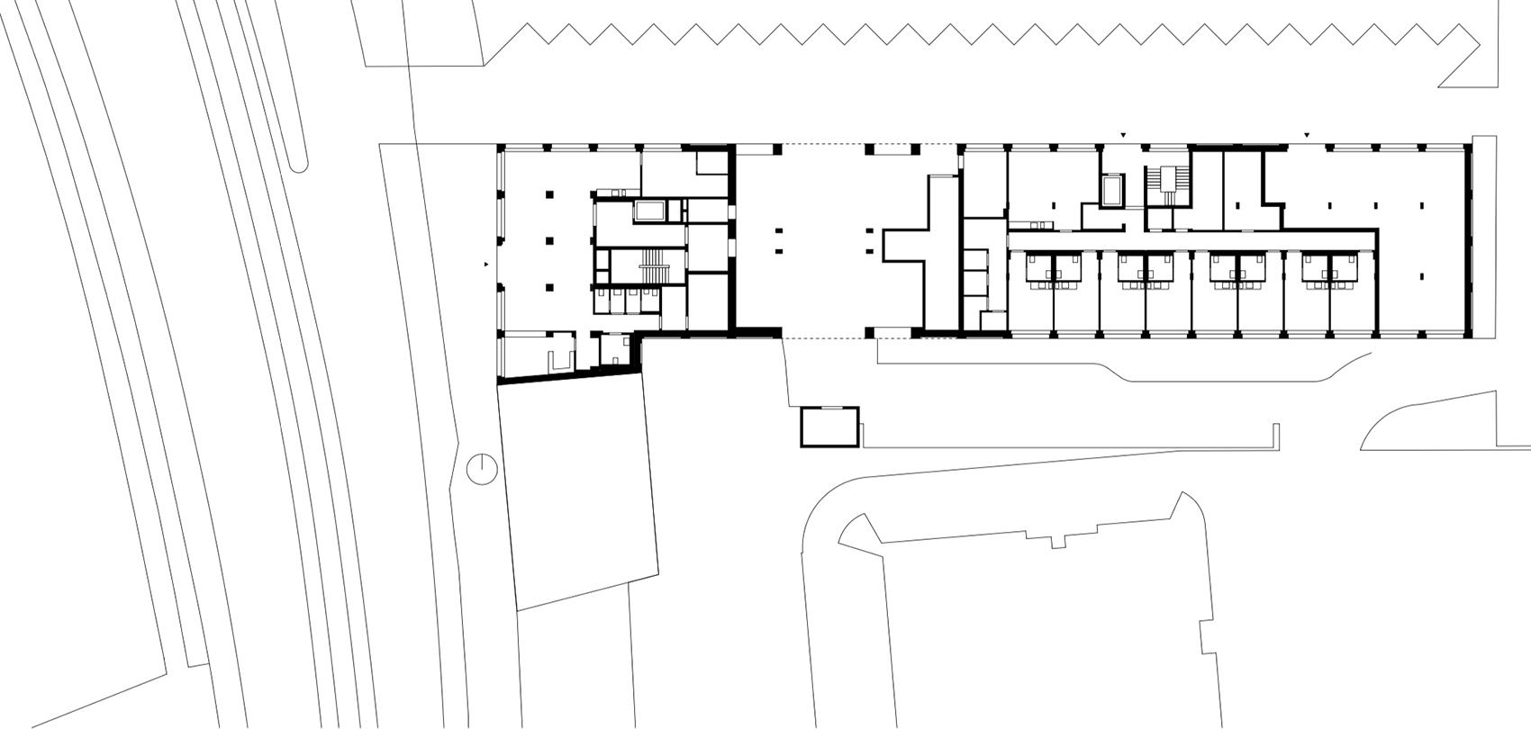
▼一层平面图,1F plan ©Max Dudler
▼四层平面图,4F plan ©Max Dudler
▼六层平面图,6F plan ©Max Dudler
▼北立面图,north elevation ©Max Dudler
▼西立面图,west elevation ©Max Dudler
客服
消息
收藏
下载
最近

























