查看完整案例

收藏

下载
13B地块坐落于里尔市的西部边缘,是Rives de la Haute Deûle开发区内首个落成的综合住宅类项目。Rives de la Haute Deûle开发区占地100公顷,在重新开发前曾是一片荒废的工业用地,现有的工业建筑、宗教建筑以及住宅建筑之间巨大的差异成为该地区的代表性特征之一。贯穿整个开发区的杜勒运河成为社区南部与北部温和的分界线,每个部分都正在经历重大的城市更新进程。水道的存在,构成了城市中强大的景观元素,同时也是当地重要的、并需要进一步强调出来的经济与环境资产。
The first area to be completed of the Rives de la Haute Deûle development zone is a former post-industrial wasteland stretching over 100 hectares, located on the western edge of the city of Lille. The terrain, marked by largely varying scales between existing industrial, religious and residential buildings, lies along the Deûle canal. The canal provides a gentle demarcation between this neighbourhood’s southern and northern parts, both undergoing major urban renewal. The presence of a waterway, a powerful element in the landscape, is an important and enhancing asset.
▼13B地块坐落于杜勒运河畔,the project lies along the Deûle canal © Sebastian van Damme
Rives de la Haute Deûle地区的城市更新进程始于2009年完成的Le blanan – lafont纺织厂的改造计划。如今,里尔Eura Technologies中心生态示范区已经成为新型社区的代表,不仅出色地完成了初创企业孵化器的角色,更在数字技术和研究领域赢得了卓越和创新中心的声誉。整个Rives de la Haute Deûle地区开发项目由Soreli牵头,由Pranlas Descours Architectes事务所以及景观建筑师Bruel Delmar负责总体规划,规划的核心理念旨在创造大量与运河平行的公共空间,充分利用运河所带来的资源与优势。以该理念为指导思想的城市模式延伸到河岸两侧不同的“功能地块”(îlots)中,以绿色空间的形式呈现在大众眼前。全新的城市网络将现有的社区与由工业用地改造的开发区连接起来。开发区中的建筑以砖为首选材料,旨在呼应场地周边的20世纪30年代联排别墅。
▼区位分析图,location © KAAN Architecten
The redevelopment of the district began with the renovation of Le Blan-Lafont textiles factory completed in 2009. Today, Euratechnologies represents a key site for the new neighbourhood, fulfilling the role of a start-up incubator and gaining a reputation as a centre of excellence and innovation in the fields of digital technologies and research. The overall development project, headed by Soreli with a master plan by Pranlas Descours Architectes and landscape architect Bruel Delmar, proposes various public spaces parallel with the canal, making the most of its presence. This urban pattern extends through the different ‘function-defined plots’ (îlots) positioned on both banks along the green spaces. This urban grid links the existing neighbourhoods to the areas reclaimed from former industrial sites. Brick is the preferred material to be used, echoing the surrounding 1930s townhouses.
▼由运河看A栋,viewing the building A from the canal © Sebastian van Damme
▼由运河看B栋,viewing the building B from the canal © Sebastian van Damme
13B地块位于Haute rivers Deûle开发区首个完工区域的东南角,场地俯瞰运河,周边环绕着四条公共道路。项目由四栋建筑组成,由KAAN Architecten事务所设计,并按照多功能原则,将办公与住宅综合在同一地块中。
Îlot 13B, designed by KAAN Architecten, is located on the south-eastern edge of the first completed sector of the Rives de la Haute Deûle development zone, overlooking the canal and bordered by four public roads. The project comprises four buildings and functions according to mixed-use principles, assembling offices and housing within one project.
▼分析图,diagram © KAAN Architecten
两栋住宅建筑位于场地南侧,包括47套待租赁社会住房单元(A栋)以及23套待售社会住房单元(B栋)。顺应河道的立面曲线成为这两栋住宅建筑最明显的特征,精心选择的当代材料,如淡米色砖、彩色灌浆、天然阳极氧化铝以及玻璃,与周边环境形成和谐的对话。立面上设有一系列突出的金属飘窗,这些“突脊”式的体量以现代的设计语言对工业舷窗进行了重新的诠释,同时为每个公寓提供了俯瞰运河的直接视角。
The two residential buildings are to the south of the site, with 47 social housing units for rent (building A) and 23 units for sale on the open market (building B). They stand out with their curving facades, which follow the sinuous line of the canal. The project dialogues harmoniously with the existing environment through the careful selection of contemporary materials, such as pale beige bricks, coloured grouting, natural anodised aluminium and glass. Protruding volumes, known as ‘spines’, are a modern reinterpretation of industrial bay windows and provide each apartment with direct views over the Deûle.
▼沿河住宅立面,residential building facade along the canal © Sebastian van Damme
▼B栋立面,facade of building B © Sebastian van Damme
▼A栋立面,facade of building A © Sebastian van Damme
▼突出的飘窗是对工业舷窗的现代解读,
Protruding volumes are a modern reinterpretation of industrial bay windows © Sebastian van Damme
坐落于场地北侧的两栋办公楼(C栋与D栋),为当地提供了充足的办公空间,其中C栋建筑面积为800平方米,D栋建筑面积为400平方米。这两栋建筑均以优异的节能性能获得了BREEAM环境认证良好评级。浅灰色玻璃、混凝土以及青铜阳极氧化铝窗框组成立面,将办公楼与住宅楼区别出来,办公室内部则采用了呼应邻近建筑砖材外立面的米色色调。
To the north of the site, the two office buildings (buildings C and D) provide extensive floor plans (800m2 and 420m2 respectively). Both buildings have been awarded ‘good’ BREEAM environmental certification for their energy performance. Characterised by pale grey glazed concrete facades with windows in bronze anodised aluminium, the offices reflect the beige tones of the neighbouring brick buildings.
▼住宅建筑与办公建筑立面材料的对比,
Comparison of facade materials between residential buildings and office buildings © Sebastian van Damme
▼办公建筑立面由浅灰色玻璃、混凝土以及青铜阳极氧化铝窗框组成,
pale grey glazed concrete facades with windows in bronze anodised aluminium © Sebastian van Damme
▼办公建筑立面细部,facade details of the office buildings © Sebastian van Damme
场地周边布满了各种极具Haute Deûle地区典型特征的植被,如地被植物、多年生植物以及禾草,郁郁葱葱的植被一直延伸至街区内部。地面层绿色空间与硬质铺装的人行步道交织在一起,方便了人们的出行。Rives de la Haute Deûle新社区的核心理念旨在通过精心规划的公共空间,为当地注入活力,促进当地包括人行与自行车道在内的交通网络的发展。为了配合这项城市政策,13B地块项目鼓励共享停车。来此办公的人可以将车停在邻近的多层停车场,居民则可以将车停在街区内部的单层私人停车场中。
▼绿色空间与硬质铺装的交织,
The interweave of green space and hard pavement © Sebastian van Damme
The surrounding vegetation, consisting of a variety of ground cover plants, perennials and grasses, is typical of the Haute Deûle district and extends into the middle of the block. The green space on the ground level incorporates paved paths for easy pedestrian circulation. The new neighbourhood of Rives de la Haute Deûle sets out to promote active circulation through carefully planned public space, both on foot or by bicycle. In keeping with this urban policy, Îlot 13B project encourages shared parking. Office parking is located in the neighbouring multi-storey car park, while residents’ parking is within the block itself, in a private, covered car park on the ground level.
▼街区内部花园与单层车库,outdoor garden and single storey car park inside the block © Sebastian van Damme
项目中的B栋、C栋以及D栋由Nacarat公司投资建设,作为社会租赁住宅的A栋则由Logis Métropôle, Groupe Mon Abri投资建设。此外,KAAN Architecten事务所还负责了13B地块临近的“Danon”地块的设计与开发,该项目已于2014年完工。
Îlot 13B was financed by Nacarat (buildings B,C,D) and Logis Métropôle, Groupe Mon Abri (building A). Îlot 13B continues the development on the neighbouring ‘Danon’ site, also designed by KAAN Architecten and completed in 2014.
▼总平面图,master plan © KAAN Architecten
▼首层平面图,ground floor plan © KAAN Architecten
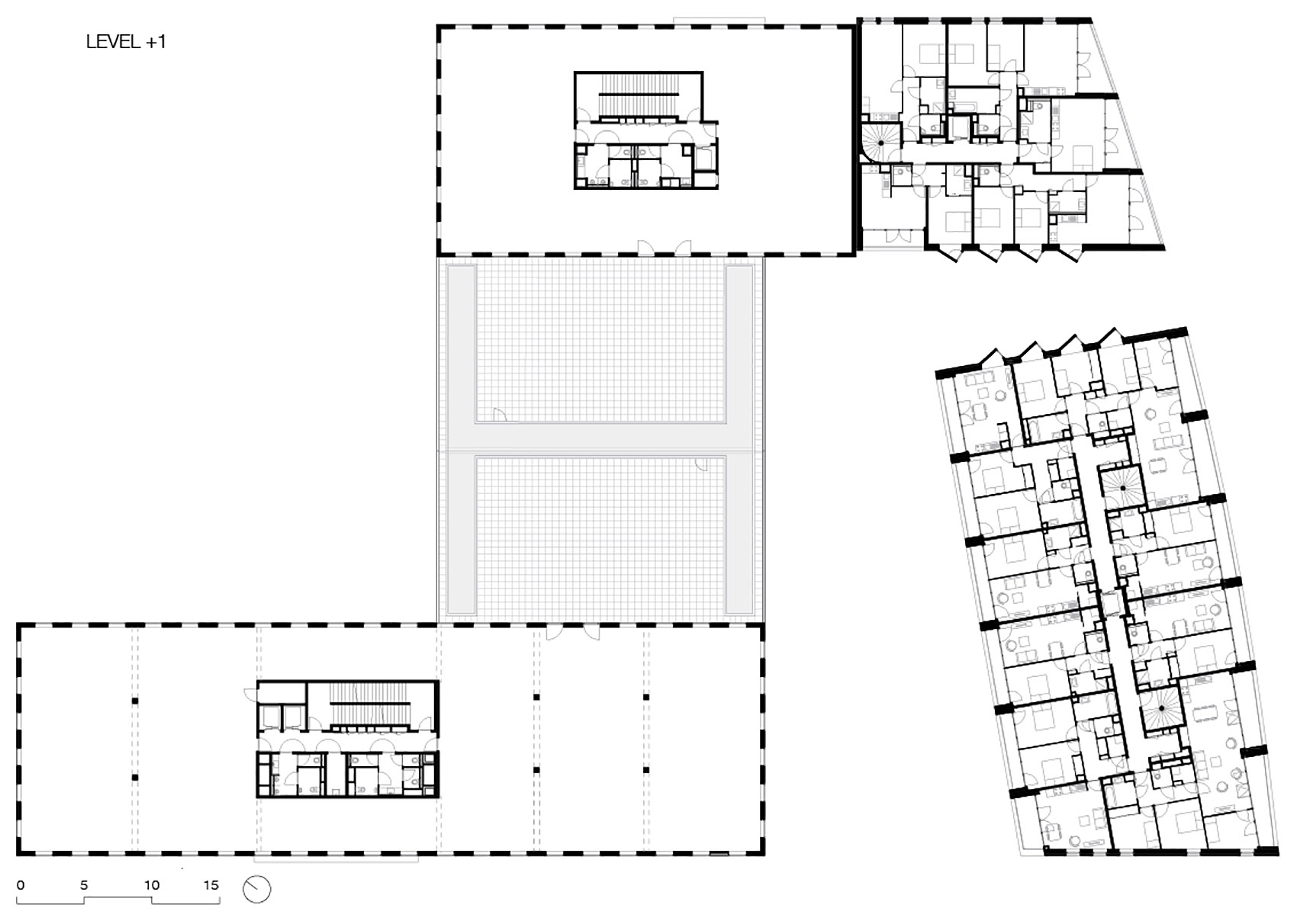
▼二层平面图,level +1 plan © KAAN Architecten
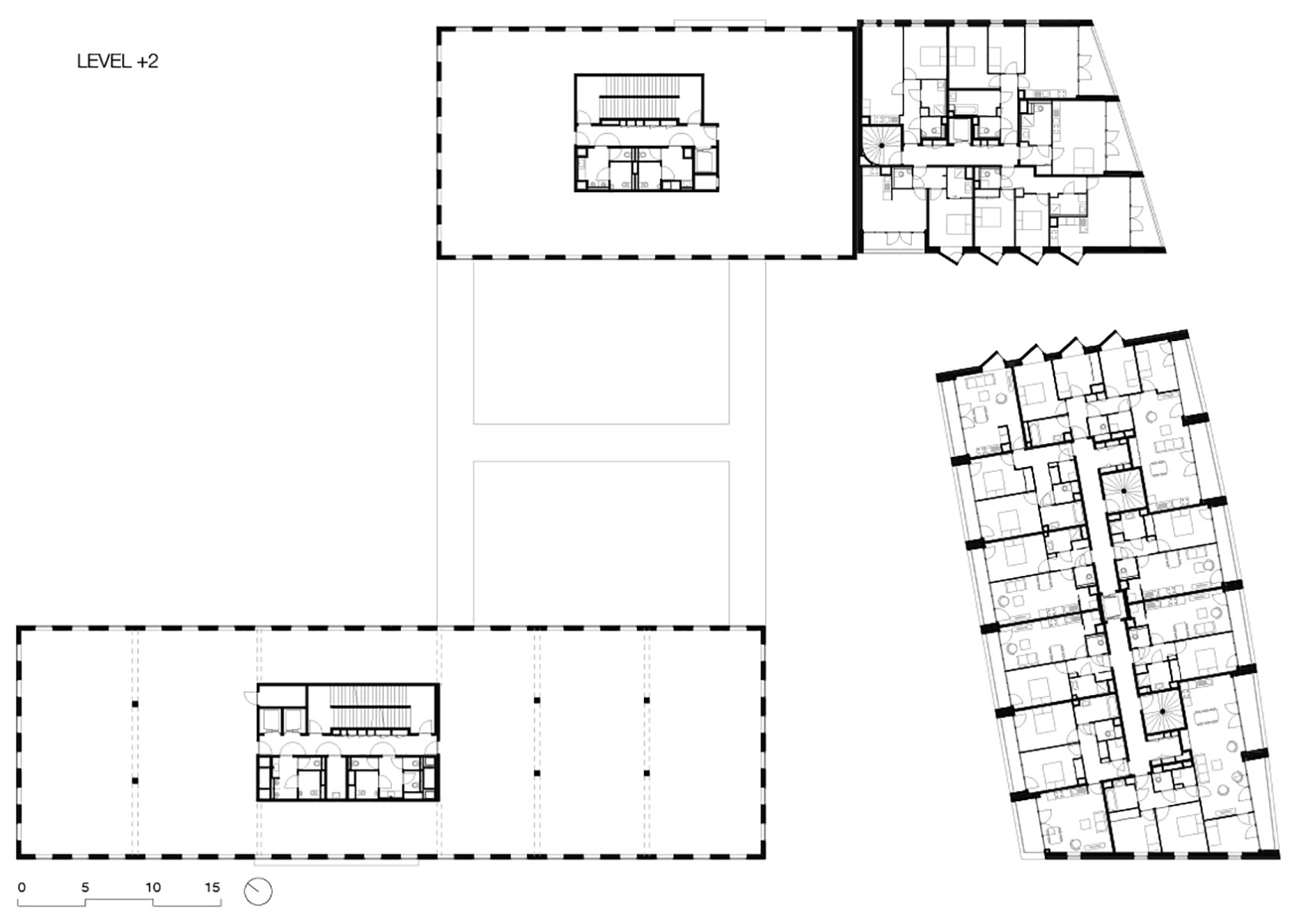
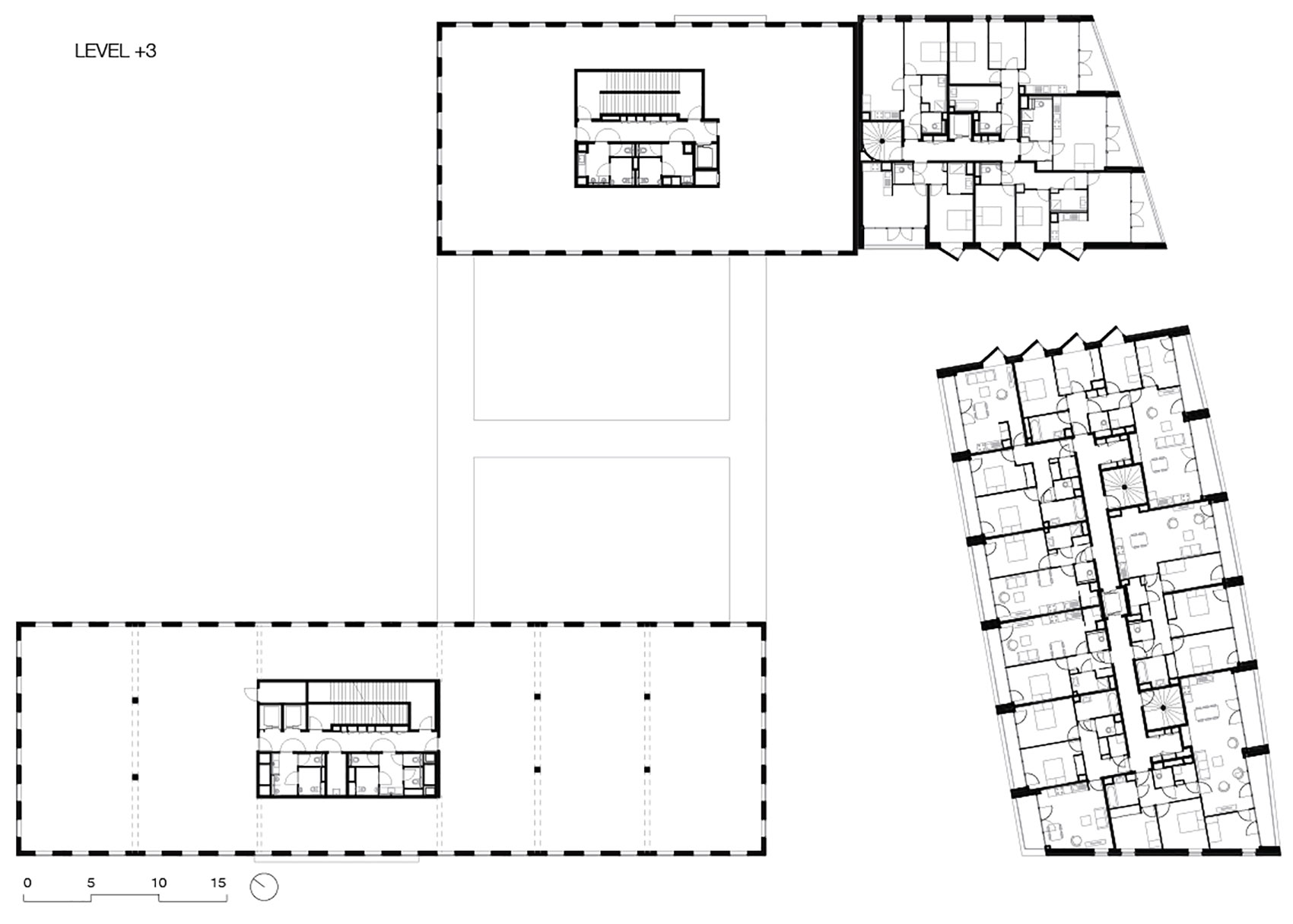
▼三层平面图,level +2 plan © KAAN Architecten
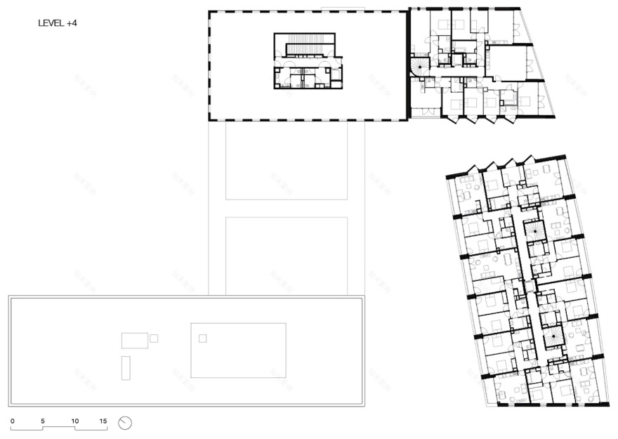
▼五层平面图,level +4 plan © KAAN Architecten
▼七层平面图,level +6 plan © KAAN Architecten
▼立面图,elevations © KAAN Architecten
▼剖面图,sections © KAAN Architecten
▼细部详图,construction details © KAAN Architecten
Îlot 13B – Rives de la Haute Deûle
Location: Rue Hegel / Rue des Templiers / Allée Clémentine Deman, Lille, France
Architect: KAAN Architecten (Kees Kaan, Vincent Panhuysen, Dikkie Scipio)
Project team: Christophe Banderier, Marc Coma, Paolo Faleschini, Renata Gilio, Michael Geensen, Sophie Ize, Jan Teunis ten Kate, Wouter Langeveld, Marco Lanna, Jade Lemaitre, Maud Minault-Schreiner, Maurizio Papa, Hugues Rebay, Joeri Spijkers, Pauline Trochu, Clémence Vallée
Client: Nacarat, Lille ; Logis Métropôle, La Madeleine
Programme: private and social housing, offices, parking
Design phase: 2015 – 2016
Construction phase: 2016 – 2021
Completion: March 2021
GFA: 10.300 sqm
Building costs: 11,8M euros
Contractor, construction manager, financial advisor: Groupe Projex, Villeneuve-d’Ascq
Fire safety engineer: Veritas, Villeneuve-d’Ascq
Acoustics and sustainability advisor: Diagobat, Villeneuve-d’Ascq
Site works: Urban VRD, Villeneuve-d’Ascq
Foundations and structure: Rabot Dutilleul, Wasquehal
Waterproofing: Sergeant, Gavrelle; Soprema, Lille
Exterior fixtures: Concept Alu, Marly
Metal works: Metal+, Sequedin; Tube 2000, La Sentinelle
Internal doors and windows: Billet, Bierne; Houzé-Vilcot, Raimbeaucourt
Interior walls and ceilings: K-Aménagement, Pont a Marcq; Cannata, Avion
PVC floors: Pique&Fils, Quesnoy-sur-Deûle; Initiale’s, Orchies
Wall tiling: Ardeco, Courcelles-Les-Lens; CRI, Hautbourdin
Painting and wall coverings: Créadécor, Rouvroy; Nov Deco, Rouen
Electrical installations: Delporte, Wasquehal; GDS, Fretin; CKELEC, La Gorgue
MEP engineering: Ecotep, Douvrin; Beaudeux Services, Templemars
Elevators: Thyssenkrupp, Marcq-en-Baroeul; Otis, Marcq-en-Baroeul
客服
消息
收藏
下载
最近






































