查看完整案例


收藏

下载
设计空间就是设计光亮,把光当成一种建筑元素合理的运用到设计当中,构造建筑美学的同时强调设计功能性,满足平衡、节奏、重复等要素的要求。用光营造意境,借助自然材料,打造更富情感的建筑空间,这样才能更好的承载人的生活。
本次项目坐落于烟台,
以
塑造空间原型
为宗旨
构建
具有情感的设计环境。不仅还原人在空间的本身状态,也引导我们观察自然的直接方式。
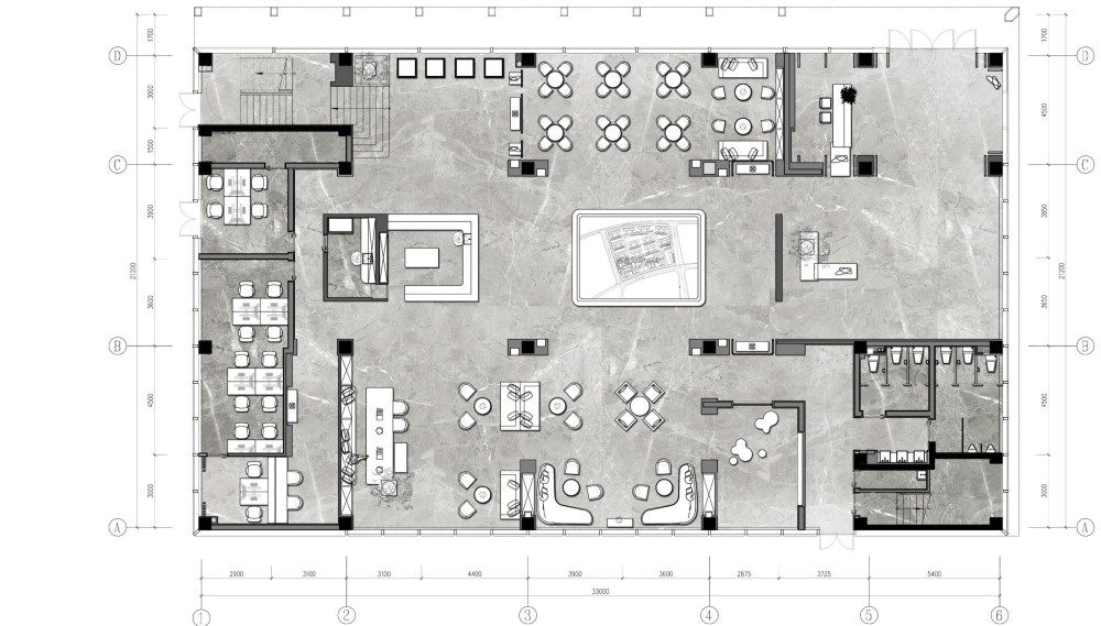
接待厅是石与木没有多余装饰的呈现
,在空间中相融,重构
形成无法替代的美感,这样简明扼要的选材更能表达有力的情感。
以光作为设计元素
在沙盘区上方形成明亮的矩阵,身处空间之中可以看到设计者简洁纯粹的构思。很多时候,简明的形式确实更能打动人心。
设计师对
空间的
“序”进行
建构,
表达一种合理的存在方式,其内涵包容一切,包容自然,也包容人的性质,经过设计的转换,实现内在的
“序”
。使用隔墙
划分
空间界限
也让空间更富趣味,达到设计中
“以人为中心”的环境,使“人情化”成为空间中的独特设计。
项目名称:烟台绿城留香园
开发 商:烟台致海置业有限公司
管理 商:绿城管理
项目地址:中国/烟台
项目面积:3000㎡
完成时间:2020年9月
室内设计:TRD中合深美
设计 师 :赵旭
摄影机构:北京远视点摄影
客服
消息
收藏
下载
最近



























