查看完整案例

收藏

下载
该项目位于Memphremagog湖畔的一块陡峭的场地上,邻近St-Benoit-du-Lac的方济会僧侣修道院。业主希望在这片开阔的林地上创造一个符合其形象的生活空间:充满活力、热情且友好——他们希望自己的家是一个既现代、又适合与朋友欢聚的场所。
The project is located on a steep lot on the shores of Lake Memphremagog, not far from the Franciscan monks’ abbey in St-Benoit-du-Lac. The clients wish to create on this large wooded lot, a living space that reflects their image: dynamic, welcoming and friendly. They see their home as a contemporary and warm place for meetings with friends.
▼项目概览,general view © Adrien Williams
进入场地的路径由房屋上方一路下降至湖泊,这样的场地环境也直接决定了屋顶的几何外观。住宅由3个体量组成,顶部由带有对角线屋脊的板面覆盖。每个屋脊的最高点都设有一个多边形的天窗,是根据屋顶的形态而设计。这些天窗朝向南方,能够为敞开于北面湖泊的起居空间提供自然光线。
▼草图和场地平面,sketch & site plan © _naturehumaine
Access to the land is overhanging the house by a path going down to the lake. This bird’s eye view gives visual importance to the geometry of the roof. The chalet is composed of three volumes topped by sculptural roofs with diagonal ridge. At each high point of the ridge, a polygonal skylight culminates, designed by the geometry of the roof. These south-facing skylights provide natural light to the living spaces open to the lake to the north.
▼庭院俯瞰,overlook to the courtyard © Adrien Williams
▼建筑外观,exterior view © Adrien Williams
住宅的设计灵感源于教堂中使用的建筑原则:宏大且垂直的空间被来自天顶的光线照亮。细部的设计参考了St-Benoît修道院的扩建工程(由Dan Hanganu设计),使用了灰色的石材和粗钢。
The house is inspired by the architectural principles applied to churches; large volumes with vertical proportions lit by zenithal light. The expansion of the St-Benoît Abbey, designed by Dan Hanganu using grey stone and rough steel, was a source of inspiration for the attention to detail.
▼工作室所在的体量立面,workshop volume facade © Adrien Williams
三个体量的上半部分外墙采用了预先做旧的木质墙板,并覆盖以不锈钢屋顶。不锈钢是一种经久耐用的材料,随着时间的流逝将呈现出统一的哑光质感。从湖面看时,耐候钢材质的基座与周围铁杉树的粗糙肌理融为一体,营造出一种房屋漂浮在其间的感觉。
Monochromatic, the envelope of the three volumes of the upper floor is made of pre-aged wood siding topped by stainless steel roofs. A raw and durable material to which the patina of time will give a matte and uniform appearance. It dresses all the roof elements in order to harmonize the whole. From the lake, the corten steel base, with its tones of rust and brown, blends in with the roughness of the hemlocks, giving the impression that the house is floating.
▼耐候钢材质的基座与周围铁杉树的粗糙肌理融为一体,the corten steel base blends in with the roughness of the hemlocks © Adrien Williams
在住宅的主楼层,教堂般的屋顶容纳了3组不同的功能:第一个体量包含起居空间和蚊帐空间;第二个体量用作停车场和工作坊;第三个体量则包含了卧室等夜间活动区域。功能核心筒以及通往下层的楼梯被设置在三组功能空间的衔接处。为客人准备的几个房间上下交错地分布在同一排,且部分嵌入场地的斜坡。
▼剖面图,section © _naturehumaine
On the main floor of the house, the cathedral-roofed volumes house 3 functional groupings. The first volume shelters the living spaces as well as the mosquito net space. The second houses the parking lot and the workshop, and the last one contains the night spaces. At the meeting of these three functions is the functional core as well as the staircase leading to the lower floor. Partially recessed into the slope of the lot, the rooms for the guests are located in a row on top of each other.
▼入口立面,entrance facade © Adrien Williams
起居空间的中心设有一个钢制表面的壁炉,其三面分别朝向厨房、餐厅和客厅。雕塑般的体量从屋顶上垂挂下来,轮廓与屋顶坡度形成的对角线形成呼应。这些变化的角度和几何形状为住宅中的每个空间都赋予了独特性,从任何角度看都充满了动感与活力,同时也模糊了人们对住宅尺度的确切感知。
At the heart of the living space is the steel-clad central fireplace. With 3 sides, it serves the kitchen, dining room and living room at the same time. Monumental, it is suspended from the roof and derives its angular geometry from the diagonal formed by the roof slopes. Thus, the variation and angular geometry makes each space singular, each point of view dynamic, while blurring the perception of the scale of this house.
▼起居室,living room © Adrien Williams
▼壁炉划分起居室和餐厅 © Adrien Williams
the fireplace divides the living room from the dining area
▼起居室景观和天窗,the view and skylight of the living room © Adrien Williams
▼变化的角度和几何形状为每个空间赋予独特性 © Adrien Williams
the variation and angular geometry makes each space singular
▼从厨房望向壁炉 © Adrien Williams
view towards the fireplace from the kitchen
▼从餐厅望向厨房 © Adrien Williams
view towards the kitchen from the dining area
▼厨房,kitchen © Adrien Williams
▼楼梯,staircase © Adrien Williams
每个房间都拥有可以俯瞰湖面的宽阔窗户,以及可以从户外露台沿着立面进入房间的入口。这些门被隐藏在被耐候钢覆盖的墙壁中;穿孔钢板巧妙地将浴室的窗户隐藏起来。
Each room has a large window overlooking the lake, as well as a direct entrance from the outside terrace along the facade. These doors are hidden in the regular rhythm of the corten steel panels covering the basement. This wall also makes it possible to hide the bathroom windows behind perforated steel panels.
▼卧室,bedroom © Adrien Williams
▼浴室,bedroom © Adrien Williams
▼每个房间都拥有可以俯瞰湖面的宽阔窗户
Each room has a large window overlooking the lake © Adrien Williams
这些元素同样体现在室内材料的选择中:混凝土地面、用木材装饰的天花板以及生钢或不锈钢加上木材制成的家具元素搭配在一起,共同营造出一种永恒且不过时的观感。除了以耐用性为主导的材料组合外,住宅和整合了一些能够优化能源消耗的功能,例如地热系统、性能超过规范要求的保温层、电动汽车充电站以及节能照明选项等。
These elements find an echo in the interior design choices of the house. Inside, a palette of timeless materials is blended; concrete floors, ceilings adorned with wood, as well as integrated furniture elements made of wood and raw or stainless steel. Beyond the choice of noble materials guided by the project’s desire for durability, the house integrates a number of elements aimed at optimizing its energy consumption such as a geothermal floor heating system, insulation that exceeds code requirements, charging stations for electric vehicles and a choice of energy-efficient lighting.
▼工作坊,the workshop © Adrien Williams
▼木制楼梯,the wooden staircase © Adrien Williams
▼地下一层,the basement floor © Adrien Williams
▼家具细节,furniture details © Adrien Williams
▼建筑夜景,night view © Adrien Williams
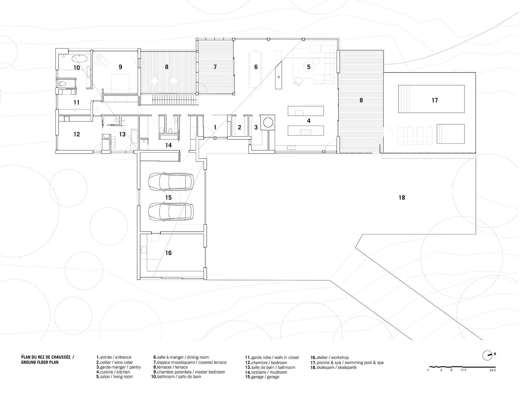
▼一层平面图,ground floor plan © _naturehumaine
▼地下一层平面图,basement floor plan © _naturehumaine
Type: Single family house
Intervention: New construction
Location: Cantons de l’Est
Date: 2020
Photo credits: Adrien Williams
General Contractor: Constructions Boivin
客服
消息
收藏
下载
最近












































