查看完整案例

收藏

下载
阡陌纵横的街巷,鳞次栉比的屋顶群落,平静悠长的河流,以及迎面而来的生活气息是朱家角古镇留给我们的印象。项目位于朱家角古镇一隅,在淀浦河畔,近圆津禅寺码头。
Crisscrossing ancient town streets, row upon row of roof clusters, peaceful and long rivers, and oncoming vitality are the impressions about Zhujiajiao Ancient Town1. The project is located in a corner of Zhujiajiao Ancient Town, on the Dianpu River Bank, not far from Yuanjin Temple Wharf.
▼视频,video ©出品建筑
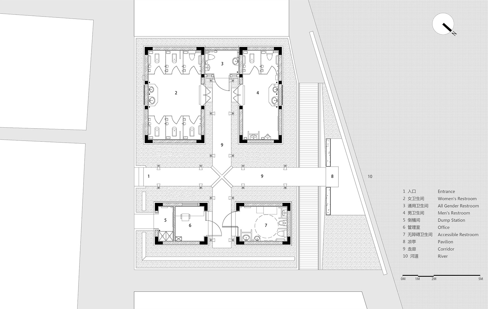
原址是一幢东西向双坡屋顶的男女卫生间。为满足AAA级卫生间的评价标准,需要对此升级改造。我们的策略是将对于朱家角古镇的整体印象,浓缩在这一幢河畔的小房子里。
A men’s and women’s restroom with a double-slop roof from east to west was on the original site. However it needs to be upgraded in order to meet the evaluation criteria of AAA2 restroom. Our strategy is to condense the overall impression of Zhujiajiao Ancient Town in this small house by the River.
▼放生桥与7号,bird’s eye view of the FangSheng Bridge and the project ©出品建筑
▼黎明桥与7号,bird’s eye view of the LiMing Bridge and the project ©出品建筑
▼建筑航拍顶视图,aerial top view of the project ©出品建筑
宽巷中的低连廊在南北方向,是建筑的主要入口,将街巷与河流连通,由熙攘的公共街巷过渡到私密如厕空间,较低的廊顶,限定了不同于古镇街巷的空间氛围。窄巷中的高连廊在东西方向,反向坡面的廊檐,将光引入,以削弱两侧建筑高耸压迫的空间感。
The low corridor in wide alley in the north-south direction is the main entrance of the building, connecting the streets and the River, transitioning from the bustling public streets to the private restroom spaces. Lower roof makes the space atmosphere under the corridor different from that in the Ancient Town streets. The high corridor in narrow alley is in the east-west direction, and the V-shaped roof of the corridor introduces light to weaken the sense of space of the towering and oppressive buildings on both sides.
▼转角街巷处,viewing the project from the corner of the street ©出品建筑
▼东立面,east facade of the project ©出品建筑
十字连廊是建筑的交通与核心,也是古镇街巷的缩影。无论从哪个方向来到此领域,在到达目的地之前都要经过一段廊下空间。廊的尽头是河流,是街巷,是景墙,是透明顶的通用卫生间。
The two corridors crossing are the traffic and cores of the building and the epitome of the streets in Town. No matter which direction you come to this area, you have to pass through a section of space under the corridor before reaching your destination. At the end of the corridors are the river, the street, the scenery wall, and the all gender restroom with transparent roof.
▼转角河岸处,viewing the project from the corner of the river bank ©出品建筑
▼从西侧步入廊亭,Enter the restroom pavilion from the west side ©出品建筑
▼从亭远眺黎明桥,Viewing the LiMing Bridge from pavilion ©出品建筑
连廊的介入,将屋顶不同坡向的新老建筑体量切分,形成四块新的空间:男女卫生间、无障碍卫生间与倒桶间(管理室)。新的空间对应新的坡顶形式,加之交错的十字廊顶与望亭,形成丰富的屋顶关系,回应周边环境。
The entrance of the corridor divides the volume of the old and new buildings with different slopes on the roof to form four new spaces: men’s and women’s restroom, all gender restroom, accessible restroom and dump station (office). The new space corresponds to the new slope roof form, combined with the staggered cross-corridor roof and the viewing pavilion, forming a rich roof relationship that responds to the surrounding environment.
▼体块生成分析动图,concept gif ©出品建筑
▼轴测图,axonometric drawing ©出品建筑
梯形内凹钢柱从燕尾型柱础的外侧伸出,在连廊屋面顶端汇聚,与坡向相反的两座连廊屋顶形成吊挂的关系,钢柱避开了原本狭窄的通行空间。柱础的内侧结合廊下的十字步道整体浇筑,给架空的廊下步道予以支撑。
Trapezoidal concave steel columns protrude from one side of the dovetail column base and converge at the top of corridor roofs. The two opposite sloping corridor roofs and the columns form a hanging relationship. Positions of the steel columns avoid the originally narrow passage space. The other side of the dovetail column base is integrated with the crosswalk under the corridor and is integrally poured to support the overhead walkway under the corridor.
▼主入口,main entrance ©出品建筑
▼宽巷低廊,rich roof relationship that responds to the surrounding environment ©出品建筑
落雨的檐下是古镇最动人的场景。雨水沿屋檐群落下,到地面的池中,在步道下的十字水沟中汇集,纳入河流。由于施工与维护的原因,池中未能蓄水,日常留下光秃的石子,与设想中的屋在水中不太一样,但也别有一番趣味。
The most moving scene in the Ancient Town is raindrops falling from the eaves. Rainwater falls along the eaves group into the pond on the ground, collects in the cross gutter under the trail, and merges into the river. Due to construction and maintenance reasons, the pool failed to store water, leaving bare stones daily, which is not the same as the envisioned house in the water. Another scene is not bad.
▼窄巷高廊,Narrow lane and high corridor ©出品建筑
▼廊下空间,space under the corridor’s roof ©出品建筑
亭是连廊尽头的休憩之所,可近距离观赏到平静悠长的淀浦河,对面的古镇以及两侧放生桥与黎明桥。
The pavilion is a rest place at the end of the corridor. You can enjoy the peaceful and long Dianpu River, the Ancient Town on the opposite side, the Fangsheng Bridge and Liming Bridge.
▼由廊到亭,From the corridor to the pavilion ©出品建筑
基地与古镇中心有段距离,周围环境比较复杂,有传统的寺庙、天主教堂,与居民小区一街之隔。在建筑的风貌上没有些许包袱,是一座能融入环境又个性独立的小房子。在建成使用一年后回拍,小房子被维护的很好,已经成为邻居们的日常。
There is a distance between the site and the center of the Ancient Town. A traditional temple, a church, and a residential quarter across the street make up the surrounding environment which is relatively complicated. There is no baggage on the architectural style, and it is a small house that can be integrated into the environment with an independent personality. It was retaken after one year of construction and use. The small house has been well maintained and has become a daily routine for the nearby residents.
▼屋顶细部,detail of the roof ©出品建筑
▼玻璃顶的通用卫生间,Glass-topped restroom space ©出品建筑
▼模型,models ©出品建筑
▼区位图,site location ©出品建筑
▼平面图,plan ©出品建筑
▼立面图,elevation ©出品建筑
▼剖面图,section ©出品建筑
▼剖面细部,construction details ©出品建筑
Annotation:
1. Zhujiajiao Ancient Town is one of the four famous historical and cultural towns in Shanghai
2. AAA level is the highest standard for the restroom in tourist attractions in China with corresponding requirements for all aspects.
客服
消息
收藏
下载
最近






























