查看完整案例

收藏

下载
位于杭州的中国美术学院(CAA)共有两个校区:老校区在市中心,毗邻西湖;新校区位于郊区,面积也更大。在新校区,随处可以看见建筑师王澍的作品:这里大部分的建筑由他设计。该项目开始于王澍获得2012年普利兹克奖之前,从工作开始初期,项目团队得到了王澍和她同为建筑师的妻子陆文宇的大力帮助。
The Chinese Academy of Art (CAA) in Hangzhou has two campuses. One is in the city center, near West Lake, and a new larger campus is in the outskirts. The presence of the architect Wang Shu is ubiquitous on the new campus: most of it buildings were designed by him. When we started on this work, he had not yet received the 2012 Pritzker Prize. The help that we received from both of him and his architect wife Lu Wenyu during the early stages of our work – and even today -, were and continue to be fundamental.
▼项目概览,preview ©Fernando Guerra
▼博物馆外观,exterior view ©Fernando Guerra
中国美术学院的巨大馆藏及其从包豪斯学校获得的大批原始藏品是该项目得以诞生的根源所在。为了汇集丰富的馆藏和其他临时展览,需要建造一座能够满足一些特定功能、同时又富有特色的博物馆。
The huge CAA collection and its recent acquisition of a large set of originals items from the Bauhaus School prompted the idea of a museum for the permanent collection along with other works and temporary exhibitions. We were given a characteristic museum brief, apart from some specific features.
▼博物馆和校园环境,the museum in the school campus ©Fernando Guerra
▼背部立面,the rear facade ©Fernando Guerra
校园虽然面积广阔,却没有太多可用的空地,除了东南角的一处区域——位于两条主干道交汇处的一块延伸出来的场地。该场地呈三角形,且受到城市和环境规划规范的限制,以上因素决定了建筑可能的占地面积和体量的尺度。
▼场地平面图,site plan © Álvaro Siza + Carlos Castanheira
▼分析图,concepts © Álvaro Siza + Carlos Castanheira
The huge campus was already nearly fully occupied. There was only one area still available on the south-eastern edge, at the intersection of two major roads in this expanding area. The available land has a triangular shape, with the planning restrictions of an urban and environmental nature that defined the building’s possible footprint and volume.
▼鸟瞰,aerial view ©Fernando Guerra
▼三角形场地,the triangular site ©Fernando Guerra
▼屋顶坡道,ramp on the roof ©Fernando Guerra
▼首层入口区域,entrance area on the ground floor ©Carlos Castanheira
建筑的内部布局旨在强调行人的顺畅流动以及空间的灵活使用。作为一所艺术学院的设施,博物馆的主要目的是展示学生与教师的各项工作成果以及他们使用的语言与技术,同时还要起到迎接来宾的作用。
The internal layout seeks to facilitate smooth visitor flow and flexibility in the use of spaces. Being an art academy, its main purpose will be to display the results of different activities, languages and techniques deployed by students and teachers, as well as to receive guests.
▼大厅空间,lobby gallery ©Fernando Guerra
▼展厅,exhibition hall ©Fernando Guerra
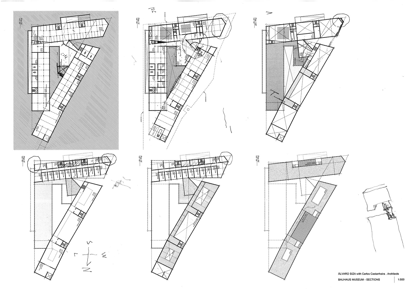
建筑的地下层容纳了技术区、档案室和服务区,此外还有一间咖啡厅直接与建筑中心的三角形庭院相连接。建筑首层包括入口、公区和休闲区域、交通空间、临时展厅和礼堂。首层上方设有一个夹层,可提高流通性,同时还设有一条坡道,可通往朝东的体量上方的屋顶花园。该体量的顶层是包豪斯馆藏的永久展厅。行政办公区、青年艺术家工作室和一些基础设施位于顶部朝南的几个楼层。
The basement is planned to house the technical areas, archives, service areas, and a café connected directly to a triangular courtyard in the centre f the building. Above it, the ground floor contains the entrance, public and rest areas, distributions, temporary exhibition halls and auditoriums. A mezzanine level permits circulation and a ramp link to the roof garden above the east-facing volume. The top floor of this volume is for the permanent exhibition of the Bauhaus collection. The administration areas, workshops for young artists and also some of the infrastructure are on the south-facing upper floors.
▼夹层展区,mezzanine level gallery ©Fernando Guerra
▼夹层空间,mezzanine level ©Fernando Guerra
▼错层关系,the spatial relationship of different levels ©Fernando Guerra
▼楼梯,staircase ©Fernando Guerra
▼礼堂,auditorium ©Fernando Guerra
建筑的外立面采用了源于印度的红色阿格拉砂岩饰面。部分楼层,尤其是三角形体量的地面以白色大理石铺设,框架采用铝或木材。南侧边界有一个垂直插入的白色混凝土体量,用于容纳公共游客的入口。
Red Agra sandstone from India will define the volumes and the exterior cladding. Some of the planes, especially inside the triangular volume, will be clad with white marble. The frames will be in be aluminum/wood. A free-standing volume in white concrete, inserted perpendicularly to the southern boundary, will be used as an entrance of the general public.
Text by Carlos Castanheira
▼外立面,facade ©Fernando Guerra
▼红色阿格拉砂岩饰面,the Red Agra sandstone cladding ©Carlos Castanheira
▼体量与植物,the volume and the tree ©Fernando Guerra
▼从博物馆屋顶俯瞰校园,overlook to the campus from the roof of the museum ©Fernando Guerra
▼项目模型,project model © Álvaro Siza + Carlos Castanheira
▼场地平面图,site plan © Álvaro Siza + Carlos Castanheira
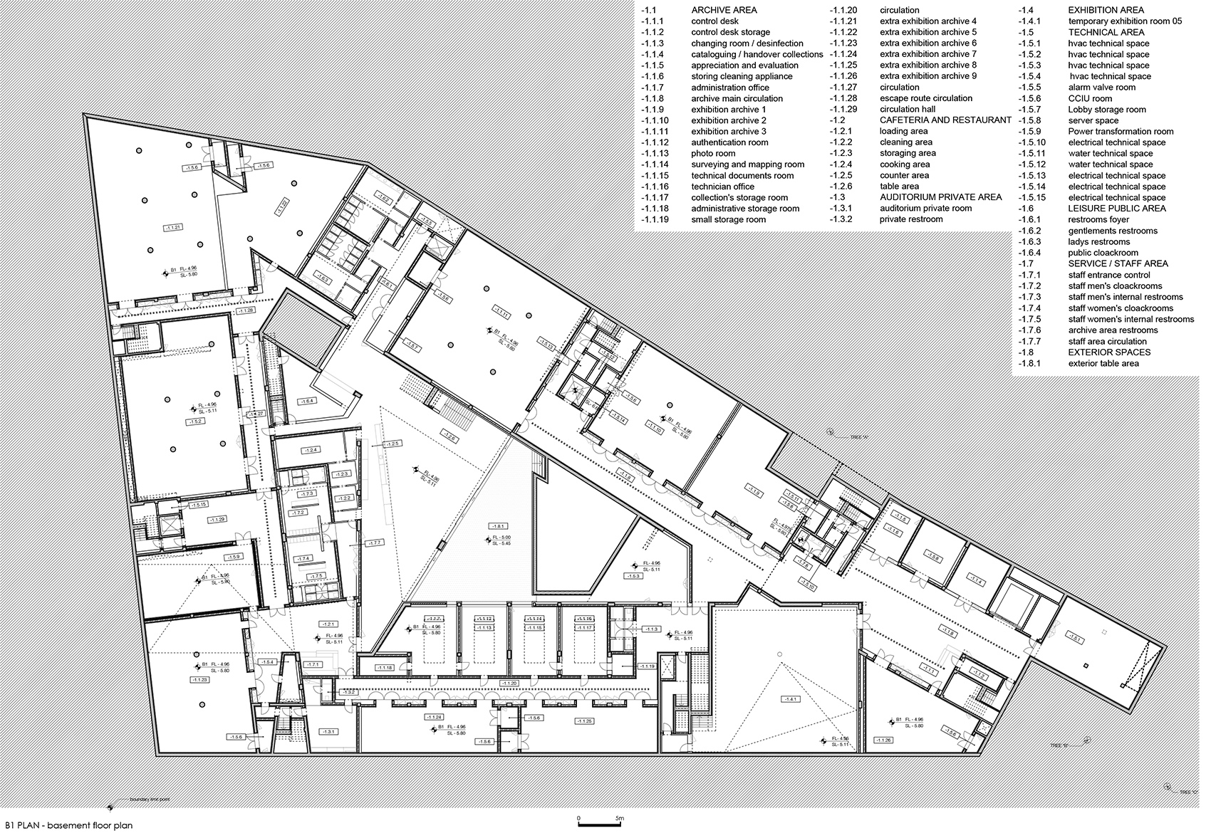
▼地下一层平面图,basement floor plan © Álvaro Siza + Carlos Castanheira
▼首层大厅和夹层平面图,lobby gallery and mezzanine floor plan © Álvaro Siza + Carlos Castanheira
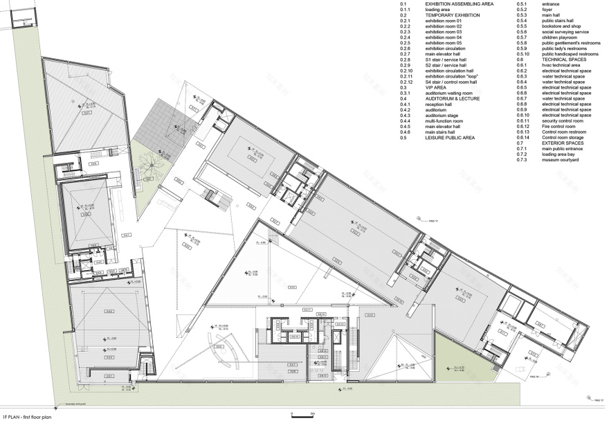
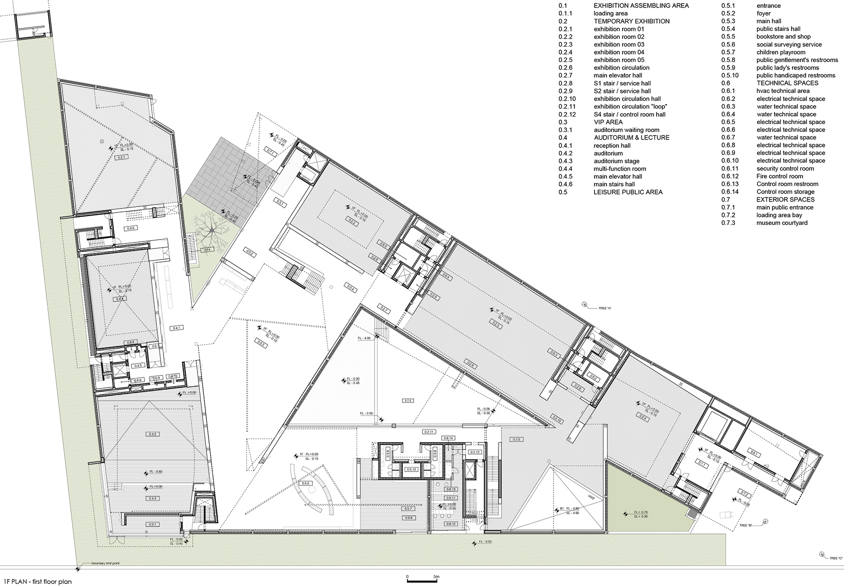
▼二层平面图,first floor plan © Álvaro Siza + Carlos Castanheira
▼三层和四层平面图,second and third floor plan © Álvaro Siza + Carlos Castanheira
▼五层平面图,fourth floor plan © Álvaro Siza + Carlos Castanheira
▼屋顶平面图,roof plan © Álvaro Siza + Carlos Castanheira
▼东立面和南立面图,east elevation & south elevation © Álvaro Siza + Carlos Castanheira
▼剖面图,sections © Álvaro Siza + Carlos Castanheira
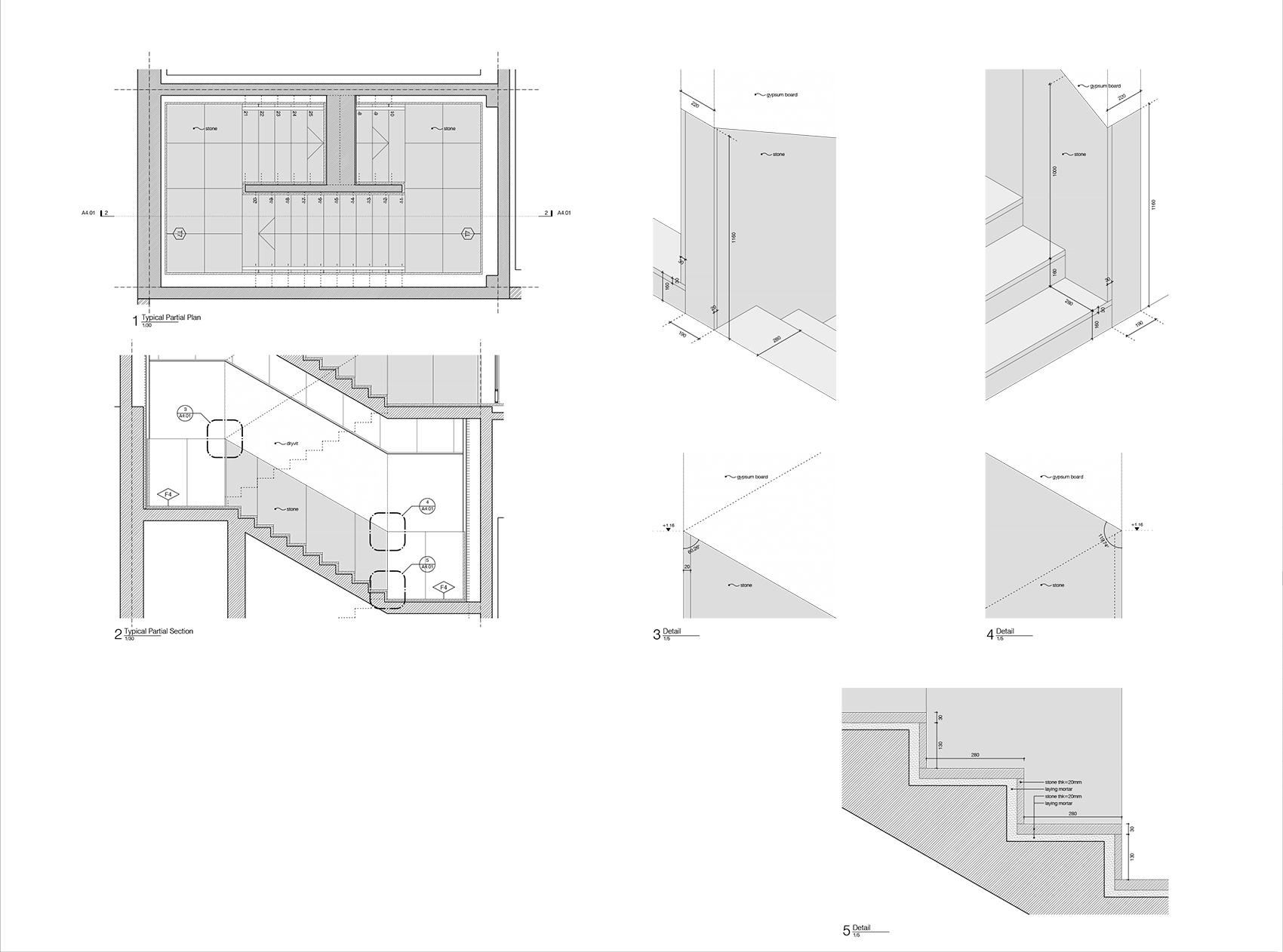
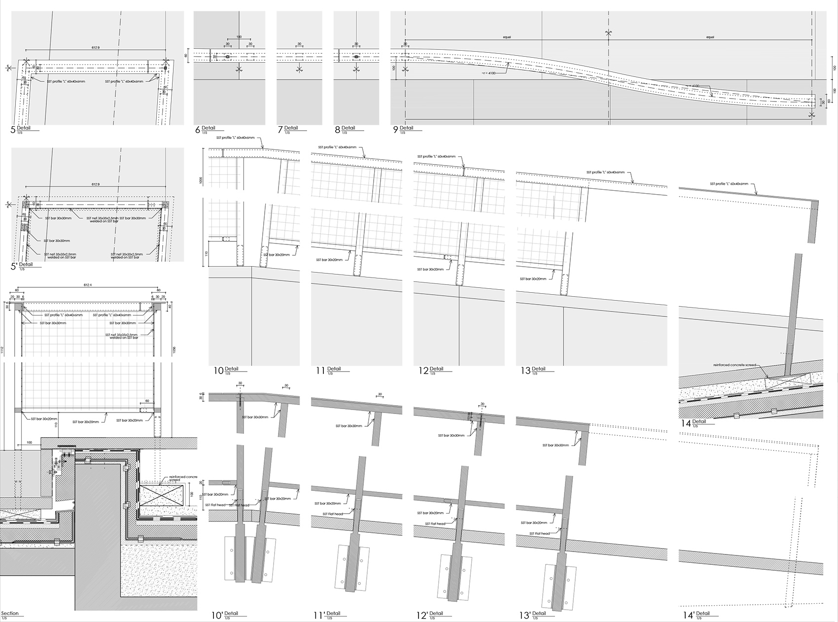
▼屋顶扶手细部,handrail on the roof level © Álvaro Siza + Carlos Castanheira
CHINA DESIGN MUSEUM OF BAUHAUS COLLECTION
Location: Hangzhou , China
Project: February 2012 – December 2013
Construction: September 2014 – April 2018
Architects : Álvaro Siza with Carlos Castanheira
Portugal Office: CC&CB, Arquitectos
Principal in Charge : Pedro Carvalho
Collaborators: Adalberto Dias, Carolina Leite, Catarina Rodrigues, Diana Vasconcelos, Elisabete Queirós, Francesca Tiri, Germano Vieira, Joana Soeiro, João Figueiredo, Jorge Santos, Nuno Campos, Pedro Afonso, Rita Ferreira, Sara Pinto, Susana Oliveira
Local Office: The Design Institute of Landscape & Architecture, China Academy of Art
Architecture: Liu Ke, Zhao Yaunpeng, Jiang Weihua
Struture: Shentu Taunbing, Chen Yongbing
Engineering: Zhu Weiping, Yu Xiaofen ( Hydraulical),
Jin Guogang, Wang Yonghong ( Electrical)
Chen Chunji, Teng Liang ( HVAC)
Intelligent Desing: Sun Mingliang, Sin Minjun ( intelligent Design)
Hangzhou Zhida Archit. Science & Technology Co.,Ltd , Zhang Shanming, He Haixia ( ACosutics)
Consultants: GET – Raul Bessa ( HVAC) ,
HDP – Paulo Fidalgo ( Structure)
3D models: Germano Vieira, Pedro Afonso
Total Building Area: 16.000 m2
Site Area: 8.000m2
客服
消息
收藏
下载
最近






































































































