查看完整案例

收藏

下载
基地位于流经大阪府枚方市的舟桥川与穂谷川之间,坐落在住宅区的缓坡上。住宅用地开发将地面抬升,使路面和基地产生高差,居民将车停在路边,将住宅置于坡上,在有高差的地方用墙隔开道路和住宅,给人一种整个住宅区与道路隔绝的印象。随着周边房屋重建以及住宅区景象逐渐变化,设计师希望积极地利用场地高差并展现与住宅和路面相协调的建筑模式,而非传统的建筑模式。
The site is in a section of a residential area located on a gentle slope between the Funahashi and Hotani rivers, which flow through Hirakata in Osaka Prefecture. Raising the ground level when the land was developed for residential use has created a difference in height between the roads and the sites, and the rows of houses have been induced to place parking spaces on the roadside and residences on the upper level with walls where the height changes, distancing the road and the residence and creating an impression that the entire town is closed off from the roads. As the surrounding houses are being rebuilt and the scenery of the town gradually changes, we wanted to proactively use the height difference created by the raised level and present a way of building that is aligned with both the residence and the road, rather than the conventional, customary way of building houses.
▼项目概览,general view © yosuke ohtake
与周边住宅一样,该项目的主要生活区位于高于路面1.2米的基础层面。檐下空间使室内外产生连续性,生活交织在室内、室外以及半室外空间中,居住者可以在道路和住宅之间的区域进行多样的活动。设计师利用一半高差构成斜坡,创造出从道路至住宅的平缓连接以及没有挡墙的开放结构。
The main location for living is planned to be on the foundation level 1200 mm above the road, like the surrounding residences. The eave space under the roof creates internal and external continuity, and life crosses between the interior, exterior, and semi-exterior, with various activities overflowing into the space between the road and the residence. Half of the section with a difference in height has been formed into a slope to form a gentle connection from the road to the residence and an open structure with the wall removed.
▼沿街立面,main facade © yosuke ohtake
▼主要生活区位于高于路面1.2米的基础层面,the main location for living is planned to be on the foundation level 1200 mm above the road © yosuke ohtake
▼斜坡构成从道路至住宅的平缓连接 © yosuke ohtake
the slope forms a gentle connection from the road to the residence
▼入口,entrance © yosuke ohtake
坡顶的树木吸引了道路一侧的视线,同时将风声引入家中。客厅延伸出来的露台位于树木旁,营造出舒适的半室外空间。面向道路的空间确保了这里未来作为车库的功能,砾石铺地有利于功能的转变。
The trees planted at the top of the slope control lines of sight from the road, while bringing the sound of the wind into the home. A deck terrace continuing from the living room has been arranged near the trees to create a comfortable semi-exterior place. The space facing the road secures functionality as a garage with the future in mind, while being paved with gravel to facilitate changes of function.
▼檐下半室外空间,the semi-exterior place under the eave © yosuke ohtake
▼居住者在露台上休息 © yosuke ohtake
residents resting on the terrace
▼露台与客厅相连 © yosuke ohtake
the terrace is connected to the living room
工程完工三个月后,设计师在回访的时候,住在对面的女士冲他们大喊以示不满,他们才得知几天前露台前的唐棣在雨中七零八落。
This happened when we visited three months after construction was completed. A lady who lives in the house across the street noticed that the flowers on the juneberry planted in front of the terrace at this residence had scattered in the rain a few days earlier, and she called to us in a loud voice from her own site to express disappointment about this.
▼室内概览,overall view of the interior © yosuke ohtake
▼入口区域,entrance area © yosuke ohtake
▼从入口望向室内,view to the interior from the entrance © yosuke ohtake
▼从客厅望向厨房&餐厅,view to the kitchen&dining from the living room © yosuke ohtake
▼厨房,the kitchen © yosuke ohtake
▼从厨房望向客厅,view to the living room from the kitchen © yosuke ohtake
▼通高空间,height space © yosuke ohtake
▼从楼梯望向餐厅 © yosuke ohtake
view to the dining room from the stairs
▼从二层回望生活区,view back to the living area from the 2nd floor © yosuke ohtake
在施工期间,我们路过几栋房屋下面的花园,那里没有人使用,树木似乎也被忽略了,但上面铺设了木平台,并放置了一把看起来很舒服的摇椅。这些只是小事,但如果这些小事积累起来,人们习惯的使用住宅区和房屋的方式也不知不觉地从根本上发生改善,设计师希望该区域和生活方式的吸引力会进一步提升。
The garden a few houses down was not being used whenever we passed during construction and the trees appeared to be neglected, but a deck had been laid and comfortable-looking rocking chair had been placed there. These are only minor events, but if these minor events accumulate and the customary way of using the town and houses that has unconsciously taken root changes for the better, the attraction of the town and lifestyle will—we hope—increase further.
▼细部,details © yosuke ohtake
▼区位图,location © HIDEO ARAO ARCHITECTS
▼一层平面图,1st floor plan © HIDEO ARAO ARCHITECTS
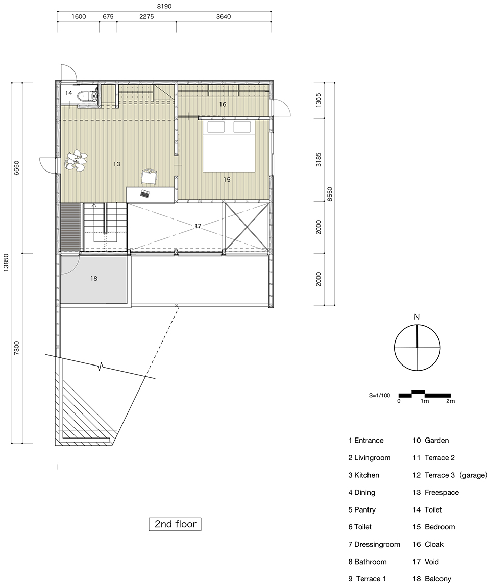
▼二层平面图,2nd floor plan © HIDEO ARAO ARCHITECTS
▼剖透视图,sectional perspective © HIDEO ARAO ARCHITECTS
Design: HIDEO ARAO
Design Team: HIDEO ARAO ARCHITECTS
Construction: YOSHIKAWA building contractor
Location: Hirakata , Osaka
Use: house
Area: 165㎡
Photo: yosuke ohtake
客服
消息
收藏
下载
最近



































