查看完整案例

收藏

下载
这里已经有了一个均质的类似办公室的空间,约有20名员工在此工作。他们中有些会在自己的办公桌边包装产品,有些负责生产工业产品的部件。二分之一的员工使用开放办公桌,另外二分之一员工的办公桌通过隔断分开,与他人隔绝。由于访客会让他们感到紧张,堆叠的盒子和隔墙将单人工作间与公共空间分隔开来。PALETTE位于这个办公空间旁边,是一座就业辅助设施。
In a homogeneous space like an office, about twenty users were engaged in work; some were packing products in boxes at their desks, and some were processing parts for industrial products. One-half of them were working at an open desk, and the other half sat at individual desks with partitions so that no other people came into sight. Because they felt nervous about the visitors, high screaming came from individual cabins separated by piled up boxes and partitions. It was something I saw in the existing facility on an adjacent section before the design of the employment support facility PALETTE.
▼项目鸟瞰,aerial view of the project ©Takumi Ota
▼项目沿街外观,external view of the project along the street ©Takumi Ota
PALETTE是一座为残障人士提供B型连续就业辅助服务的设施,有智力障碍的人们可以在这里从事生产加工工作。这些工作并非重复性的廉价劳动,体现了对每个使用者人格和个性的尊重。建筑中设有一个制作糖果艺术品的糖果工厂,一个带有全尺寸窑炉的陶瓷工厂,一个装备了丝网设备的印刷厂,以及一个多功能艺术工作室,除了画画,也可以用作咖啡厅、画廊和商店,展示使用者的作品。从管理角度来说,工厂和工作室中的创造性活动多在开敞的大空间中进行。然而,由于不同的身心障碍,一些人在与他人身处同一空间时会感到紧张,这点在现存的设施中也有体现。因此,新的设施希望创造一个非均质的反多米诺空间,让每个使用者都能够找到令自己感到舒适的场所。
PALETTE is a facility for Continuous Employment Type B Support Services for the Disabled, where people with intellectual disabilities engage in manufacturing work that respects each employee’s personality and individuality not repetitive menial tasks. This facility is equipped with a confectionary factory where users can make amezaiku (Japanese candy art), a ceramics factory with a full-scale kiln, a printing factory with silk-screen equipment, and an art studio that allows various expressions not limited to paintings, as well as a café, gallery, and shop to exhibit users’ works. Creative activities in the factories and studios usually take place in a room with a large space from the manageability perspective. However, depending on the characteristics of the disabilities, some are stressed when in the same space with others like those I met at the existing facility. Therefore, for this facility, we were expected to design a space where each individual user could find a comfortable place to fit in, not a homogeneous space like a Dom-ino Skeleton.
▼建筑正立面,front facade ©Takumi Ota
▼建筑背立面,back facade ©Takumi Ota
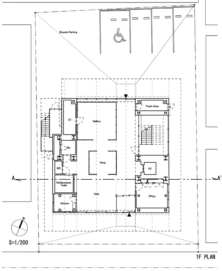
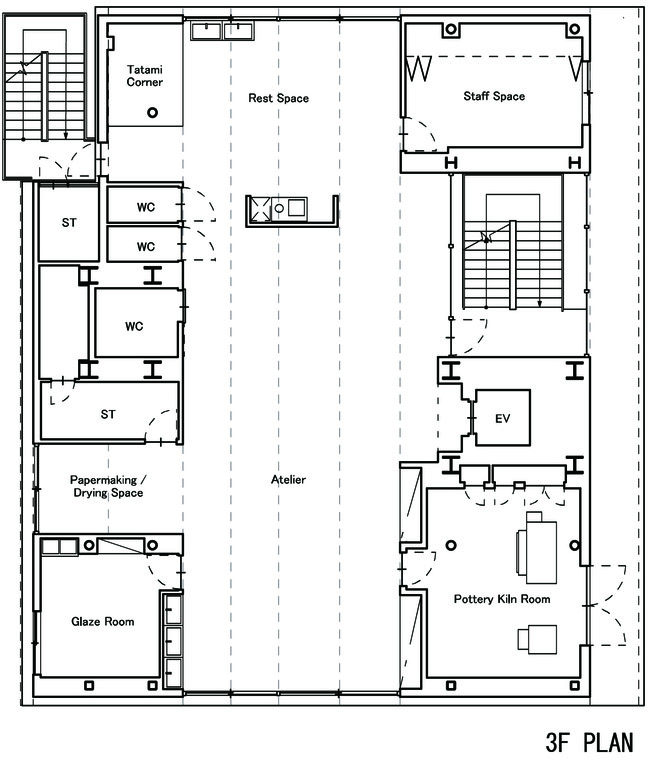
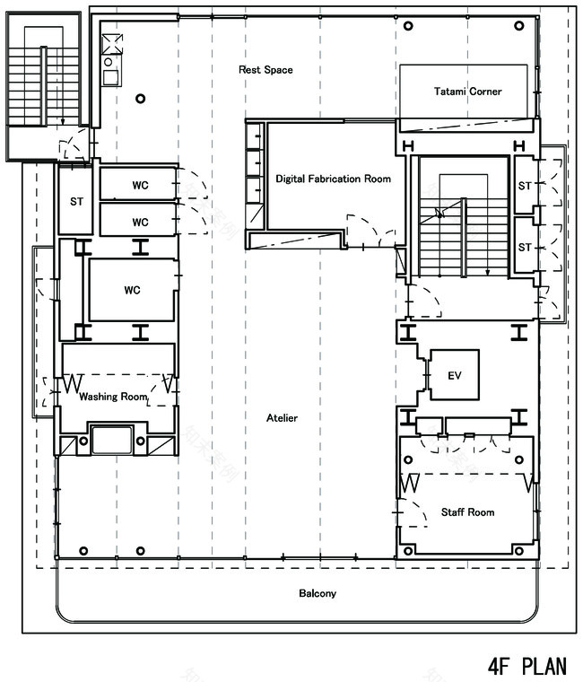
建筑有四层,每层设有不同的功能。一层是咖啡厅和商店,二层设有糖果工厂和休息室,三层为陶瓷和砂纸工厂,四层包含印刷工厂和工作室。分割不同楼层的天花如同一排排三角屋顶。由金属网制成的锯齿屋顶下形成封闭的房间,如同尺度宜人的小屋。每个小屋使用的材料反映了小屋的功能,这种手法也运用在了建筑的外墙设计上,让人们不需要看指示牌,就能马上理解每个空间的用途。举例来说,窑炉所在的空间由无釉砖组成,上釉区则使用釉面瓷砖。设计希望使用者可以在这些材料各异的尖顶小屋中找到属于自己的舒适空间。
The building has four floors for different uses, including a café and shop on the first floor, confectionary factory and break room on the second floor, ceramics and paper-milling factories on the third floor, and a printing factory and studio on the fourth floor. The shape of the ceilings separating each floor looks like several gabled roofs lined up. Placing closed rooms under the jagged ceiling made of expanded metal creates familiar scale huts. Each hut uses materials that represent its use, and those for use in exterior walls of the building around the site are used so that users can intuitively understand where they are without reading signs; the kiln site uses unglazed bricks and the glazing room uses glazed tiles. It is expected that users will find their own comfortable place based on the characteristics of the huts with these unique materials and jagged ceiling.
▼立面近景,不同材料体现内部空间的功能,closer view to the facade, different materials indicating the uses of the space ©Takumi Ota
▼金属网制成的三角形天花,gabbled ceiling made of expanded metal ©Takumi Ota
▼金属网网檐口细部,closer view to the eave made of expanded metal ©Takumi Ota
▼从室外看向楼梯间,view to the staircase from the ourside ©Takumi Ota
▼一层商店、画廊和咖啡厅空间,first floor space of shop, gallery and cafe ©Takumi Ota
▼咖啡厅,cafe ©Takumi Ota
▼展架,display shelves ©Takumi Ota
▼细部,details ©Takumi Ota
▼二层厨房,kitchen on the second floor ©Takumi Ota
▼榻榻米区和休息区,tatami corner and rest space ©Takumi Ota
▼三层工作室,atelier on the third floor ©Takumi Ota
▼隔断分隔的工作区,workplace separated by partitions ©Takumi Ota
▼四层工作室,atelier on the fourth floor ©Takumi Ota
▼不同的工作区,different work space ©Takumi Ota
▼榻榻米角,Tatami Corner ©Takumi Ota
▼楼梯间,staircase ©Takumi Ota
▼材料细部和标识,material details and way finding system ©Takumi Ota
设施距大阪的娱乐地区Juso很近。工厂和工作室与周边使用沉稳材料的建筑形成对比,仿佛来到了城市外围。建筑的外立面个性鲜明,由多层材料和形状锋利的体块组成。但这只是建筑融入环境的结果,并为Juso这一富有个性的城市所接受。
The facility is located very closed to Juso, the entertainment district in Osaka. When in the factories and studio, coupled with the surrounding landscape with a depth and inertial materials, you feel like you are in an urban outside space. The outer design is assertive with various layered materials and sharp objects. But this is only the result of making it fit into the buildings surrounding the facility, and the design has become accepted by the distinctive city of Juso.
▼夜景,night view ©Takumi Ota
▼一层平面图,first floor plan ©Kosuke Bando Architects+nanometer architecture
▼二层平面图,second floor plan ©Kosuke Bando Architects+nanometer architecture
▼三层平面图,third floor plan ©Kosuke Bando Architects+nanometer architecture
▼四层平面图,fourth floor plan ©Kosuke Bando Architects+nanometer architecture
▼五层平面图,fifth floor plan ©Kosuke Bando Architects+nanometer architecture
客服
消息
收藏
下载
最近



















































