查看完整案例

收藏

下载
未来,充满期许,亦在矛盾与冲突中充满着未知。我们希望这是一个与我们共生的空间,彼此感知,共存…
The future is full of expectations, but also full of unknowns in contradictions and conflicts. We hope this is a symbiotic space with us, mutual perception, coexistence
▼室内概览,overview © 代忠海
拆解,保留,转化
Disassemble, retain, transform
每个人都有曾经的故事,空间亦如是。我们刻意保留了部分原有场所的表皮痕迹,让它述说着自己的故事。通过设计的打磨,呈现出新的表情。
Everyone has a story, so does space. We deliberately keep some of the skin traces of the original place, let it tell its own story. Through the polishing of the design, it presents a new expression.
▼洽谈区的桌椅与书架,furnitures for meeting © 代忠海
新生,与过去的共鸣
New life, resonance with the past
我们希望通过场所展现出一种张力:新与旧,坚硬与柔和,粗糙与精细,明亮与昏暗,如我们的缩影,在矛盾与冲突去不断感知过去与未来。
We hope to show a tension through the place: new and old, hard and soft, rough and fine, bright and dim, such as our miniature, in contradiction and conflict to constantly perceive the past and the future.
▼休息区,rest area © 代忠海
简素,单纯中的丰富 · 材料的表情
Simplicity, richness in simplicity · Expression of materials
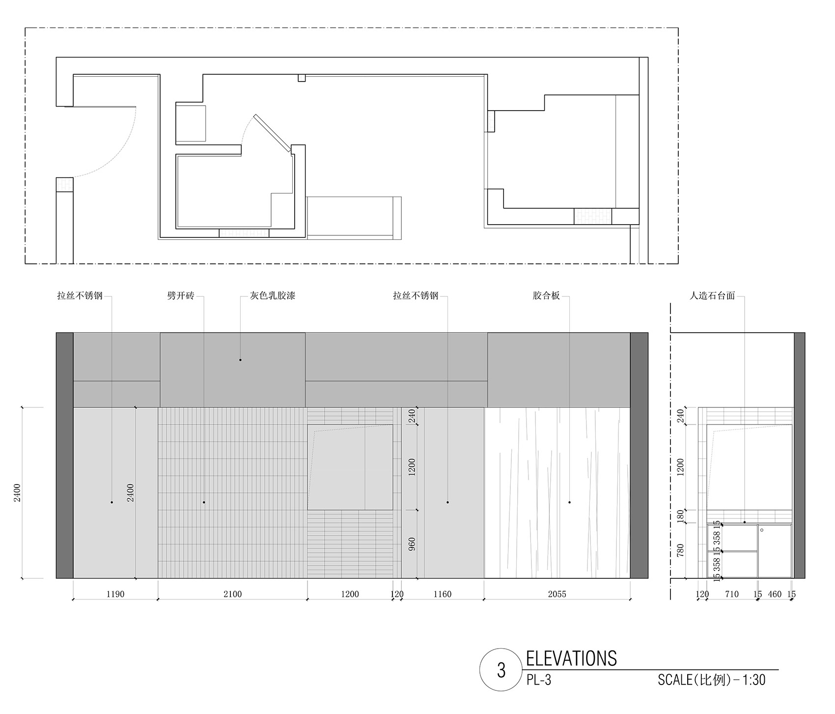
墙 | wall
设计师铲除原墙面表皮的乳胶漆,刻意打磨出斑驳的肌理,让空间将它过往的故事娓娓道来。
The designer eradicates the latex paint of the original wall surface and deliberately grinds the mottled texture to let the space tell its past story.
▼墙体与家具的不同材质,different materials of the wall and the furnitures © 代忠海
▼整体打造的电视墙,the integrated TV wall © 代忠海
木 | Wood
在有限的时间与造价的控制下,设计选择了常用于基层的胶合板,让其既作为基层材质,又作为饰面材质使用,在合理控制时间与造价的前提下,亦展现出其独特温润的天然纹理与自然力量,糅合了新与旧所带来的冲突感。
Under the control of limited time and cost, plywood commonly used in the base is designed to be used as both the base material and the facing material. Under the premise of reasonable control of time and cost, it also shows its unique natural texture and natural strength, which combines the conflict between the new and the old.
▼木材既作为基层材质,又作为饰面材质
plywood used as both the base material and the facing material © 代忠海
金属 | Metal
硬冷的不锈钢,与粗糙的劈开砖,柔软的木质形成强烈的对比,映射出对未来的期许,对过去的共鸣。
The hard and cold stainless steel, in sharp contrast to the rough split brick and soft wood, reflects the expectation of the future and the resonance of the past.
▼不锈钢材质的桌子与面板,metal applied on table and wall © 代忠海
光 | light
刻意降低整体空间的照度,强调室内温暖的重点照明,通过强烈的明暗对比,暗示出在矛盾与冲突中对未知的好奇与探求。
Deliberately reduce the illumination of the whole space, emphasize the indoor warm key lighting, through the strong light and dark contrast, implies the curiosity and exploration of the unknown in the contradiction and conflict.
▼灯光与阴影,the light and shadow © 代忠海
▼光线照在室内家具上,the light on the furnitures © 代忠海
砖 | brick
最为普通廉价的外墙劈开砖,我们希望通过铺贴方式的变化去重新发现它的价值与表情。
We hope to rediscover its value and expression through the change of paving method.
▼砖墙细部,details of the brick wall © 代忠海
▼家具细部,details of the furnitures © 代忠海
▼轴测图,axonometric © 有物设计顾问
▼平面图,plan © 有物设计顾问
▼立面图,elevation © 有物设计顾问
客服
消息
收藏
下载
最近




























