查看完整案例

收藏

下载
项目简介 | Project Brief
成都远洋太古里是成都最重要的商业综合体,也是全国范围内极具代表性的开放式商业街区。从2014年开业至今,已成为成都购物和潮流的地标。本项目基地“玉成街”位于太古里东南侧,长约150米,最窄处5.1米,最宽处7.4米。在本次改造前,玉成街与太古里之间由一段围墙隔开。多年以来,围墙一边是城市最繁华的商业街,另一边则是老旧的居住小区和零散的底层铺面。
Sino-Ocean Taikoo Li Chengdu is the most important commercial complex in Chengdu, and also a very representative open commercial block in China. Since its opening in 2014, it has become a shopping and fashion landmark in Chengdu. The project base “Yucheng Street” is located in the southeast of Taikoo Li. It is about 150 meters long, 5.1 meters at the narrowest point and 7.4 meters at the widest point. Before the renovation, Yucheng Street was separated from Taikoo Li by a section of wall. For many years, one side of the wall has been the busiest commercial street in the city, and the other side is the old residential quarters and scattered small shops.
▼改造后,主入口,after renovation, the main entrance © 存在建筑
设计初衷 | Original Intention of Design
围墙的阻隔形成了一条150米长的城市断层,玉成街在繁华的映衬下显得更加暗淡,似乎停留在更加久远的年代,或者已被城市所遗忘。从2014年至2020年的6年间,随着太古里的兴起,玉成街上原有的11个铺面经历了数次易手,渐渐出现了一些有趣的店家。但围墙的存在、管网的错乱、街面的破败,一系列消极因素制约了玉成街的持续更新和发展。设计的初衷是打破围墙阻隔,改善街道基础条件,提供适度的有效空间,引入丰富的经营业态,以此延续并激发城市活力,为玉成街持续的自发更新和发展提供契机及可能。
▼项目区位,location © 凡筑
▼改造前现场照片,the site before renovation © 凡筑
The barrier of the wall forms a 150m-long “urban fault”, and Yucheng Street looks even dimmer against the prosperous background, as if it stays in a longer time, or has been forgotten by the city. During the six years from 2014 to 2020, with the rise of Taikoo Li, the original 11 shops on Yucheng Street changed hands several times, and some interesting shops gradually emerged. However, a series of negative factors, such as the existence of the wall, the disorder of the pipe network and the dilapidated street surface, restrict the continuous renewal and development of Yucheng Street. The original intention of the design is to break the barrier of the wall, improve the basic conditions of the street, provide appropriate commercial space and introduce rich business forms, so as to continue and stimulate the vitality of the city, and provide opportunities and possibilities for the continuous spontaneous renewal and development of Yucheng Street.
▼道路一侧的临时商业,shops on one side of the street © 存在建筑
▼为游客提供休憩的场地,rest places for the visitors © 存在建筑
设计策略 | Design Strategy
根据场地状况,提出三个基本改造措施:翻新、整改、临建。“翻新”针对原始居民楼外立面:增加雨棚、梳理管线、外墙涂刷;“整改”针对原始街面:管网下地、增加配套、路面铺装;“临建”针对局部可建设区域增设可运营和体验的临时空间。150米长的街道,宽度在5.1米~7.4米之间,除去需要预留的4米宽消防车道后,能够临建的场地只有1.1米~3.4米。临建设计是在城市的裂痕中见缝插针,类似于瓷器修复中使用的“金缮”手法,利用一条连续的150长,1.1米~3.4米立体粘合带,将新和旧的城市氛围牢牢缝合在一起,形成完整的互动空间环境。
▼改造更新步骤分解图,steps of the renovation © 凡筑
According to the site conditions, we put forward three basic transformation measures: renovation, rectification and temporary construction. “Refurbishment” aimed at the facade of original residential buildings: adding canopy, rearranging pipelines and painting the exterior wall; The “rectification” is aimed at the original street surface: the ground under the pipe network, the addition of supporting facilities, and the pavement; “Temporary construction” adds temporary Spaces that can be operated and experienced in local constructable areas. The 150m long street has a width of 5.1m ~ 7.4m. Apart from the 4m wide fire lane that needs to be reserved, the site for temporary construction is only 1.1m ~ 3.4m. The architectural design is like the Chinese idiom “stick in a pin wherever there’s room”, similar to the “Jinshan” technique used in porcelain restoration. The new and old urban atmosphere is firmly sewed together by a continuous adhesive belt of 150 meters, 1.1 meters to 3.4 meters, forming a complete interactive space environment.
▼改造后的城市通道,street after renovation © 存在建筑
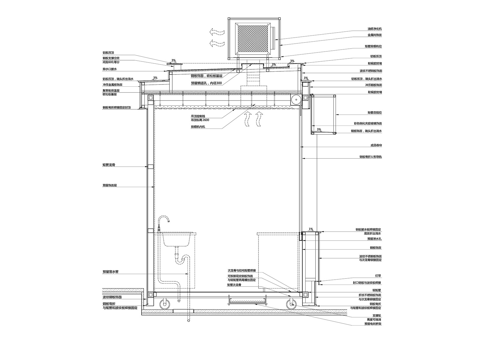
预制箱体 | Prefabricated Box
临建设计的原则为:连续、参与、装配。连续性以保证新旧环境之间有足够长的接触面,可以承载即将引入的经营内容,提供足够丰富的消费场景;参与性以保证连续的界面不会显得单调乏味,利用分段的放大空间或口袋景观设计,使更多的路人可以休憩停留;装配化以保证现场施工的快速度和准确度,设计提供加工、安装节点图,在工厂内预制箱体、试装组团。预制箱体不设机础可拆卸移动,减少了对道路下部密集城市管网的破坏。
▼预制箱体组团分解图,diagram © 凡筑
▼预制箱体1号组团现场拼装,site work © 存在建筑
▼预制箱体端部店铺,prefabricated boxes at the end of the street © 存在建筑
▼预制箱体组合,combination of the prefabricated boxes © 存在建筑
口袋景观 | Pocket Landscape
根据城市建筑肌理、道路格局,确定以下部位作为放大的景观节点:街区入口;太古里人行通道对应部位;住宅小区主要出入口对应部位;场地过窄导致难以布置实际操作空间的部位。景观节点的设计摒弃绿化和铺装为主的环境设计方式,更多设计小桌小凳一类可被使用和参与的道具场景。通过委托方对招商运营的精心安排,在各节点附近布置如DJ台、快闪店、鲜花店等情景业态,局部放大的空间得以借景借势,融入到长街之中。人的经营活动成为口袋景观视觉和行为体验上的延伸。
▼景观节点放大图,the landscape system © 凡筑
According to the urban building texture and road pattern, the following parts are determined as the enlarged landscape nodes: block entrance; Taikoo Li Pedestrian Channel Node; The main entrance and exit of the residential district; A narrow area difficult to construct. The design of landscape nodes abandons the environmental design mode based on greening and pavement, and more props such as tables and stools can be used and participated in the design. Through the careful arrangement of investment attraction operation by the entrant, situational business forms such as DJ station, pop-up shop and flower shop are arranged near each node, so that the partially enlarged space can be integrated into the long street by taking advantage of the scenery and potential. People’s business activities become the extension of the visual and behavioral experience of the pocket landscape.
▼花店成为街道借景,flower shop as the background © 存在建筑
▼小桌小凳等口袋景观,tables and stools © 存在建筑
▼细部,details © 存在建筑
律动的管体 | Rhythmic Tube Body
4米宽的街面需要预留给消防车和小区车辆进出,无法在此范围内布置任何构筑。为解决街面空荡乏味的问题,我们采用直径为15厘米的钢管进行环境设计。律动的管体构成了玉成街的入口门廊、景观墙面、临时座位。管体上部预留埋件悬挂灯具,可以根据不同的场景需要,悬挂不同的饰物或装置。
The 4-meter-wide street surface needs to be reserved for fire trucks and community vehicles, and no structures can be placed within this area. In order to solve the problem of empty and boring street surface, we used a steel pipe with a diameter of 15 centimeters to carry out environmental design. The rhythmic tube body forms the entrance porch, landscape wall and temporary seating of Yucheng Street. The upper part of the tube body is reserved for hanging lamps and lanterns, which can be hung with different decorations or devices according to different scene needs.
▼街道主入口的管体景观,tube body at the main entrance © 存在建筑
▼管体构成连续景观,tube body as the continuous landscape © 存在建筑
▼管体勾勒的围墙,walls outlined by the tube © 存在建筑
自发的丰富性 | Spontaneous Richness
我们的工作是改善玉成街这一小段城市环境,需要有从概念到落地的全程跟进。同时我们不希望因为具体而微的设计和安排,创造出没有发展性的固态场景。前文提到的空间构成上的参与感及可变性是设计规避冷漠消极的办法之一。另外的办法是:制定方便实施的管理和装饰导则,以保证在发展过程中街铺的整体效果,预留店招、室内、档口,为入驻店家提供余地,支持多元、个性的装饰方案。
Our work is to improve the urban environment of this small section of Yucheng Street, which needs to be followed up from concept to implementation. At the same time, we don’t want to create a solid scene with no development because of the design and arrangement. The aforementioned sense of participation and variability in spatial composition is one of the ways to avoid indifference and negativity in design. Another way is to make convenient implementation of the management and decoration guidelines, in order to ensure the overall effect of the street shop in the process of development, reserved signs, interiors, stalls, to provide personalized space for the entered stores, support multiple, individual decoration scheme.
▼多元、个性的装饰方案,multiple, individual decoration scheme © 存在建筑
从开街实际运营情况来看,店家们的自主装修为玉成街提供了实质的多样性和丰富性,玉成街上30多个新老店家自发的创造力,将成为玉成街不断更新、持续活力的根本。非常高兴我们的设计能够被更多的人使用,并在它形式消解的过程中延续更强的生命力。
From the actual operation situation of the open street, the independent decoration of the store owners provides the essence of diversity and richness for the Yucheng street. The spontaneous creativity of more than 30 old and new store owners on Yucheng street will become the foundation of the continuous renewal and sustained vitality of Yucheng street. We are very happy that our design can be used by more people and continue to have stronger vitality in the process of its form dissolution.
▼夜景,night view © 存在建筑
▼街巷灯光,the lighting view © 存在建筑
▼总平面,general plan © 凡筑
▼东侧平面图,plans of the east side © 凡筑
▼西侧平面图,plans of the west side © 凡筑
客服
消息
收藏
下载
最近

















































