查看完整案例

收藏

下载
在阿姆斯特丹北部的Buiksloterham区,XVW architectuur设计的社区停车楼与地下健康中心综合体现已完工。Buiksloterham曾经是一片沿河展开的工业区,先已转变为发展迅速的职住综合区。新建的停车楼以光滑的几何表皮和标志性外观凸显了当地特色,成为Buiksloterham区的新地标。
XVW architectuur has completed a community car park incorporating a health centre at ground level in Buiksloterham in the north of Amsterdam. Buiksloterham is a fast- developing work/live area stretching across a former industrial waterfront. The new building responds to this forward looking spirit with its sleek geometric exterior and landmark quality that create a sense of arrival to Buiksloterham.
▼停车楼概览,overview © XVW architectuur
项目是 Studio Nine Dots 为de Alliantie地产公司所制定的整体规划的一部分。该方案通过在社区中建立起集约的停车楼释放了街道空间,为食品集市和公共活动提供了场地。这种新式、灵活的城市设计由居民主导,促进了自建房、社会住房与soho的建设。个人和小团体投资者的进驻将有利于实现Buikslotrham区包容多元的愿景。
The car park is part of a masterplan drawn up by Studio Nine Dots for the de Alliantie housing corporation. By concentrating parking in the neighbourhood, local streets are freed from stationary vehicles allowing food markets, among other civic activities, to spill into the public realm. This less conventional and more flexible approach to urban design is led by residents and focusses on opportunities for self-build homes, a provision for social housing and work/home units. Attracting both collectives and small-scale developers is key to this inclusive vision for Buikslotrham.
▼建筑外观,the exterior view © XVW architectuur
Buiksloterham的规划方案中包含两个停车场,其中,XVW architectuur设计的A1停车楼已首先建设完成。随着另一个项目的完工,两栋停车楼将像“书立”一样伫立在整片开发区的东西两侧,满足社区居民的停车需求。A1停车楼总共有250个车位,车辆像马厩里的马一样排列整理、便于提取,居民可不必再将车停在室外街道上。
Parkeergarage A1 is the first of two car parks in Buiksloterham designed by XVW architectuur. When the project is complete, these will form what the architects describe as “two bookends that border the development on the east and west sides.” Together they will provide all the required parking for the local community. Parkeergarage A1 has 250 spaces. Like a stable with horses, the building is a place where drivers access their ride when required rather than parking outside their homes.
▼仰视建筑立面,looking up at the building facade © XVW architectuur
▼细部,details © XVW architectuur
项目的关键在于梳理交通基础设施与社区的关系。如何建立起停车楼与周边住宅公寓的联系?作为回应,建筑师采用斜面钢网构成大楼的立面,将停车楼打造为街区的入口的标志。表皮的浮雕图案捕获了光线,塑造出动态的视觉效果,使建筑显得十分轻盈。此外,不承担实际功能的钢构架呈现出独特的工业特征,呼应了当地的历史背景。
The design of Parkeergarage A1 had to answer the question of how this transport infrastructure building could find its rightful place in the neighborhood. How does a car park relate to the houses and apartments built next to it? The distinctive quality of the steel mesh diagrid elevations of Parkeergarage A1 address this question by making it read less like a car park perse and more like an entrance to the neighbourhood. The relief pattern of the façade catches the light and animates its form in ways that break down the volume of the building while playing on the industrial past of its context and its particular building typologies, like the non-descript sheds that give little indication of what is contained within them.
▼室内空间,interior view © XVW architectuur
▼表皮与楼板,the skin and the floor slabs © XVW architectuur
项目负责人Xander Vermeulen Windsant介绍说,“我们为大楼覆盖了一层轻盈表皮,将其中的停车功能抽象化。只有当人们走近,才能透过立面的孔隙看到内部的停车场。项目不仅具有停车功能,还将整个街区的入口门户进行了整合。”
Xander Vermeulen Windsant says,“Our design has covered the car park with a skin that does not deny the parking function but abstracts it. Only up close do you see car-parking floors through the perforation of the façade panels. This allows the building to have a role beyond parking and be interpreted more like a threshold or gateway to its neighbourhood.”
▼室内楼梯,the stairs © XVW architectuur
刻有镂空图案的哑光漆钢板能够反射光线,赋予了停车楼变幻的外观。表皮映照着周围的风景,随着人与车的经过展现出不同色彩。大楼底层以木板条覆盖,创造出温暖、细腻、人性化的临街界面,天然木材与上方冷峻、光滑的钢面板形成了鲜明的对比。
The faceting and the custom-made paint – matt but still reflecting the light – give the car park a chameleon-like appearance. It reacts to colour and light in the area and changes colour when you walk or drive past it. On the street level, timber slatted cladding introduces a warmer, tactile and more human interface. The natural wooden finish contrasts with the cooler sleek steel architecture above.
▼从停车楼看向对岸,view of the waterfront from the parking building © XVW architectuur
大楼首层设有健康中心,顺应了基础设施综合化的趋势。复合功能的基础设施将充分发挥其社会价值,更好地服务于当地居民。此外,屋顶的太阳能电池板还为整个社区的热水提供了能源。A1停车楼作为“服务枢纽”为人们的日常生活创造了便利,体现着Buiksloterham区绿色、低碳的愿景。
At ground level, the building houses a health centre exemplary of a new phenomenon that sees infrastructure projects increasingly provide social value by serving their communities in a broader way. At roof level, solar panels contribute to the generation of hot water for the entire neighbourhood, making Parkeergarage A1 a “service hub” that supports the daily life of the district and plays an important role in Buiksloterham reaching its carbon reduction targets.
▼建筑首层包含一处健康中心,a health centre on the ground floor © XVW architectuur
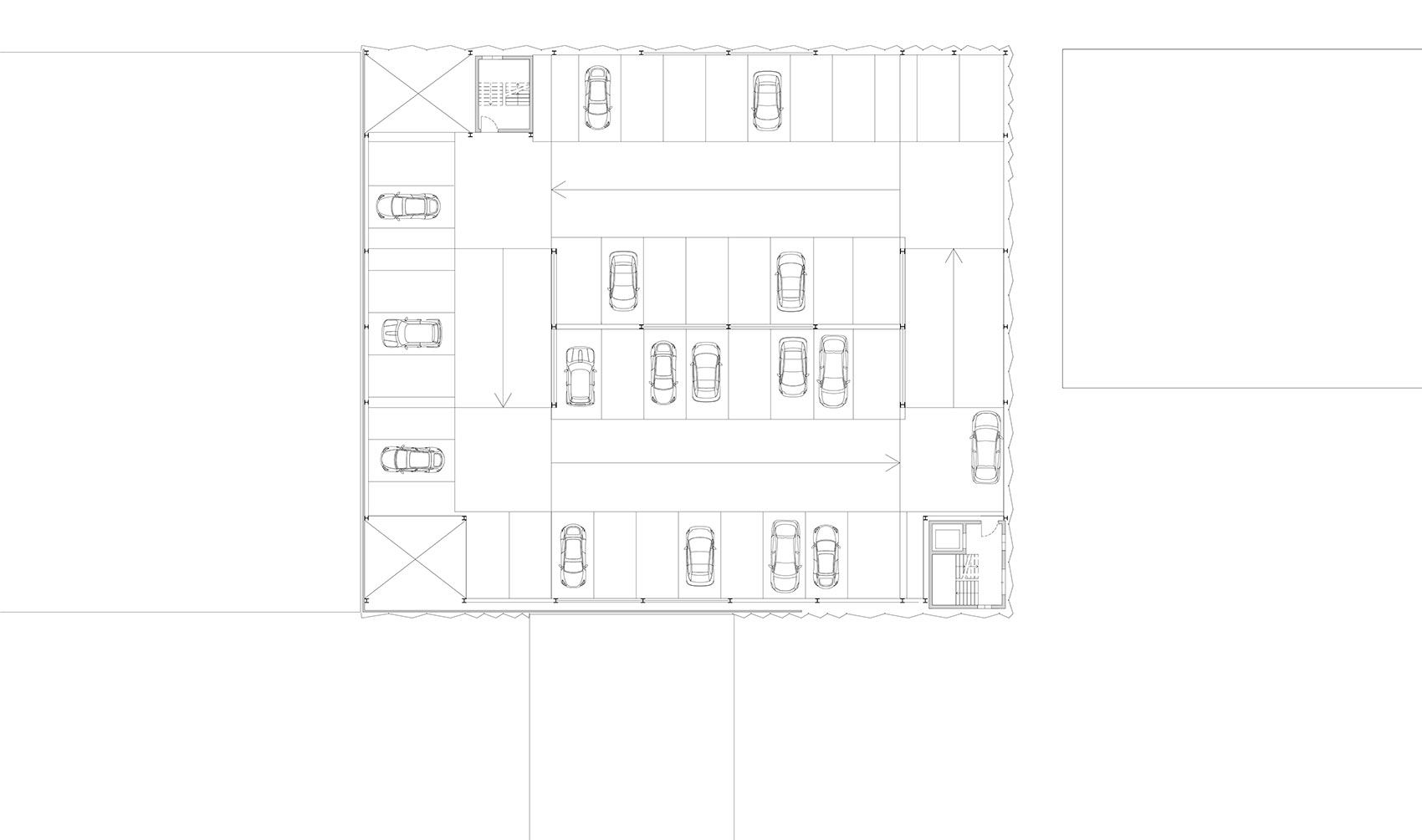
▼首层平面,the first floor plan © XVW architectuur
▼标准层平面,the standard floor plan © XVW architectuur
▼剖面图,section © XVW architectuur
Name of project: Parkeergarage A1
Name of client: Huber Car Parking Systems for de AlliantieOntwikkeling
Location of project: Amsterdam, Buiksloterham
Type of project: Parkingand healthcare unit
Date of commission: 2016
Date of completion: 2021
Form of contract: Design and construct/full design contract
Area (sq/m): 8.320m2 gross floor area
Architecture: XVW architectuur
Structural Engineer: Perree
Fire safety: Peutz
Materials : Steel frame with steel- concrete composite floors; steel sheet metal facade elements; concrete staircase cores
客服
消息
收藏
下载
最近














