查看完整案例

收藏

下载
展平的雅典柱式屏风后,是OFFICE AIO新设计的法式“路边”Elle Cafe
OFFICE AIO Designs Beijing’s Elle Cafe Behind a Veil of a Flattened Colonnade
由OFFICE AIO设计、位于北京的新时尚咖啡馆(Fashion Cafe)是Elle Cafe在中国的第二家分店。设计师在倒 T 形的平面之上,为这个大型商场中的咖啡厅构思了一个如在法国街道边休闲用餐的空间体验。
▼咖啡店外观,the exterior view ©Wen Studio
Designed by OFFICE AIO, Beijing’s new fashion cafe is Elle Cafe’s second location in China. With an inverted T-shaped floor plan, the designers conceived a French sidewalk dining experience inside a shopping mall.
▼轴测图,axonometric © OFFICE AIO
古典主义新玩法,打造抢眼的店面
Play of Classicism for a dramatic spanning shopfront
当下的商业中心,其人行流线均经过精心考量,引导着人们的通行方向。人行道的两旁,各种的平面广告或开敞的店铺门面鳞次栉比,每一个都张扬而热切地争奇斗,艳以捕获过往行人的注意力及诱导消费欲。
Modern indoor commercial centres are designed with walkways carefully directed. They are often flanked by longwindedly two-dimensional advertisements or wide-open shopfronts. Each one is eagerly opening itself up loudly and entirely to the passing consumers.
▼用餐区外立面,facade of the dining area ©Wen Studio
然而,最新的Elle Cafe设计旨在向“生活艺术(Art de Vivre)”致敬,并以古典建筑的构造元素塑造跨时空感。当行人从咖啡馆的西边走近时,窄长的侧翼开放着一角,示意着前方这个展示艺术和用餐的空间。馆内的闲适和走道上的熙攘平行相隔,因此OFFICE AIO沿着咖啡馆和商场间的边界,设计了4米高的白色铝制屏风。屏风跨越着其特长的门面,以抽象、二维化的方式处理雅典多立克柱式的形态,犹如卢浮宫东面上的长柱廊一般,气派而富有节奏。
But the latest Elle Cafe design is a nod to “Art de vivre” with the timelessness of classical tectonics. Coming from the west, one approaches the cafe’s narrower wing with an exposed corner, implying a space that showcases art and the joy of dining. To distinguish the lifestyle from traffic along the corridor, OFFICE AIO designs a 4-meter high white aluminium screen that marks the border between the cafe and the mall, abstracting the sequence of a Doric column shaft. The resulted colonnade spans most of the elongated front, reminiscing a classical precedent — the long East facade of columns of the Louvre.
▼白色铝制屏风的界面,high white aluminum screen marking the border ©Wen Studio
餐馆内部,也以经典的元素、极简的方式点缀着。桌脚和吧台同样依照雅典式柱身定制,以橡木制作,为咖啡馆植入大自然的气息。地面上方形的哑色水磨石,以经典的法式菱形铺盖方式,明暗相间。同样形式也运用在天花板的镜面铺排上,彰显着品牌的高贵与清雅。
Minimally, classical ornamentations are also implemented inside the restaurant. Custom-made column-like table stools and bar counter are made in oak, grounding the cafe with a sense of nature. Chequer parquet in muted terrazzo hues is diamond laid on the ground; its pattern echoed above by mirror tiles exuding order and grandeur.
▼看向吧台,view of the bar ©Wen Studio
这些手段都从多维度地置入立体的韵律感,以新颖的方式引用着旧时的元素。镜面反射的一瞥,轻拂屏风的指尖,其间实与虚、平与深、社会景象的对比,都为馆内的聚朋会友和馆外的行人营造着丰富的体验。
All of these impart a multi-faceted rhythm that presents tradition with a modern twist. A peek reflected by the mirror, a brush of the screen with fingertips, enrich the passerby and patrons’ experience by the contrasts of solid and void, flatness and depth, of social dynamics on either side.
▼铺设镜面的用餐区,dining area reflected by the mirror ©Wen Studio
两翼相傍的中央展示区
A central stage flanked by two wings
咖啡厅上设计有全长的半拱顶,通过精心丈量确定位置,以作为联结空间的主要轴线。拱脚处设有磁性轨道灯系统。在较窄的西翼,沿轴线嵌入的洗墙灯带使画廊似的空间显得更加宽敞。而在东翼的轴线上,则安装着聚光灯以聚焦于展品展示上。
Carefully located plan- and elevation-wise, the full-length half arch defines an essential axis running through the space. Within the springer of the arch, it houses a magnetic track light system. On the narrower wing, the gallery appears more spacious with its wall-washing strip lights embedded along the axis. On its east end, an array of spot lamps are installed over the tables centred below.
▼排列整齐的座椅,seats arranged in an essential axis ©Wen Studio
家具的选择上,设计师遵循着空间简约大气的风格。超大的圆锥型吊灯均匀地悬挂于拱顶和洞石台面之间。而与桌子搭配的,是&Tradition妩媚的酒红色织网贝蒂椅(Betty Chairs),以映照品牌专注女性生活方式的定位。
Furniture that adds a sense of minimal modernity was selected. Oversized cone-shaped pendants are evenly spaced and hover over travertine tabletops below. The tabletops are paired with seductive burgundy-coloured woven webbed Betty Chairs from &Tradition.
▼用餐区的超大圆锥型吊灯,oversized cone-shaped pendants ©Wen Studio
东边的墙上挂有倾斜的镜子,进一步反射着咖啡馆中聚餐的客人和布置于厅内的各色文创设计精品。由OFFICE AIO设计的Elle Cafe,平衡着经典和现代的元素,透过屏风的间隙,长卷般地闪现着馆内宾朋满座、馆外人流穿梭的社会情景。
With mirrors hanging at an angle reflecting cafe visitors and walls presenting designer items, OFFICE AIO’s design of Elle Cafes showcases a long series of social scenery with its dramatic spanning storefront of both classicism and modernity.
▼座椅细部,details © Wen Studio
连接东西两个窄长空间的是中间用于接待和餐饮制作的交点。接待吧台的后方设计有一个大型的拉丝钢面岛台,像”舞台”般,让各方皆可观赏在此为佳肴美饮最后点缀的过程。这个中心以黄铜的背景墙衬托着,墙上开出的缝隙由磨砂玻璃覆盖,透示着更深处中央厨房的繁忙节奏。
The node linking the two lengthy spaces is the core of food preparation and an interface of reception. Acting as a “stage”, a large island in brushed steel sits behind the reception bar where garnishing of dishes and various beverages can be observed from all angles. A backdrop in brass anchors the central space, with a narrow slit opening to subtly reveal the hustle within the central kitchen through a pane of frosted glass.
▼出餐区,the service area © Wen Studio
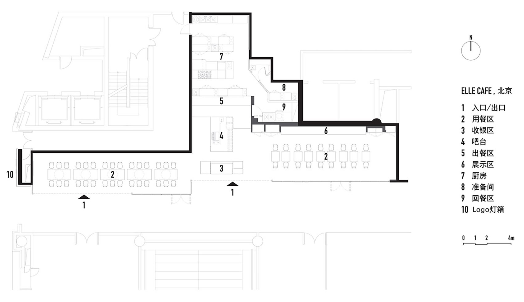
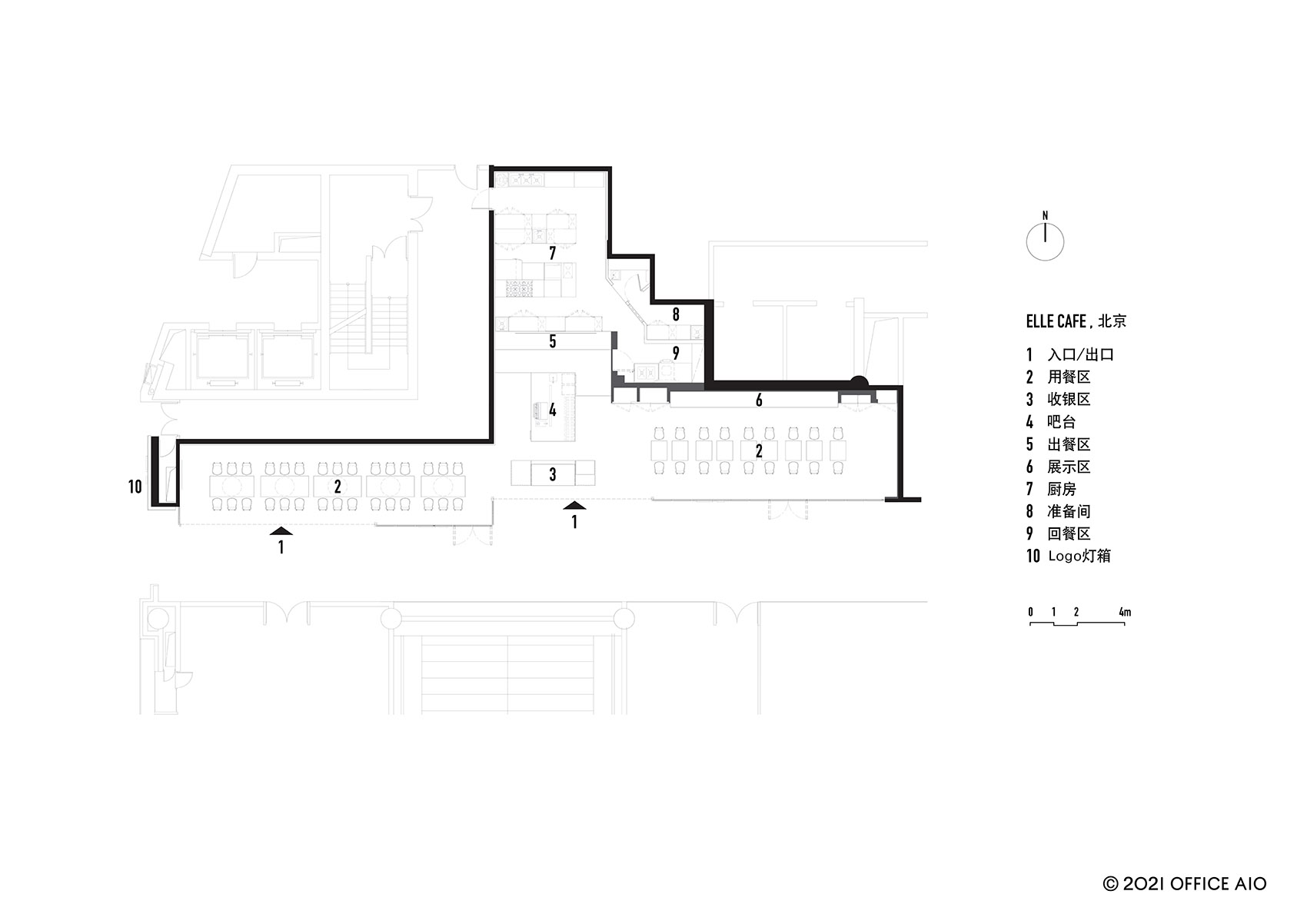
▼平面图,plan © OFFICE AIO
客户: Elle Cafe
地点: 中国北京
面积: 130 sqm
任务: 室内设计
主设计师: 关穗棋(Tim Kwan)
团队: 孙运萱(Isabelle Sun),解传宝,于思琪
委任时间: 2019
建成时间: 2020
摄影: Wen Studio
灯光: 乔艳莎
结构: 北京艺豪建筑装饰设计工程有限公司
平面: 熊可歆
Client: Elle Cafe
Location: Beijing, China
Area: 130sqm
Commission: Spatial Design & Shop Façade Design
Principal: Tim KWAN
Team: Isabelle SUN, Steven XIE, Siqi YU
Appointment: 2019
Completion: 2020
Photos: Wen Studio
Lighting Designer: Yansha QIAO
Construction: Beijing Yihao Building Decoration Engineering Co. Ltd
Graphic Design: Kexin Xiong
客服
消息
收藏
下载
最近


















