查看完整案例

收藏

下载
温润自然的质感,呼吸属于自然界的气息。万物之始,大道至简。物以极简为美,生活也是。入眼错落有序的空间,营造的视觉差异,伴随着渐起的禅音,在门徐徐关闭的瞬间,实现自身五感的觉醒!
Warm and natural texture, breathing in the breath of nature. The beginning of everything, the end of everything. Minimalism is beautiful, and so is life. Enter the eye scattered orderly space, create visual differences, accompanied by zen gradually, in the door slowly close the moment, to achieve their own five senses of awakening!
▼室内概览,overview © 叁三影像
空间借助下沉地面以及弧形天花,避免产生任何视觉的死角,高挑的屋顶和下沉的地面形成一个可以呼吸的空间,改变了人对内部空间比例的感知。
The space avoids any visual dead angle by means of the sunken ground and the curved ceiling, the tall roof and the sunken ground form a sucking space, changing the perception of the proportion of the interior space。
▼入口换鞋区,shoe changing area at the entrance © 叁三影像
▼入口处的弧形玄关,arc-shaped porch at the entrance © 叁三影像
▼前台,reception desk © 叁三影像
在整个空间序列上,我并没有拘泥于横纵线上的排列,而是通过分割、叠加、端景等设计手法,使空间错落有致,同时注入空间应有的自由与寂静。
In the whole space sequence, I do not adhere to the arrangement of horizontal and vertical lines, but through the division, superposition, end-scene design techniques, so that the space is patchwork, while injecting the space should be free and quiet.
▼从接待区看入口,view of the entrance from the reception area © 叁三影像
▼接待区,the reception area © 叁三影像
▼洗手台,the washbasin © 叁三影像
将光影与空间能做一个更好的衔接。在一切排列有序之后,能够自然形成一个回转的动线。从头至尾贯穿整个空间,从而包裹围合出一个封闭且开敞的功能区域。
Light and shadow and space can make a better connection. After everything has been arranged in an orderly way, it can naturally form a turning line of motion. Throughout the space, the enclosure encloses a closed and open functional area.
▼窗边座椅,the seatings by the window © 叁三影像
▼喝茶品酒区,tasting area © 叁三影像
▼细部,details © 叁三影像
各个空间的错落,我们在每一处转角都与景结合。一步一景, 十步十景, 我希望在更多的景中,去注入精神层面的表达。
The scattered space, we are in every corner with the scene. One scene at a time, ten steps and ten scenes at a time, I hope to inject spiritual expression into more scenes.
▼公共走廊,the public corridor © 叁三影像
步入漫道,没有主灯的强射,只有辅光的点缀,宁静氛围的侵染着实让人安定。漫道两侧,三两树丛,回归自然。龛中小物,唯诧唯寂,指引深径。
Into the RAMBLE, there is no main light of the strong shot, only the auxiliary light embellishment. Quiet atmosphere of the infection is really stable. Both sides of the road, two or three trees, back to nature. Small things in the niche, only surprise lonely, guiding the deep path.
▼客人休息区,resting area © 叁三影像
“桉”———桉树。我在空间里留了一座山。玉在山而木润,玉韫石而山辉。
Eucalyptus— Eucalyptus. I left a mountain in space. Jade is in the mountain and wood feels warm.
▼禅修室,meditation room © 叁三影像
整个空间以素色为主,空间色相高度统一,相辅相成。我们没有使用过多的装饰手法,极简素雅的造型,搭配洒落的盏盏微光,相辅相成。
The beginning of everything, the end of everything. Minimalism is beautiful, and so is life. The whole space to the main plain color, color space is highly unified, complementary. We did not use too many decorative techniques, simple and elegant shape, with a sprinkle of light lamp, complement each other.
▼spa房间,spa room © 叁三影像
人与人之间很多的关联都未必是以语言来连接,有时“润物细无声”的情感传递才是沟通的更高境界。利用空间给予SPA更深层的五官享受,让客人们身心同步,便是拢合。所见即所得:“栖 影 桉 榆 柠 桦 本 雨 合 渡”。“本”———事物的起源,一切的初始状态。杂乱无序形成一个有机的空间,让时间和自然光线轻柔地流入内部场所。
A lot of connections between people are not necessarily connected by language, sometimes “moisten things silently” the emotional transmission is the higher realm of communication. Use the space to SPA deeper facial features enjoy, let the guests body and mind synchronization, is close together. The rain of Eucalyptus, elm tree, lemon and Birch. The origin of things, the initial state of everything. The disorder forms an organic space, allowing time and natural light to flow gently into the inner space.
▼spa房间,spa room © 叁三影像
▼细部,details © 叁三影像
室内墙体模仿溶洞的起伏和穿梭,形成了多种有机体,支配着空间分布。随着洞穴不断变化的曲面,无限延伸至每个功能区。
The interior walls imitate the undulation and shuttle of the Karst Cave, forming many kinds of organism, dominating the spatial distribution. With the ever-changing curved surface of the cave, it extends infinitely to each functional area.
▼细部,details © 叁三影像
▼VI设计,VI design © 叁三影像
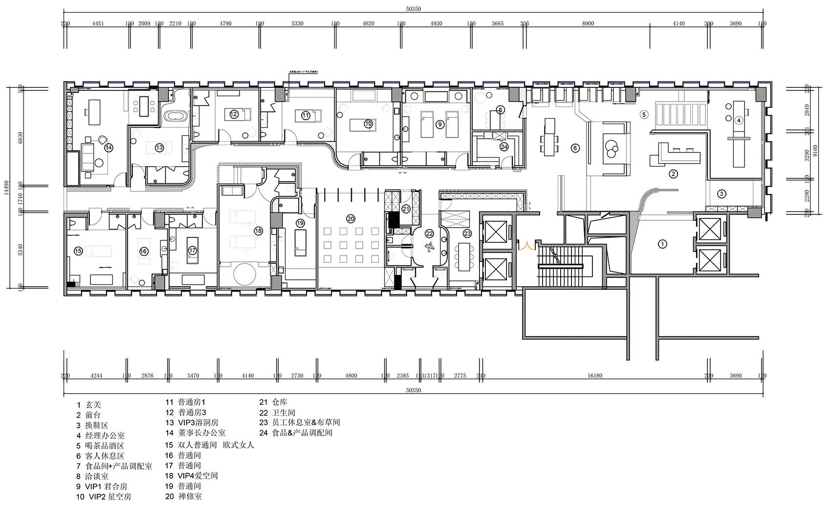
▼平面图,plan © 杭州潜木室内设计研究所
客服
消息
收藏
下载
最近






























































