查看完整案例

收藏

下载
在意大利南蒂罗尔的布列瑟农,MoDusArchitects 采用一种微妙的策略完成了对 Cusanus 学院的改造和扩建。该学院是一座致力于在宗教与世俗世界的交汇处进行思想交流的学术中心,为了让学院能够与城市形成更加良性的互动,项目通过一系列干预措施来整合研讨场地与来宾的住宿设施,以构建一个向社区开放的、同时以更加有机的形式相连接的综合体。
In Bressanone (South Tyrol, Italy), MoDusArchitects adopts a subtle design strategy for the renovation of, and addition to the Cusanus Academy, a center of learning dedicated to the exchange of ideas at the intersection of the religious and secular worlds. For the purpose of better engaging the Academy with the city, the project tackles the heterogeneous ensemble of seminar venues and guest accommodations with a spectrum of interventions—mimetic to overtly new—that form a more organically connected complex that invites the community in.
▼从南侧望向 Paul Norz Haus 大楼和 Haupthaus 大楼,South view of the Paul Norz Haus and of the Haupthaus© Gustav Willeit
▼Haupthaus 大楼南立面,Haupthaus South facade© Gustav Willeit
▼Haupthaus 大楼主入口,Haupthaus main entrance from via del Seminario© Gustav Willeit
Cusanus 学院坐落在城市东部的伊萨尔科河畔,共包含 3 栋建筑:Paul Norz Haus、Mühlhaus 以及主楼 Haupthaus,其中主楼由当地著名建筑师 Othmar Barth(1927-2010)设计,是第一座被列入博尔扎诺历史保护建筑名录的现代建筑。
在 1962 年的开幕式上,这座建筑引发了诸多争论:许多人认为其裸露的砖块和混凝土体量过于扎眼,与附近建造于 18 世纪的大修院建筑看上去格格不入;而另外一些人则对这座置入旧城历史肌理的新建筑表示欢迎。
而在今天,这座建筑已然成为布列瑟农的标志性建筑之一,并被认为是 Othmar Barth 的杰作。
▼场地平面图,site plan
Located along the Isarco river in the eastern part of the city, the Cusanus Academy comprises three buildings: Paul Norz Haus, Mühlhaus, and Haupthaus, or Main Building, originally designed by the locally renowned architect Othmar Barth (1927-2010) — the first modern building listed under the protection of the historic preservation commission of the Province of Bolzano. At the 1962 inauguration, the building triggered much debate: many considered the boldly modern building of exposed brick and concrete to be out of place, an eyesore to the adjacent 18th century Major Seminary building, while others welcomed the contemporary addition within the medieval fabric of the historical city center. Today the building stands as one of Bressanone’s landmark buildings and is considered to be Othmar Barth’s masterpiece.
▼鸟瞰图,Aerial view© Gustav Willeit
▼Haupthaus 大楼东侧透视,Haupthaus East view© Gustav Willeit
▼Haupthaus 大楼和大修院建筑,View of the Haupthaus and of the Major Seminar from via del Seminario© Gustav Willeit
▼从 Haupthaus 大楼的带顶走廊望向大修院,
Covered walkway of the Haupthaus overlooking the Major Seminar© Gustav Willeit
Cusanus 学院以 15 世纪富有影响力且具有远见卓识的红衣主教 Nikolaus Cusanus 的名字命名。他致力于追寻文艺复兴时期的人文主义,肩负着一系列宗教和政治使命来到罗马,并与 Leon Battista Alberti 建立了联系。二者所共同主张的“concinnitas”(建筑各部分的一致性)概念为 Barth 关于统一性与和谐性的建筑学论述提供了美丽的背景。
▼Paul Norz Haus 大楼和 Haupthaus 大楼之间的步道望向由三座学院建筑界定的新广场© Gustav Willeit
Pedestrian passage between the Paul Norz Haus and the Haupthaus towards the new public square formed by the three buildings of the Cusanus Academy
▼Haupthaus 大楼侧入口,Side access to the Haupthaus© Gustav Willeit
项目要求设计团队提供一个谨慎而又平衡的改造方案,在不影响学院完整性的前提下完成一系列技术和规范上的要求。具体来说,是要在满足更高的无障碍需求的基础上重新思考垂直和水平方向的动线,从而构建一个包含更多公共空间的社会网络。该项目在看似属于既有建筑的(不可见的)事物与新的、更加明确的(可见的)干预之间画出了一条细微的界线。两个最重要且最为显著的设计行为体现在主楼 Haupthaus 的首层(一道新构成的轴线将建筑打开)以及地下层(大型会议厅成为了建筑的新焦点)。
The architects were called upon to design a careful and balanced renovation that could absorb a host of technical and code related requirements without compromising the integrity of the Academy. More specifically, the need for greater accessibility prompted the architects to rethink the vertical and horizontal circulation as a network of social, more public spaces.
The project traces a fine line between that which appears to belong to the original buildings (invisible) and that which emerges as new, more clearly stated interventions (visible). The two most significant and visible design moves occur at the ground level of the Haupthaus whereby a newly formed axis opens up the building, and at the lower level whereby a large conference hall becomes a new fulcrum.
▼Haupthaus 大楼主厅,带有裸露的混凝土拱顶
Main hall of the Haupthaus with exposed concrete vaults© Gustav Willeit
从对 Haupthaus 大楼的几何分析中可以看出,其平面是由三个正方形组成,并向南打开,形成了独特的梯形占地;由此产生的正交秩序与轻微的扭转之间的相互作用控制了整个项目的平面、立面和细节。2.9 米宽的走廊定义出建筑的结构和表面、开口与实体,直至与地面材料的图案相连——这些图案转而又标识出座椅的位置。这样的设计正是对“multa paucis”的最好示范——以最少的词汇表达最丰富的内容。
A geometrical analysis of the Haupthaus reveals a plan made by three squares that open up towards the South to form an indelible trapezoidal footprint; the resulting interplay between an orthogonal order and a slight rotation governs the entire project be it in plan, elevation and detail. Coupled with the 2,90m pass that presides over structure and surface, aperture and closure, down to the patterning of the floor materials that in turn mark the positioning of the seating, the building is a poignant lesson in multa paucis—saying much with few words.
▼主厅后方设有可移动的墙壁,可通往夹层的会议室© Gustav Willeit
Main hall of the Haupthaus with the rear movable wall opening towards the conference room on the mezzanine floor
▼主厅设有可移动的背景墙和由 Othmar Barth 设计的座椅© Gustav Willeit
Main hall of the Haupthaus with the movable back wall closed and the chairs designed by Othmar Barth
基于这种抽象的语序,精心编排的格局与混凝土材质的结构框架、裸露的砖墙和铺地以及石灰华板块所构成的真实体量汇聚成统一的整体。
对于 MoDusArchitects 而言,介入并改造这样一个完整而又成熟的项目无疑是一项艰巨的任务。
事务所联合创始人 Matteo Scagnol 表示:“这座建筑一直是我们营造建筑方案的资源宝库,它让我们找到精致的细节和精确的几何图案,启发我们巧妙地引入自然光,并使用尽可能少的材料。它指引着我们追寻简洁、简单与恰如其分:一种真正的美的典范,用拉丁语说,就是’concinnitas’本身。”
Indeed, the careful grammatical construction of the project converges in an abstract order with the real dimensions of the concrete structural frame, the exposed brick walls and pavers, and the travertine slabs into a unified whole.
Intervening in such a complete, and accomplished project proved to be a daunting task for MoDusArchitects.
“This building has been our master, a treasure trove of sage architectural solutions, of refined details and measured geometric patterns; a muse in the skillful orchestration of natural light and in the use of few materials; a guide to concision, simplicity and propriety: exemplary of true beauty, or rather “concinnitas” in Latin”. – affirms Matteo Scagnol, co-founder with Sandy Attia of MoDusArchitects
▼位于夹层的会议室向主厅敞开
The conference room on the mezzanine floor open to the main hall of the Haupthaus© Gustav Willeit
▼夹层会议室(墙面关闭状态),The conference room on the mezzanine floor closed© Gustav Willeit
▼夹层会议室细节,The conference room on the mezzanine floor© Gustav Willeit
Haupthaus 大楼二层的混凝土拱顶空间是整个建筑群的中心,亦是本次改造项目的基调与整体方法的试金石。虽然 Haupthaus 大楼的设计本身已经足够简洁明了,MoDusArchitects 仍然对 Barth 留下的大量文献资料以及他对于建筑变化和扩展可能性的设想进行了研究,最终对原项目的可塑性得出了宝贵的认知。
The double height, concrete vaulted space of the Haupthaus located on the first floor is the architectural centerpiece of the entire complex and, not surprisingly, serves as the touchstone for the tone and overall approach of the renovation. Although the laconic and bare-bones construction of the Haupthaus dictated a clear design ethos, MoDusArchitects gained precious insight into the malleability of the original project through archival research that uncovered Barth’s copious documentation of the project along with his many variations and projected additions thereof.
▼从二层阳台走廊望向大楼主厅,View of main hall of the Haupthaus from the balconied corridor at the first floor© Gustav Willeit
▼从抬升的讲台望向主厅,View of the main hall of the Haupthaus from the raised floor of the stage© Gustav Willeit
▼主厅涂成白色的砖砌讲台
The whitewashed brick stage in the main hall of the Haupthaus© Gustav Willeit
▼连接客房的阳台走廊和裸露的混凝土拱顶
Haupthaus: balconied corridor with the guest room doors andthe exposed concrete vaults© Gustav Willeit
▼混凝土拱顶细节,Exposed concrete vaults© Gustav Willeit
在建筑首层,新的南北轴线消除了原本在尽端结束的走廊,将主入口连接至下方的餐厅,从而形成一条贯通的路线。
此外,新引入的咖啡店、庭院入口区、非正式座椅空间以及朝向该层唯一一间研讨室的视野共同对首层空间起到了补充和平衡的作用。
宽敞的走廊展现了该项目的志向和愿景:在不脱离建筑构造逻辑的前提下营造一种更加热情友好的环境。
On the ground floor, the new North-South axis eliminates the dead-end corridor and connects the main entryway down through to the dining hall to form an articulated throughway punctuated by the newly introduced coffee shop and courtside entry area, pockets of informal seating, and views into the only seminar room located on this level. The generous hallway embodies the ambition of the project to foster a more welcoming environment without stepping outside of the constructive logic of the building.
▼新的南北轴线连接了 Haupthaus 大楼主入口和餐厅
View of the new north-south axis connecting the main entrance of the Haupthaus with the dining hall© Gustav Willeit
▼从新的南北轴线望向主入口,远处摆放着 Finn Juhl 设计的 Japan 座椅© Gustav Willeit
New North-South axis of the Haupthaus, view towards the main entrance with Finn Juhl’s original Japan Series seats in the background
▼Haupthaus 大楼首层研讨室,Seminar room at the ground floor of the Haupthaus© Gustav Willeit
▼首层研讨室所在的新轴线© Gustav Willeit
View from the new axis of the seminar room at the ground floor of the Haupthaus
▼从新轴线望向餐厅© Gustav Willeit
New North-South axis of the Haupthaus, view towards the dining hall
▼首层餐厅入口© Gustav Willeit
Entrance of the dining hall at the ground floor of the Haupthaus
▼餐厅细节,Dining hall at the ground floor of the Haupthaus© Gustav Willeit
在半地下层,原先的俱乐部区域被改造为一系列研讨室,并且与新增加(挖掘而出)的大型会议厅相连接。被 U 形天窗照亮的新会议室围绕并界定出地面上方的庭院,将原先语义不甚清晰的剩余空间转变为大众共享的社交场地。根植于 Haupthaus 大楼的结构逻辑,设计团队在建筑中引入了一个新的垂直交通核心筒,从功能上连接了 Barth 的既有设计、历史悠久的附属建筑以及由 MoDusArchitects 在地下层置入的新空间。
▼俯瞰新公共广场和新会议室的 U 形天窗© Gustav Willeit
Top view of the new public square and of the U-shaped skylight illuminating the new conference room
▼位于地下扩建部分上方的新公共广场© Gustav Willeit
New public square above the new underground extension by MoDusArchitects
Below ground, at the semi-basement level, the former clubhouse area is recast as a series of seminar rooms that in turn become contiguous with the (excavated) addition of the large conference hall. Top lit by a U-shaped skylight, the new conference room circumscribes the footprint of the courtyard above ground, transforming what was once an ill-defined, residual space as a public place of social exchange. Nestled within the structural logic of the Haupthaus, a new vertical circulation core represents the functional link between Barth’s project, the historic ancillary buildings, and the buried, lower level introduced by MoDusArchitects.
▼在地下层扩建的模块会议室,通过 U 形天窗获得采光© Gustav Willeit
The new modular conference room of the MoDusArchitects extension in the basement floor with the U-shaped skylight
▼模块会议室细节,The new modular conference room© Gustav Willeit
▼地下层设有小会议室,可用于举办小型活动© Gustav Willeit
The basement floor with the smaller conference rooms and services for small events
▼地下层会议室之一,One of the basement floor conference room of the original project© Gustav Willeit
▼地下层会议室细节© Gustav Willeit
A detail of the basement floor conference room of the original project
可容纳 96 位来宾的住宿空间分布于 Paul Norz Haus 和 Mühlhaus 大楼的顶部几个楼层以及 Haupthaus 大楼的侧方区域。
55 个房间有着不同的尺寸和户型,其中 Paul Norz Haus 大楼内的房间以蓝色为主调,Mühlhaus 以浅果绿为主,而 Haupthaus 大楼内的房间则采用了与 Othmar Barth 原始设计相同或相仿的内饰。
在主楼中,通往客房的阳台走廊与中央大厅相望,其北面是小教堂,南面是另外一个大会议厅,后者的错层可通过移动的隔墙与中央拱顶空间连通。
The sleeping rooms hosting up to 96 guests are located on the upper floors of the Paul Norz Haus, the Mühlhaus and the Haupthaus’ flanking, long sides. The 55 rooms of different sizes and capacities are distinguished by blue hues in the Paul Norz Haus, pistachio green in the Mühlhaus, whereas the Haupthaus rooms highlight Othmar Barth’s original furnishings or variations thereof. In the main building, the balconied corridors accessing the guest rooms look onto the main central hall and are bookended by the Chapel to the North and another large conference hall facing South whose split level position can be opened up via a movable partition wall to the central vaulted space.
▼客房之一,摆放着 Othmar Barth 设计的原版座椅© Gustav Willeit
One of the guest rooms of the Haupthaus with original chairdesigned by Othmar Barth
▼Paul Norz Haus 大楼内的新客房,One of the new guest rooms of the Paul Norz Haus© Gustav Willeit
原先由 Barth 为公共空间挑选的 Finn Juhl 扶手椅在翻新后被重新摆放在建筑的各个角落。拱形天窗带来的充满灵性的光线同样出现在小教堂中——后者只进行了简单的介入:在既有的祭坛前方新增加了由艺术家 Lois Anvidalferei 创作的实心石装置“Ambon”。
The original Finn Juhl armchairs that Barth had chosen for the various common spaces throughout the building have been refurbished and re-introduced in the nooks and crannies of the building. The spiritual quality of light given by the vaulted skylights can also be found in the chapel, a solemn space modified only by the artist Lois Anvidalferei’s solid stone Ambon positioned in front of the existing altar.
▼Haupthaus 大楼二层的礼拜堂,Chapel at the first floor of the Haupthaus© Gustav Willeit
MoDusArchitects 从材料、构造和技术方面对解决方案实施了细致且温和的修改,无数种复杂的干预措施熟练地游走于模拟、转化与和谨慎的对比之间,构建出一场在新旧之间不断变化、模糊了时间界线的叙事,最终让 Cusanus 学院得以成为一座兼具当代性与永恒性的建筑。
With a careful and tempered orchestration of a material, tectonic and technical palette of solutions, MoDusArchitects’ innumerable interventions oscillate between mimetic, reciprocal and carefully contrasting vocabularies. What results is a shifting narrative between the old and the new that confounds the boundary between the two, offering the Cusanus Academy a contemporary and timeless architecture.
▼Haupthaus 大楼东立面和远处的山景,East side facade of the Haupthaus with a view of the surrounding mountain landscape© Gustav Willeit
▼建筑东立面,East side facade of the Haupthau© Gustav Willeit
▼室内外砖墙细节,exposed brick details© Gustav Willeit
▼地下一层平面图,plan level -1© MoDusArchitects
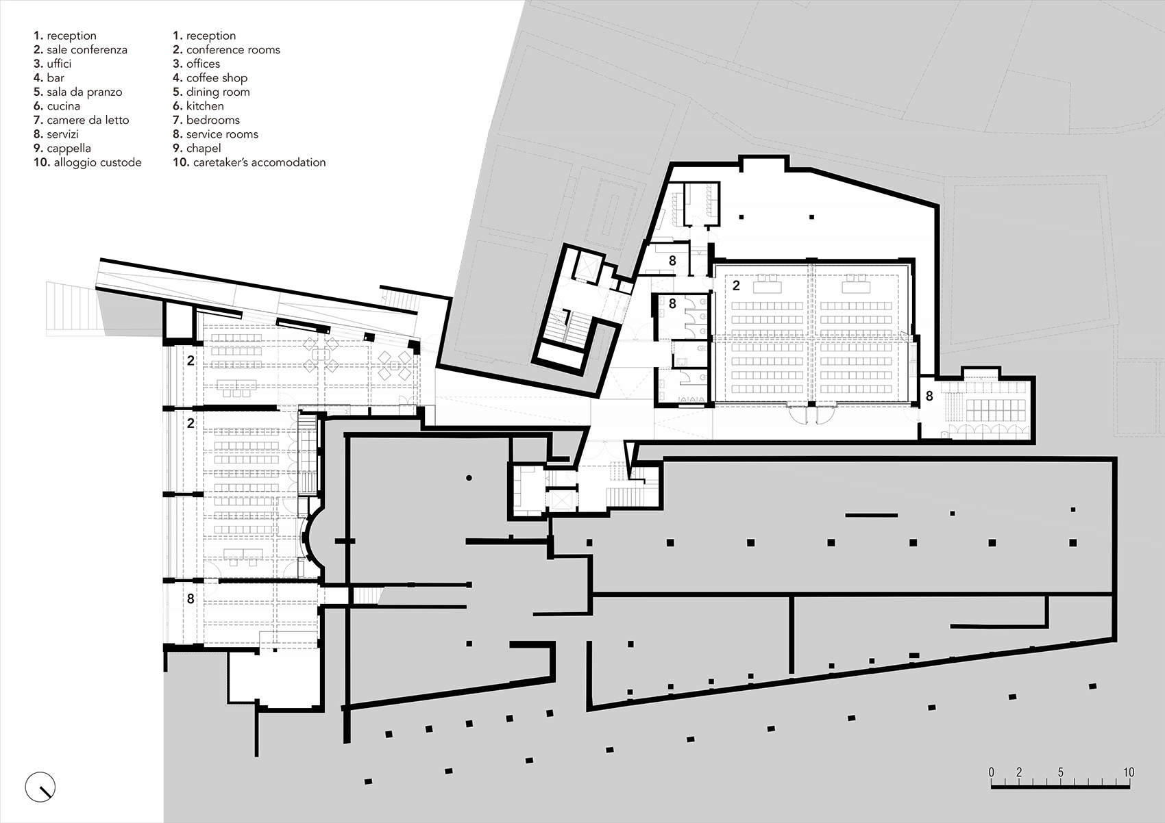
▼首层平面图,plan level 0© MoDusArchitects
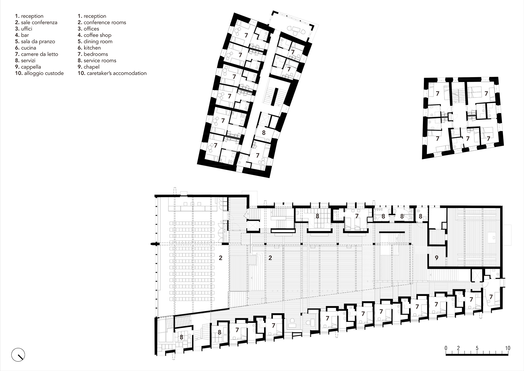
▼二层平面图,plan level 1© MoDusArchitects
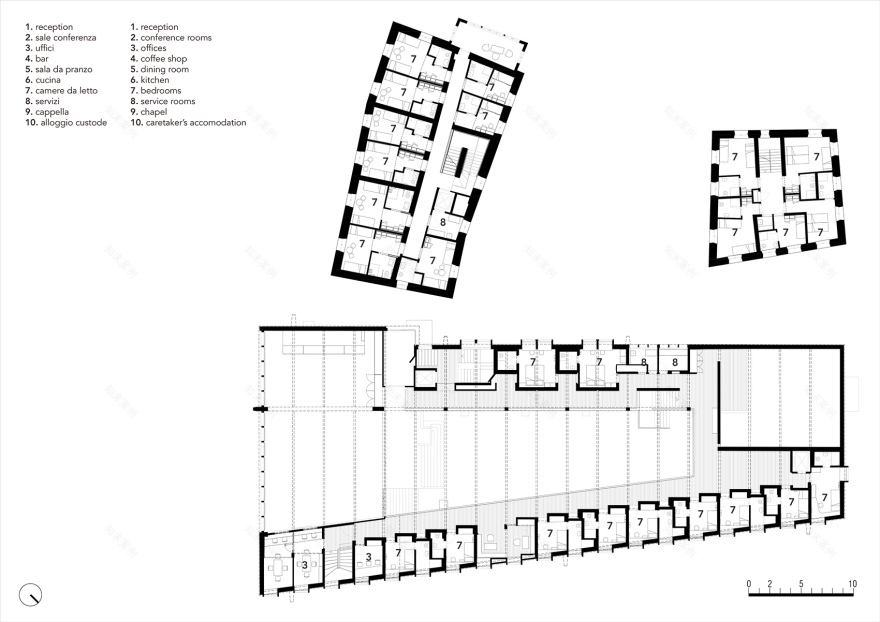
▼三层平面图,plan level 2© MoDusArchitects
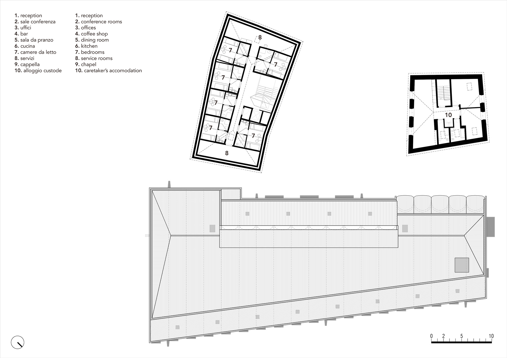
▼四层平面图
plan level 3
© MoDusArchitects
▼横剖面图,cross section© MoDusArchitects
▼纵剖面图,long section© MoDusArchitects
▼地下扩建部分剖面图,long section-new underground addition© MoDusArchitects
PROJECT NAME: Cusanus Academy
LOCATION: Via del Seminario 2, Bressanone (Bolzano, Italy)
ARCHITECT: MoDusArchitects (Sandy Attia, Matteo Scagnol)
press@mintlist.info
PROJECT TEAM: Giorgio Cappellato, Miriam Pozzoli, Lavinia Antichi, Laura Spezzoni, Anna Valandro
CLIENT: Kardinal Nikolaus Cusanus Akademie
COMPETITION: 2017
DESIGN PHASE: 2018
CONSTRUCTION PHASE: 2019 — 2020
COMPLETION: September 2020
GFA: Haupthaus (3.640 sqm) + Paul Norz Haus (1.240 sqm) + Mühlhaus (5120 sqm) + underground addition (625 sqm)
TOTAL COSTS: 11.300.000 €
STRUCTURAL ENGINEER: Roberto Ricci Maccarini (3M Engineering Srl)
MECHANICAL ENGINEER: Michele Carlini (Studio Tecnico Ing. M.Carlini)
ELECTRICAL ENGINEER: Andreas von Lutz (Von Lutz Studio Associato)
SAFETY ENGINEER: Riccardo Mora (3M Engineering Srl)
LIGHTING CONSULTANT: Alexa von Lutz (Von Lutz Studio Associato)
ACOUSTICS: Christina Niederstätter (Archacustica)
GEOLOGY CONSULTANT: Michael Jesacher (Jesacher Geologiebüro)
GENERAL CONTRACTOR: CarronBau srl
SITE WORK AND EXCAVATION: Beton Eisack srl
WINDOWS: Wolf Fenster SPA
WOODEN CARPENTRY: Martini Luciano SNC
LIGHTING: Xal GmbH, BEGA Leuchten KG
RESTORATION: Marson Srl
CUSTOM-BUILT FURNITURE HAUPTHAUS: Kofler Srl
CUSTOM-BUILT FURNITURE PAUL NORZ HAUS/MUHLHAUS: Resch Möbel GMBH
KITCHEN SUPPLIER: Winkler Gastro Solution
STANDARD FURNISHINGS: Trias OHG
AUDIO-VIDEO EQUIPMENT: ACS Data System
SIGNAGE: Serima Srl
LANDSCAPING: Kiener Gärtnerei & Gartenbau
MATERIALS:
Linoleum/Carpet flooring: Saxl Bodenbeläge SAS
Wood flooring (oak): Martini Luciano SNC
Stone flooring (porphyry): Porfido ed arte consorzio stabile Tiles flooring: Consorzio Heraclia
Upholstery and Window coverings: Sedis GMBH
PHOTOGRAPHER: © Gustav Willeit
客服
消息
收藏
下载
最近
















































































