查看完整案例

收藏

下载
新成立的利沃夫市艺术中心位于Stefanyka街11号。这是一个简单而实用的空间,内部设有一个宽敞的大厅,可供市民们坐下来工作或休息。此外还设置了小型的多媒体图书馆,藏有黑胶唱片和一些珍贵书籍。
The ver first Municipal Art Centre has opened in Lviv at 11 Stefanyka street. The space is simple and functional with a lecture hall, a place to sit and work or relax. There is also a small multimedia library with a turntable, vinyl records and some rare books.
▼建筑入口,entrance © Andrey Bezuglov
▼空间概览,preview © Andrey Bezuglov
建筑本身是19世纪末在利沃夫建造的第一座新哥特式建筑,最初作为办公室和印刷厂。在1991年后的20多年间,建筑处于废弃状态,环境较为混乱。该项目将建筑内的一堵墙壁拆除并创造了一个大型的开放空间,随后又进行了维护和翻新,以求让建筑回归本质。
The building itself is the first neo-Gothic construction in Lviv from the late 19th century. From the very beginning, it was occupied by offices and a printing house. After 1991, more than 20 years it remained abandoned and cluttered. We removed an internal wall and created a big open space. Then, we decided to keep and renovate everything authentic we would find there.
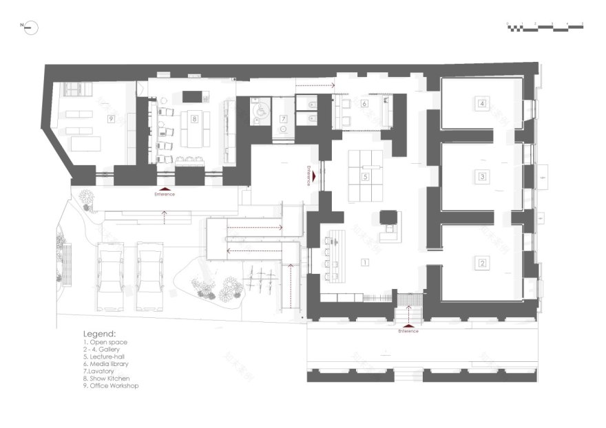
▼平面图,plan
由于建筑长期闲置,位于天花板上的原始壁画仍然被保留在一层石膏覆层之下,项目团队与利沃夫的画家和修复师Iryna Hirna进行了合作,为工人们传授了打磨方法,用特殊的药剂涂抹墙壁以保存画作。后来,团队又在走廊处发现了另一幅画作。画廊的车道和入口处保留了“破落”的状态,为参观者带来非常规的体验。很快,入口处的画作也得到了部分的修复。
Since the premises were not used for a long time, we thought that original ceiling paintings could be still present under layers of plaster. We did not have much time or budget for a profound research, nevertheless we succeeded to find the paintings! Iryna Hirna, a painter and restorer from Lviv, joined us and taught workmen to sand walls and cover them with special agents to preserve the paintings. At the end, we found another paintings in the hallway after cleaning and sanding walls and ceilings there. Consequently, the driveway and the entrance to the gallery are also “ragged” preparing visitors to see something non-conventional. Soon, the paintings in the entrance group will be partly restored.
▼大厅区域,lecture hall © Andrey Bezuglov
▼媒体图书馆,media library © Andrey Bezuglov
画廊空间占据了建筑的30%,设计团队利用金属立杆框架将一面干式墙悬挂起来,为参观者营造出洁白又光滑的立方体式展示空间。框架的置入还使墙壁得以“呼吸”,确保既有的天花板能够在保持袒露的同时不受干扰。
既有空间没有铺设地板,但可以看出旧奥地利瓷砖的铺设痕迹。鉴于19世纪末期曾一度流行带有大理石碎片的混凝土铺面(即今天的水磨石),且具有结实耐用的特征,因此设计团队决定再次使用这种材料来铺设地面。
The gallery occupies 30% of the space. The white cube aesthetic is critical there, so we hanged a drywall on a metal stud frame, so that the walls could breathe, giving a white and smooth space to visitors while keeping the authentic ceiling opened and untouched.
There was no flooring, but screeds with traces and stamps of old Austrian tiles. In the late 19th century, concrete screed with marble chips (today’s terrazzo) was very popular. It is a very durable material and appropriate to that period, so we decided to put it back.
▼从大厅望向画廊空间,view towards the gallery from the lecture hall © Andrey Bezuglov
▼画廊空间内部,gallery interior view © Andrey Bezuglov
▼悬挂干式墙使墙壁得以“呼吸” © Andrey Bezuglov
a drywall was hanged on a metal stud frame, so that the walls could breathe
内院的窗户已被损坏且不再适合修复,对此设计团队采用了新的复制品,并在此基础上添加了货真价实的旧式黄铜把手,使其与背景环境相融。
室内设计方面特别定制了高质量的家具。展厅的胶合板展台和多媒体图书馆中的桌子用德国塑料覆盖。桌腿和支撑构件通过厚厚的胶合板隐藏起来。
The windows in the inner yard were damaged and unsuitable for restoration, so we decided to replace them with new replicas. Later, we found authentic old brass handles and mounted them on those replicas so that they would not stand out too much from the context.
Quality furniture was designed and made for the interior. We successfully combined a plywood exhibition cube covered with German plastic with tables in the multimedia library – planes made of thick plywood where neither the supports nor the legs are visible – and with the torn pieces of plaster.
▼厨房和咖啡厅,kitchen-cafe © Andrey Bezuglov
▼室内和材料细节,interior & material details © Andrey Bezuglov
▼原始天花板的壁画被保留下来,the original ceiling paintings are preserved © Andrey Bezuglov
设计团队还希望强调空间的便捷性和包容性,因而在艺术中心的入口处修建了一个符合所有标准的坡道,除了方便老人和轮椅使用者,婴儿车、自行车和滑板车都可以顺利通过。
We really wanted to accentuate accessibility and inclusion of the premise. A wheelchair ramp that meets all standards was built to enter the art centre. The ramp is also made for mothers with strollers, for elderly people and for children on bicycles and scooters.
▼入口坡道,ramp at the entrance © Andrey Bezuglov
▼户外平台,outdoor terrace © Andrey Bezuglov
客服
消息
收藏
下载
最近































