查看完整案例

收藏

下载
项目将原有的工厂单元向西和向南进行了扩建,创造了一条新的展廊和一栋行政楼。
The project consists of expanding the existing factory unit to the west and south, with the construction of a new pavilion and an administrative building.
▼项目鸟瞰,aerial view of the project ©Ivo Tavares Studio
根据基地的形状,设计将中部工业体块的面积最大化,南部设置行政区,与新修的道路相邻,形成了一栋弧线形的混凝土建筑。建筑立面采用垂直铝制型材,与工业体块相区分,突出其作为行政空间的功能。
The site’s configuration contributed to the adopted solution, which sought to maximize the area of the industrial nave, leaving the southern part of the site for the administrative area. This area lies along the new proposed street, giving rise to a curved concrete building, marked by vertical aluminum profiles, which sought to differentiate itself from the industrial volume, highlighting its function as an administrative area.
▼顶视图,行政区为弧形建筑,top view, the administrative area is in a curved building ©Ivo Tavares Studio
▼行政区外观,与新修道路相邻,external view of the administrative area beside the new street ©Ivo Tavares Studio
▼建筑立面采用垂直铝型材,vertical aluminum profile used for the facade of the building ©Ivo Tavares Studio
▼立面细部,facade details ©Ivo Tavares Studio
▼混凝土开洞与光影,openings on the concrete and shadows ©Ivo Tavares Studio
▼通高庭院,multi-height courtyard ©Ivo Tavares Studio
▼从办公室看向露台,view to the terrace from the office ©Ivo Tavares Studio
▼露台,terrace ©Ivo Tavares Studio
东侧廊道贯穿中部工业区,将行政区和原有建筑连接在一起。廊道中设置强烈的立体构件,体现与模具产业的关联,承载当代概念的同时强化公司的品牌。
The east corridor, which covers the industrial nave, connects the administrative area to the existing building. With a strong plastic component, relating to the mold industry, it sought, by means of its language, to convey a concept of contemporaneity while associating the company’s brand.
▼东侧廊道连接行政区和原有建筑,east corridor connecting the administrative area and the existing building ©Ivo Tavares Studio
▼廊道中设有醒目的立体构件,strong plastic components in the corridor ©Ivo Tavares Studio
▼廊道内部,inside the corridor ©Ivo Tavares Studio
▼廊道细部,details in the corridor ©Ivo Tavares Studio
▼行政区入口,entrance of the administrative area ©Ivo Tavares Studio
▼从工厂看向行政区,view to the administrative area from the industrial nave ©Ivo Tavares Studio
▼从工厂看向东走廊,view to the east corridor from the industrial nave ©Ivo Tavares Studio
▼分隔行政区和工厂的走廊,corridor between the administrative area and the industrial nave ©Ivo Tavares Studio
▼设有圆形天窗的厕所前走廊,corridor in front of the toilet with circular skylight ©Ivo Tavares Studio
▼卫生间室内及细部,toilet and details ©Ivo Tavares Studio
▼夜景,night view ©Ivo Tavares Studio
▼立体构件强化公司品牌,plastic components enhancing the company’s brand ©Ivo Tavares Studio
▼总平面图,site plan ©Atelier d’Arquitectura Lopes da Costa
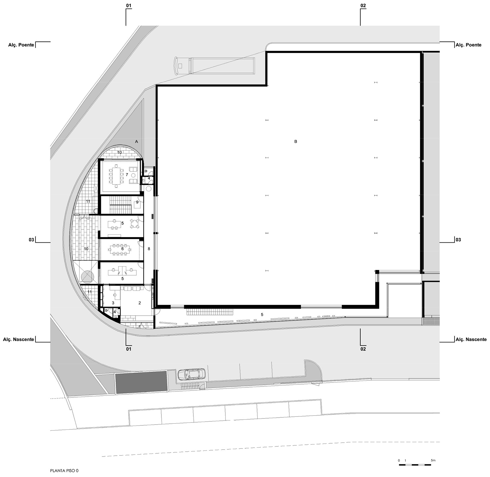
▼一层平面图,first floor plan ©Atelier d’Arquitectura Lopes da Costa
▼二层平面图,second floor plan ©Atelier d’Arquitectura Lopes da Costa
▼立面图,elevations ©Atelier d’Arquitectura Lopes da Costa
▼剖面图,sections ©Atelier d’Arquitectura Lopes da Costa
客服
消息
收藏
下载
最近


































































































