查看完整案例

收藏

下载
本案的业主Ondřej十分热爱森林与自然,在有孩子前一直以现代牧民的方式生活,他拥有树林之中的一块场地,一直梦想着在此打造一间小屋。Ondřej在城市度过了冬天,春天则搬入了父母在森林中的房屋。他希望自己的新家注重生态,与周边自然环境产生联系,并且能够拥有一间摄影室,在冬日的夜晚享受冲洗照片的乐趣。
Ondřej loves nature and forests. Before having children he led a life of a modern nomad. He owned a site in the middle of the woods and always dreamt about building a cabin there. During winter he used to live in the city and in spring he relocated to his parents’ cabin nearby the future building site of the house LO. He wanted his house to be connected to the surrounding nature, to be ecological, and to have his own photo chamber there, to spend his winter evenings developing his photos.
▼项目概览,overview © BoysPlayNice
Ondřej对材料也有清晰的想法。由于麻制混凝土还从未在捷克作为建材使用过,这种材料对于建筑师来说是一项巨大的挑战。建筑师在实践中不断积累着宝贵的经验,对材料的特性与历史愈发着迷。麻制混凝土简单易用,便于人们自己动手建造房屋。随着时间流逝,材料将逐渐吸收空气中的二氧化碳并逐渐硬化。此外,麻制混凝土不仅拥有良好的隔热性能,还可以抵抗虫害、火灾与霉菌的侵袭,并且可以回收利用。
He also had a clear idea about the building material. As hempcrete has never been used as a building material in the Czech Republic, it was a great challenge for me as an architect. First struggles evolved in a valuable experience and fascination with its features and its history. Building with hempcrete is easy and allows the builder to build their house on their own. Material is petrifying for several years and draws carbon dioxide from the air around during this process. Hempcrete has great insulating features, is recyclable and also resistant to pests, fire and molds.
▼北立面,the north facade © BoysPlayNice
▼从东北方向看房屋,view of the house from the northeast © BoysPlayNice
▼建筑入口,the entrance © BoysPlayNice
LO之家由上下两片穿孔石板和中间的一片薄木板共同定义,石板间形成了居住空间。滑动落地窗分隔了室内外,使房间与周边自然环境得以互相渗透,提供了观赏美景的视野。石板间的首层空间包括两间卧室和一间浴室。地下室则安排了摄影室、活动室、储藏室以及各种技术设备。房屋周围环绕着巨大的木质露台,悬挑的屋顶保证了半室外空间不受恶劣天气的影响,人们可以在户外度过更多时间。
House LO is defined by three elements: two perforated stones and a thin wooden sheet. The void in between the stones is the living space of the house. It is separated from the surrounding nature by large sliding windows that allow the space to become part of the outdoors and frame picturesque views. The two stones contain entrance, two bedrooms and a bathroom. The house has a cellar with technical facilities, photo chamber, club room and storage. A large terrace runs around the house, being protected from bad weather by the roof overhang, so that the owner can spend as much time outside as possible.
▼从室外看开放厨房,view of the open kitchen from the outside © BoysPlayNice
▼不同视角的开放餐厅,different views of the open dining room © BoysPlayNice
▼从室内看向窗外,view of the outdoor landscape through the window © BoysPlayNice
▼开放厨房,the open kitchen © BoysPlayNice
▼浴室,the bathroom © BoysPlayNice
屋顶覆盖着绿色的“地毯”,房屋与自然仿佛融为一体。内部布局呼应着外部空间,尽可能提高了空间利用率。LO之家为两个孩子的家庭而打造,随着孩子们长大,这里将在夏季作为家庭度假屋使用,最终,又将成为老年夫妇的温暖港湾。
The roof is covered with a green carpet, so that the house merges with nature and is well insulated. The layout of the house is designed to use its space to the fullest. The house will gradually become part of the nature. First it will be a home to a family with two children, later become a family summer retreat and even later a comfortable home for an elderly couple.
▼主卧,the master bedroom © BoysPlayNice
▼次卧,the secondary bedroom © BoysPlayNice
▼材料细部,details © BoysPlayNice
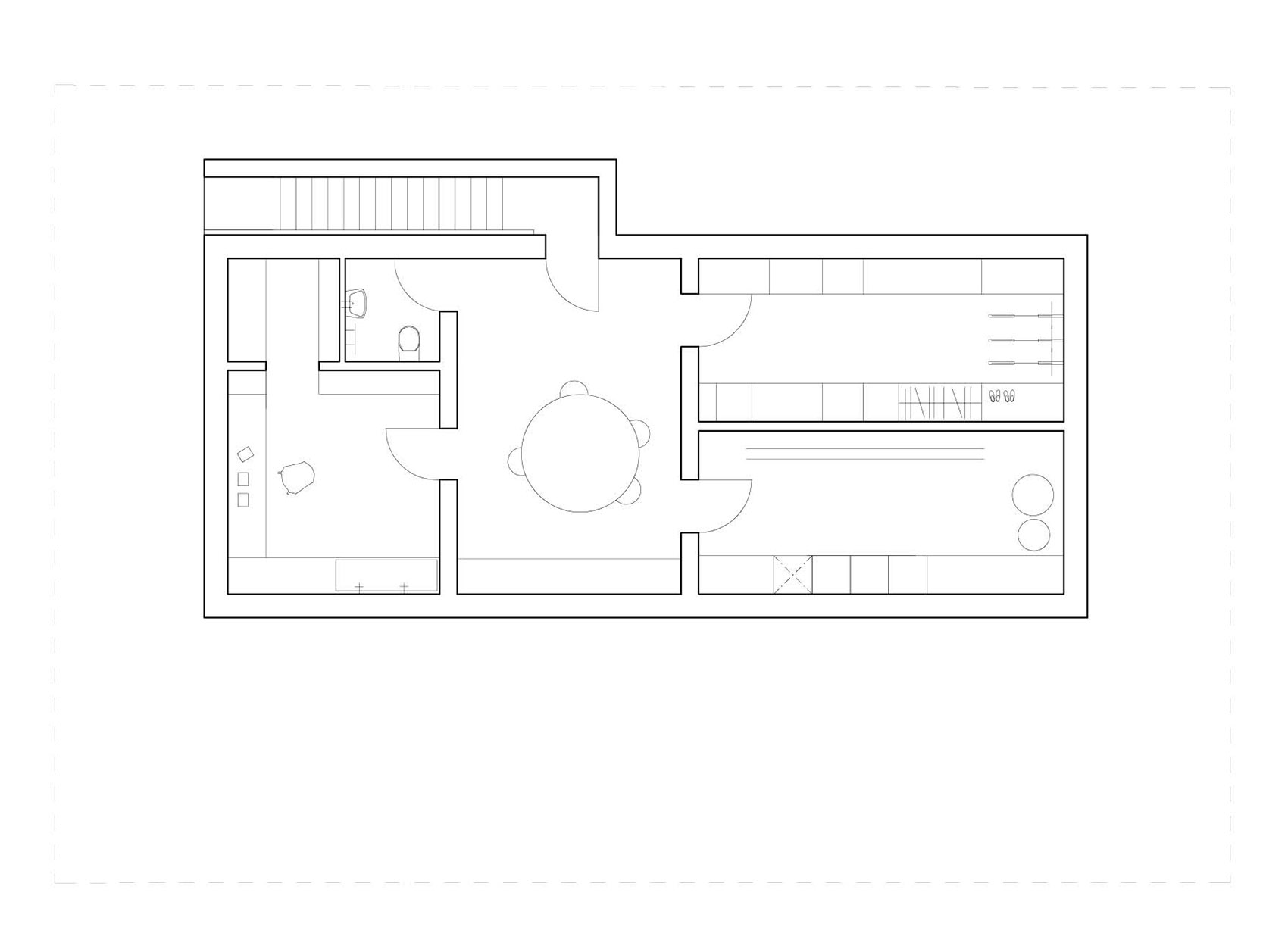
▼地下室平面,the basement plan © Ateliér Lina Bellovičová
▼首层平面,the ground floor plan © Ateliér Lina Bellovičová
▼屋顶平面,the roof plan © Ateliér Lina Bellovičová
Materials
timber – construction
concrete – cellar
anhydrid – floor
hempcrete – walls
stainless steel – kitchen
plywood – furniture
客服
消息
收藏
下载
最近




























