查看完整案例

收藏

下载
项目位于Nesodden,一座与奥斯陆相连的半岛上。设计师对一座联排房屋的室内进行了改造。所有隔墙都被拆除,形成了一个宽敞的新空间,三侧设有巨大开窗。新的木板墙在将空间细分成不同区域的同时,保留了空间的整体感。房梁和马厩式的灯具进一步强调了不同分区。区域间的高差形成了地板下的储物空间。
The project is an interior renovation of a row house in Nesodden, a peninsula in commuting distance from Oslo. All interior walls have been torn down to create one big room with new, big windows on three sides. New wood slat walls as internal divisions are erected to maintain the feeling of one big room while allowing the subdivision of the space into zones. Zones are emphasized by beams in the roof and barn-style lighting fixtures. Height differences between zones allow for subfloor drawer storage.
▼空间概览,overall view of the space ©Ivan Brodey
设计保留并翻新了原有的地板,用新的木材填补了老地板和墙面上的缺口。火炉和通往下层卧室的楼梯维持原样,与新的元素融合在一起。
The existing floor is kept and refurbished, and wounds in the floor from old walls are filled with new wood. Existing fireplace and stairs to the bedroom floor below are kept as they are, blending in with the new.
▼木板隔墙划分空间,保持空间的完整性,space defined by wooden slat partitions, remaining the characteristic of the one-room space ©Ivan Brodey
▼原有的火炉和新空间融为一体,original fireplace blending into the new space ©Ivan Brodey
▼区域间有高差,形成地板下的储物空间,height differences between zones allowing storage under the floor ©Ivan Brodey
▼寝室和书房,sleeping zone and study ©Ivan Brodey
▼通往下层卧室的楼梯,stair to the lower bedroom ©Ivan Brodey
房屋中有一片抬高的区域,铺设榻榻米,让人们可以直接坐在地板上。尽管席地而坐并不是欧洲传统的生活方式,业主的家人和朋友都十分喜欢这里,探索出了多种多样的社交场合。
The house has a raised zone with tatami mats for sitting on the floor. Although sitting on the floor is not a European custom, the zone is very popular with the client’s friends and family who explore its versatility in various social situations.
▼榻榻米空间,tatami space ©Ivan Brodey
虽然这并不是一座真正意味上的盒式住宅,但设计在融合北欧和日本元素的同时,也体现了一些美国传统,室内由简洁的单一房间组成,并与花园直接相连。
Although not a shotgun house in its true sense, the American vernacular was among Scandinavian and Japanese elements a recurring reference in the design process, for its one-room simplicity and straightforward approach on the garden.
▼木板隔墙细部,details of the wooden slat partitions ©Ivan Brodey
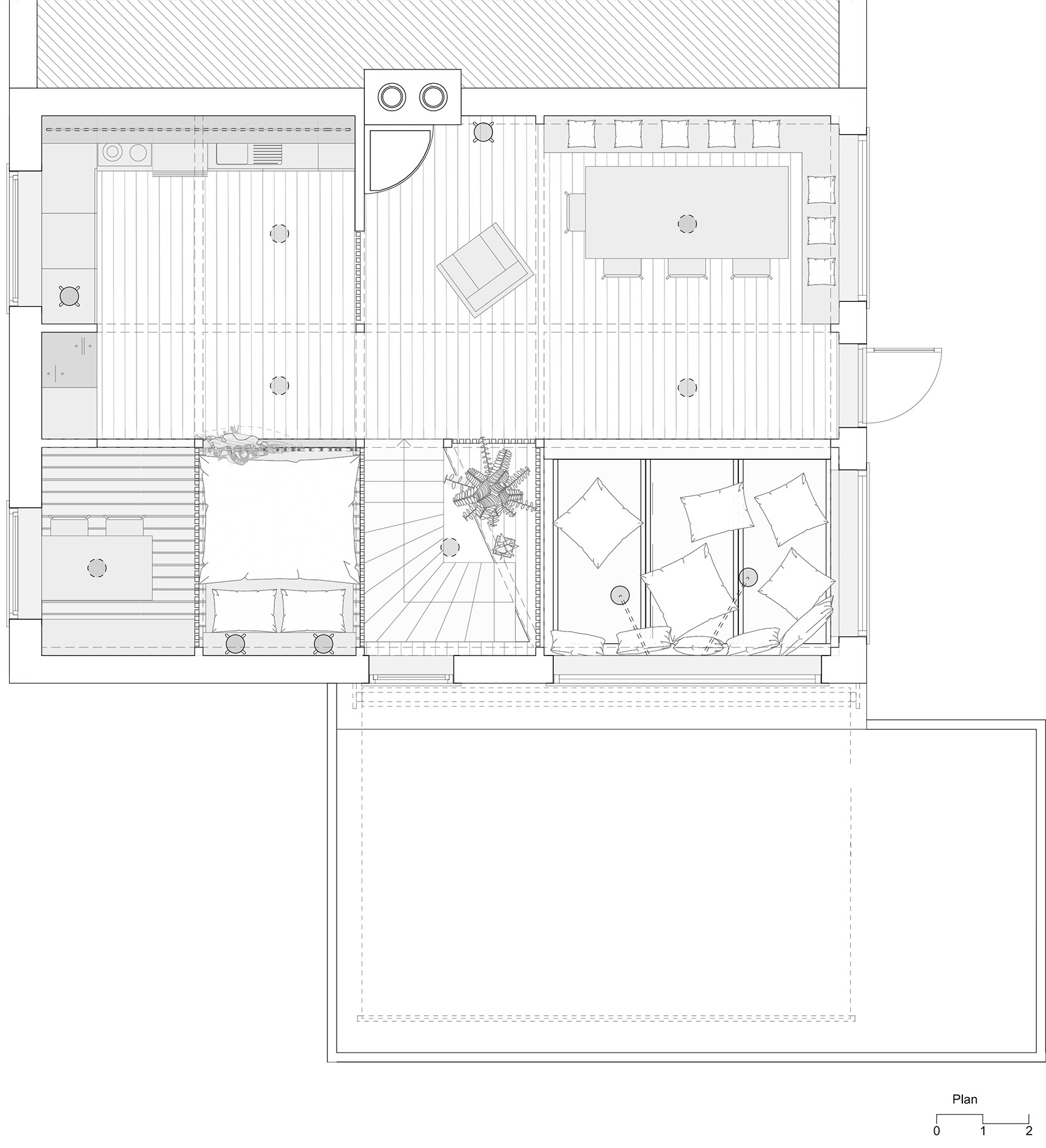
▼平面图,plan ©Austigard Arkitektur
▼剖面图,sections ©Austigard Arkitektur
Suppliers:
Columns: Moelven limtre
Birch veneer panels: Fritzøe
Wood slats: Thaugland
Tatami mats: Futonota
客服
消息
收藏
下载
最近
















