查看完整案例

收藏

下载
该项目位于芝加哥传统小巷旁,设计团队倒置了住宅的传统布局,将卧室布置在一层、起居空间布置在二层。这种布局支持现代的生活方式,强调了公共区域、连通性和灵活的生活办公空间,室内获得充足的光照并融于周边城市环境。
For this house bordering an alleyway on a traditional Chicago lot, Kwong Von Glinow flips the traditional residential section, arraying bedrooms on the first floor and living spaces on the second. This approach supports contemporary ways of living, emphasizing communal areas, interconnectivity, and flexible live-work spaces that receive ample natural light and engage the surrounding urban context.
▼项目外观,external view ©James Florio Photography
住宅外观融入了邻里房屋的传统风格,同时还反映了内部空间的组织。设计将立面层次从街道一侧转移至巷道一侧,这里具有最城市化的环境。临街立面设有沿着二层的半高带形窗,一层设有单扇门,保护房屋前部卧室的私密性。内部中庭的二层落地窗和一层大观景窗面向巷道,使内部空间向城市环境开放。
外部材料强调分段处理,为单一建筑体量增添了视觉韵律。房屋坐落在混凝土基座上,采用双色固雅木雨幕系统。一层的下半部分覆盖灰色木材,黑色木材排列在一层的上半部分和整个二层立面。
The exterior of the home engages the neighborhood’s traditional vernacular style while reflecting the organization of the interior spaces. The design shifts the facade hierarchy from the street to the alleyway, the most urban of the contexts. The street-facing facade has a row of half-height ribbon windows along the second floor and a single door on the first level, maintaining privacy for the front bedroom. On the alleyway side, floor-to-ceiling windows on the second floor and a large picture window facing out to the alleyway from the interior courtyard open the interiors to the urban surroundings.
The exterior materials approach emphasizes the sectional flip and lends visual rhythm to the monolithic building. The house sits atop a concrete base with a dual-color Accoya wood rain screen system. The bottom half of the first level is clad in grey wood, while black wood lines the top half of the first level and all of the second.
▼立面材质分段,sectional flip ©James Florio Photography
▼带形窗和大景观窗 ©James Florio Photography
ribbon windows and large landscape window
▼材质细部,details of materials ©James Florio Photography
弧形通高中庭从前门向后门纵向延伸,形成了垂直连接一二层公共空间的内部庭院。一扇大景观窗和一道曲面墙界定出该空间,为居住着提供了日常的多功能区域,大人们可以在这里放松休息,孩子们可以在这里玩耍。
▼倒置传统布局,flipping the traditional residential section ©Kwong Von Glinow
▼模型动图,model gif ©Kwong Von Glinow
A curved double-height atrium runs lengthwise from front to back doors, creating an interior courtyard that vertically connects the common areas on the first and second floors. Defined by a large picture window and a curving wall, the courtyard offers an informal multi-purpose area where residents can relax and their children can play.
▼弧形通高中庭,curved double-height atrium ©James Florio Photography
▼休息区域,rest area ©James Florio Photography
▼衣帽间,cloakroom ©James Florio Photography
藏于中庭曲面墙后方的楼梯通向二层,开放平面围绕支撑房屋的芝加哥气球框架(Chicago balloon frame)的四个桁架进行组织。四个桁架划分出围绕栏杆曲线布置的五个区域:厨房、岛台、餐厅、化妆间和客厅。整个空间采用朴素的色调和材料,包括白色墙体和白橡木地板、桁架和家具,引起人们对空间品质的关注。二层的公共空间均朝向贯穿内部中庭的带形窗,56英尺(约17米)长的窗户使光线倾泻而入并打开了全景视野,可以捕捉丰富的周边景象,例如百年古树、邻近建筑的后阳台和消防通道以及蜿蜒排列的路灯。
A stair tucked behind the courtyard’s curving wall leads to the second floor. The open plan is organized around four trusses that support the house’s Chicago balloon frame. These trusses distinguish five areas set around the curve of the balustrade: the kitchen, the island, the dining room, the powder room, and the living room. Throughout, a restrained colors and materials palette—white walls and white oak wood floors, trusses, and furnishing—draws attention to the qualities of the spaces themselves. All of the shared and public spaces on the second floor are oriented towards a ribbon window that spans the length of the interior courtyard. The 56-foot-long window floods the home with natural light and opens panoramic views that capture the fullness of the surrounding neighborhood: century-old trees, the back balconies and fire-escapes of neighboring buildings, and street lamps with their meandering cabling.
▼藏于中庭曲面墙后方的楼梯通向二层 ©James Florio Photography
stair tucked behind the courtyard’s curving wall leads to the second floor
▼公共空间,common space ©James Florio Photography
▼贯穿内部中庭的带形窗,ribbon window spanning the length of the interior courtyard ©James Florio Photography
▼客厅,living room ©James Florio Photography
▼朴素的色调和材料,restrained colors and materials ©James Florio Photography
▼从客厅看向厨房,view to kitchen from living room ©James Florio Photography
▼餐厅与厨房,dining room and kitchen ©James Florio Photography
▼厨房细部,details of kitchen ©James Florio Photography
住宅设计平衡了城市环境中的私密与开放。曲面墙的另一侧是卧室,中庭使其远离巷道、靠近隔壁房屋。靠近房屋前部的两间卧室设有朝向隔壁芝加哥砖墙的窗户,避免了来自街道和邻里的视线干扰。主卧套房位于房屋后部,可以俯瞰私人花园。
The design of the home balances privacy and openness on the urban site. Off the courtyard’s curving inner wall lie all of the home’s bedrooms, pushed away from the alleyway towards the neighboring lot. The two bedrooms nearer the front of the house have windows that look toward the neighbor’s Chicago brick wall, providing privacy from the view of the street and neighbors. The primary bedroom suite is located at the back of the home, overlooking a private garden.
▼主卧,master room ©James Florio Photography
▼不同的卧室窗户面向不同景观,different bedroom windows facing different landscapes ©James Florio Photography
▼地下空间,basement ©James Florio Photography
▼浴室,bathroom ©James Florio Photography
▼夜景,night view ©James Florio Photography
▼模型,model ©Kwong Von Glinow
▼总平面,site plan ©Kwong Von Glinow
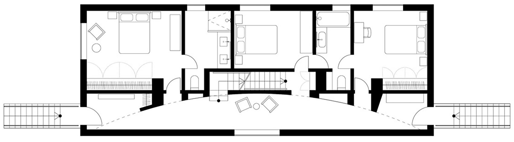
▼一层平面,1F plan ©Kwong Von Glinow
▼二层平面,2F plan ©Kwong Von Glinow
Data
Program: Single Family Home New Construction
Location: 1326 W. Ardmore Ave, Chicago IL 60660
Size: 3,100 square feet
Client: Kwong Von Glinow, Enjoy Architecture Development
Status: Completed 2020
Team
Architect: Kwong Von Glinow
Structural Engineer: Goodfriend Magruder Structures
Contractor: Oslo Builders
Photographer: James Florio Photography
客服
消息
收藏
下载
最近
































































