查看完整案例

收藏

下载
由于经济问题,这栋位于Seinäjoki镇边的建筑无法如期成为Törnavä Manor的示范型畜棚。同样的问题也使周边市政的发展趋于停滞。建筑最终由Kaleva保险公司完成,首先被用作呢绒工厂,之后被芬兰国防军关闭,消失在公众视野之中。今天,这座畜棚重新成为了一个文化艺术中心,由数个实体合作运营。
Due to economic misfortunes, this building on the edge of Seinäjoki town centre never became Törnavä Manor’s exemplary educational cowshed as originally intended. In fact the same misfortunes led to the development and growth of the surrounding municipality into an eventual city. The cowshed itself was eventually finished by the insurance company Kaleva, first turned into a broadcloth factory and then finally closed off from public by the Finnish Defence Forces. Today, the barn has re-emerged as a centre for arts and culture co-operated by several entities.
▼项目外观,external view of the project ©Hirvilammi architects
基于不同时期的不同需要,这栋建筑经历了零碎而理性的发展。在1893年到1930年间,建筑被抬高并加长,以容纳更多功能。没有任何一段历史时期是建筑真正的起源,因为每十年都拥有属于自己的故事,无法简单地将建筑还原到某个特定时期。尽管这座畜棚是Seinäjoki城市景观的重要组成部分,但其内部却鲜为人知。对于设计师来说,这种公众认知与信息缺乏之间的矛盾激发了他们的想象力,为项目的改造带来灵感。
The building has grown piecemeal but rationally throughout its life based on situational needs. For instance, it has been raised and lengthened for various purposes between 1893–1930. Since no single historical era is truly original as each decade passed has its own story, it was not possible to simply restore to a certain era. Whilst the exterior of the cowshed is prominent in the cityscape of Seinäjoki, the building interiors however, have remained inaccessible and generally unknown to the public. As designers, this paradoxical situation between public recognition and lack of information gave rise to imagination and inspiration in responding to the project.
▼从不同方向看向建筑,每个时期拥有不同的故事,view of the building form different angles, each era has its own story ©Hirvilammi architects
修复工作需要一直寻找平衡,校验并重新诠释原本的建筑。负责任的建筑介入必须提供一些方式,发明创造一些新的事物,同时保护历史的痕迹。对本项目来说,设计师选择进行了一种现象学上的尝试。基地很近,使得建筑师可以经常到现场记录建筑不同时期的材料和层次,从而彻底将其剖解为一种叙事,运用到新的建筑表达中。
Restoration work is about continuously seeking balance, validation and reinterpretation of the building. Responsible architectural intervention should offer the means to invent and create something new, while safeguarding the traces of history. To us, a phenomenological approach felt appropriate. The site was nearby and we could visit the building often to document materials, layers and phases in the building process whilst we were able to thoroughly dissected the building into a narrative which we could then be applied in the architectural expression.
▼不同时期材料和结构的结合,combination of materials and structures in different eras ©Hirvilammi architects
▼材料与结构细部,closer view to the materials and sturctures ©Hirvilammi architects
Kalevan Navetta文化艺术中心是建筑中多种实体的合奏。大厅作为序曲,引入其他空间。昏暗的中央楼梯帮助游客做好心理准备,迎接主要空间之间在氛围、结构和材料上的戏剧性转变,如同一首热闹的乡村交响曲。建筑变成了一场仿佛由民间小提琴家、刨木机和钢琴共同演奏的丰富的感官盛宴。
The Kalevan Navetta Art and Culture Centre is an ensemble of the various entities that occupy the building. The lobby acts as a prelude for the rest of the spaces. The dark, centrally located staircase prepares one in experiencing the theatrical shift in atmospheres, structures and materials between the main spaces, like a kind of rustic symphony. In this way the building becomes a rich sensual experience, akin to listening to music performed simultaneously by folk violinists, wood planer machines and concert piano.
▼大厅,lobby ©Hirvilammi architects
▼接待台,reception ©Hirvilammi architects
▼休息区和咖啡厅,cafe and rest area ©Hirvilammi architects
▼楼梯间,staircase ©Hirvilammi architects
▼演讲厅,lecture hall ©Hirvilammi architects
▼展厅,exhibition hall ©Hirvilammi architects
▼办公区,office area ©Hirvilammi architects
▼总平面图,site plan ©Hirvilammi architects
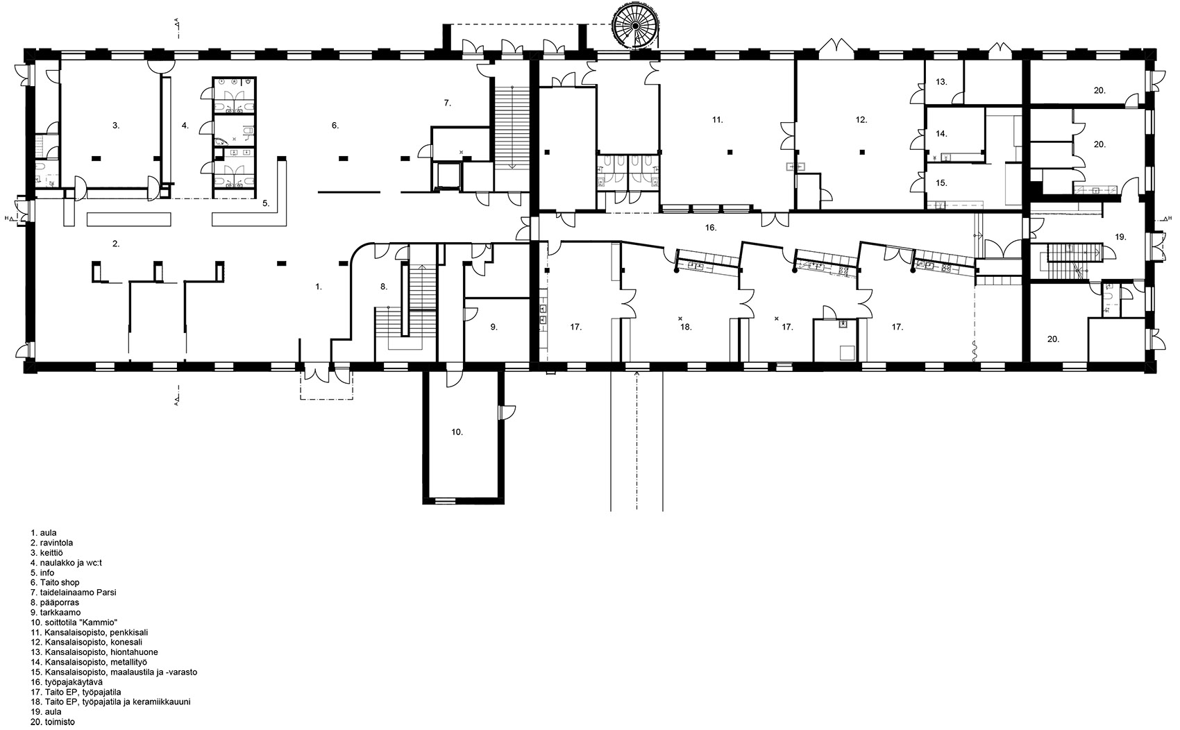
▼一层平面图,first floor plan ©Hirvilammi architects
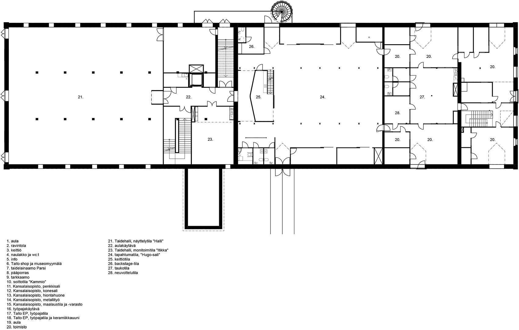
▼二层平面图,second floor plan ©Hirvilammi architects
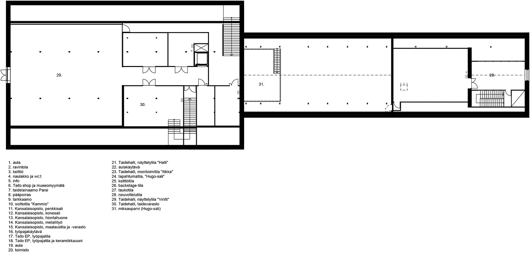
▼三层平面图,third floor plan ©Hirvilammi architects
▼立面图,elevations ©Hirvilammi architects
▼剖面图,section ©Hirvilammi architects
Design Team: Hirvilammi Architects Ltd. / Teemu Hirvilammi and Anne Kaivo-oja
Clients: Pihlacon / Petri Pihlajaniemi
Users: Sibelius Academy Seinäjoki Unit Cultural cervices Seinäjoki, Kunsthalle Seinäjoki, Childrens cultural center Louhimo, Seinäjoki Vocational college, Restaurant Äärellä, Taito Etelä-Pohjanmaa, crafts and design school Näppi, Taito Shop
Engineering: Ramboll Finland / Structure engineering / Fire engineering, Sähkö Tuominiemi / Electrical, Paloff oy / HVAC
Interior design: Teemu Hirvilammi and Anne Kaivo-oja, Elina Ristimaa, Room2, (Taito Shop)
客服
消息
收藏
下载
最近














































