查看完整案例

收藏

下载
青岛市麦岛片区以小麦岛为中心,宛如一颗明珠镶嵌在延绵悠长的海岸线上。独具慧眼的业主在这里买下一幢独栋酒楼进行改造,作为企业的高端总部使用。
两年前,站在项目基地上,与陆地一桥相连的小麦岛将我们的目光引向远处的海平面。层叠的波浪舒缓而慵懒的涌向岸边,天地有大美而不言。如何在城市片区中呼应自然环境的肌理,并创造与之对话的立面秩序,成为这个项目最需要解决的问题。
▼项目概览,overall of the project @三景影像王恺
Xiaomai island, the center of Qingdao Maidao Area, resembles a pearl inlaid on the longlasting coastline. The client with exceptional insight bought a detached hotel building here for renovation, which will be used as the high-end headquarters of the enterprise.
Two years ago, on an early spring morning, standing on the site of the project, our sights were led to the distant sea level by the Xiaomai island connected to the land through a bridge. Layers of waves slowly flowing to the shore, the splendor of the world is breathtaking. How to echo with the texture of the natural environment in the urban area and create the façade order of the dialogue has become the problem that requires solving the most in the project.
▼建筑近景,a close view to the building ©三景影像王恺
从喧嚣 到沉静
From Noise to Silence
在基地的踏勘过程中,我们对整个项目所处环境的独特性有了更深刻的认识。基地西侧是喧闹的城市,高楼林立,车水马龙;东侧是一望无际的大海,海浪翻滚,此起彼伏。建筑在两者间,处于“城市”与“海”的空间角力场,感受两种空间边界的张力互相试探,此消彼长,为基地带来独特的空间体验。
夹在城市的喧嚣与大海的漂浮感之间,建筑自身该有怎样的气质?我们的选择是让它沉静下来。整幢建筑镶嵌在海岸线上面,宛若隐现在树丛之间的山石,不被两者中任何一种气场所裹挟,随波逐流。它既是两种空间流通或碰撞的交汇点,又是边界和环境的映射。
▼基地分析,site analysis ©腾远设计
▼景观分析,landscape analysis ©腾远设计
In the process of the site survey, we have a deeper understanding of the uniqueness of the environment of the whole project. On the west side of the site is a noisy busy city full of high-rise buildings, while an endless sea with waves rolling up and down on the east side. The building is in the spatial wrestling field of the city and the sea, feeling the tension of two kinds of space boundary to bring a peculiar space experience for the site.
Laid in between the noise of the city and the floating feeling of the sea, what kind of temperament should the architecture possess? Our choice is to calm it down. The whole building is inlaid on the coastline, just like a rock loomed between the trees and not coerced by the city or the sea. It is not only the intersection of two kinds of space circulation or collision, but also the mapping of boundary and environment.
▼建筑原貌&改造后,the building before & after renovation ©腾远设计
空间上,建筑所在基地的东北侧到南侧有两层高差,建筑临城市主要道路一侧为两层半,沿海一侧为五层。为消解不同方向建筑体量差异的悬殊,统一建筑气质,我们在沿城市区域增加了一个下沉广场。一方面解决了由于地形高差所造成的地下功能空间的采光问题,为在这里工作的人群提供更为舒适幽雅的活动场所;另一方面也使建筑立面向下一层延伸,优化立面比例,增强城市昭示效果。下沉广场的设置,增加了建筑空间的流通性,使城市的“喧嚣”和海的“漂浮感”这两种气场在建筑中不再是碰撞,而是互相交织、流动。
In terms of space, there is a two-story height difference between the northeast side and the south side of the site where the building is located. There are two and a half stories on the side near the main urban road and five stories on the coastal side. In order to eliminate the disparity of building volume in different directions and unify the architectural temperament, we add a sunken plaza in the area near the city. On the one hand, it solves the lighting problem of underground functional space caused by terrain height difference, providing more comfortable and elegant activity place for people working here. On the other hand, it allows the building elevation to extend to the next floor, optimizing the facade proportion and enhancing the urban display effect.
▼北侧下沉庭院,sunken courtyard on north side ©三景影像王恺
▼在餐厅可以看到下沉庭院,view to the sunken courtyard from the dining hall ©三景影像王恺
立面形态上,作为已建建筑的改造工程,项目所处的区位十分敏感。建筑面积、建筑高度甚至顶部的突出部分均受到非常严格的制约。地理位置的特殊性使得无论从海面上还是城市里来看,该项目都是人们视觉中心的焦点。同时,它也是观赏风景的绝佳处,不论是城市繁华还是自然风光,都在它的取景框内。如此,将建筑楼板顺应周边岸线进行延展,而观海的景窗如漂浮的盒子般镶嵌于这些楼板之间的想法,便在一轮轮设计推演的过程中渐渐明晰起来。
As for the façade form, as the renovation project of the existing building, the location of the project is very sensitive. The floor area, building height and even the protruding part of the top are strictly restricted. The particularity of geographical location enables the project to become the focus of people’s visual center, whether from the sea or in the city. Meanwhile, it is also an excellent place to enjoy the scenery, whether the prosperous city or natural scenery, are in its camera aperture. In this way, the concept of extending the building floor along the surrounding shoreline and embed the sea view windows between these floors like floating boxes has gradually become clear in the process of rounds of design deduction.
▼建筑临海面立面图,southeast elevation ©三景影像王恺
因延伸 而灵动
Extending enables Flexibility
面向大海,建筑随岸线横向延伸,与地形及周边建筑相呼应。原有建筑在临海一侧设有部分露台,我们将露台善加利用,将地面的绿化分层次向屋顶延展,使建筑融入周边的环境之中。为增加整体灵动性,立面线条在横向做了些许改变,通过折板处理,改变了原本单调的平行关系,为立面形态增加了动势。自小麦岛向岸边回望,建筑明净通透,形成良好的视觉景观效果。保留原有建筑的梁板柱,在其外侧加挑檐和通透的落地玻璃幕墙。再利用建筑的功能特点,甄选独立功能房间加置纵墙形成独立景框效果。这些景框均做斜切处理,既增加厚重感,扩大室内观海景观视野,又能减轻外挑檐造成的视觉压抑感。石材的切削与建筑平面的不规则也形成了呼应。
Facing the sea, the building extends horizontally along the coastline, corresponding to the terrain and the surrounding buildings. The original building has part of the terrace on the side near the sea. We make good use of the terrace and extend the greening layer by layer to the roof to make the building integrate into the surrounding environment. In order to increase the overall flexibility, the facade lines have made some changes in the horizontal direction. Through the processing of folded plate, the original monotonous parallel relationship has been changed, and the momentum has been increased for the facade form.Looking back from the Xiaomai Island to the shore, the building is clear and transparent, forming a good visual landscape effect. The beams, plates and columns of the original building are retained, and the overhanging eaves and transparent floor glass curtain wall are added outside. Then, we use the functional characteristics of the building, select independent functional rooms and add longitudinal walls, to form an independent view frame effect. These frames are all cut obliquely, which can not only increase the massiveness feeling and expand the indoor view of sea view, but also reduce the visual depression caused by overhanging eaves. The cutting of stone and the irregularity of building plane also form the echo.
▼屋顶鸟瞰,roof top view ©三景影像王恺
▼在一层的接待室可以远眺海景,the sea view from the reception room on the first floor ©三景影像王恺
面向城市,立面表现依然延续景框的手法。与沿海面不同,这里的景框相较于摄取景色于建筑内,更大的作用是展示自身于城市,方形的景窗为造型带来了高低错落的形体关系,不失活泼灵动,是城市边界面上生动的点缀。
Facing the city, the facade still adopts the view frame technique. Different from that along the sea surface, the view frame here plays a greater role in displaying itself in the city than in capturing the scenery in the building. The square view window brings the staggered form relationship, which is lively and flexible, and becomes a vivid ornament on the boundary of the city.
▼方形的景窗,square view window ©三景影像王恺
柔兼刚 以共生
The Coexistence of Softness and Stiffness
项目材料的选择遵循简洁大气的风格。玻璃,石材,深色金属,整体建筑材料控制在三种选择之内。选材上的克制,使概念的表达更加纯粹。深色高反射玻璃从底通至顶,尽量做到可实现的最大尺寸,力求减少框架对其完整性的破坏,实现建筑的通透性,增加其光泽感,宛如一颗嵌在岸边的钻石;为增加建筑的稳定性,石材的选择需体现形体的厚重感,干净且有分量,考虑到海风及雨水对立面的侵蚀,材料自身的性质稳定及自洁能力也十分重要。基于以上两点,我们选择米白色维娜多作为立面主要表达,这种石材自身纹理细腻典雅,色彩统一,远处观赏大气挺拔,近处细看亦不缺少精致细节;深色金属则作为点缀,在雨棚下及体块分割之间,增加建筑层次。为优化统一各部分立面比例,玻璃面上横向百叶外增加成组的深色方通管,使其在层间形成序列,提升立面活泼气质的同时,强化横向线条。
The selection of materials follows a simple and elegant style. The materials of overall building are controlled in three options of glass, stone and dark metal. The restraint of material selection makes the expression of concept more pure. Dark and high reflective glass is used from the bottom to the top, as far as possible to achieve the maximum size, striving to reduce the damage to the integrity of the frame, achieving the permeability of the building and increasing its luster, like a diamond embedded in the shore. In order to increase the stability of the building, the selection of stone materials should reflect the massive feeling of the body, clean and heavy. Considering the erosion of sea wind and rain on the facade, the stability and self-cleaning ability of materials are also very important. Based on the above two points, we choose the beige Weinado as the main expression of the facade. This kind of stone has exquisite and elegant texture and unified color. It is tall and straight when seen from a distance while there is no lack of exquisite details when looked at closely. The dark metal is used as ornament, under the canopy and between the block partitions, to increase the architectural level. In order to optimize and unify the facade proportion of each part, a group of dark square pipes are added outside the horizontal louver on the glass surface to form a sequence between layers, to strengthen the horizontal lines while enhancing the vitality of the facade.
▼玻璃细部效果(左)和石材及铝板细部效果(右),detail effect of glass(left) & detail effect of stone and aluminum panel(right) ©三景影像王恺
白日里,整个项目如山石,与海岸融为一体;华灯初上,灯光亮起,建筑又像钻石,像灯塔,像海边璀璨的星光。新建筑保留原有建筑结构,植入新材料和设计手法、新的办公和生活方式的体验,并与周边景观环境相映衬,形成良好的共生关系。
In the daytime, the whole project is like a rock, integrated with the coast. When the evening lights are lit, the building is like a diamond, like a lighthouse, like a bright star on the beach. The new building retains the original building structure, implanting new materials and design methods, new office and lifestyle experience, setting off with the surrounding landscape environment and forming a good symbiotic relationship.
▼建筑夜景,night view ©腾远设计
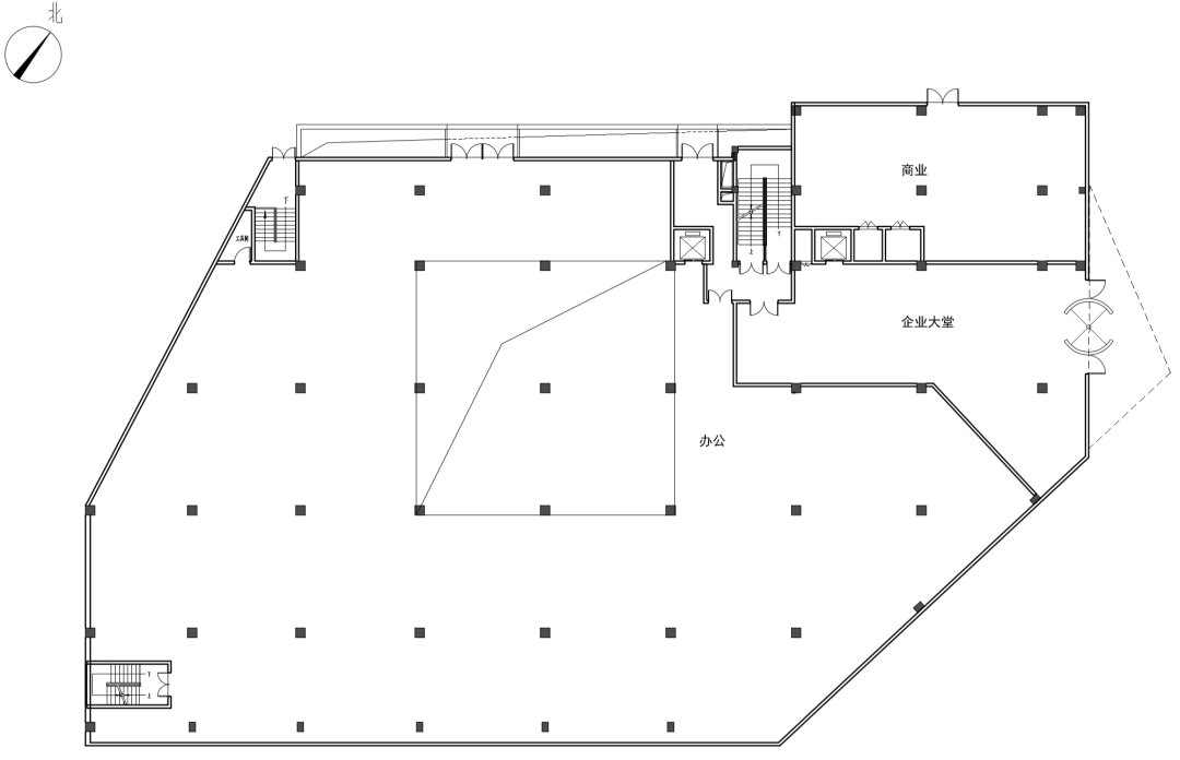
▼一层平面图,first floor plan ©腾远设计
▼负二层平面图,B2 plan ©腾远设计
▼立面图,elevation ©腾远设计
建设单位:银盛泰国际控股有限公司
设计单位:腾远设计
项目地点:中国,青岛,崂山区
建筑面积:1.2万平方米
设计/竣工:2018年6月/2020年2月
项目总监:赵广俊
项目经理:黄伊明
主创建筑师:黄伊明、梁琛
方案设计团队:黄伊明、梁琛、刘军红、郑芳、孙黎明
施工图负责人:褚玉亮、姚洪亮
建筑设计:王伟、王芝、褚玉亮、姚洪亮、邵丽
结构设计:邢星、刘金光、赵建富、朱晓宁
暖通设计:曲志光、曲秋波、顾鹏、张涛、纪如飞、耿赛赛
给排水设计:张欣、王娟、王文积、蒋维亮
电气设计:孙常青、衣卫国、石正建、司镇
Construction company: Shandong CIFI YST Group
Design company: Tengyuan Design Institute
Project location: Laoshan District, Qingdao, China
Floor area: 12000 square meters
Design / Completion: June 2018 / February 2020
Project Director: Zhao Guangjun
Project Manager: Huang Yiming
Main architects: Huang Yiming and Liang Chen
Schematic design team: Huang Yiming, Liang Chen, Liu Junhong, Zheng Fang, Sun Liming
Person in charge of construction drawing: Chu Yuliang and Yao Hongliang
Architectural design: Wang Wei, Wang Zhi, Chu Yuliang, Yao Hongliang, Shao Li
Structural design: Xing Xing, Liu Jinguang, Zhao Jianfu, Zhu Xiaoning
HVAC: Qu Zhiguang, Qu Qiubo, Gu Peng, Zhang Tao, Ji Rufei, Geng Saisai
Water supply and drainage: Zhang Xin, Wang Juan, Wang Wenji, Jiang Weiliang
Electrical design: Sun Changqing, Yi Weiguo, Shi Zhengjian, Si Zhen
客服
消息
收藏
下载
最近






























