查看完整案例

收藏

下载
座右铭 | Motto
三角形场地;三个侧面;三块体量,建筑师设计了三座精巧的几何形大楼。广场视野开阔,装点着绿色景观、喷泉与艺术品,可在此感受阴影、光线、晨雾与日落。
Triangular plot. Three sides, three objects. Refined geometry of three solitary buildings. Square with views. Green. Fountains. Art. Shadows, light, morning haze, sunset.
▼项目概览,overview © BoysPlayNice
▼办公楼鸟瞰,aerial view of office buildings © BoysPlayNice
场地 | Site
办公大楼建在原Ruston公司旗下的布拉格股份厂区,现为当地广为人知的Rustonka区。三角形场地位于伏尔塔瓦河右岸,靠近布拉格市中心,附近有Invalidovna住宅区,地铁站和Olympik酒店。
The office complex is built on the area of the former Prague Joint-Stock Engineering Works, formerly Ruston Company, known under the popular name Rustonka. The triangular plot is close to the Invalidovna residential area, metro station and the Olympik Hotel, near the center of Prague, close to the right bank of the Vltava River.
▼从街道看建筑,view of the buildings from the street © BoysPlayNice
概念 | Concept
几栋简洁的大体量办公楼看似随意地放置在场地上,实际则经过了无数次面积与角度的精心推敲。建筑师不断思考着单个体量的分布与分配,协调建筑、场地间的关系。最终方案中,三栋同等体量的几何形大楼均匀地分布,中间留下公共空间。
Generous, simple volumes of office buildings are seemingly placed randomly on the plot. In fact, the final solution was preceded by countless variants of calculations of areas and angles, distribution and size of individual masses, and examination of their interrelationships. The result is a carefully constructed geometry of three equal volumes, and the free space between them.
▼建筑体量的分配,the distribution and size of individual masses © BoysPlayNice
建筑 | Architecture
建筑设计的灵感源于场地原本的工业特征和独特的区位条件。大体量的七层办公楼装备了最先进的设备,打造为工作服务的“机器”。建筑采用黑色和棕色的砖砌外墙,外观工业感十足,细长的高窗装备着独特的百叶和外部遮阳构件。首层购物区包含咖啡店与餐厅,独特的入口顶棚连接着宽敞的大厅。
The architectural solution refers to the original industrial character of the site and its genius loci. Large masses, seven-storey office buildings, equipped with state-of-the-art technology, they are “machines” for work. Industrial brick facades in black and brown, slim tall windows with distinctive shutters and external blinds. On the ground floor of the shopping area, there are cafes and restaurants, and also a generous entrance lobby with a distinctive canopy.
▼七层办公楼,seven-storey office buildings © BoysPlayNice
▼立面上的高窗,slim tall windows on the facade © BoysPlayNice
公共空间 | Public space
办公楼间的公共空间设计也同样重要,CMC ARCHITECTS与景观设计师Martin Barry共同合作,生成地形与铺装设计的总体概念。设计采用基本几何形,呈现出不同线条、元素和材料。场地设计顺应建筑,划分出水平和垂直方向的宽阔步道,斜坡和楼梯穿插其中,两座喷泉坐落在中心广场附近。绿化景观通过挡土墙与铺装区相分隔,草地中放置着不规则形状的雕塑长椅。粗放的绿色景观由设计团队和景观建筑师JanaPyšková共同打造,呼应了场地历史。
The design of public space between buildings has become a separate important topic for the authors. Landscape architect Martin Barry is the co-author of the overall concept of the layout of the terrain and paved outdoor areas. The basic geometry is divided in the design and breaks down into individual lines, elements, materials. The overall composition is horizontally and vertically divided into individual wide sidewalks along the buildings, connected by a ramp and stairs, near the central square there are two fountains. The landscape is separated from the paved areas by retaining walls. There are atypical sculptural benches for sitting on the grassy area. The wild character of the greenery, referring to the industrial history of the place, was created in close collaboration of the authors with the landscape architect Jana Pyšková.
▼粗放的绿色景观,the wild character of the greenery © BoysPlayNice
▼景观与建筑立面,the landscape and the facades © BoysPlayNice
艺术 | Art
经过讨论,设计团队和投资方决定在办公楼间的广场上放置雕塑家Jiří Příhoda的非凡艺术品”Vista Mars”,该作品曾获得了1997年的Jindřich Chalupecký奖。未来感十足的钢制雕塑是一个旋转的螺旋体,表皮为抛光不锈钢,沿着螺旋进入内部,大屏幕上的火星全景图在眼前逐渐展开。
On the piazza between the buildings, the authors, in collaboration with the investor, decided to place a remarkable work of art called “Vista Mars” by sculptor Jiří Příhoda, winner of the Jindřich Chalupecký Award in 1997. It is a futuristic steel rotating spiral, with polished stainless steel surface, panoramic image of Mars on a large screen, and, with the possibility of entering the module.
▼广场与雕塑,the square and the sculpture © BoysPlayNice
▼未来感的旋转螺旋体,a futuristic steel rotating spiral © BoysPlayNice
▼雕塑内部,interior of the sculpture © BoysPlayNice
▼场地平面,site plan © CMC Architects
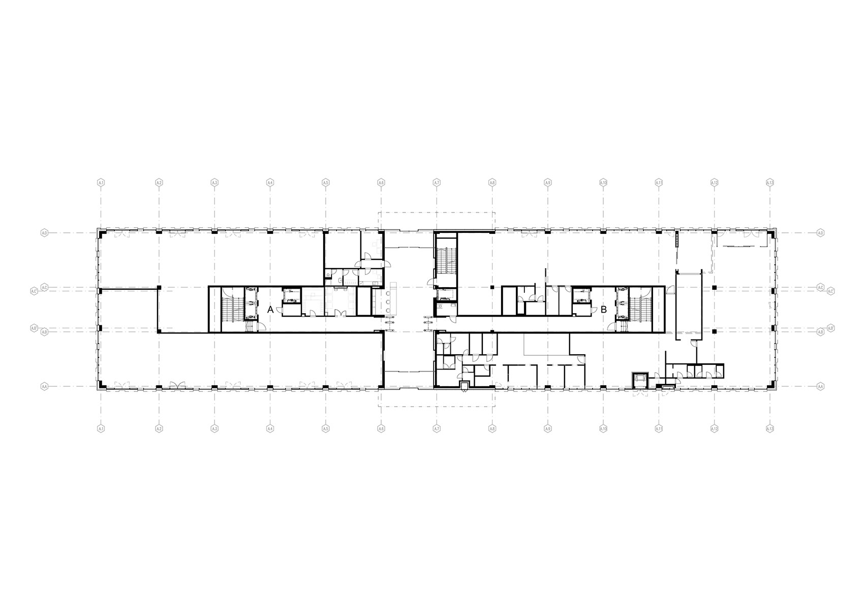
▼单体平面,plan © CMC Architects
客服
消息
收藏
下载
最近



































