查看完整案例

收藏

下载
SUMMIT BAR位于江苏省常州市常发广场,是一家集精品咖啡和专业Wiskey Bar为一体的集合型商业空间。“SUMMIT”在英文中是最高点和顶峰的意思,设计师在做空间构建时紧扣这一主题,另整个空间与品牌形成独特而又统一的视觉体。
Summit bar is located in Changzhou City, Jiangsu Province. It is a complicated type commercial space including coffee and professional wiskey bar. “Summit” means the highest point in English. Designers closely follow this theme in the inspiration of the space, forming a unique and unified impression between the whole space and the brand.
▼外观,exterior view © EMMA
▼独特的品牌墙,unique exterior wall displaying the brand © EMMA
在空间中同时并存日夜两个经营时段的业态时,首先我们考虑的是照明的功能,在白天的咖啡馆空间里,设计师尽可能的使用了自然光线作为咖啡馆的光源所在,让进入到店中的客人能感受到日光带来的温暖,从而更加享受手中的咖啡。在咖啡馆空间部分的材质选择中,设计师选用了质感温润的木制品制作了空间中与人连接最紧密的部分。另外与整个品牌空间的联系则使用直线条的钢板材质,以达成咖啡区域与内部酒吧区域视觉上的一致性。咖啡空间室内的家具由我们设计并定做,运用了机械构建设计了空间中的咖啡桌面,空间的核心还是一个看似悬浮的吧台,集展示,销售及与顾客互动等多功能为一体,我们精心选择了材料的种类,并利用特殊的几何形状来丰富设计语言,以增强空间的体验感。
When the business forms of day and night in the space, the first thing we consider is the lighting function. In the daytime Cafe space, the designer uses natural light as the light source of the cafe as far as possible, so that the guests who enter the shop can feel the warmth brought by the sunlight,and enjoy the coffee in their hands. In the material selection of the space of the cafe, the designer selected wood products with warm texture to make the most closely connected part with people in the space. In addition, the connection with the whole space uses the steel plate material of the bar to achieve the visual consistency between the coffee area and the bar area. We have designed a special kind of space for customers, such as the coffee table, to enhance the function of the coffee table.
▼入口的咖啡制作区,coffee making area at the entrance © EMMA
▼白天的咖啡馆空间,the daytime Cafe space © EMMA
▼采用质感温润的木制品,wood products with warm texture © EMMA
进入到内部酒吧的空间首先要通过一道小而精致的木制旋转门,在这个过程中也随着外立面材质的刻意变化,自然光线对于空间内的照明影响也产生了很大的反差,让客人感受到设计师刻意营造的穿梭感。
To enter the bar space, you must first pass through a small wooden revolving door. In this process, the natural light has a great contrast to the lighting effect in the space, so that the guests can feel deliberately.
▼通向酒吧的木制旋转门,a small wooden revolving door of the bar © EMMA
在酒吧区域内,设计师尽可能的将开放的外立面做的相对封闭,让空间内部以设计过的人工照明为主,从而给整个空间带来更多的娱乐性。设计师以“summit”为主题设计了通往卫生间的通道,整个通道形成山峰的形状,让走入这个区域的过程变得更加有趣和生动。开放的座位区域使得所有的客人在享用美酒的过程中都能感受到吧台内部的忙碌以及与邻座社交的喜悦。区域内“连续无边界”的墙壁和天花板都是用同样质感的窄条红色介砖构成,微暗色调和错缝拼接的砖墙以及地面界定了内部宁静的空间。虽然空间具有限制性,但设计师仍然希望保持它的流动性和灵活性。
In the bar area, designers try to make the open facade closed, so that the interior of the space is mainly designed with artificial lighting, so as to bring more entertainment to the whole space. With the theme of “summit”, the designer designed the passageway leading to the bathroom. The whole passage formed the shape of a mountain, which made the process of walking into this area more interesting and vivid. The open seating area enables all guests to feel the busyness inside the bar and the joy of socializing with their neighbors in the process of enjoying the wine. The “continuous boundless” walls and ceiling in the area are all made of narrow strips of red bricks with the same texture. The brick walls and floors with dim colors define the interior quiet space. Although space is limited, designers still want to keep it fluid and flexible.
▼酒吧室内概览,overview of the bar © EMMA
▼开放的座位区域,bird-view of Soochow University © EMMA
▼连续空间内划分不同区域,different areas in the continuous space © EMMA
▼吧台区,the bar © EMMA
▼通往洗手间的山峰隧道,the passageway leading to the bathroom © EMMA
▼营造空间的穿梭感,creating the sense of space shuttle © EMMA
整个空间的氛围营造和切换中,光是塑造空间的媒介与手段;也是空间变化的灵魂。我们尝试不同的方式,给与客人一个场景切换的可能性,看到人们在整个空间度过一段轻松惬意的重要时光,也是我们设计时最本真的愿望。
In the process of creating and switching the atmosphere of the whole space, light is the medium and means to shape the space, and is also the soul of the space. We try different ways to give the guests the possibility of scene switching and to see people spend a relaxed and comfortable time in the whole space, which is also our real desire when designing.
▼夜景,night view © EMMA
▼轴测图,axonometric drawing © 三厘社triostudio
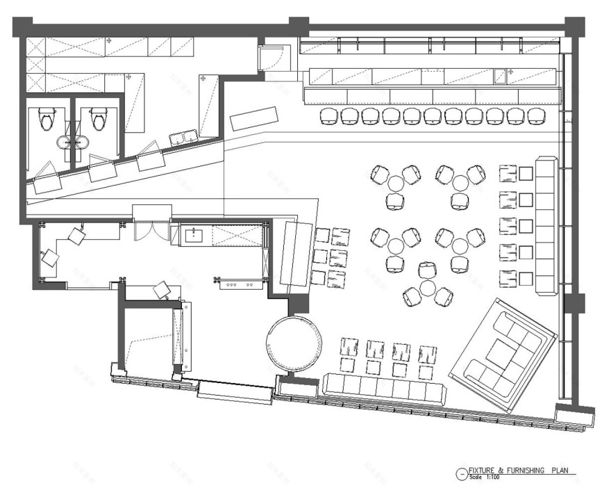
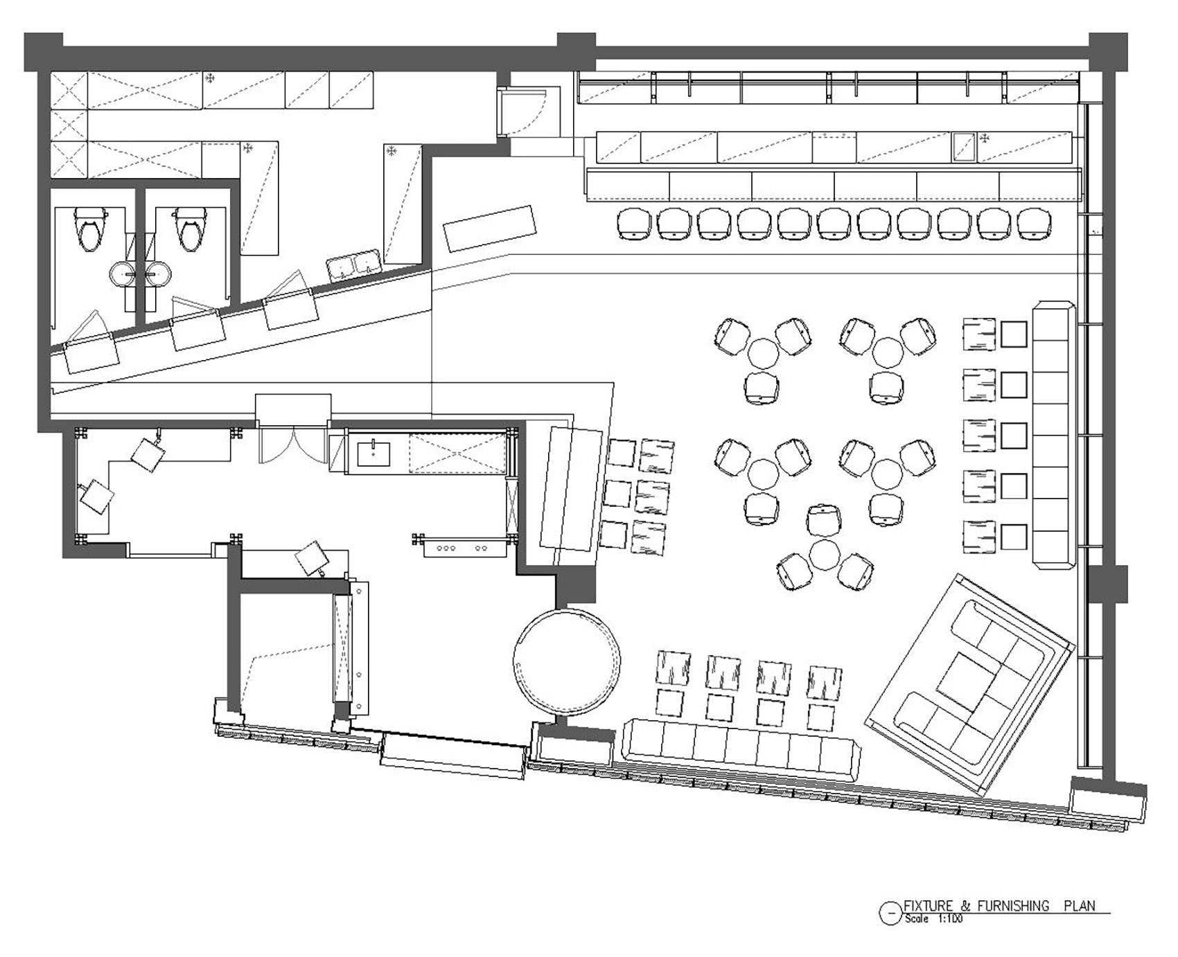
▼平面图,plan © 三厘社triostudio
▼立面图,elevations © 三厘社triostudio
客服
消息
收藏
下载
最近

































