查看完整案例

收藏

下载
基尔科努米是赫尔辛基附近的一座拥有4万人口的城市,围绕着中世纪的石砌教堂而建造。在面向教堂的位置,JKMM事务所对既有的城市图书馆进行了改造。与旁边的露天市场一起,教堂与图书馆构成了基尔科努米的市民中心。
Kirkkonummi is a municipality of 40,000 inhabitants near Helsinki built around its Medieval stone church. Facing the church, JKMM has transformed the old city library. Together with the nearby open market, the church and library create the civic centre of Kirkkonummi.
▼图书馆外观,library exterior view © Tuomas Uusheimo
为了强调图书馆与附近教堂的关系,JKMM设计了一个50米长的带顶露台,从这里可以俯瞰到教堂的庭院。新的图书馆被命名为“Fyyri”,它的外墙被铜瓦覆盖,与项目所在地的航海历史形成了关联。
▼模型:图书馆面向中世纪的石砌教堂,model:the library is facing the Medieval stone church © JKMM
JKMM have therefore emphasised the relationship of the library with the neighbouring church by designing a 50-metre long sheltered terrace overlooking the church yard. The copper shingle cladding of the new library, called Fyyri, also relates back to its maritime heritage setting.
▼图书馆和教堂,the library and the church © Tuomas Uusheimo
▼建筑外墙被铜瓦覆盖,the new library with a copper shingle cladding © Tuomas Uusheimo
▼建筑外观,exterior view © Tuomas Uusheimo
Fyyri是一个适应性的再利用项目,基于旧图书馆的混凝土体量而建造。JKMM对原本建造于1980年代的建筑进行了改造,使其容积增加了一倍,同时提供了丰富的社区空间,包括幼儿活动室、青少年俱乐部以及展览区和活动表演空间等。位于首层的咖啡馆设有一个198平方米的宽敞阅览室,专用于报纸和期刊阅读。
Fyyri is an adaptive reuse project built using the existing concrete structure of the original 1980s library. JKMM has remodelled the 80s building, doubling its volume, and introducing a large variety of accommodation for community uses such as rooms for toddler group activities, youth clubs as well as exhibition areas and spaces for events and performances. The ground level café has a generous 198 m2 reading lounge dedicated to newspapers and periodicals.
▼首层空间外观,ground floor exterior view © Tuomas Uusheimo
▼首层空间近景,ground floor close view © Tuomas Uusheimo
▼首层阅读空间, reading area on the ground floor © Pauliina Salonen
图书馆的阅览室展示出对芬兰图书馆所一贯呈现的现代主义传统的尊重,凭借精确且细致的设计和室内装修来传达读书和学习的理念。图书馆的内饰元素包括带有黄铜配件的定制灯具,在带来温暖氛围的同时也与建筑本身的尊贵和庄重感形成了呼应。
The reading rooms at Fyyri respect the Finnish Modernist tradition of libraries that ennoble the idea of books and learning through their highly crafted design and carefully detailed interiors. At Fyyri, the interiors include bespoke lighting with brass fittings that create warmth and also a sense of dignity that is in keeping with this building typology.
▼阅览室,reading room © Tuomas Uusheimo
图书馆几个新入口和扶手位置也使用了黄铜,以一种诱人且直观的方式引导着来访者穿过公共区域。黄铜所固有的抗菌性使其在今天成为备受青睐的材料,但在设计建筑时,JKMM则更看重其与占据主导的混凝土表面所形成的对比关系。
Brass is also used by JKMM in the library’s new entrances and hand railings in a way that is inviting and intuitively leads visitors through the public areas. Today brass is, of course, all the more appreciated as a material for its inherently anti-bacterial properties but when designing the building JKMM wanted a finish that would contrast with the concrete surfaces that dominate the architecture.
▼图书馆的内饰元素包括带有黄铜配件的定制灯具,the interiors include bespoke lighting with brass fittings © Pauliina Salonen
主阅读大厅由富有韵律的清水混凝土柱梁构成。间接的自然光从柱廊般的框架结构中滤过,犹如阳光透过树林一般。从总体上看,建筑的灵感主要源于其周围的海岸景观——这在室内空间的色调上体现得更加明显。
The main reading hall’s design is made up of rhythmic fair faced concrete posts and beams. Indirect natural light filters through this column-like framework creating patterns that are similar to daylight rippling through a forest of trees. Overall, the building is inspired by its surrounding coastal landscape particularly in the tonality of its interiors.
▼主阅读大厅,the main reading hall © Pauliina Salonen
© Tuomas Uusheimo
举例来说,JKMM的室内设计团队以当地的自然环境为调色盘,主要选取了较为柔和的颜色和材料(如羊毛毡等);此外还与芬兰艺术家Petri Vainio合作,在主入口大厅的天花板上就地创作了一件艺术作品,展示了芦苇床的意象。与JKMM的其他项目一样,室内设计团队强调了定制家具在延续建筑形式和品质方面的作用。木板条墙面和天花板设计亦同时将建筑与室内设计融合起来。
For example, JKMM’s interior design team has played on local nature in their choice of subdued colours and of materials like wool and felt upholstering, and have worked with Finnish artist Petri Vainio to create an in-situ art piece in the ceiling of the main entrance lobby that represents a bed of reeds. As in other JKMM, projects the interiors team have emphasised the role of fitted furniture in continuing the architectonic qualities of the building form. Slatted timber walls and ceilings also feature in a way that blurs the division between the hand of architect and that of the interior designer.
▼主入口大厅,the main entrance lobby © Tuomas Uusheimo
▼阶梯座位,the terraced seating area © Pauliina Salonen
▼木板条墙面元素,the slatted timber wall elements © Pauliina Salonen
JKMM的合伙创始人Teemu Kurkela表示:“图书馆不再只是一个仅仅与书籍相关的地方,它还为人们提供了丰富的分享知识与经验的渠道。这一现象也使图书馆的类型发生了改变,让当代图书馆成为人们寻找灵感、从阅读中获取知识以及聚会交流的场所。它们常常充当着类似于社区大厅的角色。这也是如今芬兰人将图书馆称作公共客厅的原因。”
Teemu Kurkela founding partner at JKMM says, “Libraries are no longer solely about books, but about sharing knowledge and experiences through multiple channels. This phenomenon has changed the library typology; making contemporary libraries into places for finding inspiration, learning new things through reading and other activities and also getting together. They are not unlike community halls. This is why Finns today refer to libraries as public living rooms.”
▼室内空间,interior view © Pauliina Salonen
JKMM相信,Fyyri所具备的社区功能和非商业性质,是为基尔科努米创造公民福祉所不可或缺的因素。未来,图书馆将为更多的居民和通勤人士服务。基尔科努米市将图书馆的室内空间视为该项目的重要组成部分,这表明市政当局已经充分认识到,市民们使用新图书馆的过程,正是实际体验芬兰价值观的过程。
JKMM see this community function and non commercial quality of Fyyri as integral to creating a civic foundation that is about solidarity and well-being for Kirkkonummi as it grows to accommodate more inhabitants including a new wave of Helsinki commuters. The fact that the interior design of Fyyri was considered an important part of the commission by the City of Kirkkonummi shows that the municipality understood that their residents will experience this remodelled library as a concrete expression of Finnish values.
▼室内空间,interior view © Tuomas Uusheimo
© Pauliina Salonen
JKMM的室内设计师Tiina Rytkonen表示:“Fyyri的内部空间带给人亲切温馨的感觉,让每个人都能在这里找到属于自己的舒适角落。通过对1980年代结构的重新利用,新旧元素的结合在建筑中创造出一些充满惊喜的空间。我们还为孩子们准备了休息和躲藏的空间,使他们可以随时收获快乐。”
JKMM’s Interior Architect Tiina Rytkonen says, “Fyyri’s interior was designed to be welcoming and also intimate in a way that enables everyone to find their rightful home in the building. By reusing the 80s structure, the interior also has the sort of unanticipated spaces that come with working with older structures. There are cozy spaces and hideaways too perfect for children’s stories.”
▼让每个人找到属于自己的舒适角落,everyone is able to find their rightful home in the building © Pauliina Salonen
▼图书馆夜景,night view © Tuomas Uusheimo
▼一侧入口,one of the entrances © Tuomas Uusheimo
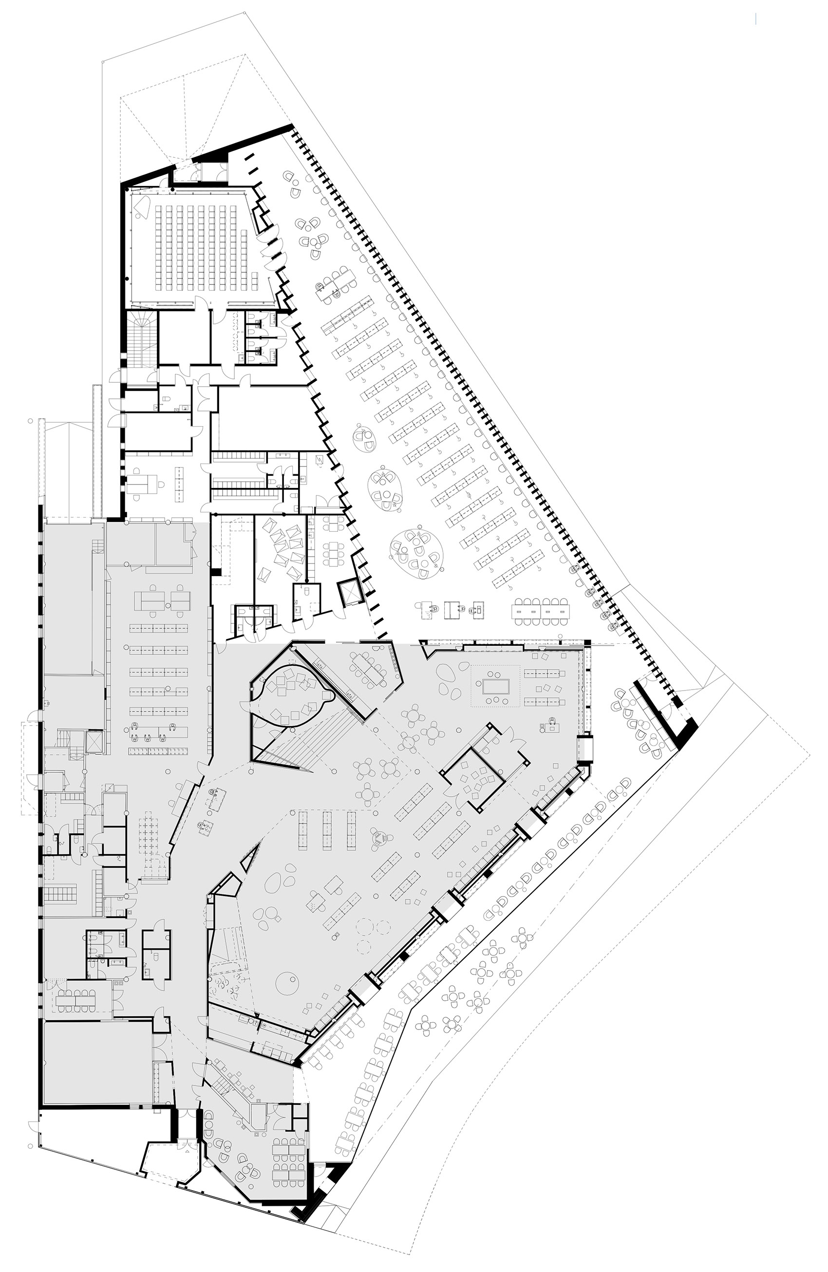
▼一层平面图,1st floor plan © JKMM
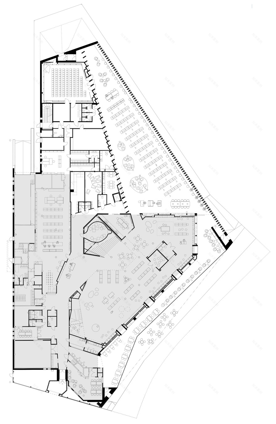
▼二层平面图,2nd floor plan © JKMM
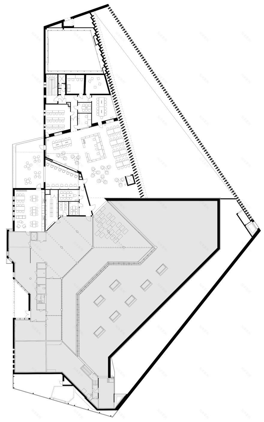
▼三层平面图,3rd floor plan © JKMM
▼四层平面图,4th floor plan © JKMM
▼立面图,facades © JKMM
▼剖面图,sections © JKMM
Location: Kirkkonummi, Finland
Function: Library, event spaces, of ces, café
Size: 4 700㎡
Status: Completion 2020
Client: Municipality of Kirkkonummi
Scope: Architecture, interiors, art integration
客服
消息
收藏
下载
最近









































