查看完整案例

收藏

下载
当90后不断迈入30 的门槛,这代人的生活观念也逐步被放大。
他们不再止步于物质满足,而是活在当下,把握眼前,追求品质与性价比的多重组合。开始将家与质朴、静谧挂钩,喜欢柔和的色调和简洁的线条,想要更舒适自在的氛围,“奶油风”仿佛一键对号入座。
这种以米白色、浅灰色、奶咖色等柔和的色调为主,给人温馨、舒适感的风格,简洁、清新、 注重细节处理。非常符合当代人审美观念,还传递出轻松、自在的生活态度,契合当下生活方式。
位于北京朝阳区这套138m²的三居室,是一对新婚夫妻的新家。前期沟通时,他们对家的关键词,提及了“浅色、明亮、松弛”等多个方向,于是,在贴合两人审美喜好的前提下,设计师引入奶油风,将这里打造成专属于他们的居心地。
整体空间以浅米色辅底,明亮、柔和的浅色系,弱化房子本身的结构感,却并没有将所有颜色都减淡,而是加入了中古的木色系去调和。像黑胡桃、柚木,同时点缀绿植、麻绳、洞石、陶土等自然材质,深浅结合,冷暖均衡。
入户门左侧定制玄关柜,既是鞋具、常用物品收纳柜,也成为了餐区的背景墙,完整立面中,柜子与墙面同色,有效放大空间,弱化了存在感。半圆形抽屉格收纳柜,成为入户的第一个弧形,以曲线衬托风格,呼应空间柔和意境。
右侧,是洗手台外移的客卫部分,抛光后的岩板更接近天然大理石材,温润的气质与胡桃木拼接,契合奶油风又不失冷静感的特质,将空间氛围奠定牢固。外墙的圆弧造型处理,加持美观之下,也成为客餐厨三大功能区的转折空间,引导居住者日常动线。
南向客厅软装搭配中,依然有线面结合的身影,穿插点缀玻璃、麻绳等元素,满足视觉透气性,丰富空间层次。
浅色调的软体弧形沙发,无扶手、无边界的造型感,呼应当代人对自由氛围的需求,给予客厅更多可能性,也让家的呈现更灵活生动。
此外,许多单品的选择也持续遵循了这一原则。比如,装饰雕塑般的竖琴椅,坐面和靠背均由多根细绳组成,轻盈有趣;直角茶几桌腿,中部镂空,木料的敦实厚重与孔隙透漏的光源交相辉映;以及电视墙靠窗区域的隔板穿插结构,线面结合,陈列与收纳同步,当被百叶窗梳理后的自然光洒入室内,配合着夫妻俩精心挑选的收藏品,变幻出多样的光影效果,为电视墙蒙上了一层光影滤镜。
要想空间经得起推敲,除了配色,格局也是关键。
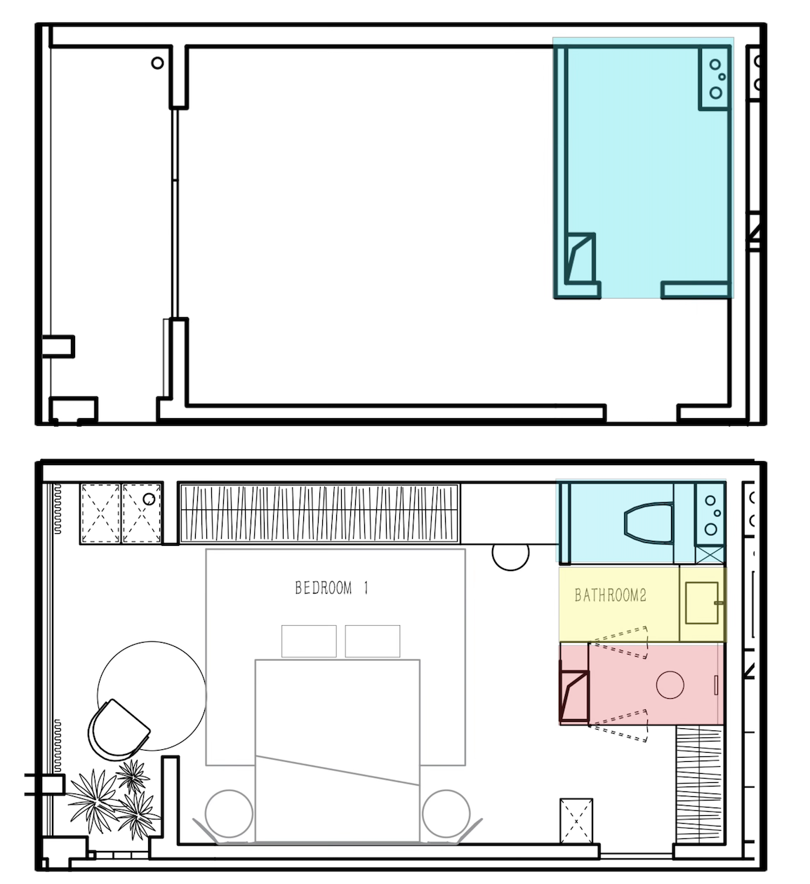
房子现在主要为夫妻俩居住,其中的不足是,如果将北侧连接的设备阳台门关闭后,餐厨几乎变成0采光状态,且室内承重墙较多,难做较大调整。于是为了弥补这一缺陷,餐厨、主卫都进行了重新布局改造。
餐厅挪至入户与客厅中部,圆桌形式满足两人日常,也能承载小型聚会,拉近聚餐距离。桌面常换常新的插花、摆件等,为空间增添了不同的生活情绪。
相比原本的封闭式厨房,具备社交属性的开放厨房更适合两人。打开格局后,北侧设备阳台的光和客厅方向的散光都能进入餐厅,视觉明亮,视野开阔。
餐厅挪走之后,厨房便有了可以扩容的空间。新增长岛台形成洄游动线,备菜、简餐都可以在这儿解决,预留了彼此陪伴的强互动空间。
厨房围绕中岛落成,操作台靠墙,整体依据洗、切、炒的下厨动线依次排布,分别设立灶台及高柜系统,嵌入冰箱和蒸烤箱,操作流畅不弯腰,减轻下厨负担。黑色色块与整屋的浅色系碰撞,呈现出更精炼利落的视觉效果,同时与部分家电设备融为一体,整体性更强。
一侧高柜中,巧妙藏起了丑陋的管道,达到规整空间的作用。同时,收纳下净饮机和茶饮相关物品,圆弧形的小水吧,成为空间中可爱的存在,时刻提醒喝水频率。
原户型的另一个不足,就是暗淡且通风不畅的主卫了,舒适度和健康性都令人生疑。于是原地进行三分离,利用层层递进的水波纹玻璃隔断,将马桶间、洗漱台和淋浴间重新划分,三区独立高效卫生,玻璃材质的特性,将主卧自然光引入,通风采光都更充分。
改造后,无论从哪个方向都能以最短动线穿梭其中,洗漱台在使用功能上与主卧梳妆台形成呼应关系,照顾到夫妻俩不同的使用习惯。
改造后的主卧,在入口处增加一组类似玄关柜的储物空间,更衣梳洗与睡眠休憩两条线,各自独立又相互串联,让空间使用变得多元化。
内部则用到了大面积的洞石元素,床头背景板以PU石与洞石拼接,粗粝仿岩石质感搭配灯带,营造出轻松、温暖的氛围。卧室作为两人重要的起居空间,以质朴感为主题呈现,诠释出“精神庇护所”的概念。
待木工板做出造型结构之后,依据厚度新增壁龛床头柜,不突兀还能兼顾日常使用所需。
在不同人的心中,家都有着不一样的定义。或许不是拎包就能入住的省事精装,也不是凑合将就越住越糟心的简装,而是从开始就深入了解内心需求,从出发就拥有明确目标,将生活习惯与自身喜好融合,创新改造,落地成更适合自己的空间。
客服
消息
收藏
下载
最近





























