查看完整案例

收藏

下载
项目的任务简单而明确:场地位于比萨和佛罗伦萨之间的山地历史景观区Via Francigena,设计师需要对这里一座建于16世纪、面积230平方米的建筑进行更新改造与室内设计。
The description of the intervention is apparently simple: the renovation and interior design of a space of 230 sqm in a sixteenth-century building of historical and architectural value located in a hilly area of landscape protection on the Via Francigena, between Pisa and Florence.
▼场地外观,the site © UMAMMA
场地现状和客户要求都很特殊,项目需要改造两个大型地下室和半封闭空间,这些房间历史上曾作为马厩、食品储藏室和妓院使用。
The pre-existing situation and the client’s request were, however, less common: the transformation of two large basement and semi-blind spaces, historically used as stables for animals, then as storage of food and finally in a brothel, in a single living space.
▼改造后的开放空间,overview of the open space © UMAMMA
▼自然景观渗透的露台,terrace with natural landscape © UMAMMA
设计师仔细探索与研究古老的地下室,发现了重构生活空间的三个关键点:第一,设计以完全开放的多功能空间为概念,拓展了功能,灵活划分出标准模块;第二,上方的开放空间与下方隐秘的地下房间形成了对比,并通过秘密通道相连接;第三,设计师在现代建筑中植入了传统功能,传承罗马浴场的精神,将地下空间改造成带游泳池和淋浴的私人健康中心。
The discovery in progress of underlying spaces of even older origin has offered the opportunity for a reinterpretation of the model of living in three key keys: The concept of a completely open and multifunctional space, capable of transcending the residential destination and the subdivision into standard functional spaces; The contrast between the complete opening of the upper spaces and the discovery of the rooms below – hidden, unpredictable, now accessible from a secret hatch; The reconciliation of ancient uses in a contemporary key: the transformation of the underground spaces into a private wellness center with swimming pool and showers, in the spirit of the Roman baths.
▼通往地下室的秘密通道,secret passage to the basement © UMAMMA
▼地下水池,underground swimming pool © UMAMMA
项目采用的修复方法十分复杂。一方面,设计师将19、20世纪的多余元素拆除,以恢复原始的结构和装饰,包括文艺复兴时期的拱顶和厚度达1.2m的墙体,另一方面,项目通过结构的改造从根本上改善了空间与景观的关系,内部承重墙上增加了开口,面向佛罗伦萨山丘的立面采用全景落地窗,将空气与阳光引入室内。自然元素和托斯卡纳丘陵景观得以最大程度地渗透进新空间中,陶土、石灰、砂岩、凝灰岩等原始的建筑元素也可以自由呼吸,内部空间的交通和使用都十分灵活。
The project is based on an apparently dissonant approach to restoration and restoration: on the one hand, the desire to restore the original aura has led to the complete demolition of all nineteenth and twentieth century superfetations in order to find and restore authentic structures and artifacts (arches, vaults and s of Renaissance origin with thicknesses of up to 1.20 m); at the same time, the project radically transforms the relationship between the spaces and the landscape, opening the rooms to light and air through major structural interventions: the creation of large openings on the internal load-bearing walls and the panoramic window on the entire facade facing the Florentine hills of Vinci and surroundings. With the lighting and ventilation of the new spaces, the result is maximum permeability to the natural elements and the Tuscan hilly landscape, the breathability of the original building elements terracotta, lime, sandstone, tuffterracotta, lime, sandstone, tuff) and the great flexibility in the use and circulation of the internal spaces.
▼卧室,the bedroom © UMAMMA
▼开放式厨房与餐厅,open kitchen and dining room © UMAMMA
▼独特的拱顶结构,unique vault structure © UMAMMA
▼修复地下圆拱,restoration of the underground arch © UMAMMA
▼细部,通道控制设施,details, control facility © UMAMMA
对于历史建筑的功能转换,最有趣的地方在于采取细致入微的策略,实现原始结构与现代设计间的平衡。现代感、环境条件和传统建造标准都是值得持续讨论的话题。本项目中,设计师并不想直接呈现出“完成的”环境,而是希望通过激发“环境可能性”在当代语境下建立起可以灵活、可持续使用的系统,并恢复材料的弹性以应对未来的变化。
What is perhaps most interesting in the context of functional conversion within a historic building is the possibility of expressing the contemporary within a delicate intervention of recovery of secular structures: the declaration of the presence of our time, the sterility of conservation for itself, the impossibility of applying traditional housing standards, the desire – need? duty? – of a continuous temporal dialogue. And it is perhaps this desire that has led not so much to the design of a “finished” environment as to the design of the “possibility of an environment” – a system capable of offering infinite uses and interpretations of space in our time, restoring the resilience of materials for new transformations in the future.
▼首层平面,main plan © UMAMMA
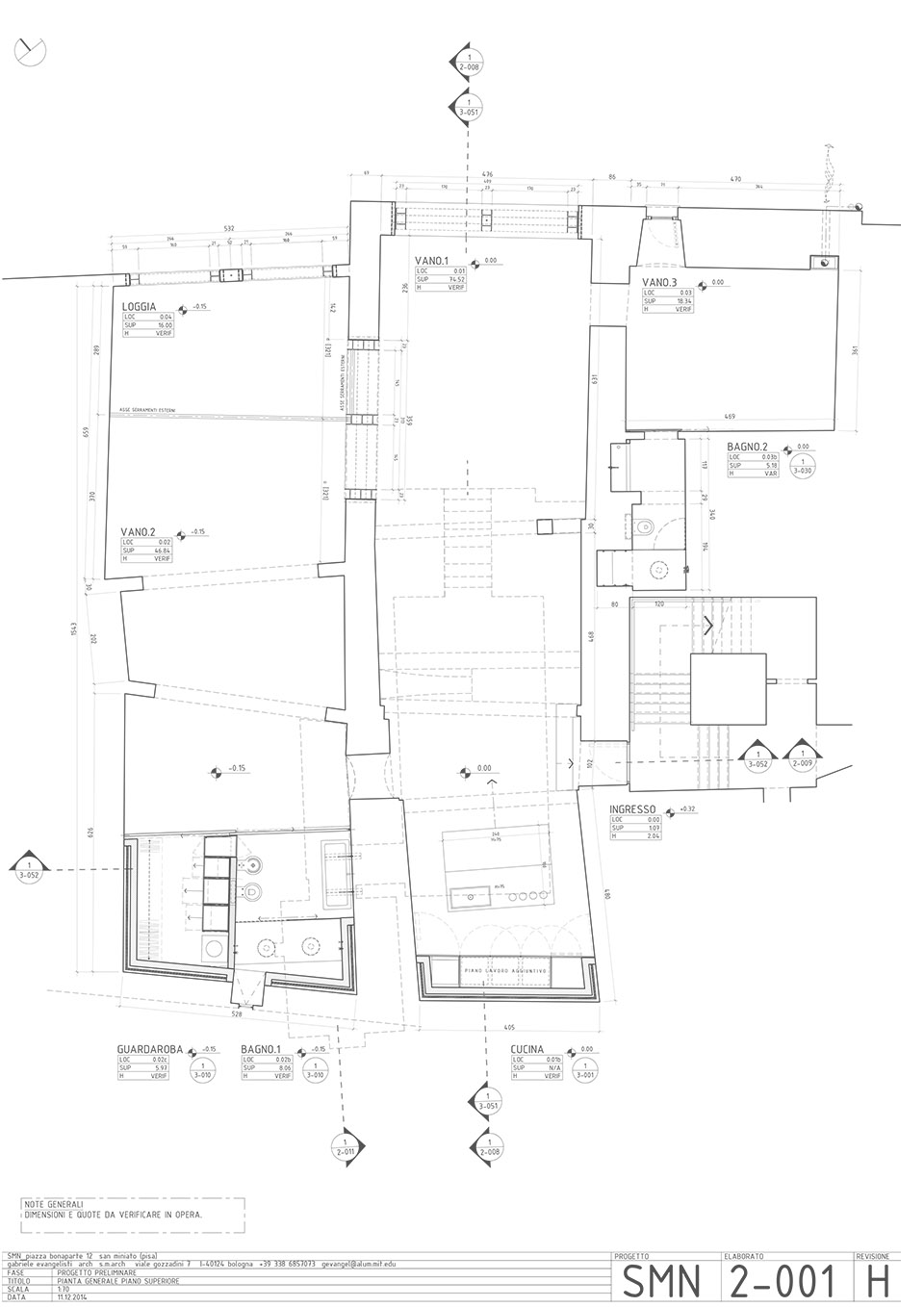
▼上层平面,upper plan © UMAMMA
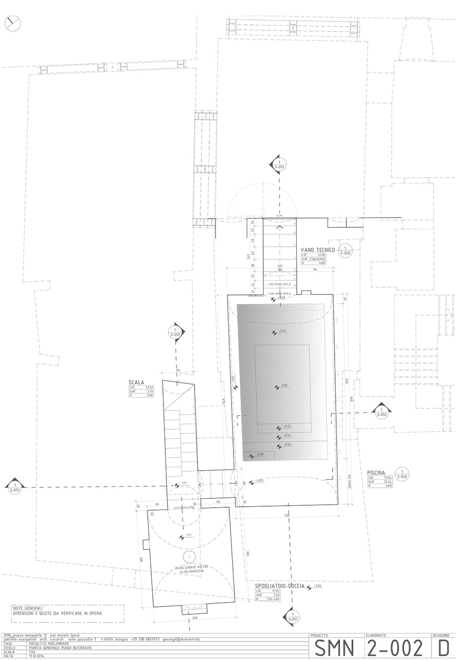
▼地下室平面,basement plan © UMAMMA
Credits:
Owner Art Direction & Interior design: Giovanni Settesoldi
Architectural Design: Gabriele Evangelisti Arch. S.M.Arch.
Works Director: Geometra. Federico Donnini
Structural Works Management: Ing. Piero Boldrini
HVAC Technician: Eng. Glauco Cecconi
Pool Partner: Indalo piscine
Living area: 230sqm. 2 floors.
Location:UMAMMA the unexpected space: Piazza Buonaparte, 12
56028 San Miniato (Pisa) 1
客服
消息
收藏
下载
最近


















































