查看完整案例

收藏

下载
Twobo
我们是一家拥有超过15年经验的家族律师事务所,由Pablo Twose, maria Pancorbo和Alberto Twose组成。
Somos un despacho familiar con más de 15 años de experiencia, formado por Pablo Twose, María Pancorbo y Alberto Twose.
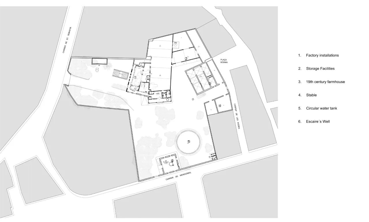
“Aigües de Vilajuïga”是一个建筑群,如果没有它下面流动的水的本质和存在,就无法理解。自1904年以来,碳酸水的地下含水层一直在不停地流动。散布在该地区的井和建筑物是一个从未见过阳光的世界的一角。
“Aigües de Vilajuïga” is a building complex that cannot be understood without the essence and presence of the water flowing under it. An underground aquifer of carbonated water that has flown non-stop since 1904. The wells and the buildings scattered in the area are the tip of a world that has never seen the light of day.
这个项目有不同的任务。安装工厂设施、井、储存设施,并建造新的培训设施、展厅和办公空间。
The project had different tasks. Fitting the factory installations, wells, storage facilities and building new training facilities, exhibition showrooms and office spaces.
表面上,我们什么也没改变。那里的气氛似乎是永恒的,值得保持完整。一座古老的19世纪农舍(在周围的一切都消失后,它仍然存在很长时间)成为了我们的框架:我们清理和整理了主屋、小街区和现代主义建筑,揭示了那些被遗忘的细节,这些细节让我们着迷。
And we changed nothing… on the surface. The atmosphere of what was there seemed timeless and worth keeping intact. An old 19th century farmhouse (which remained long after everything else around it passed) became our framework: We cleaned and organized the main house, small blocks and modernist building unveiling forgotten details that captivated us.
我们在地下改变了一切。我们想靠近源头。让深入水中的体验对游客来说是有形的。挖掘,下潜,把通常隐藏的东西带到聚光灯下。
And we changed everything… underground.We wanted to go close to the source. Make the experience of going deep for the water something tangible for visitors.Dig, descend and bring to the spotlight whats usually hidden.
在花园的中央,隐藏在一堵柏树墙后面,我们发现了一个巨大的圆形水箱,深6米。这是我们深入地下,揭露Vilajuïga基础的一次机会。
In the middle of the garden, concealed behind a wall of cypress trees we found a huge circular water tank that went 6 meters deep. This was our shot at going down below and expose the foundations of Vilajuïga.
图片版权 Copyright :Twobo
客服
消息
收藏
下载
最近


































