查看完整案例

收藏

下载
“一半烟火,是人生的繁华与热闹;一半清欢,是心境的淡泊与自在。在这烟火与清欢之间,我们找寻着生活的平衡和意义。”
项目平面图 Design Plan
▲-1F 平面图
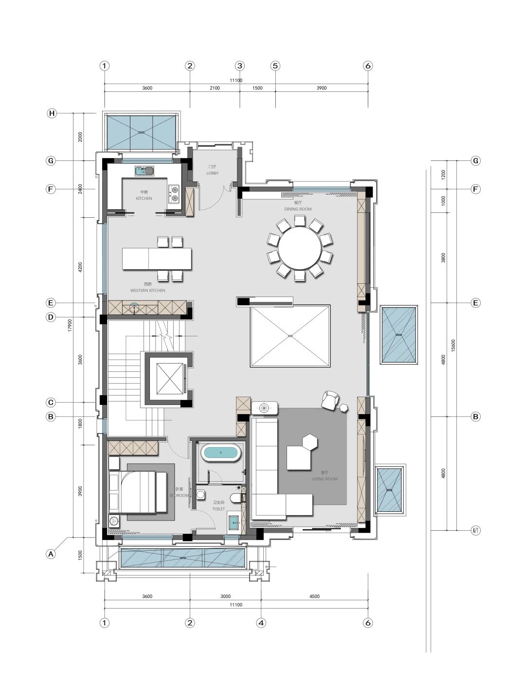
▲1F 平面图
▲2F 平面图
本案位于苏州名流御园,女主人从事服装行业多年,是一位优雅的成功女性,对生活充满了热爱和憧憬。对于家的理解,她希望家不仅是一个生活的居所,更希望通过设计让空间拥有温度和优雅的气质,温柔细腻地对待生活,这一点也正是枫语设计所追求的。
项目视频
01
空间是情感的容器
Space is container of emotions
通过与自然的密切连结,以及对空间尺度的把握,营造出一个充满能量的场所,潜移默化地让身处其中的人心情愉悦,感到全身心的放松。
设计团队相信一个好的空间,一个让人舒服愉悦的空间自然有能量,自然能带来好的风水。
▲-1F
02
向内生长,向外绽放
Growing inward and blooming outward
本案的一大亮点是空间的合理规划,设计通过立面、顶面上大小不一的窗户,把光线引进来,把自然引进来。
把自然引进来,空间就有了灵气,把光线引进来,空间就有了情绪,有了温度。而与情绪的共鸣,正是人们留连于一个空间的真正原因。
让室内空间与室外的自然环境无缝衔接,不受天气、时间的限制,随时随地与大自然亲密接触。有明月松间照,有清泉石上流,有迷人的光影,更有叶绿花香,通过听觉、视觉、触觉、嗅觉、味觉五感的体验,让人在快节奏的现代生活中感受到安静的力量,给心情来个自然SPA。
▲1F
03
做克制的设计,做时间的朋友
Design restraint and be a friend of time
在设计上融合了西方的逻辑思维以及东方美学的生活追求,设计语言力求克制,文化自信的业主相较于一眼的惊艳,更喜欢长期的舒适和有温度的生活方式。
尽可能地克制设计上的冲动,摒弃不必要的装饰。落地窗上投射的自然景色,不就是墙上最美的装饰画吗?没有哪个画家能描绘出不断变化的四季美景!
▲2F
项目信息
项目名称: 清欢的烟火·苏州名流御园
项目地址:中国,苏州
项目面积:600平方米
设计时间:2021年 9月
完成时间:2023年10月
设计公司:苏州枫语装饰设计有限公司
主创设计:邵枫
设计团队:高良、徐雨晨、徐莺
木作执行:Royana 常熟团队
软装陈设:张静丹、邵枫、江雨欣
景观设计:苏州天恒园林
空间摄影:RICCI-倪腾辉
邵枫
苏州枫语设计创始人-设计总监
苏州枫语设计专注于别墅、大宅、会所等的设计,致力于为有追求的高品质客户提供整体设计解决方案。
主创成员皆从业多年,拥有丰富的设计和落地经验,提供完整的全案设计服务,省时省心的一体化服务方式,从设计到落地全过程控制质量。
枫语设计在设计上融合了西方的逻辑思维和东方美学的追求, 研究空间与人的关系,构建新的空间形态,为每一个身处空间的人带来崭新的体验和能量。
作品曾荣获2012第七届中国国际建筑装饰及设计艺术博览会大奖、“室内设计百强人物”、2014年中国(苏锡常)室内设计总评榜“十佳作品”、2015年中国(上海)国际建筑及室内设计节“金外滩”奖。2015年APDC亚太室内设计精英邀请赛酒店类大奖、2017年住宅类中国金堂奖、2018在意大利米兰荣获筑巢奖等奖项。
客服
消息
收藏
下载
最近














































